logo

Houzz Украина: Квартира c шторами вместо перегородок

Квартира для молодой пары, где вместо стен — синие шторы, а на полу битый мрамор

Houzz Россия
Houzz Россия

29 апр. 2020

Обновлено 2 окт. 2020

Houzz Украина: Квартира c шторами вместо перегородок
Молодая пара хотела создать светлую, минималистичную по наполнению квартиру, где не будет ярких оттенков и выделяющихся акцентов. «Обычно в своих проектах мы активно пользуемся насыщенными цветами. Но после техзадания нам казалось почти невозможным уговорить заказчиков на вариант интерьера, где будут кобальтовые шторы или пудрово-розовый диван», — вспоминает архитектор Юлия Ткаченко. Однако в итоге так сложилось, что практически сразу все согласовали.
Houzz Украина: Квартира c шторами вместо перегородок
Черные журнальные столики Staritska maysternya О проекте: Место: Киев, Соломенский район Год: 2019 Размер: 65 кв. м Кто здесь живет: молодая пара Архитекторы проекта: Ater.architects (Александр Ивасив, Юлия Ткаченко) Фото: Алексей Янченков ————————————— В ВАШЕМ ГОРОДЕ… ► Через Houzz можно нанять дизайнера или архитектора в любом городе и стране. Начать поиск специалиста —————————————
Houzz Украина: Квартира c шторами вместо перегородок
Графическая работа художницы Юлии Поповой, живущей в Берлине Квартира видовая, находится на 24-ом этаже новостройки. Жилой комплекс, к которому относится дом, является частью ревитализации промышленных территорий. Архитекторам в работу досталась квартира с бетонными стенами без какой-либо отделки. Единственное, что оставил после себя застройщик, — не очень удачная планировка с дробным пространством из маленьких комнат и темным коридором. Было очевидно, что все это не подходило молодой семье.
Houzz Украина: Квартира c шторами вместо перегородок
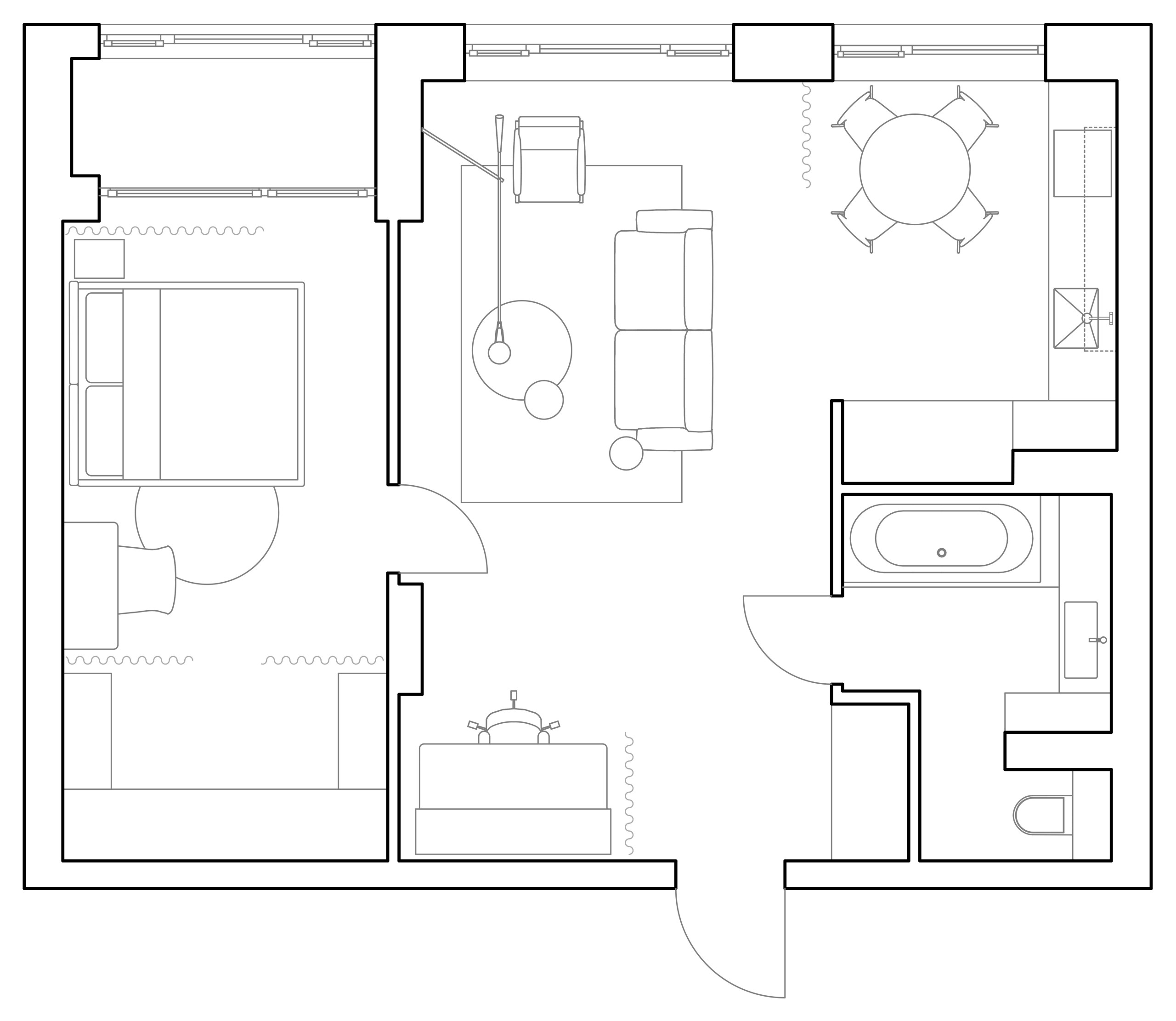
Планировка квартиры после перепланировки После перепланировки архитекторы создали максимально открытое пространство. отгородили только спальню и санузел.
Houzz Украина: Квартира c шторами вместо перегородок
«Зонирование с шторами появилось из-за того, что нам не хотелось возводить лишние перегородки — рассказывает Юлия о решении с зонированием. — Хотелось сделать квартиру максимально легкой и мобильной. Шторы служат связующим элементом, объединяющим весь интерьер». Сами шторы на люверсах, с ручным управлением, все работает предельно просто.
Houzz Украина: Квартира c шторами вместо перегородок
Архитекторы вспоминают, что сперва заказчики побаивались оставлять кухню открытой, даже обсуждали вариант металлической перегородки со стеклянным заполнением: «Позже ребята признались, что благодарны за альтернативное решение. А сейчас эта штора между кухней и гостиной почти не используется. Она осталась цветовым акцентом, который воттеняет столовую группу».
Houzz Украина: Квартира c шторами вместо перегородок
Чтобы приглушить довольно активные цвета, использовали окрашивание стен и потолков в нейтральных оттенках: снизу это серо-бежевый тон, а сверху — белый. Два бетонных пилона оставили как есть, их предварительно обеспылили и покрыли матовым лаком.
Houzz Украина: Квартира c шторами вместо перегородок
Юлия вспоминает: «Перед покраской возник немного нервный момент со штукатуркой. Она долго не сохла, что затянуло процесс ремонта. Никакие манипуляции строителей не помогали, и в итоге пришлось ждать, пока она досохнет естественным способом». Чтобы сохранить концепцию минималистичного пространства, хранение в квартире — это интегрированные решения. В прихожей есть встроенный шкаф для верхней одежды и обуви. Остальной и основной объем всех вещей находится в гардеробной в спальне за синими шторами. На кухне хранение организовано так, что за шпонированными дубовыми фасадами спрятана вся техника, включая холодильник и стиральную машину. Причем такой порядок у молодой пары, по словам архитекторов, сохраняется все время.
Houzz Украина: Квартира c шторами вместо перегородок
Проблема и решение: Один из минусов в этой квартире — низкие потолки. Из-за этого в гостиной и спальне красили потолок по перекрытию, не прибегая к штукатурке и оставив видимыми все швы. С другой стороны, такой ход избавил от ощущения «евроремонта» и добавил легкой небрежности всей картине в целом. Единственное, пришлось зашить коммуникации и вентиляцию в кухне и санузле, поэтому там потолок не значительно, но ниже.
Houzz Украина: Квартира c шторами вместо перегородок
Интересный момент — плинтус из Г-образного алюминиевого профиля. Пластины выкрасили в нужный оттенок и завели между паркетом и стеной. На пол в гостиной и спальне уложили крупную дубовую доску нестандартного размера. Архитекторы вспоминают: «Нам очень повезло с доской для пола, так сложилось, что мы ее нашли по хорошей цене, да еще и у проверенного производителя».
Houzz Украина: Квартира c шторами вместо перегородок
Кухонный стол разрабатывали под проект. Он состоит из металлической крашеной основы и деревянной столешницы. Столешницу полностью окрасили, но с сохранением текстуры. Помимо кухонного стола в интерьере много и другой мебели, изготовленной по индивидуальным эскизам авторов проекта, в том числе и кровать в спальне, и стол для аппаратуры.
Houzz Украина: Квартира c шторами вместо перегородок
На полу кухни и санузла архитекторы не хотели использовать стандартные решения в виде плитки. Здесь на полу «так называемая брекчия или куски битого мрамора, уложенного вручную на полимерную смесь и обработанного матирующим покрытием. Из-за ограниченного бюджета специально искали мраморный бой, который нашелся на небольшом производстве под Киевом. За ним ездили вместе с хозяином квартиры, там же сразу выкупили остатки на нужный нам объем».
Houzz Украина: Квартира c шторами вместо перегородок
Под покрытием предусмотрен теплый пол. Сам камень хорошо прогревается и по нему приятно ходить босыми ногами. Он такой тактильный, живой.
Houzz Украина: Квартира c шторами вместо перегородок
В санузле после объединения двух небольших помещений нашлось достаточно места и для хранения, и для размещения полноценной ванны. Здесь же придумали большое зеркало во всю стену за умывальником, которое дает дополнительный объем и перспективы. Столешница умывальника позволяет без стеснения расставить все принадлежности.
Houzz Украина: Квартира c шторами вместо перегородок
В целом наполнение интерьера было продиктовано желанием не загромождать пространство лишними деталями. Поэтому в квартире даже освещение было продумано определенным образом.
Houzz Украина: Квартира c шторами вместо перегородок
Так для удобства во время уборки предусмотрен свет технического характера. В основном же, молодые люди предпочитают использовать акцентные светильники, которые работают для той или иной зоны. В гостиной это культовый светильник 265 от Flos , в кухне над столом — подвес Flowerpot от & Tradition , который спроектировал Вернер Пантон в 1968 году .
Houzz Украина: Квартира c шторами вместо перегородок
Фото над столом культового берлинского техно-клуба «Бергхайн» авт. Михаэля Белхади «Хозяин работает в сфере IT и увлекается созданием электронной музыки. И ключевым пожеланием в организации домашнего рабочего места была возможность разместить всю нужную аппаратуру, чтобы писать дома музыку с комфортом». — рассказывает Юлия.
____________________________ ОБ АВТОРАХ ПРОЕКТА… Перейдите на страницу Ater . architects , чтобы изучить другие работы из портфолио архитекторов У ВАС ЕСТЬ ДЛЯ НАС ПРОЕКТ… Загрузите съёмку в свой профиль на Houzz, отправьте ссылку с кратким описанием на editorial@flatica.ru Для справки: Какие объекты мы публикуем

Комментарии 13

Цветовые сочетания очень нравятся, особенно в спальне!
Очень, очень красиво!
hanat74

5 л.

На мой взгляд, хоть в заголовке и заявлены шторы в качестве перегородок, но показаны они как-то очень скудно, без вариантов использования. Просто синие висящие полотна. Из заголовка следует, что шторы заменили все перегородки. Но на деле их всего пара штук, да еще и в тех местах, где их обычно и вешают. Ничего нового в применении штор не показали.

Оставьте комментарий

Читать похожие статьи