logo

Houzz Украина: Душевная квартира для двоих

Дизайнеры из SVOYA studio прониклись теплотой, исходящей от семьи заказчиков, и ретранслировали их позитивную энергетику в интерьер

Анна Бандальер
Анна Бандальер

8 окт. 2015

Обновлено 26 окт. 2015

журналист, постоянный автор Houzz

Хозяева этой квартиры в одной из новостроек Днепропетровска — очаровательная семейная пара, уже вырастившая детей, которые теперь живут отдельно. Они обратились к архитекторам, чтобы с их помощью обустроить свое новое «гнездо». К большой радости молодых ребят из SVOYA studio, заказчики оказались далеки от консерватизма и с готовностью приняли все предложенные дизайнерские и технологические решения. А сам интерьер получился сдержанно элегантным и очень современным.
Houzz Украина: Душевная квартира для двоих
Houzz Украина: Душевная квартира для двоих
О проекте
Место: Днепропетровск
Размер: 64 кв.м
Кто здесь живет: Зрелая семейная пара
Авторы проекта: Денис Соколов, Валерия Соколова, Таня Лазовая, Юлия Мартыненко, Артем Мартыненко, SVOYA studio
Фото: Татьяна Коваленко
Houzz Украина: Душевная квартира для двоих
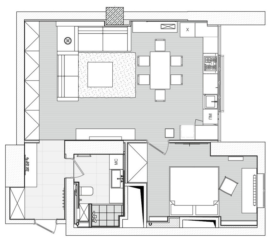
По желанию заказчиков, в единственную комнату дизайнеры вписали закрытую спальню, которая заняла место кухни. Гостиную нарастили за счет присоединения лоджии, на место которой, в свою очередь, переехала кухня. Благодаря такой рокировке, однокомнатная квартира, которая по функциональности не отвечала потребностям хозяев, была успешно трансформирована в удобную двухкомнатную, не потеряв при этом визуального объема.
Houzz Украина: Душевная квартира для двоих
В прихожей обращает на себя внимание игра фактур, которую дополняет глянцевый мрамор на полу. Отсюда можно попасть в гостиную, у входа в которую разместилась диванная зона в ансамбле со встроенной системой хранения. Особый уют здесь создает стена, выполненная из войлока. Таким нестандартным способом дизайнеры передали то тепло, которым веет от хозяев.
Houzz Украина: Душевная квартира для двоих
Houzz Украина: Душевная квартира для двоих
Houzz Украина: Душевная квартира для двоих
Новая кухня расположилась вдоль панорамного окна с видом на город. Навесных систем хранения нет, а вся кухонная утварь и техника скрыты в нижней базе и боковых шкафах. Вытяжка также незаметна: она вмонтирована в столешницу и выезжает только во время готовки.

Диван: Ditre Italia; ковер: ИКЕА
Houzz Украина: Душевная квартира для двоих
Зона столовой оформлена минималисткой обеденной группой от Calligaris. Раздвижной стол Sigma с оригинальной столешницей из закаленного стекла оснащен полуавтоматической системой раскладывания. Это очень кстати, если нужно собрать на ужин большую компанию друзей и родственников.

Кресла Even Plus в обивке из натуральной итальянской кожи кофейного оттенка сочетают лаконичный дизайн, прямые линии и удобство. «Вообще вся мягкая мебель подбиралась с учетом максимального комфорта и приятных тактильных ощущений», —подчеркивают дизайнеры.
Houzz Украина: Душевная квартира для двоих
Общую сдержанность серого пространства разбавляет сочная колористика декора, освещения и текстиля. «Пожалуй, самым ярким и ценным акцентом интерьера можно назвать картину нашего архитектора Антона Соколова, контрастно «согревающую» зону столовой», рассказывает Денис Соколов.
Houzz Украина: Душевная квартира для двоих
Ключевая роль в интерьере отведена освещению, которое архитекторы подбирали с особой тщательностью, отдавая предпочтение дизайнерским бестселлерам.

В гостиной это парящая люстра от Designheure с прозрачными треугольными абажурами, сквозь которые свет причудливо рассеивается в разных направлениях. Подвесы от Cangini & Tucci, расположенные над столом, по форме напоминают мыльные пузыри и дают ощущение легкости и непринужденности.
Houzz Украина: Душевная квартира для двоих
В спальне серый цвет присутствует только в текстиле. Доминирующим здесь стал сложный голубой, в который окрашены стены. Цвет меняет оттенки в зависимости от освещения вплоть до зеленого, наполняя пространство свежестью.
Houzz Украина: Душевная квартира для двоих
Houzz Украина: Душевная квартира для двоих
Настоящей находкой в спальне стала пара светильников в духе оп-арта от Foscarini. Дизайнер Филипп Нигро (Philippe Nigro) придумал эту модель, отдавая дань авангардному движению 60-х годов прошлого века. Бра Nuage (в переводе с французского «облако») состоит из пяти плоских решетчатых модулей, которые, преломляя свет, создают оптические иллюзии.

Кровать: Poliform; подвесы: Oty light; бра: Linea Light
Houzz Украина: Душевная квартира для двоих
Еще одной особенностью комнаты стали белые полки в форме плюсов, выполненные по дизайну SVOYA studio. «Композиция стеллажей за кроватью идейно отображает позитив, исходящий от прекрасной семьи заказчиков», объясняют дизайнеры.
Houzz Украина: Душевная квартира для двоих
Houzz Украина: Душевная квартира для двоих
В минималисткой по стилю ванной сделана ставка на выигрышную комбинацию матово-белых фасадов мебели и раковины с глянцевой поверхностью нежной мраморной плитки.

Сантехника: Catalano
Houzz Украина: Душевная квартира для двоих
План квартиры после перепланировки

ПРЕДЛОЖИТЕ СВОЙ ПРОЕКТ ДЛЯ ПУБЛИКАЦИИ…
Загрузите фотосъемку в свой профиль на Houzz, отправьте ссылку и краткое описание проекта на editorial@flatica.ru. Мы обязательно свяжемся с вами, если примем решение о публикации.

Комментарии 20

Понравились некоторые моменты,которые связаны с экостилем: цвет кухни,прихожая.Картина желтая класс. А вот ковер в гостиной, на мой взляд,был бы хорош из сезали, ванная комната такая безжизненная,холодная,в ней нет свежести,бодрости.Хотя плитка потрясающе хороша,но больница по ощущениям.А кресты в спальне вообще без комментариев.
Очень нравится гостиная-кухня. Как удалось согласовать перенос кухни на лоджию? По моему это нереально
Уныло

Оставьте комментарий

Смотреть похожие темы

Читать похожие статьи