logo

Houzz тур: Яркий и эксцентричный интерьер для молодой девушки

В квартире для студентки создали яркие и немного эклектичные интерьеры, отлично подходящие для молодежных тусовок

Houzz Россия
Houzz Россия

23 апр. 2016

Обновлено 11 июля 2016

Молодой девушке Ксении всего 19 лет, но ей очень повезло стать хозяйкой квартиры, расположенной в центре города в здании шестнадцатиэтажной новостройки. Наверное, можно только представить себе ее волнение, ведь создать уютную атмосферу, рассчитанную не на один год, не так уж и легко. К тому же, юный возраст Ксении диктует свои условия: жилье должно быть подходящим для активного образа жизни, где есть место для тусовок и встреч с друзьями.

Нужно сказать, дизайнер Анастасия Литвинова, работавшая над проектом, очень четко обозначила себе задачу, чувствуя возложенную на нее ответственность. Ведь необходимо было создать место эксцентричное и запоминающееся, соответствующее современным тенденциям. При этом важно было сделать его практичным и комфортным для проживания молодой девушки.
Houzz тур: Яркий и эксцентричный интерьер для молодой девушки
О проекте
Место: Орел
Год: 2015
Размер: 80 кв.м
Кто здесь живет: Студентка Ксения, 19 лет
Автор проекта: Анастасия Литвинова, Дизайн-бюро N.LEE
Интересные факты: Приятным бонусом этого проекта оказалось отсутствие несущих стен, что способствовало увеличению жилой площади
Фото: Мария Пугачева

В процессе рабочего обсуждения оказалось, что Ксения предпочитает белый цвет и видит его доминантой интерьера. При этом девушка настаивала на присутствии ярких пятен. «Мы обсудили предпочтения Ксении, и родилась идея создать неповторимый китч. Если хотите, эклектика», — говорит автор проекта Анастасия.
Houzz тур: Яркий и эксцентричный интерьер для молодой девушки
Задание дизайнер получила уже на финальной стадии строительных работ, поэтому дизайн-проект был готов как раз к сроку сдачи квартиры. И можно было сразу приступать к ремонту.
Houzz тур: Яркий и эксцентричный интерьер для молодой девушки
В квартире был раздельный санузел, две комнаты, два балкона и кухня. Планировка, как это часто бывает, была не самая лучшая, и нужно было работать с пространством. Да и потолки в 2,7 м также доставляли проблем.
Houzz тур: Яркий и эксцентричный интерьер для молодой девушки
В итоге Анастасия решила убрать внутренние перегородки, сыграв в интерьере на зрительных эффектах. Во время перепланировки объединили санузел, соединили друг с другом балконы и смежные с ними помещения.
Houzz тур: Яркий и эксцентричный интерьер для молодой девушки
«Благодаря новой планировке мы получили единое студийное пространство для тусовок, где гости могут общаться, сидя на диване и за баром, комментирует Анастасия. Вместо двух маленьких санузлов мы получили большую ванную, в которой смогли поместить раковину, унитаз, ванну и душевую. В спальне, благодаря объединению балкона с комнатой, у нас получилось помещение без шкафов и с полноценной гардеробной».
Houzz тур: Яркий и эксцентричный интерьер для молодой девушки
По словам дизайнера, им повезло, ведь весь процесс работы над проектом шел непрерывно, и даже поставки материалов проходили без задержек.
Houzz тур: Яркий и эксцентричный интерьер для молодой девушки
Реализацией задуманного занималась команда профессиональных строителей с высокой квалификацией. В таких условиях работать и легко, и приятно вдвойне!
Houzz тур: Яркий и эксцентричный интерьер для молодой девушки
«Были непредвиденные моменты на итоговых этапах, делится воспоминаниями о ходе работ Анастасия. Например, люстра с указанными габаритами на сайте оказалась несколько больше, чем мы ожидали. Пришлось подбирать новую, а в целом все прошло гладко».
Houzz тур: Яркий и эксцентричный интерьер для молодой девушки
Правда, был еще момент, как позже добавила дизайнер: «Возникли сложности с воплощением рисунка на полу многие художники отказывались и не хотели браться за реализацию, но у нас все получилось».
Houzz тур: Яркий и эксцентричный интерьер для молодой девушки
Пожалуй, самая интересная часть в воплощении этого яркого интерьера и началась в момент старта его отделки и наполнения. По замыслу автора проекта все детали должны были соответствовать общей концепции.
Houzz тур: Яркий и эксцентричный интерьер для молодой девушки
Мебель заказали итальянскую. Она изготавливалась на заказ с использованием пожеланий Ксении относительно обивки, декора и исполнения. Хотя в компании мебели Fratelli Barri прижились и предметы из Cosmorelax.
Houzz тур: Яркий и эксцентричный интерьер для молодой девушки
В проекте использовали плитку из последних коллекций Kerama Marazzi. Не обошлось и без авторских вещей: например, шкаф в прихожей нарисован дизайнером специально для этого проекта. Также по индивидуальным эскизам изготовлена полка над рабочей зоной в спальне.
Houzz тур: Яркий и эксцентричный интерьер для молодой девушки
Ксения тоже приняла участие в реализации проекта. «Она очень хотела наполнить интерьер своей квартиры современным декором, который мы с любовью подбирали вместе», рассказывает Анастасия.
Houzz тур: Яркий и эксцентричный интерьер для молодой девушки
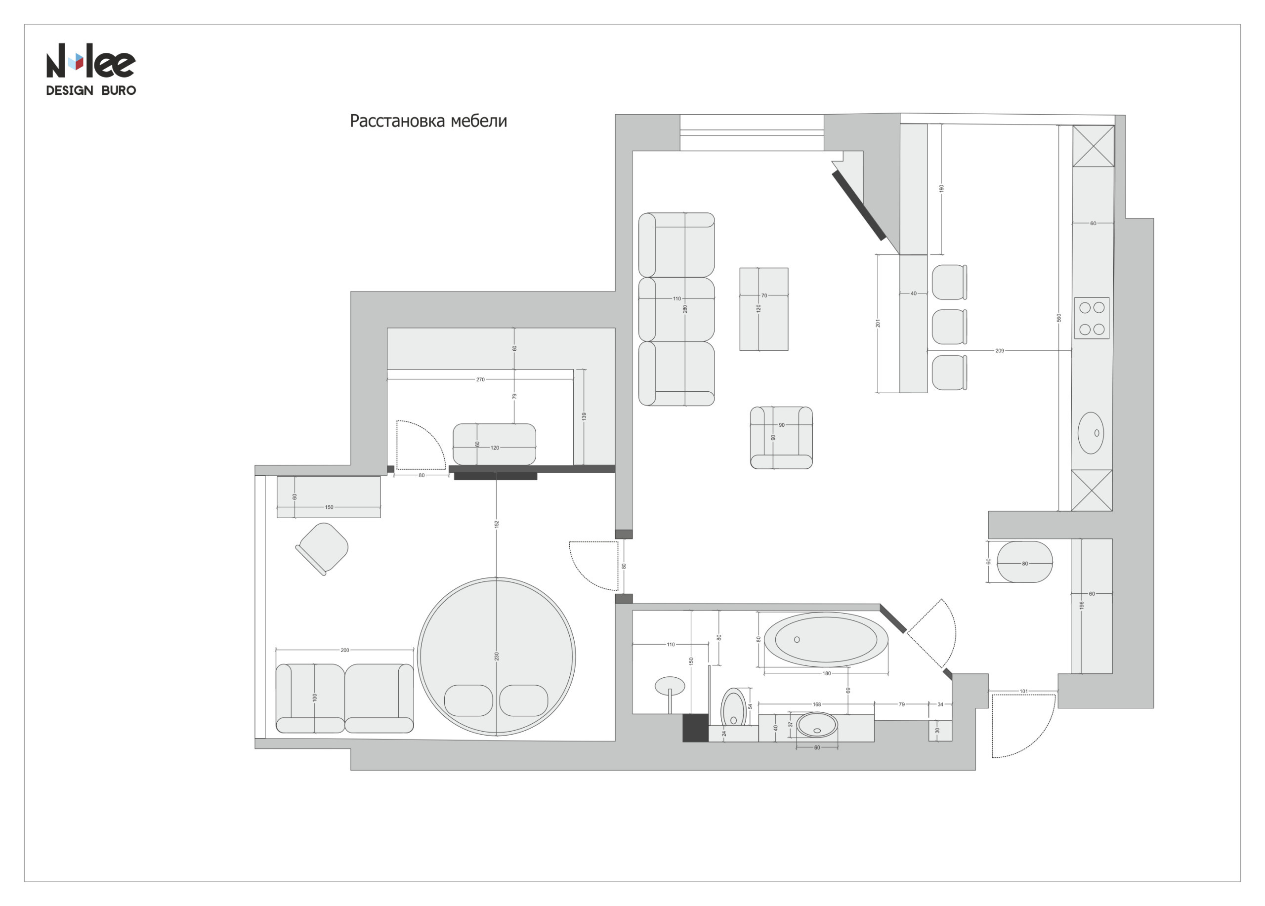
План квартиры после перепланировки

ПРЕДЛОЖИТЕ СВОЙ ПРОЕКТ ДЛЯ ПУБЛИКАЦИИ…
Загрузите фотосъемку в свой профиль на Houzz, отправьте ссылку и краткое описание проекта на editorial@flatica.ru. Мы обязательно свяжемся с вами, если примем решение о публикации

ЧИТАЙТЕ ТАКЖЕ…
Дизайн комнаты для девушки в современном стиле

Интерьерные съемки из спецпроекта «Houzz в гостях»

Комментарии 25

Вполне приличный китч где можно бухать, кататься с разгона на тапках или в махеровых носках, валяться вповалку на кровати, там же делать модные нынче селфи, ну а ванная - ночной клуб. Весело! А что еще надо в 19?
Лана

9 л.

Пристрелите меня...
Годный орловский китч) очень интересно посмотреть как выглядят такие интерьеры после пары лет эксплуатации. непонятно, какой рисунок отказывались делать художники. Не о желтых же полосках речь?)) белый зеркальный пол доставляет как и "использование пожеланий" заказчика ; ))

Оставьте комментарий

Читать похожие статьи