logo

Houzz тур: Воздушный интерьер в глянце и монохроме

Заказчики попросили сохранить ощущение простора. Сделать это помогли панорамные окна и светлые поверхности

Екатерина Перминова
Екатерина Перминова

13 февр. 2020

Обновлено 24 февр. 2020

Постоянный автор HouzzRu, журналист

Houzz тур: Воздушный интерьер в глянце и монохроме
О проекте
Место: Москва, ЖК «Наследие»
Размер: 132 кв.м
Кто здесь живет: семейная пара с двумя детьми, девочка-подросток и мальчик 7 лет
Дизайнер проекта: Виолетта Никитина, Катерина Полякова, бюро INSDESIGN
Фото: Константин Малюта

Квартира находится недалеко от парка Сокольники в современном жилом комплексе. Основное достоинство пространства — панорамные окна во всех комнатах: благодаря переменной этажности корпусов, дневному свету всегда есть доступ в помещение. Среди плюсов квартиры и высокие потолки. Сохранить легкость и простор в интерьерах — главная просьба владельцев, адресованная дизайнерам.
Houzz тур: Воздушный интерьер в глянце и монохроме
Houzz тур: Воздушный интерьер в глянце и монохроме
Кушетка и ковер Scanddyy; диван Wellige; столики и пуф l’appartement; торшер ИКЕА

Жилье предназначено для семейной пары с двумя детьми. Они обратились в бюро INSDESIGN с четкими пожеланиями: свободная и воздушная зона кухни-гостиной, две отдельные детские комнаты и спальня родителей со своим санузлом.

«Мне сразу понравились пожелания по планировке, — рассказывает Виолетта Никитина. — Основной задумкой заказчиков было максимальное пространство».
Houzz тур: Воздушный интерьер в глянце и монохроме
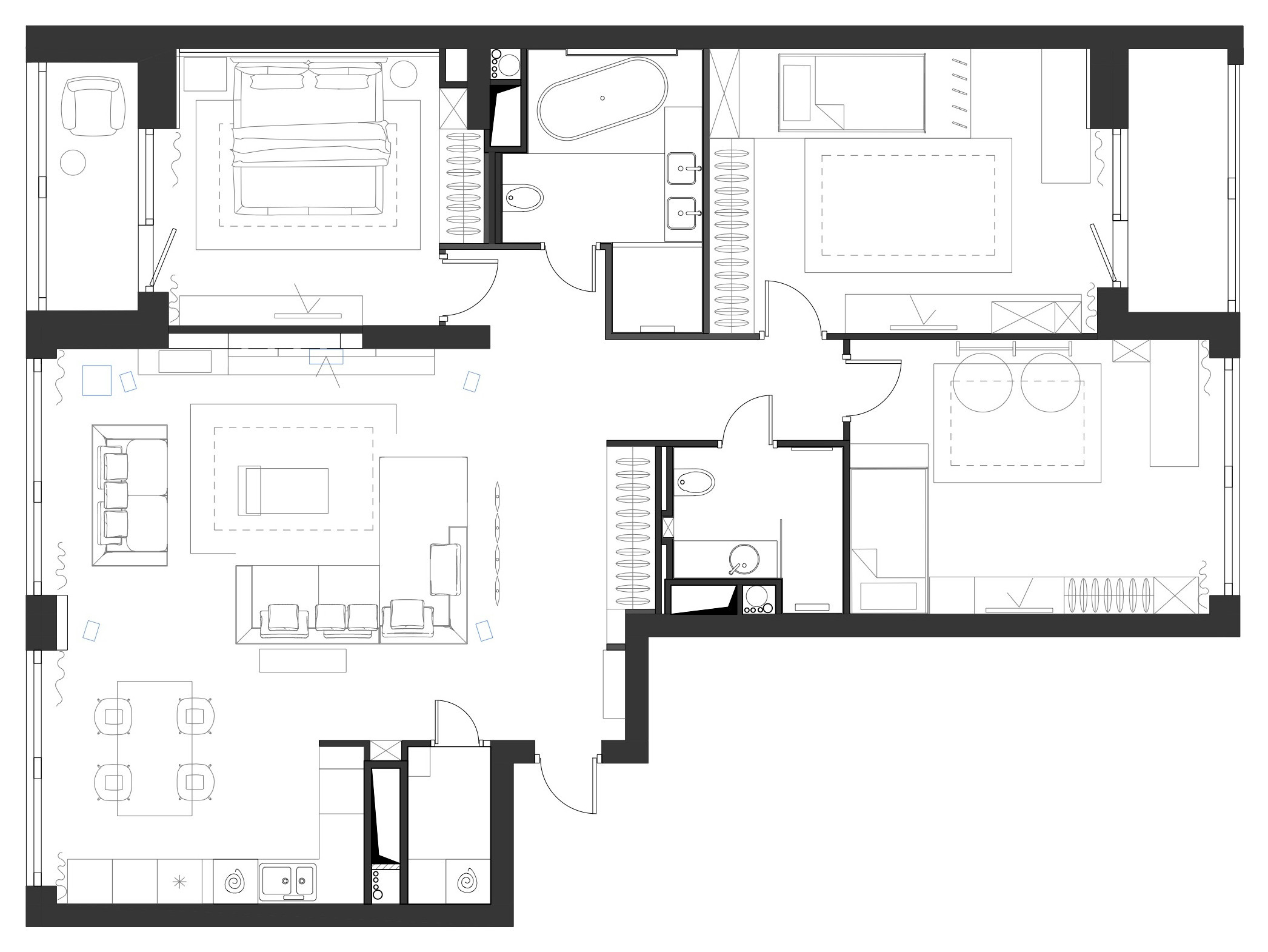
Планировка квартиры

Планировка квартире досталась от застройщика, предусмотревшего удачный вариант с размещением мокрых зон по одной линии. Поэтому при проектировании не возникло никаких проблем, перепланировка не потребовалась.

———————————————
В ВАШЕМ ГОРОДЕ…
Через Houzz можно нанять дизайнера или архитектора в любом городе и стране. Начать поиск специалиста
———————————————
Houzz тур: Воздушный интерьер в глянце и монохроме
Houzz тур: Воздушный интерьер в глянце и монохроме
КУХНЯ-ГОСТИНАЯ
Основную часть квартиры оставили без стен и перегородок. Вошедший сразу попадает в пространство без прихожей и гардеробной. Здесь только шкаф и поворотные панели, которые отделяют входную зону от гостиной.
Houzz тур: Воздушный интерьер в глянце и монохроме
«Для ощущения воздушности мы старались выбирать предметы, которые не загромождают пространство. Сначала появился стеклянный стол, а чуть позже — кушетка у окна на изящных ножках», — рассказывает Виолетта Никитина.

На кухне ограничились нижним ярусом шкафов под рабочей поверхностью, дополнив их колоннами с техникой и системами хранения. Фартук облицевали гипсовыми 3D-панелями. На пол положили
керамогранит Flaviker Supreme.
Houzz тур: Воздушный интерьер в глянце и монохроме
Стол iModern; люстра XL Bubble Chandeliers; ваза и текстиль Zara home

Простору способствует и светлая палитра. В отделке гостиной использовали белые глянцевые поверхности — это было одно из пожеланий заказчиков. Чтобы органично вписать глянец в интерьер, панели сочетали с теплыми оттенками и матовыми поверхностями.
Houzz тур: Воздушный интерьер в глянце и монохроме
Консоль Moon stores; корпусная мебель и панели «Триана»

Для графичности дизайнеры добавили в интерьеры черный глянец, мебель нейтрального серого цвета и немного желтых акцентов.
Houzz тур: Воздушный интерьер в глянце и монохроме
Houzz тур: Воздушный интерьер в глянце и монохроме
Корпусная мебель «Триана»; столик l’appartement; настольная лампа Luceo; декор Moon stores; текстиль Zara home

СПАЛЬНЯ
Для отделки спальни выбрали крупноформатный керамогранит, а также гипсовые 3D-панели.
Кровать с мягким изголовьем вдоль всей стены сделана на заказ по индивидуальным чертежам в мастерской «Овал».
Houzz тур: Воздушный интерьер в глянце и монохроме
«Климат в спальне, как и во всей квартире, обеспечивают сложные инженерные системы: приточно-вытяжная и конвекторы, встроенные в пол», — поясняет дизайнер.
Houzz тур: Воздушный интерьер в глянце и монохроме
ДЕТСКАЯ МАЛЬЧИКА
Для комнаты сына хозяев изготовили конструкцию, включающую двухуровневую кровать и системы хранения.

Сейчас ребенок учится в начальной школе, поэтому родители просили сделать комнату, соответствующую возрасту — с кроватью-домиком, где на втором уровне находится место для игр. Через 57 лет, когда мальчик повзрослеет, интерьер и функционал комнаты изменят.
Houzz тур: Воздушный интерьер в глянце и монохроме
Корпусная мебель «Триана»; мягкие панели выполнены по эскизам в мастерской «Овал»; настольная лампа l’appartement; декор Moon stores; текстиль Zara home

У окна организовали рабочее место. Отдельная тумба для тетрадей и учебников не потребовалась — все хранится во встроенных вдоль стены ящиках. Светлый интерьер разбавили ярким акцентом — мягкими панелями глубокого синего цвета, расположенными на стене за кроватью.
Houzz тур: Воздушный интерьер в глянце и монохроме
Houzz тур: Воздушный интерьер в глянце и монохроме
ДЕТСКАЯ ДЕВОЧКИ
В комнате дочери-подростка акцентным стал яркий желтый цвет. В качестве спального места выбрали кровать-подиум с дополнительным местом. Если на ночь остаются подруги, можно выдвинуть нижнюю часть подиума. Стену за кроватью оформили мягкими панелями, чтобы и сидеть, болтая с подружками, было удобнее.

Около окна оборудовали рабочее место со столом-консолью — он компактнее, чем отдельно стоящая конструкция. Между спальной и учебной зонами поставили поворотные панели. «Мы очень долго искали хорошее решение для поворотных панелей. Как и в гостиной, они выполняют функцию визуального разделения зон, — рассказывает Виолетта. — В детской девочки мы использовали подобные механизмы, но панели немного меньшего размера».
Houzz тур: Воздушный интерьер в глянце и монохроме
ДЕТСКИЙ САНУЗЕЛ
Самым ярким помещением в квартире стал детский санузел. Плитку в душевой кабине и фасады подвесной тумбы под раковину выбрали в желтом цвете. Пол и стены облицевали светлым мрамором с характерным рисунком.
Houzz тур: Воздушный интерьер в глянце и монохроме
Houzz тур: Воздушный интерьер в глянце и монохроме
Сантехника Laufen; смесители и аксессуары Grohe; ванна и напольный смеситель Ravak

ХОЗЯЙСКАЯ ВАННАЯ
Санузел родителей достаточно большой. Дизайнер смогла учесть все пожелания и разместить отдельно стоящую ванну и две раковины.
Houzz тур: Воздушный интерьер в глянце и монохроме
Для стиральной машины и хранения бытовых принадлежностей выделили отдельное помещение — кладовую.
__________________________

ОБ АВТОРАХ ПРОЕКТА…
Перейдите на страницу бюро INSDESIGN, чтобы изучить другие работы из портфолио дизайнера

У ВАС ЕСТЬ ДЛЯ НАС ПРОЕКТ…
Загрузите съёмку в свой профиль на Houzz, отправьте ссылку с кратким описанием на editorial@flatica.ru

Для справки: Какие объекты мы публикуем

Комментарии 17

ну шикарный проект, что уж там говорить... одни поворотные панели чего стоят только!)
Просторно 📐
Не впечатлило, жилой офис, безликий.

Оставьте комментарий

Читать похожие статьи