logo

Houzz тур: Тот случай, когда минимализм синоним роскоши

Синий гранит, именная гитара B.B. King и коллекция самоваров — в этом проекте есть на что посмотреть

Наталия Тверитинова
Наталия Тверитинова

24 мая 2017

Обновлено 3 янв. 2018

Постоянный автор Houzz, интерьерный и архитектурный журналист.

Houzz тур: Тот случай, когда минимализм синоним роскошиAlexey Nikolashin
О проекте: Место: Москва, ЖК « Баркли парк » Год: 2016 Размер: 260 кв.м Кто здесь живет: молодая семья с двумя детьми Авторы проекта: архитектурное бюро SL Project ; руководитель проекта Алексей Николашин, архитектор Екатерина Емельянова Фото: Михаил Степанов Архитекторы Алексей Николашин и Екатерина Емельянова объединили две квартиры, купленные заказчиками, в одну большую. В гостиной главной деталью стала стена, облицованная синим бразильским гранитом. Это эффектный декоративный прием и цветовой акцент. Но стена появилась не только для красоты — вместе с раздвижными стеклянными перегородками она отделяет кухню от гостиной.
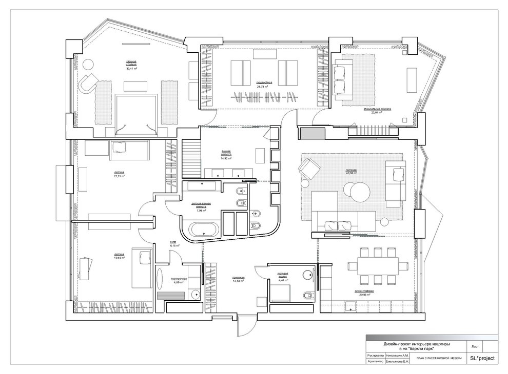
План квартиры Квартиру купили со свободной планировкой, где кроме пилонов и стояков ничего не было. Здесь организовали одно общее и два приватных пространства: детское с двумя комнатами и санузлом и взрослое — со спальней, гардеробной, ванной комнатой и музыкальным кабинетом.
Houzz тур: Тот случай, когда минимализм синоним роскошиAlexey Nikolashin
В систему хранения с лаконичными фасадами, занимающими всю стену, встроили телевизор. За панелями спрятали оборудование для домашнего кинотеатра и монолитные пилоны — в этих местах фасады глухие.
Houzz тур: Тот случай, когда минимализм синоним роскошиAlexey Nikolashin
На фото: кресло Minotti Между панелями выполнили рассечки из латуни. Они появились в продолжение « латунной » темы, отраженной в коллекции самоваров — ее с увлечением собирает хозяин. «Большая часть коллекции находится на даче, а здесь выставили лучшие самовары. В стене, плавно переходящей из прихожей в гостиную, для них сделали ниши. Самовары и задали мотив “латунь” в интерьере », — рассказывает Алексей Николашин.
Houzz тур: Тот случай, когда минимализм синоним роскошиAlexey Nikolashin
На фото: плинтусы в квартире сделаны из черного мрамора « На картине, созданной в 3D формате, японская девочка — будто живая. Она поворачивает голову в вашу сторону, провожая взглядом, когда вы движетесь. Хозяева говорят, что это приятно », — делится Алексей.
Houzz тур: Тот случай, когда минимализм синоним роскошиAlexey Nikolashin
Черный мрамор, кроме плинтусов, появляется в нишах с самоварами, на портале двери между гостиной и приватной частью квартиры, а также на основании шкафа, по низу которого проходит каменная полочка.
Houzz тур: Тот случай, когда минимализм синоним роскошиAlexey Nikolashin
Разнообразие фактур — одна из особенностей проекта, где холодные материалы (камень, глянец, стекло) уравновешены теплыми (деревом и текстилем). Стены в общем пространстве оформили деревянными панелями из ореха и текстильными обоями бежево-оливкового оттенка.
Houzz тур: Тот случай, когда минимализм синоним роскошиAlexey Nikolashin
На фото: диваны Flexform Текстиль присутствует не только на своих привычных местах: ковер, мягкую мебель, подушки и шторы дополняет столешница журнального стола, обитая прочной тканью с пропиткой.
Houzz тур: Тот случай, когда минимализм синоним роскошиAlexey Nikolashin
Главное достоинство объединенной квартиры — панорамное остекление с трех сторон.
Houzz тур: Тот случай, когда минимализм синоним роскошиAlexey Nikolashin
На фото: золотистый журнальный столик Minotti Проблема и решение: Двухуровневые потолки сделаны неслучайно. В пространстве между верхним и нижним уровнями спрятаны коммуникации: системы вентиляции и кондиционирования.
Houzz тур: Тот случай, когда минимализм синоним роскошиAlexey Nikolashin
На фото: перегородка Rimadesio Из кухни есть выход в прихожую. В пенале внутри стены прячется стеклянная перегородка, которая, выезжая, закрывает кухню от прихожей.
Houzz тур: Тот случай, когда минимализм синоним роскошиAlexey Nikolashin
На фото: кухня, стол и стулья: Poliform/Varenna Строгую минималистичную кухню заказали на итальянской фабрике. Фартук из искусственного камня сделан в комплекте с кухней.
Houzz тур: Тот случай, когда минимализм синоним роскошиAlexey Nikolashin
На фото: слева — входная дверь в родительскую часть В блок для родителей можно попасть через гостиную. Проходная гардеробная соединяет все помещения взрослой части квартиры: санузел, музыкальный кабинет и спальню с окнами по двум стенам. Между ванной комнатой и гардеробной разместился стеклянный шкаф. Одежда в нем лежит неплотно — чтобы не мешать дневному свету попадать в ванную комнату.
Houzz тур: Тот случай, когда минимализм синоним роскошиAlexey Nikolashin
Рядом с окном стоят два комода, на которых удобно складывать одежду. По сторонам от входа в родительский блок выстроились встроенные шкафы.
Houzz тур: Тот случай, когда минимализм синоним роскошиAlexey Nikolashin
На фото: кровать и кресло Minotti В главной спальне стену за изголовьем выделили порталом из черного мрамора. Внутри установили мягкие панели из ткани с мелким рисунком и с разбивкой , как у шоколадки.
Houzz тур: Тот случай, когда минимализм синоним роскошиAlexey Nikolashin
Остальные стены спальни оформили панелями из ореха и шелковыми обоями. Рисунок ткани в нише за кроватью и на покрывале перекликается с орнаментом на комодах, напоминающим прожилки листа. Двери в квартире отделаны серо-коричневым шпоном дуба, а вместо наличников их украшают порталы из черного мрамора. «Мы специально выбрали такой темный д уб — сильно затененный и заморенный — чтобы он не спорил с орехом », — поясняет Алексей.
Houzz тур: Тот случай, когда минимализм синоним роскошиAlexey Nikolashin
На фото: торшер и лампы Bloom, Armani Casa Оказывается, теплыми бывают не только дерево и текстиль, но и камень. Дело в том, что настольная лампа светится двойным светом, исходящим от абажура и от основания из оникса. Светло-желтый оникс, подсвеченный изнутри, дает ровное красивое свечение. Основание и абажур включаются отдельно. Отражающие светодиодные ленты завершают композицию с лампами. Прорисовывая контур ниши, они добавляют графики и контраста в зону с кроватью, делают ее более эффектной, значительной и торжественной.
Houzz тур: Тот случай, когда минимализм синоним роскошиAlexey Nikolashin
По потолку гардеробной проходят деревянные рейки, соединяющие спальню и музыкальный кабинет. В музыкальной комнате позаботились о хорошей акустике: стены обшили рейками из массива ореха, а под ними положили дополнительную звукоизоляцию. Хозяин квартиры любит рок и блюз, постоянно слушает музыку на виниловом проигрывателе.
Houzz тур: Тот случай, когда минимализм синоним роскошиAlexey Nikolashin
Черная гитара в центре — именная, с автографом Би Би Кинга. Модель ES-345 B.B. King Lucille была разработана Би Би Кингом и сделана компанией Gibson. Еще одна из знаменитых гитар, висящих на стене, по словам Алексея Николашина, принадлежала AC/DС.
Houzz тур: Тот случай, когда минимализм синоним роскошиAlexey Nikolashin
На фото: в главном санузле в зеркале отражается окно гардеробной, свет из которого проникает сюда через раздвижную стеклянную перегородку
Houzz тур: Тот случай, когда минимализм синоним роскошиAlexey Nikolashin
Хозяева отказались от ванны в пользу душевой кабины. Для оформления ванной комнаты использовали дерево и натуральный камень. Пол и столешница отделаны белым каррарским мрамором. Душевую выложили синим гранитом, который сочетается с белым мрамором. Разводы на мраморе помогают связать его с гранитом.
Houzz тур: Тот случай, когда минимализм синоним роскошиAlexey Nikolashin
Идея и решение: Гранитом отделаны и ниши с полочками для аксессуаров. Крайняя слева деревянная панель между нишами — не отделка, а система хранения. А дальше прячется еще одна интересная задумка: остальные деревянные панели — задние стенки ниш с самоварами в гостиной. Дело в том, что вместо межкомнатной стены, разделяющей санузел и гостиную, архитекторы спроектировали зигзагообразную перегородку, образующую ниши в двух помещениях. Перегородка изгибается, отдавая необходимый объем то ванной, то гостиной. Это хорошо видно на плане квартиры.
Houzz тур: Тот случай, когда минимализм синоним роскошиAlexey Nikolashin
В комнате девочки стены окрашены в сиренево-розовый оттенок. Девичьему характеру комнаты соответствуют зеркало в форме цветка и люстра в форме ветки.
Houzz тур: Тот случай, когда минимализм синоним роскошиAlexey Nikolashin
На фото: модульная мебель Lago В детских мебель набиралась одинаковым способом: как конструктор, из разных модулей.
Houzz тур: Тот случай, когда минимализм синоним роскошиAlexey Nikolashin
Минималистские, простые по форме детали и предметы мебели складывались по принципу целесообразности, удобства и логики использования.
Houzz тур: Тот случай, когда минимализм синоним роскошиAlexey Nikolashin
В комнате мальчика стены покрасили в серо-голубой цвет. Люстра, напоминающая конструктор, хорошо вписалась в комнату подростка.
Houzz тур: Тот случай, когда минимализм синоним роскошиAlexey Nikolashin
Полосатые фасады шкафа сделаны из крашеного стекла. В комнате мальчика — сине-бело-голубые полоски, у девочки — другие цветовые сочетания.
Houzz тур: Тот случай, когда минимализм синоним роскошиAlexey Nikolashin
В детском санузле пол выложен белым каррарским мрамором. Им же отделан бортик ванной. Стены оформили мелкой белой мозаикой, а за унитазами выделили синей. «Решили сделать яркий веселый акцент, подчеркнуть, что это детское помещение», — объясняет Алексей Николашин.
СМОТРИТЕ ТАКЖЕ… Другие проекты тех же авторов — в портфолио А рхитектурного бюро SL Project У ВАС ЕСТЬ ДЛЯ НАС ПРОЕКТ… Загрузите съёмку в свой профиль на Houzz, отправьте ссылку с кратким описанием на editorial@flatica.ru Для справки: Какие объекты мы публикуем

Комментарии 35

самовары, конечно, смотрятся. показали бы дверь с наличниками из камня чёрного, как это может выглядеть
чёрный цвет у изголовья или серый мне очень не нравиться, он давит на психику. возможно это моё восприятие...
высота квартиры из-за подвесных потолков стала маленькая, а низкие потолки местами давят ...

Оставьте комментарий

Читать похожие статьи