logo

Houzz тур: Таунхаус со стенами, как в мазанке

«Кран с водичкой» вывели прямо к изголовью кровати. Зачем?

Евгения Назарова
Евгения Назарова

26 сент. 2018

Обновлено 13 нояб. 2018

Постоянный автор Houzz, интерьерный журналист

По словам Александра Малинина и Анастасии Шевелевой, после распада СССР люди почти перестали что-то мастерить, конструировать и чинить. Но в последние несколько лет ситуацию меняют иностранные DIY-блоги, журналы и видеоинструкции, показывающие, как делать оригинальную мебель и предметы декора из старых вещей, причём без особых трат. В России этот тренд только набирает обороты, но авторов этого интерьера уже вдохновил на эксперимент. Александр и Анастасия решили проверить, что можно сделать в интерьере своими руками.
О проекте Место: Санкт-Петербург Размер: 67 кв.м Кто здесь живёт: молодая творческая пара с кошкой Авторы проекта: Александр Малинин, Анастасия Шевелева, INT2architecture Фото: INT2architecture Таунхаус сдавался без разводки инженерных коммуникаций и без отделки, так что фронт работ оказался широким. Специалистам доверили инженерные работы и сварку металлических элементов. Всё остальное — от покраски стен до изготовления мебели — архитекторы сделали сами.
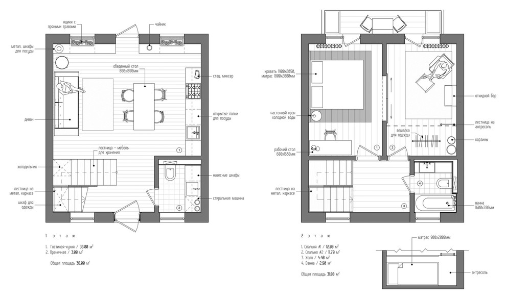
Планировка первого и второго этажей Все перегородки внутри квартиры — ненесущие. Их демонтаж позволил присоединить к кухне-гостиной прихожую и открыть лестницу: она стала основным композиционным элементом зала. Для второго этажа придумали интересный сценарий зонирования. Между двумя спальнями установили раздвижные двери, которые позволяют трансформировать пространство в зависимости от задач. Сейчас вторая спальня с антресольным этажом играет роль лаунж-зоны, а в будущем её можно превратить в детскую.
ПЕРВЫЙ ЭТАЖ Стены даже не выравнивали: нанесли кельмой слой штукатурки толщиной 0,5–1,5 см. К идеально гладкой поверхности никто не стремился: прообразом для отделки стен стали мазанки — традиционные глиняные дома с неровными белеными стенками, распространенные на юге России и Украины. Затем штукатурку покрасили белой краской. Преимущество такой технологии: штукатурку легко восстановить локально, если на стене появятся трещины или сколы. Потолок оставили в бетоне, только зачистили и покрыли лаком. Проводку для спотов сделали открытой: использовали гибкий кабель в серой текстильной оплетке. Его закрепили к потолку маленькими медными кольцами-шурупами.
Чистовой пол сделали из натурального дерева. Правда, это не паркет — его сочли слишком дорогим для экспериментального проекта. Да и укладывать паркет без опыта не так просто. Альтернативой стала шпунтованная доска из лиственницы, положенная на лаги и покрытая маслом с твердым воском. Это экологически чистая и долговечная древесина с красивой текстурой. Шестиметровые доски уложили без стыковки по длине от стены до стены. А чтобы полы не скрипели, между лагами и доской проложили слой рубероида. За снижение уровня шума и дополнительную теплоизоляцию отвечают плиты каменной ваты (ими заполнили пространство между лагами).
Стулья в обеденной части — винтажные, разные по форме и происхождению. Те, что с кожаными сиденьями — образцы европейского mid-century. Соседние — чешские стулья — взяли в интернет-магазине за смешную цену. На чём сэкономили: Кухню заказали в ИКЕА, но перекрасили дверцы и ручки в темно-зеленый цвет на стороннем производстве.
Многоярусные полочки для специй расположены в зоне кухни, на внешней стене блока, в который заключили санузел. Его выделили меловой краской, на которой можно рисовать и оставлять заметки.
Лестницу изготавливали на месте, прямо в таунхаусе, из цельноламельных сосновых мебельных щитов. Предварительно их распилили на производстве на нужные размеры, но перед сборкой все равно пришлось немного подгонять, шлифовать, покрывать мебельным маслом. Идея и решение: На кухне в зоне видимости нет холодильника. Его встроили в крайнюю правую секцию под лестницей, чтобы не терять место. Рядом расположили шкаф для одежды, а в мелких отделениях — бытовую технику и посуду.
В таунхаусе много предметов из мебельного щита: лестница, диван, кровать, обеденный стол, столешницы и фартуки в кухне и прачечной, полки, бар и рабочий стол. А ещё раздвижные двери, подоконники, балконные пороги и декоративная рама окна в ванной. Диван дополнили мягкими подушками, заказанными отдельно в мебельной мастерской. В подиуме под мягкой частью скрываются три выдвижных ящика, каждый с собственной крышкой. Ящики решают сразу две задачи: благодаря крышкам они могут использоваться как кофейные столики, внутри же хранятся постельное белье, документы и мелкая техника.
На фото: диван с выдвинутым ящиком
Немало изделий и из металла: в частности, шкафы вдоль окон с сетчатыми фасадами. Их сварили и покрасили по эскизам архитекторов в дружественной автомастерской неподалеку — за символическую плату . Сетки маскируют радиаторы отопления, а полки используются для хранения посуды.
ВТОРОЙ ЭТАЖ Здесь хозяевам хотелось создать просторную спальню с возможностью отделить при необходимости гостевую зону или детскую. Поэтому в обе части спальни ведут двери из холла, но разделяет их широкий проём с раздвижными перегородками.
Рабочий стол-верстак, кровать с высоким и широким изголовьем и раздвижную перегородку сделали на месте, как и всю остальную мебель в квартире.
Идея и решение: Многие люди просыпаются по ночам — попить водички. Авторы проекта решили облегчить заказчикам жизнь и подвели рабочий кран прямо к изголовью. Вместо прикроватной тумбы используется оцинкованное ведро с крышкой, привезенное из Америки.
Дополнительное спальное место устроили на антресольном этаже, причём собирали его тоже вручную. В будущем эту часть спальни можно переделать в отдельную детскую со свободной зоной для игр.
Антресоль собрана из сосновых балок и фанеры, покрашена вместе с потолком и стенами в белый цвет. Ограждение сварено из металла и надежно прикреплено к несущей железобетонной балке дома, чтобы снять нагрузку со стен. Под спальным местом обустроили открытую гардеробную.
У кресла в лаунж-зоне сложная биография: его спасли из рук дворников в центре Петербурга, перекрасили и перетянули брезентовой тканью. На пол уложили турецкий килим 1970-х годов. Рядом с креслом — книжный шкаф-бар, в котором хранятся стаканы и напитки. Его тоже собрали на месте.
Плитка Vitra Arkitekt color; в анна Kaldewei; у нитазы и кнопки Roca; смесители, излив для ванны Vitra Juno ВАННАЯ Из-за разводки коммуникаций ванна как бы заходит в нишу: эту особенность использовали для того, чтобы поставить в интерьере контрастный акцент. Доводить выступ до самого потолка не стали: теперь под крышей живут горшки с растениями.
ГОСТЕВОЙ САНУЗЕЛ Функционал прачечной добавили санузлу первого этажа. Помещение оформили штукатуркой в сочетании с покраской и напольной керамической плиткой. ОБ АВТОРЕ ПРОЕКТА… Перейдите на страницу архитекторов Александра Малинина и Анастасии Шевелевой, INT2architecture , чтобы изучить другие ра боты из их портфолио __________________________ В ВАШЕМ ГОРОДЕ… Найдите архитектора на Houzz в вашем городе — закажите собственный проект У ВАС ЕСТЬ ДЛЯ НАС ПРОЕКТ… Загрузите съёмку в свой профиль на Houzz, отправьте ссылку с кратким описанием на editorial@flatica.ru

Комментарии 28

Получилось шедеврально, многие элементы заимствую!
Всё супер люблю такие проекты. Ещё раз убеждаюсь, что бы что то дельное получилось "художник должен быть голодным"
Как в келье

Оставьте комментарий

Читать похожие статьи