logo

Houzz тур: Вилла в подмосковном Расторгуеве

Залог успеха этого проекта — в гармонии с природой за окном

Наталия Тверитинова
Наталия Тверитинова

10 апр. 2016

Обновлено 28 мая 2016

Постоянный автор Houzz, интерьерный и архитектурный журналист.

Когда заказчик, для которого архитектурная мастерская «Гикало Купцов Архитекторы» некоторое время назад выполнила проект бизнес-центра, всерьез задумался о том, чтобы переехать из города в Подмосковье и построить загородный дом, то за проектом вновь обратился к архитекторам этого бюро. Участок находится в живописном месте в окружении высоких сосен и берез, в старом дачном поселке. При этом клиенту хотелось ощущения прибалтийского взморья с европейским домом.

Архитекторы предложили авторское прочтение заданной темы, обусловленное почерком бюро и наличием конкретной природы за окном. «Виллу в Расторгуеве мы проектировали с нуля, поэтому ничто не мешало нам выдержать один стиль применительно ко всему объекту. Реализация в точности соответствует проекту. Заказчик остался очень доволен результатом, и с радостью согласился опубликовать фотографии своего нового дома», — рассказывают авторы проекта.
Houzz тур: Вилла в подмосковном Расторгуеве
О проекте
Место:
Московская область, поселок Расторгуево
Год: 2015
Размер:
Частный дом площадью 360 кв.м; участок 12 соток
Кто здесь живет:
Семья с двумя детьми
Автор проекта:
Архитектурное бюро «Гикало Купцов Архитекторы», архитекторы Сергей Гикало, Александр Купцов, Антон Федулов
Фото:
Илья Иванов

Участок имеет трапециевидную форму, ровный рельеф, ограниченный с северной стороны улицей, а с южной, западной и восточной — частными домами. Проект выполнили в единстве с природой, к которой отнеслись удивительно бережно, сохранив на участке все деревья: березы, сосны и … один клен. С этой целью для дома выбрали место ближе к северной границе участка. Вилла позиционирована на участке таким образом, чтобы не пострадала корневая система ни одного дерева. На расположение дома повлияла также форма участка и желание сделать его приватную зону самой большой. Рельеф участка эффектно подчеркивается аккуратным английским газоном.
Houzz тур: Вилла в подмосковном Расторгуеве
Архитектор Александр, один из авторов проекта, назвал важной особенностью виллы ее скульптурность, а работу архитекторов в этом случае своеобразной лепкой объемов. «Дом состоит из трех смежных объемов в соответствии с их функциями два жилых и гараж с одновременной сдвижкой их относительно друг друга. Такое решение позволяет зрительно уменьшить и облегчить дом, соотнеся его с размером и формой участка, и создать характерный, запоминающийся силуэт», — говорит Александр.

Два жилых блока перекрываются простыми односкатными кровлями, покрытыми цементно-песчаной черепицей. Благодаря этим сдвижкам объемов образуются три внутренних дворика с входами в дом. Первый внутренний дворик находится в центре дома и создает нишу перед главным входом.

Черепица: A-Tiilikate Oy
Houzz тур: Вилла в подмосковном Расторгуеве
Облицовочный кирпич: Nelissen Bricks; термодревесина: Thermory

Фасад облицован бельгийским кирпичом ручной формовки и эстонской термодревесиной из сосны, обработанной маслом. Мощение регулярной дорожки выполнено из клинкерного кирпича.
Houzz тур: Вилла в подмосковном Расторгуеве
Ограждения, забор с откатными воротами: индивидуальное изготовление по чертежам архитекторов, СИНКРО.ру

Архитекторы спроектировали нетипичный для наших мест забор. Доски из русской лиственницы развернуты относительно плоскости фасада под таким углом, чтобы участок не просматривался с улицы, но вместе с тем сохранилась прозрачность забора. При этом находящиеся на участке владельцы могут видеть улицу. Забор выглядит воздушным и соответствует стилю дома. Верхний срез доски повторяет силуэт дома, что является еще одним замечательным замыслом.
Houzz тур: Вилла в подмосковном Расторгуеве
За жилой частью дома виден гараж. Архитекторы, выполняя пожелание заказчика, помимо двух машиномест внутри, организовали еще два парковочных места снаружи, на въездном пандусе.

По периметру дом огибает дорожка из натурального сланца с нерегулярным заполнением, сквозь который свободно прорастает газонная трава.
Houzz тур: Вилла в подмосковном Расторгуеве
Керамогранит: Apavisa Porcelánico; окна, двери, раздвижные системы: на заказ по чертежам архитекторов, LESKO Žiri, Словения

Цокольная часть фасада облицована керамогранитом. В оконные проемы установлены стеклопакеты в дерево-алюминиевом профиле. С этой целью были выбраны качественные словенские окна. Снаружи оклад окна и раздвижных систем выполнен из алюминия, покрашенного в иссиня-черный цвет. Внутренний оклад окна — из сосны натурального цвета, покрытой бесцветным лаком.
Houzz тур: Вилла в подмосковном Расторгуеве
«Внутренние дворики органичное продолжение интерьера дома», —рассказывает архитектор Сергей. Один из двориков открытая просторная терраса, расположившаяся в углу между двумя жилыми блоками. Из гостиной через большие раздвижные двери можно выйти на деку. Она хороша не только для приема солнечных ванн, но и для приготовления еды на свежем воздухе. Терраса накрыта легкой складной маркизой, создающей приятную тень в жаркую солнечную погоду. Чтобы не мешать расти старой сосне, в настиле из лиственницы предусмотрено круглое отверстие.
Houzz тур: Вилла в подмосковном Расторгуеве
Houzz тур: Вилла в подмосковном Расторгуеве
Справа виден гараж, из которого можно пройти в дом через бойлерную, — помещение, связывающее жилую часть дома и гараж, являющееся своеобразным тамбуром. За объемом гаража владельцы виллы разбили небольшой огород, где с удовольствием выращивают пряные травы, овощи и ягоды.
Houzz тур: Вилла в подмосковном Расторгуеве
Для дома характерно единство экстерьера и интерьера. В решении интерьера архитекторы сделали главный акцент на ощущении воздуха и света, создающимся не только за счет двусветной гостиной, огромных окон в пол, но и скульптурности объемных решений.

Так, над пространством гостиной нависает объем спальни на втором этаже. Авторы проекта поясняют, что гармония достигается противопоставлением осмысленной пустоты и плоскостей стен и перекрытий.
Houzz тур: Вилла в подмосковном Расторгуеве
Первое, что видишь при входе в дом встроенный в несущую стену шкаф. Гардероб в перегородке выполняет сразу несколько функций. Во-первых, это осмысленная преграда, защищающая дом от посторонних взглядов, поскольку с двух сторон от входной двери расположены окна в пол для естественного освещения. Во-вторых, это система хранения, за которой скрывается пространство гостиной.

Сама прихожая имеет минимально необходимый размер, которого достаточно, чтобы избежать ощущения давления. Выразительности прихожей придает подсветка встроенного шкафа и зеркало на одной из стен.

Керамогранит: Casalgrande Padana; двери: Rimadesio
Houzz тур: Вилла в подмосковном Расторгуеве
Houzz тур: Вилла в подмосковном Расторгуеве
Большая гостиная объединена с кухней и столовой. Вдоль несущей стены со встроенным шкафом, разделяющей прихожую и гостиную, располагается диван.

Архитекторы очень аккуратно относятся к тонким решениям узлов, деталей, соединений объемов. Как иллюстрация к вышесказанному узел на фотографии, где сходятся сразу шесть граней. То, что зрительно кажется легко осуществимым, на самом деле, технически сложно реализовать в условиях российской стройки. Но чтобы добиться безошибочного выполнения проектных решений, требующих ювелирной точности, необходим строгий авторский надзор, благодаря которому в этом доме все идеально.

Мебель: Carre, Msoria
Houzz тур: Вилла в подмосковном Расторгуеве
«Интерьер здесь является логическим продолжением общей концепции, во главу которой поставлено единение с природой. Причем с природой не в широком смысле слова, а с той, которая вокруг, за окном. Сдержанный и лаконичный дизайн, натуральные, свойственные нашим широтам материалы, цвета и фактуры. Никакой экзотики. Она бы диссонировала с окружающим пространством. Этот дом про другое. Все материалы для строительства и отделки подобраны с учетом этого принципа, будь то кирпич ручной формовки или дубовая доска для отделки пола и потолка», говорят авторы проекта.
Houzz тур: Вилла в подмосковном Расторгуеве
Особенность дома использование черного цвета в качестве акцентов. Им окрашены все металлические элементы и детали: колонны, перила лестницы, ограждения, швеллеры. Хотя этот черный вовсе не черный, а очень сложный цвет, в котором присутствуют оттенки и мокрого асфальта, и графита, и синего цвета.
Houzz тур: Вилла в подмосковном Расторгуеве
При организации кухни-столовой старались достичь компромисса: между развитой системой хранения и ощущением воздуха и свободы. В результате, дополнительную систему хранения сделали над холодильником side-by-side. Отдельно висящая лаконичная вытяжка совсем не перегружает пространство.

Фасады кухни (как и двери) выполнены из сатинированного стекла. Стена с кухонным фартуком оштукатурена микроцементом антрацитового, иссиня-черного цвета. Для столешницы выбрали натуральный гранит с матовой, вулканизированной поверхностью.

Как и во всем доме, цветовое решение интерьера построено на сочетании теплого дерева и нежного цвета молочной пенки, а также на контрасте белого стекла и главного акцентного цвета.
Houzz тур: Вилла в подмосковном Расторгуеве
Фартук у варочной поверхности сделан из закаленного стекла. При этом у раковины фартука нет вместо него горизонтальное окно с видом в сад и на грядки. Архитектор Александр отметчает, что в минималистичной кухне нужны простейшие геометрические формы, как, например, подвесные светильники-полусферы, расположенные над обеденным столом; прямоугольной формы стол, в дневное время освещаемый сквозь витражное окно с видом на участок; лаконичные по форме и цвету стулья, контрастирующие по цвету со столом и светильниками, но поддерживающие акцентный цвет в интерьере.
Houzz тур: Вилла в подмосковном Расторгуеве
Архитектурная прорисовка деталей отличительная черта проекта. Лаконичный интерьер стал выразительным именно за счет того, что каждая деталь ее форма, пропорции — тщательно продумана и ей отведена роль в формировании пространства.

Свет: полусфера, Linea Light
Houzz тур: Вилла в подмосковном Расторгуеве
Ограждение в двусветном пространстве интересный элемент интерьера. Хотя не менее интересная деталь воздушный зазор между этим ограждением и стеной.
Houzz тур: Вилла в подмосковном Расторгуеве
Архитектор Сергей отвечает на вопрос, зачем нужен этот зазор: «Ограждение лестницы и двусветного пространства даны через “воздух”, чтобы зритель понимал, что есть стена, а что есть ограждение, отделенное от стены. Это работа с архитектурной деталью». Поручень ограждения изготовлен из металлического швеллера, окрашенного в иссиня-черный цвет, с доской из дуба, закрепленной на нем.
Houzz тур: Вилла в подмосковном Расторгуеве
Прямая двухмаршевая лестница ведет на второй этаж. Второй этаж приватный. Узкое длинное ленточное окно дает естественное освещение лестницы. Лестница реализована по чертежам архитекторов российским производителем металлических изделий.
Houzz тур: Вилла в подмосковном Расторгуеве
Интерьер получился светлым и чистым. Сквозь окна разных размеров дом пронизан лучами солнечного света. Здесь нет темных углов не только благодаря естественному освещению, но и многосценарному искусственному.

На стенах развешены светильники Wall в форме треугольников. В темное время суток они выполняют навигационную функцию и светят приглушенным отраженным светом.

Свет: Wall и Buzz, Atelje Lyktan
Houzz тур: Вилла в подмосковном Расторгуеве
Свет в доме делится на технический и объектный. Выбирались редко используемые в России модели светильников, мало представленных на российском рынке европейских по большей части скандинавских производителей. Это не надоевшая и заезженная классика дизайна, не реплики, которые не любят архитекторы.

Для этого дома компания Finex изготовила доску для пола и потолка. Архитекторы объясняют, почему для интерьера они выбрали именно дуб: «Это самая типичная и органичная для средней полосы России порода, дуб имеет красивый древесный рисунок и предсказуемо ведет себя в эксплуатации».
Houzz тур: Вилла в подмосковном Расторгуеве
Технологам Finex удалось добиться того, что доска сохраняет вид непокрытой древесины чистой, нетронутой, без неизбежной желтизны. Дерево в сучках, с разными волокнами и следами браширования все это говорит о натуральности дерева.

Чтобы усилить ощущение естественности, выбрали доску с максимальной шириной плашек и не фиксированной длиной. Конструкцию доски взяли инженерную, поскольку она является более подходящим вариантом для загородного дома с его перепадами температур, поэтому, даже если зимой дом не будет отапливаться, доска на полу и стенах не испортится.

Свет: Ogle, Atelje Lyktan
Houzz тур: Вилла в подмосковном Расторгуеве
Напротив кровати, в главной спальне, располагается витражное окно с выходом на балкон. Это своеобразный «телевизор», в котором хозяева могут наблюдать за красотой окружающих ландшафтов и состоянием природы.

Размер проема производит сильное впечатление 6х2,5 м, вес витража тоже большой более 500 кг. Десять рабочих с помощью лебедки поднимали эту махину на второй этаж. Стена за изголовьем кровати оштукатурена микроцементом. За ней находится большая гардеробная и главный санузел.

Витражное окно: LESKO Žiri
Houzz тур: Вилла в подмосковном Расторгуеве
Еще одна важная особенность дома правильное тактильное ощущение от материалов. На стенах — декоративная штукатурка, она очень прочная, не царапается и не пачкается. Ее цвет не чисто белый, а оттенка молочной пенки. Выбор цвета стен в интерьере был обусловлен светлым тоном рукотворного кирпича на фасаде.

Палитру дополняет цвет дуба на полу и потолке, акцентный цвет на стене за изголовьем, льняные шторы. «К суровости минимализма всегда нужно добавить нежности. Хорошо это сделать с помощью фактуры и цвета материалов. Это такая японская нежность, тактильная, нежность полутонов», говорит архитектор Александр.

Свет: Ogle, Atelje Lyktan
Houzz тур: Вилла в подмосковном Расторгуеве
То что отличает загородный дом от квартиры в городе это непосредственная связь с природой. В этом случае это выход из главного санузла на эксплуатируемую кровлю гаража, где организован солярий, стоят шезлонги и разбит цветник.

Интерьер санузла решен, как и весь дом, в теплых тонах и натуральных материалах. Деревянная мебель в шпоне американского ореха строгой прямоугольной формы парит над полом. Этот прием позволяет насытить пространство воздухом и избавиться от эффекта загроможденности.

Сантехника: Duravit, Hansrgrohe
Houzz тур: Вилла в подмосковном Расторгуеве
Напротив двери на террасу располагается большая душевая. Сдвижные дверцы перегородки выполнены из сатинированного стекла, что позволяет избавиться от следов капель. Стены санузла облицованы керамической плиткой оттенка топленого молока, на полу — крупноразмерный керамогранит.

Сантехника: Duravit, Hansrgrohe; керамическая плитка: Sant’Agostino
Houzz тур: Вилла в подмосковном Расторгуеве
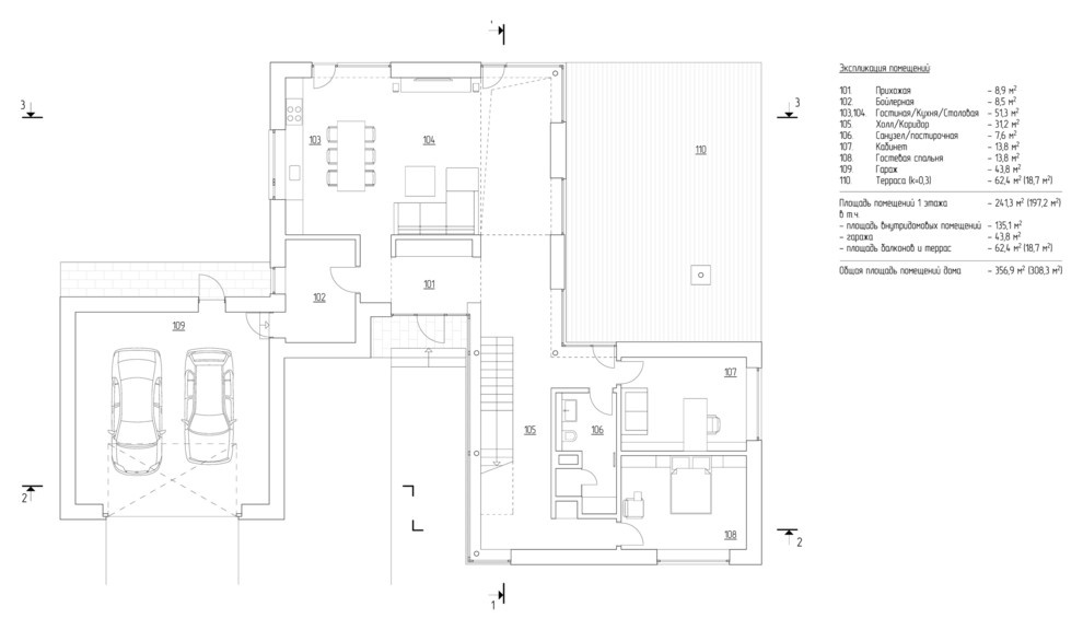
План первого этажа
На первом этаже в центральном объеме разместились: двусветная гостиная с выходом на открытую террасу, прихожая, холл-коридор и бойлерная, во втором жилом объемекабинет, санузел с постирочной и гостевая спальня, в которой останавливается взрослый сын, когда приезжает на каникулы, а в третьем объеме гараж.
Houzz тур: Вилла в подмосковном Расторгуеве
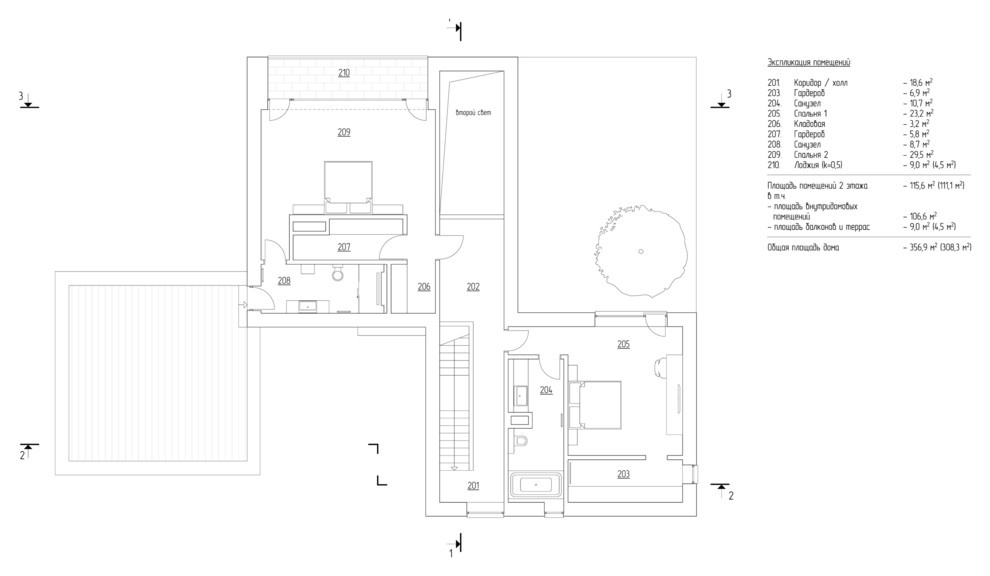
План второго этажа
На втором этаже в первом жилом блоке расположились: большая спальня хозяев с балконом, гардеробной, кладовой и санузел с выходом на крышу гаража, а во втором жилом блокедетская с гардеробной и просторным санузлом. Блоки соединяются коридором-холлом, куда с первого этажа ведет лестница. Холл открывается во второй свет двусветной гостиной.
Houzz тур: Вилла в подмосковном Расторгуеве
ПРЕДЛОЖИТЕ СВОЙ ПРОЕКТ ДЛЯ ПУБЛИКАЦИИ…
Загрузите фотосъемку в свой профиль на Houzz, отправьте ссылку и краткое описание проекта на editorial@flatica.ru. Мы обязательно свяжемся с вами, если примем решение о публикации.

Интерьерные съемки из спецпроекта «Houzz в гостях»

Комментарии 15

Статья написана чудесно! Но фотографии ей не соответствуют. Дом "нежилой", безликий.
Очень понравилось, отличная работа!!!
Eugene V

9 л.

Очень круто! Хотелось бы вторую часть про процесс построки.

Оставьте комментарий

Читать похожие статьи