logo

Houzz тур: Скандинавский интерьер для финна, любящего Петербург

Дизайнеры превратили старую разрушенную коммуналку на Васильевском острове в просторное современное жилье

Екатерина Перминова
Екатерина Перминова

20 дек. 2016

Обновлено 9 апр. 2017

Постоянный автор HouzzRu, журналист

«Когда мы впервые увидели квартиру, это была старая коммуналка на Васильевском острове. За такими домами обычно никто не ухаживает, и ремонт требует финансовых вложений и моральных сил владельцев квартир. Плюс на любой стук во время ремонта сбегаются все соседи. В общем, работать над такой квартирой выходит себе дороже, поэтому мы сразу решили отказаться, — с улыбкой вспоминают Анна Беляевская и Наталия Сморгонская, авторы проекта. — Но познакомившись с клиентом, попали под его очарование. Он родился в Финляндии, вся его семья живет там, но заказчик очень любит Россию, уважает обычаи, учит русский язык. В Санкт-Петербурге он оказался по работе — четыре дня в неделю на протяжении нескольких лет он живет и работает здесь, и только в прошлом году купил собственное жилье, чтобы собирать современную российскую живопись. Видя такую заинтересованность, мы решили взять проект со всеми его трудностями».
Houzz тур: Скандинавский интерьер для финна, любящего Петербург
«Вариантов перепланировки было много, но заказчик выбрал самый смелый путь, — рассказывает Наталия. — Нам повезло, он с благодарностью выслушивал все идеи, попутно задавая уточняющие вопросы. Получив аргументы на все решения о перепланировке, выборе отделки и декора, он тут же принимал их».

О проекте
Место: Санкт-Петербург, 18 линия Васильевского острова
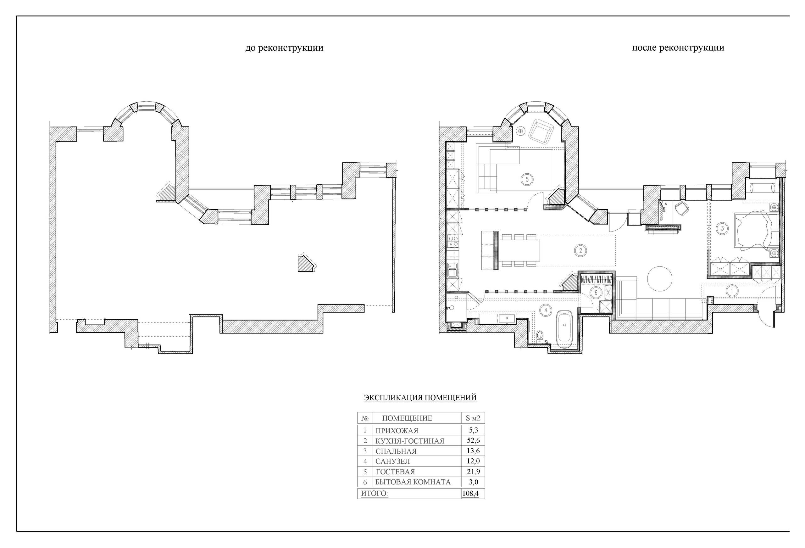
Размер: 108 кв.м; высота потолков — 2,8 м
Авторы проекта: Анна Беляевская, Наталия Сморгонская, бюро «Арт-Стиль»
Интересный факт: Квартира находится в Доходном доме Арнгольдов. Жилое здание в стиле модерн построил архитектор Василий Шауб в 1911-1912 годах. В начале XXI века дом был внесен в список вновь выявленных объектов, представляющих историческую, научную, художественную или иную культурную ценность
Фото: Иван Сорокин
Houzz тур: Скандинавский интерьер для финна, любящего Петербург
За основу дизайнеры выбрали скандинавский стиль — в том виде, каким они его представляют: подобная квартира могла появиться и в центре Санкт-Петербурга, и в центре Хельсинки, и в центре любого другого североевропейского города.
Houzz тур: Скандинавский интерьер для финна, любящего Петербург
Опираясь на пожелания заказчика, Наталия и Анна создали в центре квартиры открытое пространство. Чтобы изменить его вытянутые пропорции, добавить сложной геометрии и разноплановости, в зоне гостиной установили куб, скрывающий хозяйственную комнату и гардеробную.

Благодаря этому выступающему элементу пространство кажется больше. А сам куб, подсвеченный и украшенный картинами, смотрится органично.
Houzz тур: Скандинавский интерьер для финна, любящего Петербург
План квартиры
Houzz тур: Скандинавский интерьер для финна, любящего Петербург
С помощью перегородки в квартире выделили спальню. Однако заказчик ей почти не пользуется, предпочитая открытое пространство всей квартиры. Только когда в доме бывают гости, спальня становится приватным помещением.
Houzz тур: Скандинавский интерьер для финна, любящего Петербург
Houzz тур: Скандинавский интерьер для финна, любящего Петербург
Идея и решение: «С первого взгляда сложно понять, что у вас под ногами, — говорит Наталия. — Это линолеум, а точнее плитки ПВХ. Внешне они очень похожи на доски, даже на ощупь — натуральное дерево. Такая плитка не боится влаги и загрязнений. Под ней мы установили теплый пол, чтобы можно было ходить босиком в любое время года».
Houzz тур: Скандинавский интерьер для финна, любящего Петербург
Почти вся мебель выбрана у итальянских производителей, за исключением кухни — она немецкая. «На кухне заказчик хотел поставить и остров, и стол. Разместить их органично, на расстоянии друг от друга, не получалось из-за ограниченной площади. Тогда мы рискнули сделать их встык, а между ними возвести стенку из натурального мрамора», — поясняет Анна.

В кухне нет ни одного окна, чтобы впустить в комнату естественный свет, поэтому стены между помещениями сделали из матового стекла.
Houzz тур: Скандинавский интерьер для финна, любящего Петербург
Houzz тур: Скандинавский интерьер для финна, любящего Петербург
Главной особенностью квартиры стали старинные печи. «Когда мы увидели печки, сначала подумали убрать их, — рассказывают авторы проекта. — Однако хозяин квартиры пояснил, что в Хельсинки печи с настоящими изразцами очень ценятся — их часто добавляют в современные интерьеры. Надо сказать, что плитка была в ужасном состоянии, к тому же покрыта голубой краской. Реставраторы сняли краску, отчистили и отполировали каждую плиточку и теперь они действительно украшение интерьера».
Houzz тур: Скандинавский интерьер для финна, любящего Петербург
Идея и решение: В противовес светлым стенам и теплому оттенку пола появилась пара ярких акцентов. На кухне фартук и верхний ряд шкафов выполнили в синем цвете, а в гостевой комнате одну из стен выкрасили в бордовый.

Кстати, гостевая — единственная изолированная комната в доме. Это было одним из требований заказчика. Он часто принимает друзей из Финляндии и хотел создать для них комфортную спальню — с камином, эркерным окном и большим диваном. В отсутствие гостей помещение становится библиотекой или малой гостиной.
Houzz тур: Скандинавский интерьер для финна, любящего Петербург
Пожеланием заказчика были скрытые системы хранения. «В гостевой рядом с книжным шкафом есть шкаф для одежды. Шкафы есть и в холле, и в спальне, и даже в хозяйственной комнате появилась небольшая гардеробная», — поясняет Анна.
Houzz тур: Скандинавский интерьер для финна, любящего Петербург
Проблема и решение: «Когда проект подходил к завершению, мы столкнулись с неожиданной проблемой — замена балок и перекрытий превысила лимит планируемого бюджета. А нам еще требовалась коллекция картин, под которую, собственно, квартира и создавалась, — вспоминает Наталия. — Без картин интерьер бы просто не состоялся.

Мы предложили заказчику временное решение. В галерее современного искусства, где планировали приобретать картины, есть услуга — печать постеров с оригинала. Постеры на холсте завершили образ интерьера и стали мотивацией к дальнейшей работе — надеемся, что они постепенно заменяются оригиналами».
Houzz тур: Скандинавский интерьер для финна, любящего Петербург
Houzz тур: Скандинавский интерьер для финна, любящего Петербург
Плитка: Bardelli

Благодаря зеркалам и естественному свету, проникающему через стеклянные части стены, санузел кажется еще больше.

СМОТРИТЕ ТАКЖЕ…
Другие проекты тех же авторов — дизайнеров Анны Беляевской и Наталии Сморгонской, бюро «Арт-Стиль»

У ВАС ЕСТЬ ДЛЯ НАС ПРОЕКТ…
Загрузите съемку в свой профиль на Houzz, отправьте ссылку с кратким описанием на editorial@flatica.ru

Для справки: Какие объекты мы публикуем

Комментарии 56

Мне нравится решение с санузлом,мечтаю о таком.
О чем спор? Ведь оригинально!
ТО Cима Иванова Я бы тоже)) Но хозяин -, увы, не я...

Оставьте комментарий

Читать похожие статьи