logo

Houzz тур: Семейная квартира с видом на Останкинскую башню

Сочетание белого глянца и древесных оттенков задало уютное настроение этой семейной квартире

Евгения Назарова
Евгения Назарова

23 авг. 2015

Обновлено 25 окт. 2015

Постоянный автор Houzz, интерьерный журналист

Молодая семейная пара, нынешние владельцы квартиры на улице Академика Королева, выбрали эту жилплощадь по многим причинам. Во-первых, им всегда нравился район, во-вторых, из окон открывается впечатляющий вид на Останкинскую башню, а в-третьих, здесь их маленькие дочери всегда будут под присмотром, ведь в соседнем доме живут дедушка и бабушка. Супругов не смутило даже исходное состояние квартиры: по словам дизайнера Ирины Кривцовой, которую пригласили для создания проекта, ремонт здесь в последний раз проводили много десятилетий назад.

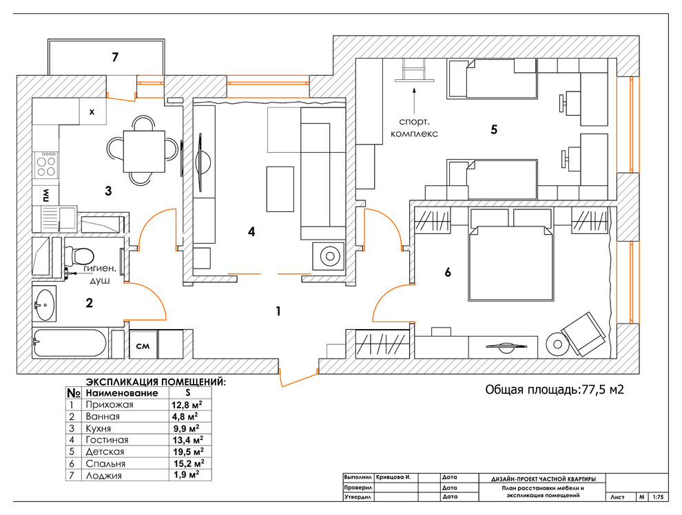
Однако сложнее всего оказалось изменить планировку квартиры: многие стены в типовом панельном доме серии КОПЭ несущие, и обходиться пришлось точечными мерами. «Мы боролись за каждый сантиметр, вспоминает Ирина, и ради удобной планировки незначительно переставляли не несущие перегородки и даже сузили один оконный проем». Результатом остались довольны и заказчики, и их многочисленные гости сейчас Ирина заканчивает ремонт в квартире друзей владельцев, которые попросили «сделать так же уютно».
Houzz тур: Семейная квартира с видом на Останкинскую башнюИрина Кривцова
Денис Комаров
О проекте
Место: Москва, ул. Академика Королева
Размер: 77,5 кв.м
Кто здесь живет: Семья с двумя маленькими дочерьми
Автор проекта: Ирина Кривцова
Интересные факты: Одним из запросов владельцев стал максимально быстрый ремонт — в итоге с отделкой и комплектацией справились за три месяца
Фото: Денис Комаров
Houzz тур: Семейная квартира с видом на Останкинскую башнюИрина Кривцова
Денис Комаров
Houzz тур: Семейная квартира с видом на Останкинскую башнюИрина Кривцова
Денис Комаров
«Заказчики четко проговорили задачу: они хотели видеть свой дом оформленным в нейтральных тонах, с разумными системами хранения и без лишнего декора. Правда, супруга настаивала на спокойных оттенках бежевого, а вот глава семьи был не против ярких акцентов», — рассказывает Ирина.

Ради компромисса для интерьеров выбрали светлую основу, мебель лаконичных очертаний и яркие, хотя и немногочисленные предметы декора, которые при желании легко поменять.

Ирина постаралась привнести в палитру оттенки эко. Спектр основных оттенков очертили уже в интерьере прихожей: лаконичную игру бежевого дополнили белым глянцем в панелях мебели. Чтобы визуально увеличить входную зону, ее отделили сдвижной дверью, а переход напольного покрытия залили жидкой пробкой. По периметру помещений протянулся кант второго потолка — над ним провели ленту подсветки.

Напольная плитка: Importa; паркетная доска: Karelia, «Паркет Холл»; краска для стен: Pratt&Lambert
Houzz тур: Семейная квартира с видом на Останкинскую башнюИрина Кривцова
Денис Комаров
Houzz тур: Семейная квартира с видом на Останкинскую башнюИрина Кривцова
Денис Комаров
Заказчики хотели получить максимальное количество мест для хранения при внешней легкости мебельных конструкций. Так в интерьере появились консоль под телевизором и верхний навесной шкаф. Для большого семейного дивана выбрали обивку из искусственной замши. Диптих над диваном написала дизайнер по текстилю Анна Ермолина, чтобы поддержать геометрический принт на шторах.

Стол, стул, комод: Santalucia; диван: Meta; ткани: Arben
Houzz тур: Семейная квартира с видом на Останкинскую башнюИрина Кривцова
Денис Комаров
Houzz тур: Семейная квартира с видом на Останкинскую башнюИрина Кривцова
Денис Комаров
Интерьер кухни построили на контрасте белых глянцевых фасадов и природных оттенков отделки. Чтобы вписать в отведенное пространство П-образный гарнитур со всеми необходимыми ящиками и элементами техники, Ирине Кривцовой пришлось сузить оконный проем. Не лишая маленькое пространство солнечного света, в этой зоне обошлись без штор: их заменили двухслойным тюлем, за которым скрывается выход на балкон.

Столовую группу Ирина подбирала из соображений визуальной легкости и мобильности: раздвижной стол со стеклянной столешницей и пластиковые стулья легко передвинуть, если на кухне понадобится дополнительное пространство. «Деревянный подвесной светильник дань модному экологическому тренду, а также дизайнерская «изюминка» строгого интерьера», — делится Ирина.
Houzz тур: Семейная квартира с видом на Останкинскую башнюИрина Кривцова
Денис Комаров
Cтолешница на рабочей поверхности переходит в фартук: конструкцию изготовили из искусственного материала старона (Staron). Встроенную вытяжку с металлическим цоколем спрятали за фасадом, чтобы не вносить техническую дисгармонию. При этом металл на цоколе рифмуется с хромироованными деталями отделки обеденного стола, а их холодный блеск компенсируют теплые оттенки отделки.

Итальянские двери Ferrero Legno в кухне и детской комнате украсили зеркальным полотном со стороны коридора: этот прием помог создать эффект большей площади в маленьких проходах.

Кухонный гарнитур: Vismap; обеденный стол, стулья: Friulsedie; деревянный светильник: Penta; технический свет: SLV
Houzz тур: Семейная квартира с видом на Останкинскую башнюИрина Кривцова
Денис Комаров
Houzz тур: Семейная квартира с видом на Останкинскую башнюИрина Кривцова
Денис Комаров
Изголовье кровати в спальне акцентировали обоями. Серебристый растительный орнамент бликует от рефлексов света и даже меняет цвет от серого до розового. Прикроватные тумбочки в спальне заменили высокими стеллажами, а поверху смонтировали закрытые полки: в них можно хранить подушки, одеяла и другие спальные принадлежности.

Поскольку в квартире не было места для отдельной гардеробной, слева и справа, на «мужской» и «женской» половинах установили сделанные на заказ шкафы с зеркальными фасадами. Текстурированные шторы тоже слегка блестят, а фактура ткани привносит ассоциации с бамбуковым плетением.
Houzz тур: Семейная квартира с видом на Останкинскую башнюИрина Кривцова
Денис Комаров
Houzz тур: Семейная квартира с видом на Останкинскую башнюИрина Кривцова
Денис Комаров
Появление туалетного столика продиктовано желанием хозяйки иметь собственный уголок, несмотря на дефицит места в спальне. Он буквально вырастает из вместительного комода; поскольку мебель делали на заказ, здесь использовали уже проверенное в других помещениях сочетание двух текстур белого лака и гладкого ДСП под дуб.

По словам Ирины, владельцы сначала сомневались по поводу кресла в спальне, но дизайнеру удалось убедить их в необходимости этого элемента. Теперь кресло с бархатной обивкой — самое любимое место для отдыха в доме, его дополняет пуф у туалетного столика, обитый той же тканью.

Кровать, пуф и кресло: Piermaria; торшер: Penta; декор: Domalina
Houzz тур: Семейная квартира с видом на Останкинскую башнюИрина Кривцова
Денис Комаров
Houzz тур: Семейная квартира с видом на Останкинскую башнюИрина Кривцова
Денис Комаров
Детская спальня отличается по цвету от общей гаммы квартиры. «Подбирая палитру, мы хотели насытить комнату для девочек цветом, но обойтись без штампов с розовыми элементами отделки», объясняет Ирина. В итоге остановились на фиалковом и персиковом цветах: чтобы создать между ними диалог, цвет стен сочетали с текстилем. Дополнительный яркий акцент поставили оранжевые шторы: они зафиксированы у стен и скрывают стояки отопления.

Чтобы обустроить комфортную зону для учебы, письменные столы установили вплотную к окну. Спортивный уголок, напротив, разместился ближе ко входу.

Мебель: Cia International; ткани: Arben; свет: SLV, Massive
Houzz тур: Семейная квартира с видом на Останкинскую башнюИрина Кривцова
Денис Комаров
Санузел немного расширили за счет коридора, а над унитазом и со стороны ванной смонтировали дополнительные блоки, чтобы обойтись без закрытых систем хранения и разнообразить интерьер этой нейтральной в отделке зоны за счет архитектурного решения.

Пол и стены: плитка Importa /Marmol D; сантехника: Roca;
смесители: Hansgrohe; свет: SLV
Houzz тур: Семейная квартира с видом на Останкинскую башнюИрина Кривцова
Денис Комаров
Стены выложили крупноформатной плиткой с имитацией мрамора: над унитазом она скрывает сантехнический лючок. Черный кант подчеркнул высоту подвесной тумбы Villeroy&Bosch — она очень понравилась заказчикам.

Комментарии 13

ns1955

9 л.

Дизайн соответствует запросам заказчиков, а индивидуальность они сами внесут в интерьер когда будут его обживать. Квартира удобна для жизни.
Позвольте полюбопытствовать кто автор идеи водрузить сабвуфер на тумбу?:)
abkk30

10 л.

А я считаю цветовых фонов хватает в повседневной жизни за порогом квартиры, придя домой хочется чистоты и спокойствия, тишины, стабильности, данный проект как нельзя кстати... А вот на море жить и яркие акценты - само то)))

Оставьте комментарий

Читать похожие статьи