logo

Houzz тур: Родовое гнездо для семьи с тремя сыновьями

Повезло мальчишкам — каждому организовали отдельную спальню, гардеробную и санузел

Екатерина Перминова
Екатерина Перминова

4 дек. 2017

Обновлено 4 июля 2018

Постоянный автор HouzzRu, журналист

«Базовая отделка дома очень спокойная, с использованием натуральных материалов, — рассказывает дизайнер Ольга Черненко. — Но в каждом помещении есть необычные акценты: светильники, мебель, элементы декора, текстиль».
Houzz тур: Родовое гнездо для семьи с тремя сыновьямиОльга Черненко
О проекте
Место: Подмосковье
Год: 2017
Размер: 650 кв.м
Кто здесь живет: семья с тремя сыновьями
Автор проекта: Ольга Черненко, White & Black Design Studio
Фото: Михаил Степанов

Дом сдавался в виде кирпичной коробки, без разводки воды, канализации и иной инженерии, поэтому дизайнер работала не только со стилевым решением, но и с эргономикой и планировкой помещений.
Houzz тур: Родовое гнездо для семьи с тремя сыновьямиЕлена Игумнова
План первого уровня дома
Houzz тур: Родовое гнездо для семьи с тремя сыновьямиОльга Черненко
КУХНЯ-ГОСТИНАЯ
Открытое пространство кухни-гостиной расположено на двух уровнях: шаг в половину этажа делает пространство более камерным. Соединяет все этажи дома легкая, но прочная лестница с деревянными ступенями из массива.
Houzz тур: Родовое гнездо для семьи с тремя сыновьямиЕлена Игумнова
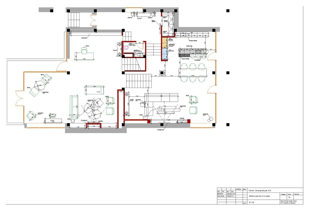
План второго этажа
Houzz тур: Родовое гнездо для семьи с тремя сыновьямиОльга Черненко
Нижний уровень гостиной расположен рядом с кухней. Центр пространства панно из четырех слэбов мрамора Teak Wood в обрамлении из искусственного камня и шпона «Этимое».
Houzz тур: Родовое гнездо для семьи с тремя сыновьямиОльга Черненко
Под мраморным панно установили биокамин. Правда, глава семьи мечтал о дровяном варианте, и это было его единственным пожеланием за все время работы. Настоящий камин сделали на втором уровне.
Houzz тур: Родовое гнездо для семьи с тремя сыновьямиОльга Черненко
МАЛАЯ ГОСТИНАЯ
Эта часть гостиной предназначена для общения с близкими друзьями, поэтому диваны стоят так, чтобы удобно было беседовать. В колонну из белого мрамора вмонтирован телевизор: сверху экран закрыт черным стеклом и в выключенном состоянии почти незаметен. Колонна объединена с дымоходом именно здесь расположен полноценный камин.

«Мы выложили камин из огнеупорного кирпича, а топку сделали из листового железа в сантиметр толщиной. Так весь жар уходит в дымоход, не вредя технике, говорит дизайнер. Колонну с внешней стороны обшили гипсокартоном на металлическом каркасе, а затем облицевали мрамором».
Houzz тур: Родовое гнездо для семьи с тремя сыновьямиОльга Черненко
Здесь же, на втором уровне, расположена рабочее место хозяина, которому не хотелось запираться в четырех стенах. Ольга предложила соединить кабинет с библиотекой. Это скрытая система хранения с потайной дверью, встроенной лестницей и комодом, сделанным на заказ.

CМОТРИТЕ ТАКЖЕ…
Больше фотографий гостиной и кабинета в профиле Ольги Черненко
Houzz тур: Родовое гнездо для семьи с тремя сыновьямиОльга Черненко
Чтобы интерьер смотрелся легким, спрятали не только библиотеку, но и многочисленные люки и решетки канального кондиционирования, приточной вентиляции и встроенного пылесоса, а также гребенки теплых полов, стояки канализации и вентиляции.
Houzz тур: Родовое гнездо для семьи с тремя сыновьямиОльга Черненко
ПРИХОЖАЯ
От помещения к помещению идет игра схожих фактур и форм. Например, в прихожей есть консоль, как в гостиной первого этажа, а отделочные материалы повторяются в соседнем санузле.

Зеркальное панно и стеновая панель со вставками из латуни выполнены по чертежам автора
Houzz тур: Родовое гнездо для семьи с тремя сыновьямиОльга Черненко
ГОСТЕВОЙ САНУЗЕЛ
Он сделан в той же концепции, что и прихожая со стеновой панелью из шпона и вставками латуни.
Houzz тур: Родовое гнездо для семьи с тремя сыновьямиЕлена Игумнова
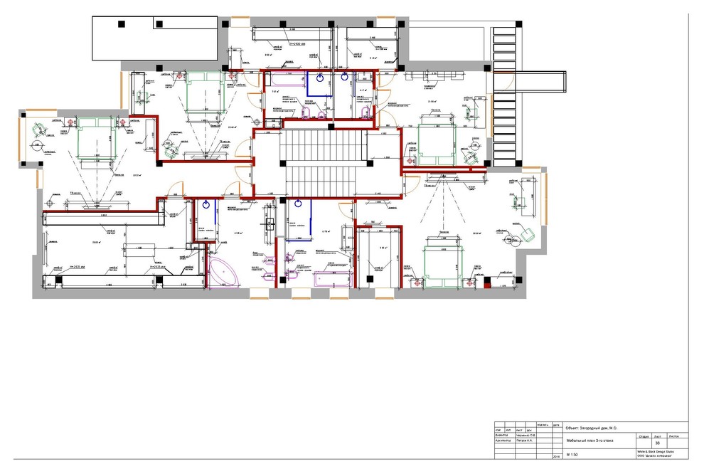
План третьего этажа
Houzz тур: Родовое гнездо для семьи с тремя сыновьямиОльга Черненко
СПАЛЬНЯ СТАРШЕГО СЫНА
Третий и четвертый этажи дома занимают спальни. Во всех комнатах высокие потолки, окна «в пол» и простор. Но для каждого интерьера дизайнер выбрала отличные от других отделку, мебель и декоративные акценты.

«Спальня старшего сына с панно из бело-серого мрамора и дубовыми панелями одна из моих любимых», признается Ольга.
Houzz тур: Родовое гнездо для семьи с тремя сыновьямиОльга Черненко
Даже осветительные приборы вписаны в интерьер по цвету и фактуре. Панно на стене создавалось вручную, по эскизам дизайнера. Слэбы мрамора сначала распиливали, а затем собирали, чтобы создать выраженную асимметрию.
Houzz тур: Родовое гнездо для семьи с тремя сыновьямиОльга Черненко
Мраморное панно, словно круги по воде, расходятся к краям комнаты. Плитка в смежном санузле продолжает идею: гексагоны разлетается к углам душевой кабины. Изюминка коллекции в разной текстуре фрагментов.

Плитка Mutina
Houzz тур: Родовое гнездо для семьи с тремя сыновьямиОльга Черненко
СПАЛЬНЯ МЛАДШЕГО СЫНА
Родителям не хотелось делать комнату слишком детской, с принтами кораблей и машинок на обоях. Но и от излишней взрослости ушли, сохранив яркие краски.
Houzz тур: Родовое гнездо для семьи с тремя сыновьямиОльга Черненко
Владельцу комнаты очень нравятся кровать и стеллаж с раздвижными секциями. Дверцы на нем можно устанавливать по-разному и по желанию менять общий рисунок фасадов.

Санузел выдержан в синих тонах, продолжая цветовую гамму спальни.

Кровать Poliform
Houzz тур: Родовое гнездо для семьи с тремя сыновьямиОльга Черненко
СПАЛЬНЯ СРЕДНЕГО СЫНА
В этой комнате сделали геометрическое панно из шпона, тонированного в разные цвета. Комната находится на верхнем этаже, с конструктивными балками потолка. Балки выглядели слишком массивными, поэтому их решили скрыть, обшив тем же деревом, что и потолок.
Houzz тур: Родовое гнездо для семьи с тремя сыновьямиОльга Черненко
Санузел при спальне выглядит брутальным, его декорировали плиткой под бетон с травлением. Опасаясь слишком мрачного эффекта, заказчица попросила добавить яркое освещение. Тумба из палисандра выполнена под размер небольшой ниши.
Houzz тур: Родовое гнездо для семьи с тремя сыновьямиЕлена Игумнова
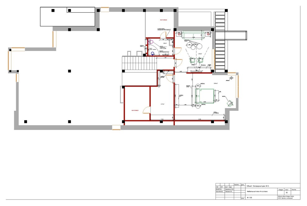
План четвертого этажа
Houzz тур: Родовое гнездо для семьи с тремя сыновьямиОльга Черненко
ГОСТЕВАЯ СПАЛЬНЯ
Балки потолка в этой комнате скрыли за паркетной доской. Вдоль всей стены под скатом находится вместительная система хранения вертикальная тумба. Серые крашеные вставки фасадов разбивают плоскость и зрительно облегчают конструкцию.
Houzz тур: Родовое гнездо для семьи с тремя сыновьямиОльга Черненко
Кровать собрана интересным образом: готовое основание приставили к задней стенке комода. Со стороны двери видно лишь шесть ящиков (мест для хранения никогда не бывает много), и не видно спящего.
Houzz тур: Родовое гнездо для семьи с тремя сыновьямиОльга Черненко
СПАЛЬНЯ РОДИТЕЛЕЙ
Под потолком проходит несущая балка, которую зашили паркетной доской. По характеру и краскам эта комната отличается от остальных интерьеров.

«Хозяйка видела её более женственной, ведь в доме четверо мужчин, и весь интерьер достаточно строгий. Поэтому тут выбрали тонкие бумажные обои с цветочным принтом — они стали отправной точкой палитры. Появились оттенки розового и фуксии, красное кресло, а также зелень», рассказывает Ольга.
Houzz тур: Родовое гнездо для семьи с тремя сыновьямиОльга Черненко
Вся комната наполнена этим контрастным сочетанием: изголовье кровати цвета фуксии с вкраплениями зеленого, ткань для штор выбрали однотонную, но поддержали цветовое решение ярким отворотом.

Единственное, с чем пришлось смириться под скат крыши нельзя установить систему электрокарнизов так, чтобы она работа корректно. Поэтому линию портьер опустили почти на метр, закрыв верхнюю часть окон шторами блэкаут.

ОБ АВТОРЕ ИНТЕРЬЕРА…
Перейдите на личную страницу Ольги Черненко, White & Black Design Studio, чтобы изучить другие работы или заказать дизайнеру собственный проект
В ВАШЕМ ГОРОДЕ…
Найдите дизайнера на Houzz — закажите собственный проект

У ВАС ЕСТЬ ДЛЯ НАС ПРОЕКТ…
Загрузите съёмку в свой профиль на Houzz, отправьте ссылку с кратким описанием на editorial@flatica.ru

Для справки: Какие объекты мы публикуем

Комментарии 28

anna657

7 л.

Проект велик и широк бюджетом, поэтому удивляет очень слабая эргономика всего пространства, а также некоторая бедность фантазии архитектора-оформителя - это зашивание потолочных балок половыми досками, эти "заплатки" над карнизами в хозяйской спальне (и красное кресло там как "одинокий красный петух" Карлсона - к чему оно? Ни цвет, ни стиль его не вписывают в комнату, глаз спотыкается). Лестница весьма неудобная для постоянного по ней пробега, на первом этаже чехарда с уровнями "полметра тут, метр там", явно никто не стеснён в средствах - почему не сделать лифт на четыре-то(!) этажа? Телевизор, встроенный над камином - ни смотреть его толком (вообще-то, даже уже на упаковке стали писать, что экран оптимально располагать на высоте прямого взгляда сидящего зрителя), ни заменить на большую по размеру новую модель (каждые пару лет что-то меняется-добавляется в технологиях и в габаритах и даже просто расположении динамиков и всяких разъёмов, а тут впаяли намертво под стекло). Спальни сыновей и гостевые - красивы и шикарны шиком дорогих отелей, но даже при том, что везде якобы объединяющий всё мрамор и разные куски дерева, именно "родовым гнездом" итог не выглядит, выглядит как mood-board для проекта. И очень чувствуется отсутствие личностей собственно жильцов - взрослые люди за годы жизни не заимели ничего, что дорого как память, что как-то их выражает? Радует один момент: наверняка дом построен не на последние гроши и средства на исправление ошибок и переустройство есть :).
Ничего не понравилось. 4 этажа, куча денег, а лифта нет. А уж полууровни удивили. Как же это можно так испортить пространство имея такие площади?! Камин, который дровяной, это не камин. Это недоразумение. Про мрамор уже много говорили. Выброшенные деньги. Продать такой дом и оправдать вложения будет практически невозможно.
Svetlana Markevich Изаините, но Вы узко мыслите. Именно Ваша категоричность привела к такому высказыванию. Во-первых, и сейчас есть семьи, которые «живут толпой». И не по причине отсутствия других мест для проживания, а потому что так комфортно семье. И эти семьи счастливы жить вместе (под одной крышей многопоколенные семьи). Во-вторых, наличие таких кроватей в детских не обязательно ведёт «приведут жён жить». Как раз , если дети со своей семьёй (жёнами) приезжают погостить, то очень удобно. Мы как раз одну из задач при расстановке мебели в родительской квартире ставили «наличие двух изолированных спальных мест при приезде одновременно двух супружеских пар». Мы часто приезжаем в родительскую квартиру и очень удобно, так как можно спокойно выспаться и есть приватная зона. В-третьих, согласна, что интерьер пафосный. Но это ведь дело личных предпочтений и даже у молодых могут быть предпочтения к такому стилю. Главное, чтобы в интерьере был виден вкус, а не безвкусица. Мне кажется, что важнее, что дети живя в интерьерах со вкусом (пафосный или минималистический или ещё какой другой), прививают вкус. А повзрослев и уже имея свой дом, могут пробовать сделать у себя что-то своё, опираясь на опыт проживания. И вот у меня наоборот складывается впечатление, что в текущем времени пафос для молодежи очень важен и важно «казаться», а не «быть» (Инстаграмм просто пестрит подобной молодежью и пугает количество их фоловеров)

Оставьте комментарий

Смотреть похожие темы

Читать похожие статьи