Houzz тур: Просторная «двушка» — и без спальни

Все начиналось просто как косметический ремонт...

Екатерина Перминова
Екатерина Перминова

14 авг. 2018

Обновлено 12 окт. 2018

Постоянный автор HouzzRu, журналист

Первоначальный план заказчиков был прост: сделать в квартире быстрый ремонт для дочки-студентки, чтобы ей было комфортно жить и учиться в ближайшие годы. Но старые дома скрывают в себе сюрпризы — просчитать заранее, что именно придется менять и сколько это будет стоить, почти невозможно. К тому же родители решили, что с качественным ремонтом будет комфортно еще не одно десятилетие. В результате косметический ремонт обернулся капитальным.

О проекте
Место: Москва
Год: 2017
Размер: 58 кв.м
Кто здесь живет: девушка-студентка
Авторы проекта: Андрей и Елена Урановы, студия интерьеров Instatus; Вера Конакова
Стилист: Дарья Соболева
Фото: Михаил Лоскутов
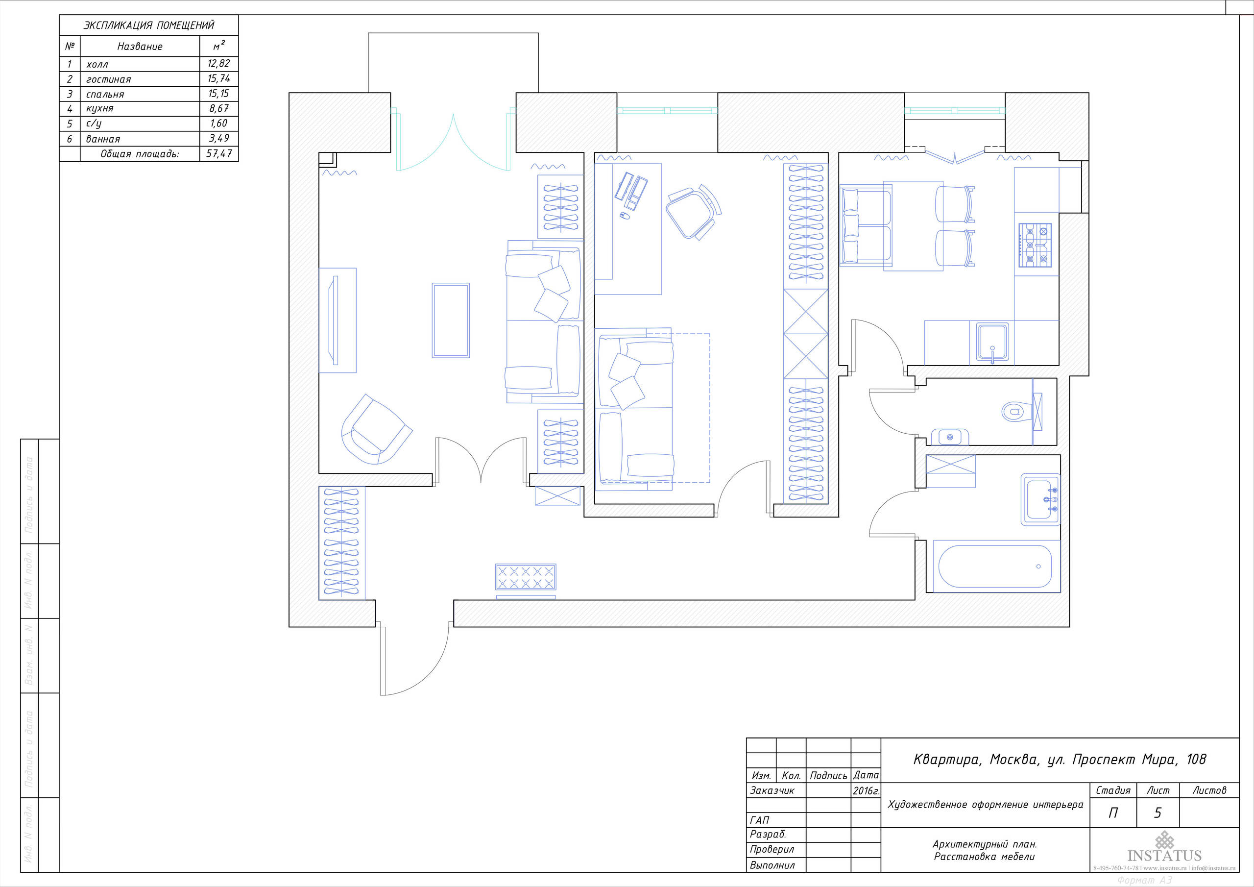
План квартиры

«Мы не меняли планировку по просьбе заказчиков: осталось помещение в виде вытянутого прямоугольника с тремя окнами по периметру, — рассказывает Андрей Уранов. — На 58 квадратных метрах организовали кухню-столовую, изолированную гостиную и… кабинет со спальным местом — это пожелание исходило от будущей хозяйки».

Надо сказать, что родители, несмотря на финансовый контроль, в творческий процесс не вмешивались. Все решения в выборе стиля, палитры и предметов мебели оставили за своей дочерью и дизайнерами.
Все ненесущие перегородки разобрали и собрали заново из пазогребневых блоков. Конструктивные стены очистили и покрыли новым слоем штукатурки. Потолки сначала подняли, разобрав старые перекрытия, а затем опустили на десять сантиметров. Полы очистили от старых перекрытий и обнаружили дополнительные свободные сантиметры. В результате всех манипуляций высоту потолка сохранили и даже увеличили.
ГОСТИНАЯ
Холодный тон гостиной определила будущая хозяйка, а Елена и Андрей добавили к синим стенам яркие детали теплых оттенков и кресла с округлыми спинками. Вся мебель, за исключением нескольких мобильных предметов, создавалась по эскизам дизайнеров под высоту потолка в квартире.
«Разбирая перекрытия, мы обнаружили старые ненесущие балки, — вспоминает Елена Уранова. — Они не вписывались в задуманную концепцию современной классики, и мы от них избавились. Это помогло убрать излишние заломы на потолке и сохранить его высоту, после того как встроенные светильники съели десять сантиметров». Подчеркнули высоту потолка дверными проемами по 2,2 метра.
Диван CTS Salotti; кофейный столик Woodi; комод «Этажерка»; кресла LCI; свет: Arte Lamp; все двери и плинтусы выполнены на заказ по авторским чертежам; потолочные карнизы и молдинги сделаны из гипса по авторским эскизам; столярные изделия сделаны на заказ в мастерской «Антураж-Мебель»
Из гостиной есть выход на балкон — отсюда видно лишь тенистый двор. Чтобы добавить естественного освещения, Елена и Андрей предложили разобрать подоконные блоки и установить двустворчатую дверь в пол.
ПРИХОЖАЯ
Меньше всего света досталось прихожей. Чтобы сгладить ощущение сумрака, напротив дверного проема и окна установили большое зеркало. Оно выполнено по эскизам дизайнеров.

Старую лепнину заменили новой гипсовой в той же стилистике. Декором стали и картины: две из них написала Елена, еще пара работ — из личной коллекции заказчицы, а остальная живопись прибыла из арт-галереи.
Плитка Valmori; краска на стенах и потолке Benjamin Moore; входная дверь «Ягуар»; внутренняя панель — по чертежам автора проекта; встроенный шкаф и обувница сделаны на заказ; пуф и свет Gramercy Home; зеркало IFdecor
КУХНЯ
Обеденный стол укоротили на 20 см — приглянувшаяся модель заполнила бы собой все свободное пространство помещения. Нишу под окном закрыли новыми фасадами из МДФ, здесь от старого ремонта остался холодный шкаф c вентиляционным клапаном.
Современный холодильник встроен в вертикальную колонну кухонной мебели. Фартук выложен плиткой- кабанчиком. Газовая труба, спускающаяся по стене к плите, скрыта в съемном коробе: его облицевали плиткой того же оттенка, но более мелкого размера.
Кухня выполнена в столярной мастерской по авторским эскизам; плитка Valmori; краска Benjamin Moore; плитка на фартуке H&E Smith; варочная поверхность, духовка и посудомоечная машина Bosch; холодильник Whirlpool; обеденный стол «Этажерка»; табуретки Kartell; люстра Newport; встроенные светильники Italine; шторы Espocada, Gaston y Daniela
КАБИНЕТ И СПАЛЬНЯ
Хозяйка попросила, чтобы вместо спальни появился кабинет со спальным местом — для учебы требовалась полноценная рабочая зона, которую не хотелось делать в гостиной. А спать на раскладывающемся диване заказчице было привычнее.
На пол постелили инженерную доску. Для пропитки использовали покрытие, которое выглядит как масло, не уступая по прочности лаку. В общественных зонах предпочтение отдали итальянской плитке.

Инженерная доска IPF Parquet; краска Benjamin Moore; диван Berto salotti; рабочий стол «Этажерка»; стул Lahti; полки Teak House; шкаф сделан по авторским чертежам
Керамогранит на полу BRIX; плитка на стенах H&E Smith; умывальник и смеситель Devon&Devon; ванна Jacob Delafon; душевая стойка Cezares; свет Eichholtz, Nobile

САНУЗЕЛ
Его оставили раздельным, стиральную машину встроили в консоль, сделав сверху полки. Бойлер спрятали в технический шкаф — он не облицован плиткой, а закрыт деревянными дверцами для быстрого доступа. Здесь же организовали дополнительные скрытые места для хранения.
На фото: Андрей и Елена Урановы

ОБ АВТОРАХ ПРОЕКТА…
Перейдите на страницу дизайнеров, чтобы изучить другие работы из портфолио Андрея и Елены Урановых, студия интерьеров Instatus и связаться с ними
________________________

В ВАШЕМ ГОРОДЕ…
Найдите дизайнера на Houzz в вашем городе — закажите собственный проект

У ВАС ЕСТЬ ДЛЯ НАС ПРОЕКТ…
Загрузите съёмку в свой профиль на Houzz, отправьте ссылку с кратким описанием на editorial@flatica.ru

Для справки: Какие объекты мы публикуем

Комментарии 36

Татьяна Иванова сказала,что лезет всё в глаза,а,на мой взгляд,яркие молодежные краски только в гостиной.Но,думаю, красочная палитра в квартире выразительная,а по форме всё выдержано,кажется,в традициях"строгой"классики за исключением табуреточек и картин.Интересная практическая находка для учащегося-доска перед кабинетным столом.Мне больше всего понравилась кухня по цвету и стенка в санузле с зеркалом.
Замечательно! Уютно, тепло, душевно. Не банально и не вычурно. С удовольствием жила бы в такой квартире. А кабинет с диваном - это вообще здорово. Рабочее место просто поразило. Первый раз на Houzz встречаю такой удивительный рабочий уголок. За таким столом невозможно лентяйничать. Он настраивает на сосредоточенную деятельность и побуждает к творчеству. Очень вдохновенный дизайн! Шкаф в прихожей обворожительный. Спасибо за идею цвета! Собираюсь делать на заказ для такой же прихожей. Теперь знаю, какого цвета. :-)
Ekaterina

7 л.

Очень уютно, красиво и ощущение тепла! Сочетание цветов красивое. Разумное решение о совмещении спальни с кабинетом, пока девочка учится. Закончит, можно и переделать:)

Оставьте комментарий

Читать похожие статьи