logo

Houzz тур: Перепланировка двушки в трешку за 2 недели

Строительная бригада советовала семейной паре неэргономичную планировку. Дизайнер внесла правки на финишной прямой

Houzz Россия
Houzz Россия

24 мар. 2020

Обновлено 14 сент. 2020

Houzz тур: Перепланировка двушки в трешку за 2 неделиЕвгения Любимова
Когда дизайнер Женя Постухова впервые появилась на объекте, задачей было помочь семье подобрать мебель и отделочные материалы в готовую квартиру. «Заказчики хотели превратить двухкомнатную квартиру в «трешку», задействовав часть пространства под вторую спальню, — вспоминает дизайнер. — Строительная компания, с которой они работали, придумала им недопустимый, на мой взгляд, вариант — спальню-аквариум в небольшой нише рядом с прихожей. Хотя пространство позволяло сделать более удобную планировку, которую я и рекомендовала заказчикам. За две недели мы переделали их проект».
Houzz тур: Перепланировка двушки в трешку за 2 неделиЕвгения Любимова
О проекте
Место: Москва, ЖК «Лобачевский»
Размер: 66 кв.м.
Кто здесь живет: Молодая семья из трех человек
Дизайнер проекта: Женя Постухова
Фото: Ольга Галкина
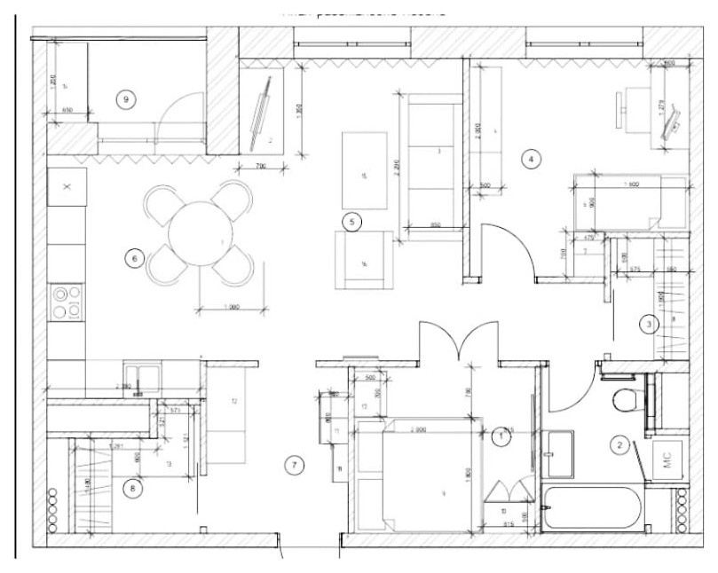
План квартиры до перепланировки
План квартиры после перепланировки

Спальню и кухню поменяли местами, обозначив жилое помещение как кабинет, а кухню вписали в уже имеющуюся нишу, сохранив привязку к стояку и мокрой зоне. Лишние перегородки между кухней и гостиной убрали, уменьшили обеденную зону, сохранили при этом открытое пространство. Детская осталась на прежнем месте, изменили только расстановку мебели.

—————————————
В ВАШЕМ ГОРОДЕ…
Через Houzz можно нанять дизайнера или архитектора в любом городе и стране. Начать поиск специалиста
—————————————
Houzz тур: Перепланировка двушки в трешку за 2 неделиЕвгения Любимова
Решив вопрос с планировкой, задумались о цветовой гамме. Заказчица выбрала дизайнера за обоюдную любовь к зеленому цвету, но ей хотелось, чтобы интерьер был одновременно яркий и светлый. Женя предложила выполнить стены, потолки и большую часть мебели в светлых цветах, а зеленый добавить акцентами в отделке и декоре.
Houzz тур: Перепланировка двушки в трешку за 2 неделиЕвгения Любимова
КУХНЯ
«Мы раздумывали не взять ли бордовую плитку, чтобы добавить контраст и больше цвета, — говорит Женя. — Но приехав в салон, сделали окончательный выбор в пользу зеленой».

Чтобы дополнить выстроенную цветовую гамму, вытяжку и светильники подобрали в бронзовом цвете.
Houzz тур: Перепланировка двушки в трешку за 2 неделиЕвгения Любимова
Проблема и решение: Для пола во всей квартире сначала выбрали паркет. Но заказчица случайно в магазине увидела новую для рынка модель Chevron в ламинате и загорелась идеей постелить именно его.

Внешне эффектный, на деле ламинат оказался непрактичным. «Видимо на складе были нарушены условия хранения — он криво лег и быстро пошел волнами, — говорит дизайнер. — Это незаметно невооруженным взглядом, но ощущается при ходьбе. В который раз утвердилась во мнении, что материал важно брать у проверенных поставщиков».
Houzz тур: Перепланировка двушки в трешку за 2 неделиЕвгения Любимова
ПРИХОЖАЯ
Остановившись на светлом интерьере, дизайнер предложила заказчикам использовать эффектный прием — темную прихожую, чтобы подчеркнуть простор и освещенность открытой зоны. Поскольку в прихожей друзья и члены семьи проводят не больше пары десятков минут, активный цвет не давит, но каждый раз вызывает wow-эффект.
Houzz тур: Перепланировка двушки в трешку за 2 неделиЕвгения Любимова
«Цвет получился именно таким, как мы задумывали, но выбранные обои нужно было долго ждать, — рассказывает дизайнер. — В поисках альтернативы заказчица увидела этих замечательных лемуров».

К насыщенным стенам добавили цветной карниз. Многоярусную модель использовали, чтобы разнообразить спокойный в декоре интерьер.
Houzz тур: Перепланировка двушки в трешку за 2 неделиЕвгения Любимова
ГОСТИНАЯ
Мягкая зона открывается взгляду буквально с порога. Чтобы добавить гостиной приватности, спроектировали легкую конструкцию стеллажа. Со временем на полках появятся книги и декор, за которыми диван не будет просматриваться.
Houzz тур: Перепланировка двушки в трешку за 2 неделиЕвгения Любимова
СПАЛЬНЯ
Там, где строителями предполагалась большая кухня с обеденной зоной, сделали спальню. Площадь комнаты позволила не только поставить кровать, но и предусмотреть вместительную систему хранения. Она выполнена по типу гардеробной — с ящиками, полками и штангами.
Houzz тур: Перепланировка двушки в трешку за 2 неделиЕвгения Любимова
Из спальни есть выход на небольшой балкон. Чтобы увеличить его площадь старый утеплитель сняли, а затем положили теплый пол. Зимой температура комфортна для хранения маминого варенья, а летом балкон превращаться в зону отдыха.
Houzz тур: Перепланировка двушки в трешку за 2 неделиЕвгения Любимова
На балконе установили и шкаф для дополнительного хранения.
Houzz тур: Перепланировка двушки в трешку за 2 неделиЕвгения Любимова
ДЕТСКАЯ
Сын заказчиков еще не ходит в школу, однако родители сразу попросили продумать комнату универсальной по возрасту, чтобы её можно было легко модернизировать.

«Мы выбрали нейтральный принт для трех стен, а четвертую оклеили обоями с корабликами, задав морскую тематику, интересную малышу», — говорит дизайнер.
Houzz тур: Перепланировка двушки в трешку за 2 неделиЕвгения Любимова
Кровать IKEA

Шкаф для хранения вещей и игрушек изготовили в виде домика. Любимая кровать мальчика переехала с ним из старой квартиры.
Houzz тур: Перепланировка двушки в трешку за 2 неделиЕвгения Любимова
На чем сэкономили:
Заказчики хотели иметь отдельное помещение под хозяйственные нужды, чтобы не устанавливать стиральную машинку в ванную комнату. Такую зону организовали в гостевом санузле, сохранив его основную функцию. Правда не хватило глубины ниши, чтобы закрыть машинки полностью, но менять планировку не стали.
Houzz тур: Перепланировка двушки в трешку за 2 неделиЕвгения Любимова
ВАННАЯ КОМНАТА
В хозяйском санузле все стены, куда может попасть влага, облицевали плиткой-кабанчиком. Остальное пространство покрасили в ярко-синий цвет. Такой же цвет выбрали для фасадов тумбы под раковину и решетчатых дверок, за которыми скрыли полки и кошачий туалет.
Houzz тур: Перепланировка двушки в трешку за 2 неделиЕвгения Любимова
В одной из дверей оставили небольшой проем, чтобы четвероногий член семьи мог культурно сходить в туалет.
ОБ АВТОРЕ ПРОЕКТА…
Перейдите на страницу Жени Постуховой, чтобы изучить другие работы из портфолио дизайнера.

У ВАС ЕСТЬ ДЛЯ НАС ПРОЕКТ…
Загрузите съемку в свой профиль на Houzz, отправьте ссылку с кратким описанием на editorial@flatica.ru

Для справки: Какие объекты мы публикуем

Комментарии 37

Юлия Мингазова шкаф икеа, ничего необычного)) но за счет черного цвета хорошо вписался. Фото прикрепила .
Марина Елагина вход к лотку через небольшой портал в фасаде шкафа
natela_sh здравствуйте! Плитка Cartusien 25*25 от CODICER

Оставьте комментарий

Читать похожие статьи