logo

Houzz тур: Оттенки синего и блеск зеркал в двухуровневой квартире

Квартира высотой в два этажа не всегда бывает большой площади. Татьяна Ковалева показала, как можно исправить этот недостаток

Houzz Россия
Houzz Россия

21 мая 2015

Обновлено 21 июля 2015

Одно дело расширять пространство в квартире, где все помещения находятся на одном уровне. А как поступить, если нужно переделать двухуровневую квартиру? Полноценную перепланировку в данном случае сделать затруднительно: сложно перераспределить площади гостиной и спальной комнаты, когда они расположены на разных этажах. И тем не менее, выход есть: изменить облик этой квартиры Татьяне Ковалевой помогли дизайнерские приемы и игры с пространством.

Место:
г. Видное, Московская область
Год: 2014
Размер: 140 кв.м
Автор проекта: Дизайнер Татьяна Ковалева
Время ремонта: 9 месяцев
Houzz тур: Оттенки синего и блеск зеркал в двухуровневой квартиреТатьяна Ковалева
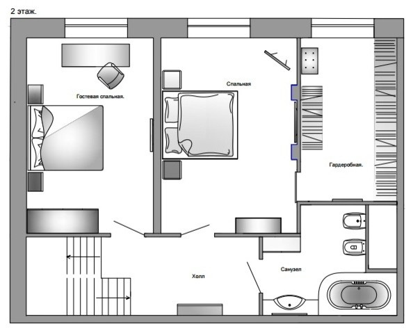
Двухуровневая квартира потребовала незначительной перепланировки. Дизайнер предложила расширить ванную комнату и выделить площадь под гардеробную. В остальном сохранили планировку, предложенную застройщиком.

Традиционно первый этаж отдается под зону для приема гостей. Здесь расположились прихожая, кухня-столовая, гостиная и гостевой санузел. Помещения небольшие, поэтому дизайнер предусмотрел функциональные перегородки. А вот второй этаж заняли спальные комнаты (хозяйская и гостевая), еще один санузел и гардеробная комната.
Houzz тур: Оттенки синего и блеск зеркал в двухуровневой квартиреСветлана Лянгасова
Почетное место в кухне-столовой отдано столу на 8 персон. Автор проекта рассказывает, что хотела создать в этой части атмосферу тепла и уюта. Поэтому для мебели выбрали мягкий оттенок белого и теплый цвет деревянной доски.

Пожеланий у заказчика было немного — функциональность и легкость. Ему хотелось сделать так, чтобы телевизор можно было смотреть и из гостиной, и из кухни-столовой.
Такую возможность хозяину предоставили с помощью тумбы, которая служит перегородкой между кухней и гостиной. «За счет поворотного механизма мы добились функциональности, вспоминает автор проекта. А легкости за счет панели с лазерной фрезеровкой на оборотной стороне телевизора».

Напольное покрытие: «Хороший пол»; кухня: Gioconda от Snaidero
Houzz тур: Оттенки синего и блеск зеркал в двухуровневой квартиреТатьяна Ковалева
При этом узор на ТВ-панели стал элементом декора. «Я создала целую композицию, обращает внимание Татьяна Ковалева. Панель, часы на стене и статуэтка с кистями рук. Черный цвет и графичность внесли в интерьер нужные акценты».
Houzz тур: Оттенки синего и блеск зеркал в двухуровневой квартиреТатьяна Ковалева
Несмотря на то, что квартира двухуровневая, все помещения небольшие по площади. Поэтому в каждой комнате, во всех частях коридора дизайнер предусмотрел зеркала. Они помогают расширить пространство и сделать комнаты светлее.


Например, в прихожей на первом этаже часть стены имеет зеркальную отражающую поверхность. В гостиной на полу установлено зеркало высотой практически до потолка. Аналогичные полотна стоят в каждой из спален. В холле второго этажа над комодом закреплено венецианское зеркало.
Houzz тур: Оттенки синего и блеск зеркал в двухуровневой квартиреТатьяна Ковалева
Гостиная в отличие от столовой выполнена в более холодных тонах. Базовый серый цвет, по мнению дизайнера, добавил умиротворенности. «Я люблю смешивать стили: получается не хаос, а живой естественный интерьер, рассказывает о концепции Татьяна Ковалева. — Мне не нравятся стерильные одинаковые предметы. Они должны быть разными, со своей историей и индивидуальностью».

Яркие акценты в гостиной также выполнены в холодных тонах. Например, ковер дизайна Микаэлы Шлейпен (Michaela Schleypen). Но главной деталью, по словам автора, стало живописное полотно от Elena Sharbur. Оно добавило интерьеру динамики.
Houzz тур: Оттенки синего и блеск зеркал в двухуровневой квартиреТатьяна Ковалева
На второй этаж ведет широкая лестница с перилами. Ее пролет украшает объемное деревянное панно. Татьяна поясняет, что именно оно стало связующим звеном между первым и вторым этажами: «Наверху нас ждет больше теплых тонов, обои с классическим рисунком и домашний уют».
Houzz тур: Оттенки синего и блеск зеркал в двухуровневой квартиреТатьяна Ковалева
Это так называемая «мужская» спальня. Здесь тоже использованы оттенки синего, но другого, более спокойного оттенка.
«Мне всегда нравилась фраза: “Чтобы декор прожил долго, он должен быть сложным. А то, что собрано быстро, может надоесть через год”», — рассказывает Татьяна.

Над комодом повесили работу известного архитектурного фотографа Юрий Пальмина. А за стеной спряталась вместительная гардеробная комната.
Houzz тур: Оттенки синего и блеск зеркал в двухуровневой квартиреТатьяна Ковалева
В «женской» спальне дизайнер выстроила интерьер на оттенках голубого глянца, задействованного в мебели фабрики «Мекран». Лаковые поверхности уравновешены текстильным покрытием. Разные тканевые фактуры представлены в изобилии: «Даже багет зеркал обтянут бархатом», комментирует дизайнер.

Комнату можно использовать как рабочий кабинет. А есть у помещения и третье назначение гостевая спальня.
Houzz тур: Оттенки синего и блеск зеркал в двухуровневой квартиреТатьяна Ковалева
В ванной комнате на втором этаже дизайнер использовала плитку от La faenza из коллекции Neoclassica. Своеобразный узор добавил интерьеру ритм и динамику.
Houzz тур: Оттенки синего и блеск зеркал в двухуровневой квартиреТатьяна Ковалева
На противоположной от ванны стене разместилась картина Ольги Черняк. Татьяна Ковалева подчеркивает, что за счет этого удалось привнести в оформление помещения элемент легкой эротики.
Houzz тур: Оттенки синего и блеск зеркал в двухуровневой квартиреСветлана Лянгасова
Гостевой санузел на первом этаже невелик. В нем не хватило места для установки ванны, так что решили обойтись душевой кабиной. Акцент сделан на дизайнерской раковине от Филипа Старка (Philippe Starck) и зеркале от Charles Cameron.
«Потребовалась незначительная перепланировка, —рассказывает дизайнер Татьяна Ковалева. —Строители расширили одну из ванных комнат и добавили гардеробную». Именно последняя не была запланирована изначально.
ПРЕДЛОЖИТЕ СВОЙ ПРОЕКТ ДЛЯ ПУБЛИКАЦИИ…
Загрузите фотосъемку в свой профиль на Houzz, отправьте ссылку и краткое описание проекта наeditorial@flatica.ru
Мы обязательно свяжемся с вами, если примем решение о публикации.

Комментарии 7

Красиво, добротно, функционально. Вызывает диссонанс глянец на полу кухни - непрактично, небезопасно, неактуально.
olga2407l

10 л.

холодно как то))
Наша студия делала для этого проекта резную панель для телевизора. Мы рады, что сотрудничали с Татьяной - замечательным дизайнером.

Оставьте комментарий

Читать похожие статьи