logo

Houzz тур: «Однушка» с мотивами тропиков

И зеленым диваном, который приехал через полгода после ремонта

Houzz Россия
Houzz Россия

17 дек. 2018

Обновлено 31 янв. 2019

Houzz тур: «Однушка» с мотивами тропиковЕлена Маркина
О проекте Место: квартира в панельном экспериментальном доме на севере Москвы с видом на Останкинскую башню Размер: 57,45 кв.м, потолки — 2,6 м Кто здесь живет: молодая девушка Автор проекта: Елена Маркина, MARKINA DESIGN Фото: Сергей Ананьев Хозяйка квартиры, молодая девушка, попросила сохранить изолированную кухню, сделать гостиную, а еще — предусмотреть кровать с возможностью её изолирования и много мест для хранения, уместить туалетный столик, стиральную машину и сушильный шкаф.
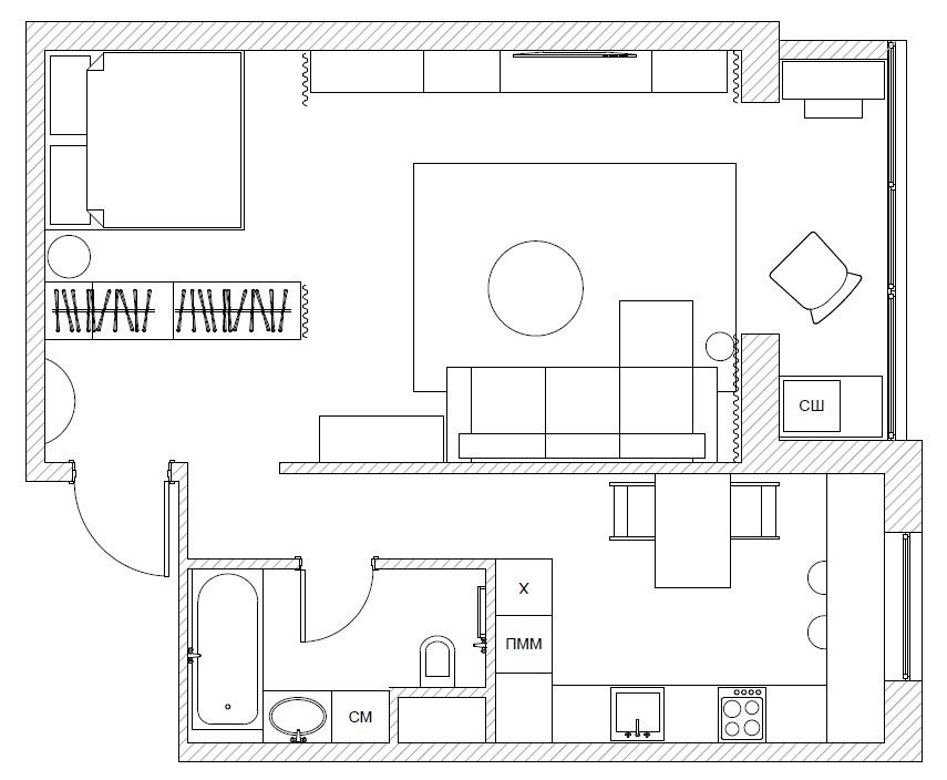
Планировка квартиры до ремонта Квартира имела ряд преимуществ: хорошая планировка, достаточная площадь и великолепный вид на Москву. Однако раздельный санузел, низкие потолки и плохая освещенность комнаты из-за остекленной лоджии усложняли работу с объектом.
Планировка квартиры после ремонта Вариантов планировки было несколько: один из них предполагал отдельную гардеробную, другой — объединение кухни и гостиной. В конце концов остановились на полноценной гостиной, отдельной кухне и небольшой спальне на месте бывшей прихожей.
Houzz тур: «Однушка» с мотивами тропиковЕлена Маркина
Цветовую гамму определила любовь заказчицы к путешествиям: ей хотелось привнести в дом ощущение отпуска. Так появились зеленый и пудровый цвета — оттенки зелени и заката.
Houzz тур: «Однушка» с мотивами тропиковЕлена Маркина
«Мы старались использовать деликатные намеки на тропическую тему, а не прямое цитирование, — рассказывает Елена Маркина. — Кроме оттенков зеленого, этот мотив обыгран мелкими фигурками животных, постерами и экзотическими цветами » .
Houzz тур: «Однушка» с мотивами тропиковЕлена Маркина
ГОСТИНАЯ В гостиной по всей длине разместили зону хранения, а в центре — комод и телевизор. Напротив поставили диван с обивкой из искусственной замши Alcantara. Диван стал финальным штрихом — он приехал через полгода после завершения ремонта, когда хозяйка уже жила в квартире.
Houzz тур: «Однушка» с мотивами тропиковЕлена Маркина
Обратите внимание: Специально для проекта художница Мария Товбина создала живописный триптих. Первоначально на этом месте планировалось панно из постеров в виде гербария, но живопись показалась дизайнеру более удачной идеей.
Houzz тур: «Однушка» с мотивами тропиковЕлена Маркина
В гостиной: стол и люстра Eichholtz; настольная лампа AnyHome; п уф и кресло Lavsit; к омод Neopolis Casa; аксессуары Moon-Stores, H&M Home, Zara Home; т екстиль «Иномарт» по авторским эскизам
Houzz тур: «Однушка» с мотивами тропиковЕлена Маркина
Туалетный столик со вставками из шпона сикаморе, столярная мастерская «Не просто мебель» Чтобы впустить в интерьер больше света, лоджию утеплили и присоединили к жилому пространству. Подоконную часть демонтировали, а стандартный радиатор отопления заменили на вертикальный. На обновленной лоджии разместили туалетный столик и хозяйственную зону, куда спрятали сушильный шкаф и другое оборудование.
Houzz тур: «Однушка» с мотивами тропиковЕлена Маркина
СПАЛЬНЯ Единственное окно на лоджии стало источником дневного света и для спальной части. Спальня расположена на площади прихожей, поэтому все, что удалось здесь разместить — это кровать с матрасом и прикроватная тумбочка. Смежное с гостиной пространство при необходимости можно скрыть с помощью текстильных штор.
Houzz тур: «Однушка» с мотивами тропиковЕлена Маркина
Потолок в районе спальни слегка опущен: за ним находится встроенное освещение и ниша, в которую спрятан карниз для штор.
Houzz тур: «Однушка» с мотивами тропиковЕлена Маркина
Роль перегородки между прихожей и спальней исполняет шкаф с двусторонним доступом. Со стороны спальни хранятся белье и повседневная одежда, со стороны прихожей есть место для верхней одежды и обуви; отдельный отсек выделен для пылесоса и роутера.
Houzz тур: «Однушка» с мотивами тропиковЕлена Маркина
Чтобы дверцы шкафа нормально открывались, их сделали разного размера: ширина самой узкой составляет 25 сантиметров. Практически вся столярка, включая шкаф, сделана на заказ по авторским чертежам из МДФ с глянцевыми фасадами. Изголовье кровати из стеновых панелей выполнено из того же материала, что и диван.
Houzz тур: «Однушка» с мотивами тропиковЕлена Маркина
ПРИХОЖАЯ Часть стены в прихожей декорировали состаренным зеркалом — оно расширяет существующее пространство. Кроме шкафа, здесь уместилась лишь консоль для ключей и перчаток.
Houzz тур: «Однушка» с мотивами тропиковЕлена Маркина
Краска Benjamin Moore; п аркетная доска Kahrs; м озаика из керамогранита Atlas Concorde Между прихожей и гостиной нет дверей, поэтому в дневное время здесь достаточно естественного света.
Houzz тур: «Однушка» с мотивами тропиковЕлена Маркина
Кухня из массива Arva; т ехника Kuppersbusсh, Bosch, Liebherr; люстра AnyHome; с тулья Lavsit КУХНЯ Кухня осталась на прежнем месте, но изменилась расстановка: мебель расположили буквой «П», выделив у окна зону для завтраков с видом на Останкинскую башню. Над шкафами на несколько сантиметров опустили потолок, чтобы провести до стояка вентиляционный воздуховод.
Houzz тур: «Однушка» с мотивами тропиковЕлена Маркина
Проблема и решение: В дальнем углу, который обычно трудно задействовать, Елена Маркина сделала « гараж » для техники. Это популярное американское решение редко встречается у отечественных дизайнеров. Хотя оно очень функционально: вся мелкая бытовая техника уже включена в розетки и готова к использованию, при этом приборы не пылятся и не занимают место на рабочей поверхности. Все что требуется — поднять жалюзи и выдвинуть нужную технику. Единственной проблемой стало найти исполнителя, готового взяться за подобный заказ.
Мозаика из керамогранита Novabell; сантехника: Villeroy & Boch; смесители Migliore; полотенцесушитель Margaroli САНУЗЕЛ Раздельный санузел объединили, чтобы добавить простора. В тумбу со столешницей из кварца сверху встроили мойку, а за фасадами — стиральную машину. Постер с жирафом выполняет не только эстетическую роль, но и функциональную — за ним спрятан ревизионный люк.
ОБ АВТОРЕ ПРОЕКТА… Перейди те на личную страницу Елены Маркиной, MARKINA DESIGN , ч тобы изучить другие работы из п ортфолио дизайнера или заказать ей собственный проект ____________________________ В ВАШЕМ ГОРОДЕ… Найдите дизайнера на Houzz в вашем городе — закажите собственный проект У ВАС ЕСТЬ ДЛЯ НАС ПРОЕКТ… Загрузите съёмку в свой профиль на Houzz, отправьте ссылку с кратким описанием на editorial@flatica.ru Для справки: Какие объекты мы публикуем

Комментарии 87

Очень понравился интерьер. Все на месте и ничего лишнего. Мне было бы в нем комфортно и уютно.
Наталья, спасибо Вам большое. Вы, конечно, правы - это квартира не для всех) Но съемку мы делали спустя полгода после новоселья - заказчице комфортно и и радостно живется в этом интерьере, для нее все идеально, заказчик счастлив, а что еще дизайнеру нужно)
Интересный проект в целом. Сначала он вызывает восторг, однако когда начинаешь всматриваться в детали, появляется ощущение пресыщенности деталями, что конечно очень индивидуально - самое важно это, то насколько комфортно заказчику в интерьере.

Оставьте комментарий

Читать похожие статьи