logo

Houzz тур: Необычный интерьер для холостяка

Кухню подвесили, а в спальне сделали оригинальный угловой стеллаж

Евгения Назарова
Евгения Назарова

7 нояб. 2018

Обновлено 17 дек. 2018

Постоянный автор Houzz, интерьерный журналист

Houzz тур: Необычный интерьер для холостякаOM design
О проекте
Место:
Москва, ЖК «Фили-Град»
Размер: 68 кв.м
Кто здесь живёт: молодой мужчина
Авторы проекта: Маргарита Репина и Оксана Муратова, OM DESIGN
Фото: Антон Лихтарович

По проекту застройщика квартира продавалась как двухкомнатная, но хозяин попросил не нарезать её на мелкие помещения. Отделили только зону сна, причем не капитально, а стеклянной перегородкой.
Вместо двух предусмотренных застройщиком санузлов, сделали один: его немного расширили за счёт коридора. А на месте второй мокрой зоны организовали гардеробную.
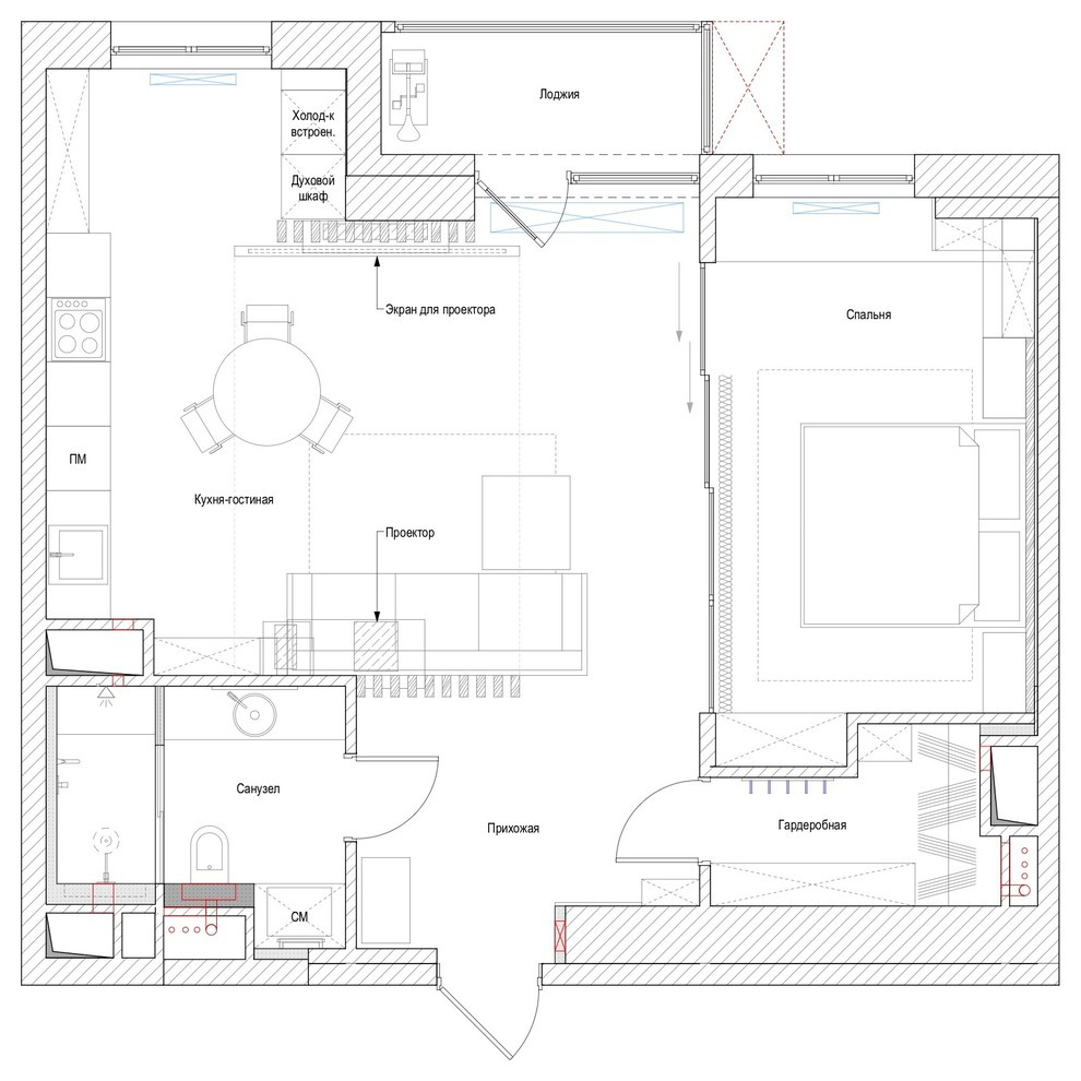
Планировка квартиры
Houzz тур: Необычный интерьер для холостякаOM design
ПРИХОЖАЯ
Входная зона отделена от гостиной лишь условно реечными перегородками, которые задают пространству ритм. Из-за этого и зеркало в прихожей состоит из нескольких вертикальных секций: по словам дизайнеров, такое решение родилось интуитивно, а разделение на полотне не мешает видеть отражение целиком. Вертикаль подчеркивает и узкий шкафчик, который протянулся до самого потолка.
Houzz тур: Необычный интерьер для холостякаOM design
Двери Union; напольная плитка Equipe

В прихожей доминируют два цвета: белый и чёрный сочетаются и в дизайне шкафа, и на потолке, и в рисунке напольной плитки. За дверью, установленной на скрытой коробке и выкрашенной в цвет стен, находится гардеробная.
Houzz тур: Необычный интерьер для холостякаOM design
ГОСТИНАЯ
В гостиной должны были поставить телевизор, но в процессе работы над планировкой заказчик решил заменить его проектором. Перед дизайнерами встала новая задача незаметно разместить всю технику. Ведь кроме проектора и экрана, требовалось установить системы управления и звуковое оборудование. Сам проектор расположили в коробе над диваном, а колонки в соседнем стеллаже: он асимметричный, а внутри некоторых секций встроены модули в отделке тёмным шпоном, так что колонки почти не заметны.
Houzz тур: Необычный интерьер для холостякаOM design
Напротив дивана возвели конструкцию из реечных перегородок. Экран выезжает из ниши в потолке, под ним расположена горизонтальная полка для саундбара. Рейки, которые накрывает экран, еще и маскируют боковину кухонных колонн.
Houzz тур: Необычный интерьер для холостякаOM design
То, что на кухне не будет верхней линии шкафов, стало понятно ещё до создания проекта: все собранные заказчиком референсы были именно такими. Правда, это решение вывело на первый план вопрос заполнения пустой стены. И дизайнеры решили сделать её фокусной точкой кухни-гостиной.
Houzz тур: Необычный интерьер для холостякаOM design
Керамогранит Tonalite

На одной из фотографий от заказчика дизайнеры обратили внимание на плитку с геометрическим узором и развили эту идею. Им попалась коллекция шестигранников с разными рисунками. Все элементы расположили с эффектом градиента: внизу больше тёмных плиток, вверху белых. Плитку не стали доводить до самого потолка, а как бы оборвали. Верхнюю часть стены оформили штукатуркой под бетон.
Houzz тур: Необычный интерьер для холостякаOM design
Кухня Virs; стулья Calligaris

Линейная часть кухни подвесная, у неё нет цоколя. В этой линии расположили мойку, компактную посудомойку, варочную поверхность с вытяжкой. Фасады выполнены из МДФ с покрытием под велюр, столешница из искусственного камня. Завершает линию белый подвесной модуль для хранения посуды, чтобы длинная кухня не смотрелась монотонно. В колонны напротив встроили холодильник и духовой шкаф.
Houzz тур: Необычный интерьер для холостякаOM design
СПАЛЬНЯ
Спальню отделяет стеклянная перегородка на металлическом каркасе, состоящая из четырех секций. Две из них открываются: левые створки скользят вправо. Для большей приватности спальню можно дополнительно скрыть шторой.
Houzz тур: Необычный интерьер для холостякаOM design
Часть спальни выделили синей краской: линия прошла по стенам и по потолку. Так акцентировали зону библиотеки: у заказчика много книг, для которых спроектировали стеллаж, переходящий в прикроватную тумбу. Его, как и кухонный гарнитур, сделали подвесным, а вдоль окна пустили широкий подоконник с местом для сидения.

БОЛЬШЕ ФОТО…
В профиле студии OM DESIGN есть кадр, снятый с обратной точки — виден светильник, выведенный на откосе окна; подоконник превращается в полноценное место для чтения
Houzz тур: Необычный интерьер для холостякаOM design
Керамогранит Porcelanosa

В изголовье кровати скомбинировали два материала. Нижняя часть это панель, облицованная тёмным шпоном: она рифмуется с фасадами бокового встроенного шкафа. Наверху использовали керамогранит с деликатным рельефом. «Это нестандартное решение, керамогранит мы привыкли видеть на полу или в мокрых зонах. Но в этом строгом интерьере материал помогает поставить аккуратный акцент», отмечают Оксана и Маргарита.
Houzz тур: Необычный интерьер для холостякаOM design
Плитка Atlas Concorde

САНУЗЕЛ
Здесь соединили плитку под травертин и мебельные фасады под тёмным шпоном, и даже раковину подобрали из мрамора. Размеры душевой зоны составляют 1850 х 900 мм — в такой кабине есть где развернуться.
Над инсталляцией смонтировали шкафы для хранения бытовой химии, а рядом разместили стиральную машинку: она спрятана за дверцами с вертикальными прорезями.

ОБ АВТОРАХ ИНТЕРЬЕРА…
Перейдите на личную страницу Маргариты Репиной и Оксаны Муратовой, OM DESIGN, чтобы изучить другие работы из портфолио дизайнеров или заказать им собственный проект

В ВАШЕМ ГОРОДЕ…
Найдите дизайнера на Houzz в вашем городе — закажите собственный проект

У ВАС ЕСТЬ ДЛЯ НАС ПРОЕКТ…
Загрузите съёмку в свой профиль на Houzz, отправьте ссылку с кратким описанием на editorial@flatica.ru

Для справки: Какие объекты мы публикуем

Комментарии 27

Хороший проект. Как и должно быть от профи, а не от любителей, вдруг открывших в себе "дизайнера". Качественная основа и полное соответствие вкусам хозяина. Порадовали комменты. Наконец-то людям начинает выносить мозг дурацкий текст к хорошей работе . "Оксана и Маргарита" которые "отмечают" керамогранит как "нестандартное решение" на стенах, пусть останутся на совести Е.Назаровой. По квартире вижу, что не могли они такую чушь сказать. Да ещё и про мою любимую Porcelanosa, которую весь мир для жилых стен уже чёрт знает сколько лет юзает. (Кстати, на правах рекламы: . Porcelanosa - тот самый большемер, который можно брать не глядя и класть без швов. Ещё вот ни разу не попались с кривыми углами или изломами плоскости. И это не только про 31.6 на 90 :) ) . Ю У , это новый дом без газа. Всё законно.
Прикольно, только не нравится, что в основне все серого цвета...
Эстетика на высоте, к сожалению и коммерциализация тоже. Практичность планировки вызывает множество вопросов. Судя по длине кухонного гарнитура - холостяк любит готовить, при этом размер стола говорит о том, что холостяк любит есть один и каждое приготовленное блюдо по отдельности. По моему, холостяка тупо развели на бабло, на кухне и на фартуке. Потенциальное рабочее место у окна - видимо месть дизайнеров заказчику, уж за что, не знаю, зимой вечно замёрзшие пальцы на клавиатуре холостяку гарантированы. Ну это все мелочи, вот за что дизайнеров надо ремнём выпороть, так это за общую милипусечную гардеробную для всей одежды, тут столько гемморойных жизненных сценариев вырисовывается, что книгу написать можно. При этом картинка интерьера получилась одна из самых лучших на houzz, и таких мастеров я бы к себе заманивал всеми имеющимися «пряниками».

Оставьте комментарий

Читать похожие статьи