logo

Houzz тур: Настроение загородного дома в панельной «двушке»

Хозяйке хотелось воплотить мечту об уютном доме, поэтому в отделке использовали натуральные материалы

Екатерина Перминова
Екатерина Перминова

17 окт. 2016

Обновлено 3 июня 2017

Постоянный автор HouzzRu, журналист

Houzz тур: Настроение загородного дома  в панельной «двушке»Анна Плакунова
Хозяйка этой квартиры — переводчица, она много путешествовала по миру и смогла сформировать представление о собственном идеальном жилье. Светлый, наполненный воздухом и загородной атмосферой — таким ей хотелось видеть свой дом. Квартира в «панельке» изначально в подобный проект никак не вписывалась, но дизайнеру Анне Корнильевой удалось интерпретировать некоторые особенности скандинавского дома, о котором так мечтала заказчица, в совершенно обычной квартире типового дома.
О проекте Место: Санкт-Петербург Год: 2015 Площадь: 65 кв.м, потолки — 2,79 м Автор проекта: Дизайнер Анна Корнильева Фото: Федор Ордовский
Houzz тур: Настроение загородного дома  в панельной «двушке»Анна Плакунова
«У заказчицы отличный вкус, — отмечает Анна Корнильева. — Декора в квартире много, и весь она выбирала самостоятельно, часто именно во время путешествий».
Houzz тур: Настроение загородного дома  в панельной «двушке»Анна Плакунова
Вместе с заказчицей дизайнер побывала в Италии на небольшом блошином рынке, где они выбрали несколько предметов интерьера. В том числе — два необычных светильника для гостиной: раньше они вели жизнь подсвечников и были переделаны итальянскими мастерами. «Нам рассказали, что эти светильники долгое время никто не покупал, так как у них не хватало некоторых деталей, — вспоминает Анна. — Но мы в них сразу влюбились и все-таки купили, а необходимые металлические детали мой муж изготовил собственными руками». Натуральные материалы были важным пунктом текущего ремонта. Анна Корнильева старается избегать имитаций, о днако в панельном доме кирпичные стены можно было создать только искусственно. Задача была решена, когда удалось найти подходящую плитку — слепки с антикварных кирпичей. «Кладка получилась такой, что трудно отличить ее от настоящей», — комментирует дизайнер.
Houzz тур: Настроение загородного дома  в панельной «двушке»Анна Плакунова
Атмосферу «дома с историей» поддержали при помощи кухонной мебели. В Петербурге нашли производителя, который сделал фасады не просто с потертостями и нагелями по углам — дверцы были из некондиционного дуба с сучками и трещинками.
«Когда установщики мебели увидели такие фасады, то подумали, что они бракованные, и очень удивились, когда поняли нашу задумку», — смеется Анна. Кухонный стол тоже петербургского производства, а вот стулья вокруг — французские.
Проблема и решение: вытянутый коридор зрительно разбили с помощью панно из стволов рябин. «Рябинки взяли в лесу и высушили, сучки оставили, чтобы в будущем вешать на них приятные безделушки», — поясняет автор.
На потолке спальни появились балки из бруса, а на стене гостиной — отделка из обычной строганной доски. Шторы создала под заказ петербургский дизайнер Мария Головина. Она же сплела для них шнуры, не найдя в магазинах подходящей модели.
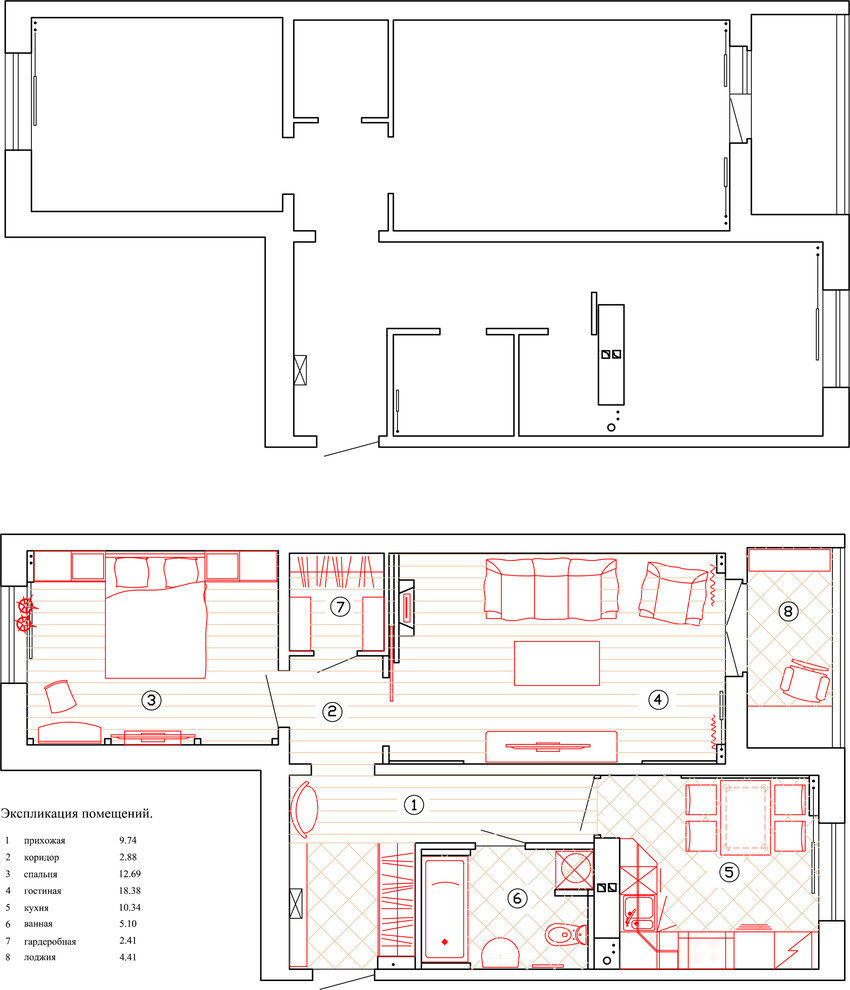
Стены санузлов — единственные не несущие в квартире. Каждое помещение было небольшим, а стояки по углам мешали поставить ванну. Тогда дизайнер объединила туалет и ванную, немного уменьшив общую площадь в пользу прихожей. Благодаря этому в прихожей поместился полноценный шкаф, а в санузле — ванна.
Houzz тур: Настроение загородного дома  в панельной «двушке»Анна Плакунова
«Панельный дом, несущие стены, плюс вытянутая планировка — все это поначалу меня сильно расстраивало, — подводит итог автор проекта. — Однако использование натуральных материалов и мастерство замечательных рабочих помогло создать в квартире атмосферу загородного дома. А все милые детали, что заказчица привезла из путешествий, наполнили интерьер теплой энергетикой».
План квартиры СМОТРИТЕ ТАКЖЕ… Другие про екты того же автора — дизайнера Анны Корнильевой У ВАС ЕСТЬ ДЛЯ НАС ПРОЕКТ… Загрузите съемку в свой профиль на Houzz, отправьте ссылку с кратким описанием на editorial@flatica.ru Для справки: Какие объекты мы публикуем

Комментарии 45

Райский уголок в хмуром Питере. Браво дизайнеру и белая зависть хозяйке!
Проект понравился. Люблю кирпичи, доски, балки, камины, светильники, натуральные цвета...Хотела бы для себя подобный. Минусы: сложные шторы в гостиной и спальне. Особенно для гостиной. Оформление окна такими шторами в комплекте с точечными потолочными светильниками не даёт забыть, что ты в "панельке". Хотя сами шторы добротные, но для другого проекта. Удивила фигурная раковина в ванной. И кухонная стенка могла быть более атмосферной, хотя и эта хороша.
Спасибо за добрые слова! Надеюсь, вам удастся осуществить мечту. :)

Оставьте комментарий

Читать похожие статьи