logo

Houzz тур: Квартира, вдохновленная Балтийским морем

Дизайнер закончила ремонт этой квартиры за полтора месяца. А начало дизайну дал... санузел

Екатерина Перминова
Екатерина Перминова

29 авг. 2018

Обновлено 1 окт. 2018

Постоянный автор HouzzRu, журналист

Квартира предназначалась для сдачи в аренду, и на подготовку объекта заказчик отвел всего полтора месяца.
Houzz тур: Квартира, вдохновленная Балтийским моремEkaterina Titenko
О проекте
Место: Санкт-Петербург, ЖК Skandi Klubb
Размер: 52,6 кв.м
Кто здесь живет: квартира предназначена для сдачи в аренду
Автор проекта: Ульяна Скапцова
Стилист: Анастасия Продовикова
Специалист по текстилю: Юлия Трифанова
Фото: Екатерина Титенко, Анна Чернышова

При разработке проекта дизайнер старалась использовать материалы, которые экономят время. Например, крупноформатный керамогранит (с ним меньше швов и подрезов). Но его нейтральный цвет наводил скуку, и в попытке замешать его с чем-то, что не выходило за рамки бюджета санузел при проектировании разделили на две цветовые контрастные зоны. Там, где нет соприкосновения с водой, стены окрасили в глубокий синий. И затем распространили этот цвет по всем комнатам, сделав его лейтмотивом.
Houzz тур: Квартира, вдохновленная Балтийским моремEkaterina Titenko
Из всех оттенков синего выбрали тот, что подходил к обивке кресла в гостиной и напоминал о синеве Балтики. «Кресло покупали вслепую, по каталогу шоу-рума, — рассказывает дизайнер. — И каждый оттенок краски сравнивали с фотографией, пока не нашли подходящий. К счастью, цветопередача в каталоге не подвела, и кресло приехало правильного оттенка».
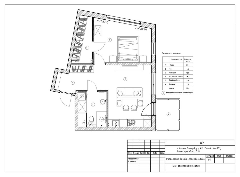
План квартиры (на плане диван стоит на другом месте)

Планировка была удачной: шведский застройщик продумал эргономику, оптимальное количество дверей и перегородок. В квартире на 52 квадратных метрах есть комната для приема гостей, большой балкон, вместительная гардеробная и спальня с окнами на две стороны.
Houzz тур: Квартира, вдохновленная Балтийским моремEkaterina Titenko
ПРИХОЖАЯ
Для прихожей дизайнер выбрала индийскую консоль из акации (фото ниже) — благородная порода задает тон интерьеру с порога. Консоль оказалась больше ниши на семь сантиметров, и поставщик аккуратно подрезал ее в размер.
Houzz тур: Квартира, вдохновленная Балтийским моремEkaterina Titenko
Консоль из акации у входа «Артефакто»; система хранения в прихожей ИКЕА

«За консолью повесили зеркало во всю стену для расширения пространства, — рассказывает Ульяна. — Размер зеркала не позволял поднять его на лифте, поэтому грузчики заносили полотно на седьмой этаж». В прихожей сделали открытый гардероб — маленькая площадь не подразумевает громоздкого шкафа, а для основной одежды есть отдельная гардеробная, предусмотренная застройщиком.
Houzz тур: Квартира, вдохновленная Балтийским моремEkaterina Titenko
КУХНЯ
Рядом с потолком в зоне кухни проходит небольшой вентиляционный канал. Его закрыли фасадами, намеренно увеличив их высоту, чтобы создать правильный объем. Стену над рабочей поверхностью покрасили в тот же оттенок синего, придав кухне больший объем и глубину. Фартук сделали из закаленного стекла Оптивайт.

Обратите внимание: Кожаные ручки добавили простым фасадам стиля.
Houzz тур: Квартира, вдохновленная Балтийским моремEkaterina Titenko
СТОЛОВАЯ
В столовой продумали все до мелочей: от удобства рассадки гостей до гаммы столовых предметов: это не тарелки для стилизации кадра — розово-матовую посуду действительно купили будущим арендаторам квартиры в пользование. В сочетании с горчичными стульями и насыщенным фартуком бледно-розовый цвет смотрится особенно выразительно.
Houzz тур: Квартира, вдохновленная Балтийским моремEkaterina Titenko
ГОСТИНАЯ
У дивана лежит виниловый израильский коврик, напоминающий модель для йоги. Выбор неожиданного материала обоснован удобством. У него бархатистая фактура, по которой приятно пройтись босиком. Сам материал прост в уходе — достаточно антибактериального спрея и тряпки.
Houzz тур: Квартира, вдохновленная Балтийским моремEkaterina Titenko
Обратите внимание: У штор два, а не три полотна на два окна — их повесили таким образом, чтобы зонировать гостиную от кухни.
Houzz тур: Квартира, вдохновленная Балтийским моремEkaterina Titenko
Рядом с дверью на балкон расположены колонна с техникой и холодильник, поэтому вместо текстиля там повесили рулонную штору-блэкаут.
Houzz тур: Квартира, вдохновленная Балтийским моремEkaterina Titenko
В гостиной: Навесная тумба, кухня и стол ИКЕА; стулья и синее бархатное кресло Deep house; диван «Неаполь», Di-Van; напольное покрытие Tarkett; ковер Beija Flor; шторы студия текстиля «Бергамо»



Houzz тур: Квартира, вдохновленная Балтийским моремEkaterina Titenko
СПАЛЬНЯ
Вид из окна спальни стал решающим фактором в выборе квартиры — с кровати можно смотреть на панораму города. Дополнительным плюсом стало второе окно в комнате.
Houzz тур: Квартира, вдохновленная Балтийским моремEkaterina Titenko
Декор над кроватью выполнен руками дизайнеров. Дизайнер придумала его в тандеме с Юлией Трифановой, специалистом по текстилю студии «Бергамо». Основой стали металлические подставки под горячее, к ним добавили шёлковые градиентно-серые шнуры.

Подставки H&M Home
Houzz тур: Квартира, вдохновленная Балтийским моремEkaterina Titenko
Шторы студия текстиля «Бергамо»; рабочий стол и лампа ИКЕА; стул La Redoute; напольное покрытие Tarkett Concept Store, Gallery Botticelli; прикроватный столик Zara Home покрыт матовым золотом в мастерской; кровать «Сокруз»
Houzz тур: Квартира, вдохновленная Балтийским моремEkaterina Titenko
САНУЗЕЛ
Ульяна учла взгляды заказчика (вместе они делают не первый проект), и в санузел установили душевую систему вместо ванны. Глянцевые позолоченные птички из Бельгии долго жили в комоде дизайнера, пока не переехали в новый проект. Они оттеняют матовый синий и дополняют золотистые элементы светильника и бахромы на шторе. За которой, кстати, скрыта зона постирочной.
Потолочный светильник H20, «Аледо свет»; душевая стойка, гигиенический душ, смеситель для раковины Kludi; раковина Roca; покраска стен и потолка — студия росписи и декора «Арт-лаборатория AnG»; бархатная штора ИКЕА; напольная и настенная плитка Kerama Marazzi



ОБ АВТОРЕ ПРОЕКТА…
Перейдите на страницу Ульяны Скапцовой, чтобы изучить другие работы из портфолио дизайнера и связаться с ним
________________________






В ВАШЕМ ГОРОДЕ…
Найдите дизайнера на Houzz в вашем городе — закажите собственный проект

У ВАС ЕСТЬ ДЛЯ НАС ПРОЕКТ…
Загрузите съёмку в свой профиль на Houzz, отправьте ссылку с кратким описанием на editorial@flatica.ru

Для справки: Какие объекты мы публикуем

Комментарии 33

anukinuk

7 л.

Попадание с синим - на отлично! Вся квартира объединилась этим синим декором.
Ну всё! Вроде всем ответила! спасибо :)
Irina Verkhovsky, возможно вы правы.. ручки меня долго мучили.. Я хотела взять другие, но те были очень дороги для нас.. в итоге решили все-таки взять эти. Про источник света над раковиной согласна. Мы не могли никак подобрать подходящий светильник. Ввиду отсутствия навесных шкафчиков, нужно было подобрать что-то другое и не противостоящее вытяжке.. в итоге решили, что будут пользоваться светом вытяжки, хотя его маловато, конечно )

Оставьте комментарий

Читать похожие статьи