
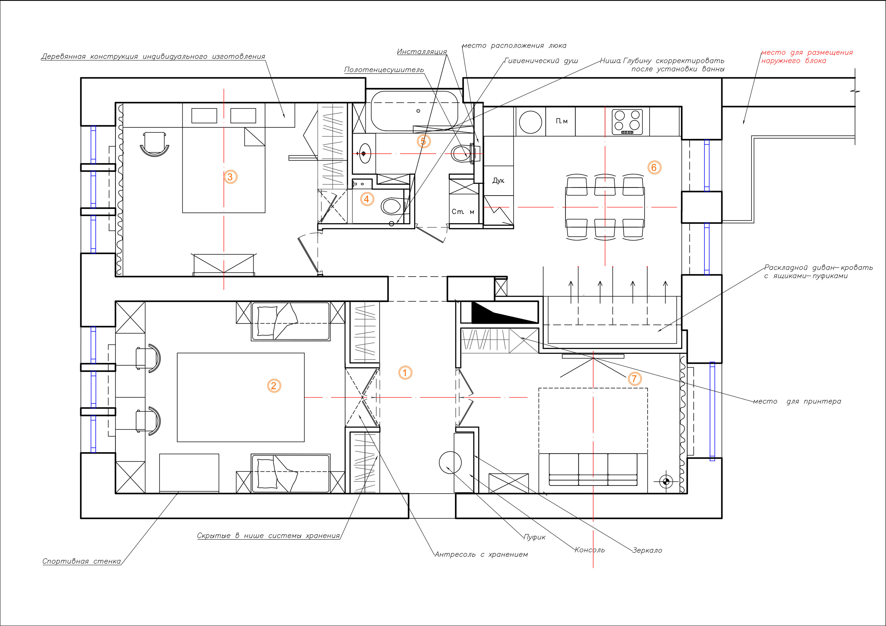
Houzz тур: Квартира в Москве, где при ремонте сохранили кухню
Евгения Назарова
13
20 авг. 2019
Обновлено 3 сент. 2019
Постоянный автор Houzz, интерьерный журналист
5 л.
6 л.

Houzz тур: Квартира в Москве, где при ремонте сохранили кухню
Евгения Назарова
13

Houzz тур: Яркий интерьер для поклонницы аниме
Евгения Назарова
27

Houzz тур: Неоклассика в старом фонде – с цветными потолками
Евгения Назарова
26

Houzz тур: Квартира в оттенках песчаных берегов
Houzz Россия
8

Houzz тур: Квартира с журавлями и экзотическими птицами
Houzz Россия
12

Houzz тур: 64 кв.м — квартира в цветах блога хозяйки
Houzz Россия
16

До и после: 35 кв.м — квартира для «мамы с характером»
Houzz Россия
68

Houzz тур: Лофт в Петербурге с домиком для собак
Евгения Назарова
38

Houzz тур: Квартира с настроением юга Франции
Евгения Назарова
12

Houzz тур: Современный ар-деко для молодой семьи
Евгения Назарова
15

Houzz тур: Квартира в Уфе с яркой кухней и монохромной спальней
Евгения Назарова
27

Houzz тур: Квартира для артистов оперного театра
Houzz Россия
21

Houzz тур: 65 кв.м —квартира в новостройке с ремонтом за 4 месяца
Евгения Назарова
24

Houzz тур: Ремонт без переезда (!) — и всего за четыре месяца
Евгения Назарова
13

Houzz тур: Квартира в сложных оттенках — в Зюзине
Houzz Россия
15

Houzz тур: Квартира на Плющихе в бывшем доходном доме
Евгения Назарова
14

Houzz тур: Квартира как дорогой отель
Houzz Россия
9

Houzz тур: 49 кв.м — квартира, наполненная цветом
Houzz Россия
18
Марьяна Ми
5 л.