logo

Houzz тур: Квартира в Перми с умным стеклом

Заказчики оказались принципиальными противниками ... паркета

Евгения Назарова
Евгения Назарова

24 апр. 2020

Обновлено 19 авг. 2020

Постоянный автор Houzz, интерьерный журналист

Houzz тур: Квартира в Перми с умным стекломВалерия Сливко
Вид на гостиную. Диван фабрики Bonaldo, плед Missoni home, люстра над столом бельгийской фабрики Tossb.
Главным пожеланием заказчиков к будущему интерьеру был большой кухонный остров – он и стал центром объединённой кухни-гостиной. Для остальных комнат дизайнер Валерия Сливко тоже придумала решения от смарт-стекла на границе между спальней и ванной до остроумной игры с графикой в детских спальнях.
Houzz тур: Квартира в Перми с умным стекломВалерия Сливко
Вид на столовую зону. Хозяйка квартиры не хотела шторы в пол, но нужно было предусмотреть вариант, где можно было бы закрыться от соседнего дома. На рамы мы установили полупрозрачные шторы - плиссе, и дополнили их римскими шторами. Тонкие подоконники и трубчатые радиаторы дополнили образ. Стол с керамической поверхностью от Cattelan, стулья Kartell
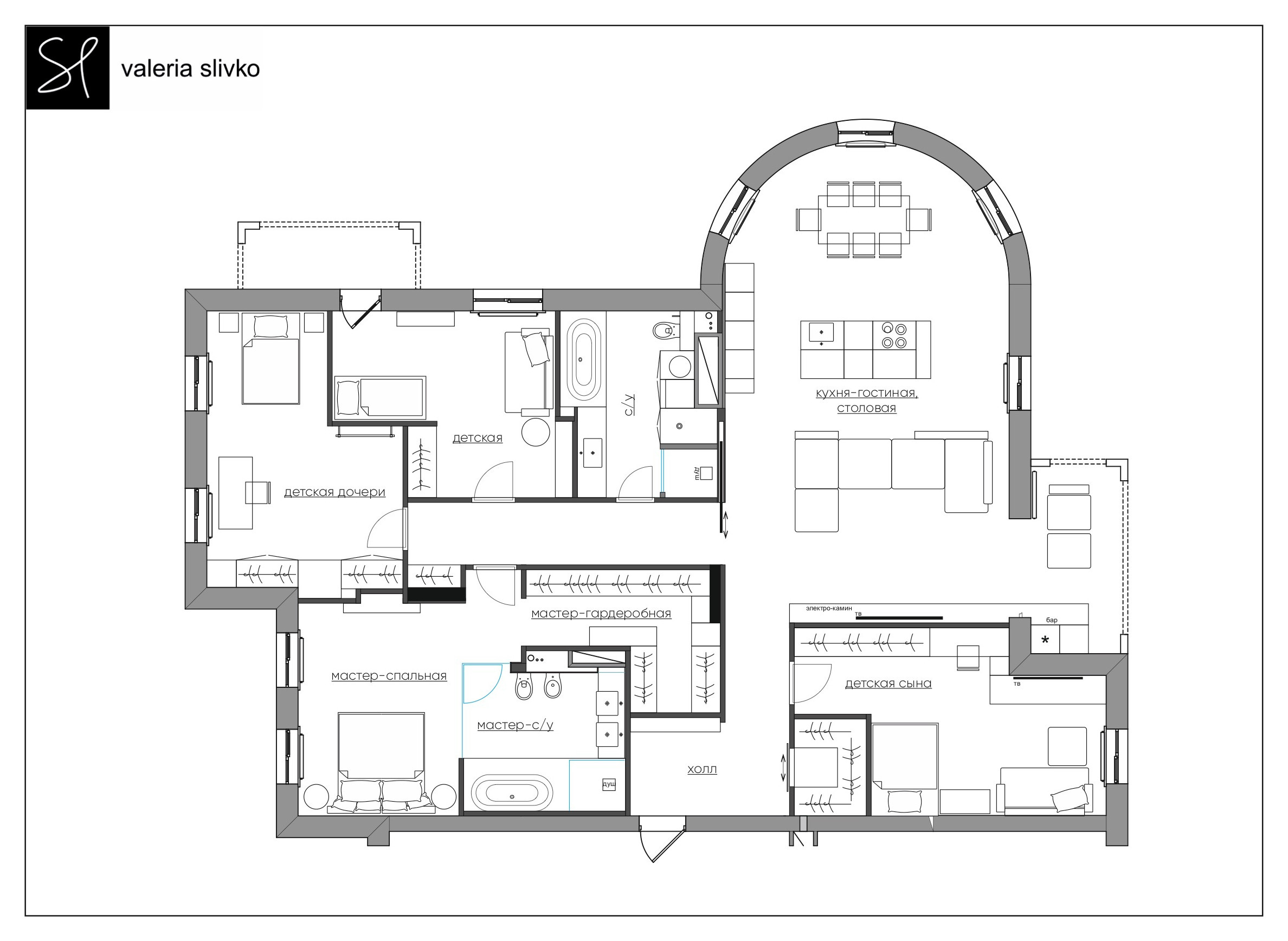
О проекте
Место: Пермь
Размер: 220 кв. м; высота потолков 2,7 м
Кто здесь живёт: семья с двумя детьми
Дизайнер проекта: Валерия Сливко



———————————————
В ВАШЕМ ГОРОДЕ…
Через Houzz можно нанять дизайнера или архитектора в любом городе и стране. Начать поиск специалиста
———————————————
Houzz тур: Квартира в Перми с умным стекломВалерия Сливко
Прихожая. На полу светлый керамогранит от Italon, стены выкрашены в светлые тона, дополнены шпонированными панелями. Слева зеркальная откатная дверь в гардеробную комнату. Банкетка сделана на заказ.
Напольная плитка Italon; банкетка изготовлена на заказ

ПРИХОЖАЯ
Базовые оттенки и материалы не меняются от помещения к помещению, и первое знакомство с ними происходит уже в прихожей. Стены в этой зоне, как и во всей квартире, выкрасили светлой краской, а некоторые зоны акцентировали шпонированными панелями. Дверь в гардеробную комнату сделали откатной и дополнили ростовым зеркалом в размер полотна.
Houzz тур: Квартира в Перми с умным стекломВалерия Сливко
Вид от кухонного острова на ТВ зону. Остров сделан из камня. Раковина - нержавейка, Blanco. Справа шпонированные панели из дуба, и раздвижная дверь в личную зону. ТВ зона сделана в Перми на заказ. Глянцевый лак и шпон камня. Встроили винный шкаф.
Houzz тур: Квартира в Перми с умным стекломВалерия Сливко
кухня от фабрики Modulnova, остров из натурального камня, вдоль стены - белый матовый лак. Над островом мы разместили подсветку, вытяжку.
КУХНЯ
«Сделайте нам, пожалуйста, кухню с островом, все остальное не так важно», с этой фразы заказчицы началась работа над проектом. Поэтому за характер кухни-гостиной отвечает именно кухня: гарнитур собрали из трёх материалов и без лишнего декора, чтобы не отвлекать внимание от красоты лаконичных больших поверхностей.

Остров заказали в камне, фасады встроенной мебели в белом матовом лаке. Эти материалы сочетаются со шпонированными дубовыми панелями, маскирующими вход в приватную зону.
Houzz тур: Квартира в Перми с умным стекломВалерия Сливко
Совмещенная кухня, столовая, гостиная. Кухня фабрики Modulnova, белый матовый лак, остров из натурального камня. Раковина - нержавейка Blanco Шпонированные панели из дуба .
Кухня Modulnova; раковина Blanco; стол с керамической поверхностью Cattelan Italia; стулья Kartell; люстра Tossb
Houzz тур: Квартира в Перми с умным стекломВалерия Сливко
Вид на столовую зону. Стол с керамической поверхностью от Cattelan, стулья Kartell, люстра фабрики Tossb
Идея и решение: Хозяйка квартиры не хотела вешать шторы в пол, но просила придумать способ закрыться от окон соседнего дома. На рамы установили полупрозрачные шторы-плиссе и дополнили их римскими шторами.
Houzz тур: Квартира в Перми с умным стекломВалерия Сливко
Совмещенная гостиная, кухня, столовая. Тв - зону делали в Пермской мастерской. Белые лаковые панели, шпон камня, бар, электро - камин.
Шина для подсветки Donolux; диван и кресло Bonaldo

ГОСТИНАЯ
У Валерии и заказчиков почти сразу случилось стопроцентное совпадение вкусов: обе стороны ценят натуральные материалы, белые стены, лаконичные решения. Загвоздка случилась только с напольным покрытием: клиенты не соглашались на паркетную доску. «В квартире, где они жили раньше, некачественный паркет превратился в обшарпанный пол. Никакие доводы не могли убедить их купить паркет снова, в итоге мы остановились на ламинате», рассказывает дизайнер.

ТВ-зону из белых лаковых панелей сделали на заказ в одной из пермских мастерских, дополнили электрокамином и мини-баром.
Houzz тур: Квартира в Перми с умным стекломВалерия Сливко
Мастер - спальная с стеклянной перегородкой в ванную комнату. Кровать и банкетку мы делали в перми, ткань для обивки заказывали из Франции.
Houzz тур: Квартира в Перми с умным стекломВалерия Сливко
СПАЛЬНЯ ХОЗЯЕВ
В спальне сделали стеклянную перегородку из Smart Glass: это умное стекло с регулируемой прозрачностью, которым можно управлять с пульта или выключателя. Кровать и банкетку сделали на заказ в Перми, но обили французскими тканями.
Houzz тур: Квартира в Перми с умным стекломВалерия Сливко
Хозяева мечтали о камине в спальной. Портал мы облицевали керамогранитом. Бра по бокам привезли из Америки
Бра около камина Mitzi, HVGroup

Напротив кровати установили каминный портал это был один из важных пунктов в ТЗ заказчиков. Портал облицевали чёрным керамогранитом, который сочетается с отделкой ванной комнаты.
Houzz тур: Квартира в Перми с умным стекломВалерия Сливко
ВАННАЯ ПРИ СПАЛЬНЕ
Крупноформатный керамогранит для хозяйской ванной нашли на выставке Cersaie. Выбирать и заказывать материал пришлось по фотографиям с телефона, так как каталогов и образцов новой коллекции тогда ещё не было. «Но в итоге у нас получилось идеальное сочетание керамогранита и шпона дуба», отмечает Валерия.
Houzz тур: Квартира в Перми с умным стекломВалерия Сливко
Детская девочки. Хозяйку комнаты зовут Мика, поэтому кроватка с ушами как у Микки Мауса всем понравилась. Тумбочки от Икея, прозрачный стул Kartell, коврик от Zara Home
Прикроватные тумбы ИКЕА, прозрачный стул Kartell; коврик Zara Home

ДЕТСКАЯ ДЛЯ ДОЧЕРИ
У заказчиков двое детей разного пола, и каждому в новой квартире досталось по комнате, пусть небольшой, но своей. Хозяйку этой спальни зовут Мика, поэтому кроватка с ушами, как у Микки Мауса, пришлась кстати.
Houzz тур: Квартира в Перми с умным стекломВалерия Сливко
Детская мальчика, оригинальное бра от итальянской фабрики Karman, диван делали на заказ. Полоски на стенах рисовали краской, затем дополнили их шторами. На полу ламинат, коврик от Zara home
Бра Karman; коврик Zara Home

ДЕТСКАЯ ДЛЯ СЫНА
Диван в спальне сына, как и почти всю мягкую мебель в квартире, сделали на заказ. Обратите внимание на геометричный декор стены: горизонтальную линию, выполненную краской, продолжили на том же уровне на шторах.

ОБ АВТОРЕ ПРОЕКТА…
Перейдите на страницу Валерии Сливко, чтобы изучить другие работы в портфолио дизайнера или заказать собственный проект
__________________________________

У ВАС ЕСТЬ ДЛЯ НАС ПРОЕКТ
Загрузите съёмку в свой профиль на Houzz, отправьте ссылку с кратким описанием на RuEditors@houzz.com

Для справки: Какие объекты мы публикуем

Комментарии 7

pannakotu

5 л.

скажите, диван в комнате сына какой мебельной фабрики? спасибо
Знакомые уши.... хорошая площадь и окон много, возможно, предложенный вариант Планировки наиболее удачный, но впечатление -углы и коридоры.
Интерьер красивый и модный. Особенно понравилась графичность обеденной зоны. Но опять вижу много родительских понтов - и мрамор, и камин, и сто метров гардеробных, в общем, чтобы подружки ахнули. Только уюта ноль. А детям - по остаточному принципу, и комнатки маленькие, и тумбочки ИКЕА, и коврик ZARA HOME, а в комнате сына даже сфотографировать нечего.

Оставьте комментарий

Читать похожие статьи