logo

Houzz тур: Квартира, в окна которой хочется заглянуть

Хозяева наслаждаются своей квартирой не только находясь в ней, но и прогуливаясь около дома и заглядывая в окна

Houzz Россия
Houzz Россия

22 нояб. 2021

Обновлено 22 дек. 2021

«Строительство и завершение проекта пришлись на период пандемии, что растягивало сроки. Но мы достаточно емко и хорошо работали, а заказчики шли нам навстречу. Так что получилось довольно быстро завершить проект», — рассказывает дизайнер Татьяна Аленина.
Houzz тур: Квартира, в окна которой хочется заглянутьТатьяна Аленина
О проекте
Место: Москва, Плющиха
Год: 2021
Размер: 140 кв.м
Кто здесь живет: молодая пара с сыном 11 лет
Дизайнеры проекта: Владимир Красильников и Татьяна Аленина, «Дизайн-бюро Татьяны Алениной»
Фото: Сергей Красюк

————————————————–
СПРОСИТЕ У ДИЗАЙНЕРА НАПРЯМУЮ…
Есть уточняющие вопросы? Хотите заказать проект дизайнеру этой квартиры? Свяжитесь с автором проекта в один клик
———————————————
Houzz тур: Квартира, в окна которой хочется заглянутьТатьяна Аленина
УВАЖЕНИЕ К МЕСТУ И ДОМУ
Для дизайнеров было важно, чтобы интерьер соответствовал местоположению дома центру Москвы. «Кроме того, мы деликатно отнеслись к специфике самого дома. Это капитальный дом бизнес-класса, с хорошими материалами, с красивой входной группой, в современном классическом стиле. Конечно, мы не стали продолжать неоклассическую историю с лепниной и создали современный интерьер, но при этом проявили деликатность по отношению к классической основе дома», — продолжает Татьяна Аленина.
Houzz тур: Квартира, в окна которой хочется заглянутьТатьяна Аленина
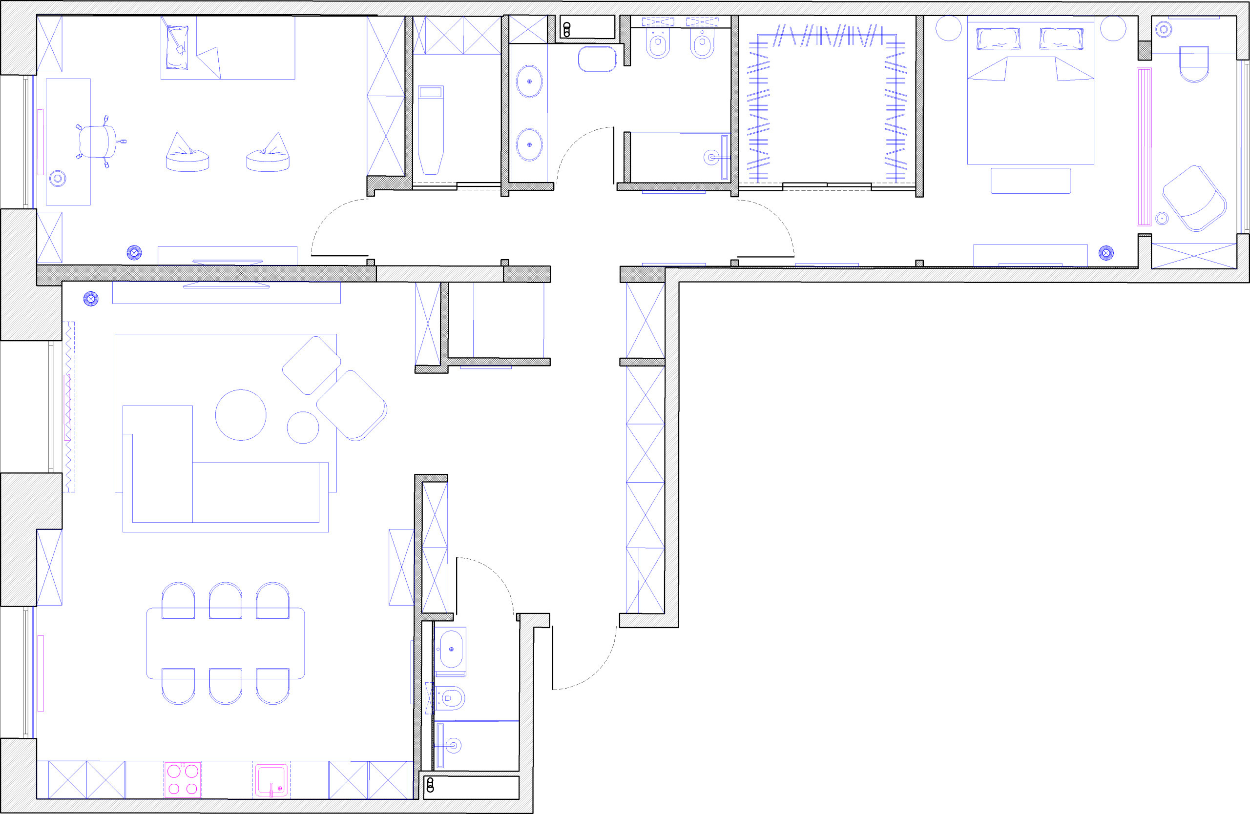
Планировка квартиры

Квартира по одной стороне «растянута» от окна до окна, «распластанную» часть разделили на два приватных пространства. В большом блоке справа организовали спальню заказчиков с гардеробной, в левом — комнату сына и постирочную, а посередине между ними расположили санузел.

Дизайнеры не стали «мельчить» квартиру, сделали все помещения масштабными, включая общее пространство гостиной-кухни-столовой. Масштабность дает много воздуха, и в этом, опять же, проявляется уважение к основам классической архитектуры.
Houzz тур: Квартира, в окна которой хочется заглянутьТатьяна Аленина
Гостиная: кресло Baxter; вазы GK Concept; ковер по дизайну Яна Ката, Kover Buro; пол из массивной доски «Золотой лес»

ЦВЕТОВАЯ ПАЛИТРА

В этом сложном по цвету пространстве собрано много разных оттенков. «Если говорить о том, что важно в проекте, я бы выделила цвет. Хотя цветом отличаются все наши проекты это всегда многосложное сочетание. Здесь хорошей основой вошли глубокий зеленый, землистый и горчичный», — рассказывает дизайнер.
Houzz тур: Квартира, в окна которой хочется заглянутьТатьяна Аленина
ПРИХОЖАЯ
Главные цвета проекта — оттенки зеленого, горчичного и землистого начинаются в прихожей. На полу лежит плитка землисто-шоколадно оттенка. Стены и потолок покрашены в фисташковый французской краской Argile. Столярные изделия выполнены в шпоне землисто-коричневого цвета.

Слева от входа находится гостиная, впереди приватная часть. При входе взгляд падает на картину, висящую на противоположной стене. «Мы купили очень красивые картины Вики Бегальской и Александра Вилкина. Расшифровать затронутые в этой картине темы невозможно. Мы увидели здесь посыл к изобилию, здоровью и наполненности, по аналогии с творчеством итальянского живописца Джузеппе Арчимбольдо, писавшего портреты людей из фруктов и прочих атрибутов изобилия», — вспоминает Татьяна.
Houzz тур: Квартира, в окна которой хочется заглянутьТатьяна Аленина
Все столярные изделия в квартире «Мастерская Сергея Карташева»; краска для стен и потолков Argile; плитка Gigacer, салон Krassky; картина Вики Бегальской и Александра Вилкина, Marina Gisich Gallery

Одно из достоинств проекта изобилие систем хранения. Вдоль стен прихожей расположились шкафы, в которых хранится спортивный инвентарь, верхняя одежда, спрятаны сантехнические и технические моменты, все скрыто от глаз, сохраняя чистоту пространства.

Справа от входа находится сиденье с полочками для мелочей и зеркало, в котором отражаются фасады шкафа напротив. Отделка фасадов эмаль близкого к цвету стен оттенка.
Houzz тур: Квартира, в окна которой хочется заглянутьТатьяна Аленина
ГОСТЕВОЙ САНУЗЕЛ
Цветовая палитра прихожей сгущается и перетекает в гостевой санузел, расположенный слева от входа в квартиру. Стены и потолок санузла покрашены в такой же, как в прихожей, фисташковый. Самый выразительный элемент здесь — мозаичная плитка из длинных вертикальных полосок густого зеленого цвета.
Houzz тур: Квартира, в окна которой хочется заглянутьТатьяна Аленина
Плитка Gigacer, салон Krassky; сантехника Cielo; смесители Zucchetti
Houzz тур: Квартира, в окна которой хочется заглянутьТатьяна Аленина
Диван, кресло, пуф, столики и люстра Baxter; шторы и подушки Holland & Sherry

ГОСТИНАЯ
Горчично-землисто-зеленая гамма продолжается в гостиной, распространяясь таким образом по всей общественной части квартиры. Стены и потолок покрашены все в тот же фисташковый. Диван обит антивандальной (в семье есть собачка) кожей землисто-коричневого цвета. Подушки на диван подобрали оливкового и глубокого травянистого оттенка. Кресло обито замшей горчичного цвета.
Houzz тур: Квартира, в окна которой хочется заглянутьТатьяна Аленина
Фрагмент гостиной; торшер Catellani & Smith; кожаные корзины Pinetti
Houzz тур: Квартира, в окна которой хочется заглянутьТатьяна Аленина
Кухня Leicht; обеденный стол и стулья Bonaldo; люстра Baxter; вазы Guaxs, салон «Предметы»

КУХНЯ И СТОЛОВАЯ
Минималистичная кухня с фасадами из темного дерева, столешницей и фартуком из темно-графитового гранита поддерживает целостность и некоторую строгость пространства. Картину оживили, добавив ярких красок с помощью ярко-бирюзовых стульев. Люстра витает над обеденным столом, как мягкое облако.
Houzz тур: Квартира, в окна которой хочется заглянутьТатьяна Аленина
«В основном наши объекты расположены на высоких этажах. Эта квартира находится на третьем. Заказчики рассказывали, что им нравится, прогуливаясь около дома, заглядывать в окна своей квартиры, когда открыты шторы. Нравится видеть, как красиво горит люстра над обеденным столом, радоваться многообразию цвета. Они поддерживают тенденцию жизни с открытыми портьерами, доступом воздуха и света несмотря на то, что это центр города и здесь многолюдно. Есть в этом доступе для взгляда некая открытость, легкость и воздушность», — делится Татьяна.
Houzz тур: Квартира, в окна которой хочется заглянутьТатьяна Аленина
Стены и потолок покрашены в один цвет. «При таком подходе границы стираются и пространство ощущается цельным. Интересно было заметить это, заглядывая в окна квартиры, — увидеть такое обволакивающее пространство», — продолжает Татьяна.
Houzz тур: Квартира, в окна которой хочется заглянутьТатьяна Аленина
Картина Вики Бегальской и Александра Вилкина, Marina Gisich Gallery; краска для стен и потолков Argile

Палитра столовой деликатно повторилась на картине. «В эту живописную работу, как и другие работы Вики Бегальской и Александра Вилкина, легко влюбиться. Полупрозрачную живопись этих художников отличают тонкая лессировка и очень сложная раскладка цвета. Это изысканное, интеллигентное искусство удивительно точно легло в этот проект», — считает дизайнер.
Houzz тур: Квартира, в окна которой хочется заглянутьТатьяна Аленина
Поднос GK Conсept; ковер диз. Яна Ката, Kover Buro

«В интерьере использовано множество фактур: замша, кожа, хлопок с вискозой, лен, кашемир. Соединение фактур со сложными оттенками делает проект очень чувственным», — рассказывает Татьяна.
Houzz тур: Квартира, в окна которой хочется заглянутьТатьяна Аленина
Все пропорции выверены: дизайнеры очень тщательно подобрали все материалы по цветовым, тактильным ощущениям и форме. «Когда мы соединяем оттенки, формы и фактуры, мы во многом это чувствуем на подсознательном уровне», — уточняет дизайнер.
Houzz тур: Квартира, в окна которой хочется заглянутьТатьяна Аленина
На фото: на заднем плане — лоджия в спальне родителей, слева — гардеробная за стеклянными дверями, справа — зеркало
Houzz тур: Квартира, в окна которой хочется заглянутьТатьяна Аленина
Кровать Pianca; постельное белье и пледы Atelier Tati; декоративные подушки Holland & Sherry; прикроватный столик и банкетка Gubi; подвесные светильники Wever & Ducré

СПАЛЬНЯ РОДИТЕЛЕЙ
К спальне присоединили лоджию и организовали здесь удобное рабочее место.
Houzz тур: Квартира, в окна которой хочется заглянутьТатьяна Аленина
Спальня достаточно светлое по сравнению с гостиной пространство и отличается от остальных помещений по цвету. Здесь главные оттенки — лавандовые, присутствует некоторое количество синих и серых. Стены покрашены в светло-лавандовый, изголовье синее, а стул у окна ближе к фиолетовому. Небольшой штрих, дополняющий образ спальни — тонкая деликатная графика, создаваемая светильником, прикроватным столиком, розетками, полосками на покрывале.
Houzz тур: Квартира, в окна которой хочется заглянутьТатьяна Аленина
Стул Bonaldo; настольная лампа Fontana Arte; римские шторы из кашемира Holland & Sherry
Houzz тур: Квартира, в окна которой хочется заглянутьТатьяна Аленина
ГЛАВНЫЙ САНУЗЕЛ
По просьбе заказчиков санузел сделали нейтральным. Его главные достоинства — объемная тумба с местами для хранения и большой душ. Несмотря на черно-белую графичность, все цвета здесь ощущаются мягкими.
Houzz тур: Квартира, в окна которой хочется заглянутьТатьяна Аленина
На фото: коридор приватной части; впереди на заднем плане — детская
Houzz тур: Квартира, в окна которой хочется заглянутьТатьяна Аленина
ДЕТСКАЯ
В детской все создает настроение, которое очень соответствует ее хозяину. Он занимается музыкой, много читает и, несмотря на юный возраст, уже довольно взрослый.

Мальчику понравилась выбранная колористика. Стены, покрашенные в нейтральный серо-бежевый оттенок, создают фон для насыщенных синих и бирюзовых акцентов.
Houzz тур: Квартира, в окна которой хочется заглянутьТатьяна Аленина
Кровать Twills; подушки из ткани от Holland & Sherry; бра Fontana Arte; табурет Moustache, GK Concept; картина Миши Most; пол из массивной доски «Золотой лес», краска для стен Argile

Картина на стене — живописная работа известного стрит-арт художника Миши Мost «Артмосфера». Мальчик сам выбрал её на выставке современного искусства. «Это не только вклад молодого поколения в создание интерьера, умение выбирать предметы искусства в юном возрасте хороший посыл на будущее», — считает дизайнер.
Houzz тур: Квартира, в окна которой хочется заглянутьТатьяна Аленина
Чтобы разложить все книги, потребовались шкафы со множеством полок. Отдельная тема LEGO: его оказалось так много, что им можно было покрыть все поверхности в комнате. Всю эту огромную коллекцию решили убирать в ящики-пуфы.
История создания интерьера не закончилась с завершением проекта. Эта квартира — не застывшее пространство и продолжает развиваться. «Заказчики продолжают собирать интерьер. Нам приятно, когда они советуются с нами, покупая аксессуары. Мы рады, что им хорошо живется в созданном нами пространстве, что они здесь счастливы. Об этом пишут сами хозяева, и мы это почувствовали, когда недавно виделись с ними», — заканчивает рассказ Татьяна.

В ВАШЕМ ГОРОДЕ…
Через Houzz можно нанять дизайнера или архитектора в любом городе и стране начать поиск специалиста
———————————

У ВАС ЕСТЬ ДЛЯ НАС ПРОЕКТ…
Загрузите съёмку в свой профиль на Houzz, отправьте ссылку с кратким описанием на editorial@flatica.ru

Для справки: Какие объекты мы публикуем

Комментарии 19

Мне сначала тоже показалось темновато, но пересмотрев интерьеры несколько раз поменяла своё мнение. Получились очень уютные и обволакивающие помещения,которые совершенно не подавляют, а большая площадь и панорамные окна оставляет простор и свободу. И конечно на этом фоне потрясающе смотрятся картины и воздушный светильник над столом. Этот интерьер действительно с благодарностью выделяет предметы искусства, поэтому его интересно наполнять. Единственное сожаление для меня это что дизайнеры всё Лего убрали с глаз долой, нет возможности выставить уже собранные конструкции. Для многих любителей Лего это важно. . т
Madina

4 г.

Если не читать текст, то выглядит мрачно и скучно.
kiririna

4 г.

Отличная планировка, материалы, мебель. Но уж слишком мглисто-землисто.

Оставьте комментарий

Читать похожие статьи