logo

Houzz тур: Квартира в Москве с атмосферой Нью-Йорка и Лондона

Хозяйка квартиры без ума от Нью-Йорка, а дочь обожает Лондон

Наталия Тверитинова
Наталия Тверитинова

22 нояб. 2021

Обновлено 27 февр. 2022

Постоянный автор Houzz, интерьерный и архитектурный журналист.

Интерьер этой квартиры совмещает эстетику залитых солнцем нью-йоркских лофтов, бельгийские мотивы и атмосферу Лондона. Дизайнеры отталкивались от присущей нью-йоркским квартирам атмосферы свободы, открытости пространства, большого количества естественного света и масштабности мышления.
Houzz тур: Квартира в Москве с атмосферой Нью-Йорка и Лондона
«Добиваясь лофтовой атмосферы, пространство сделали целостным, без особых стилистических раздроблений на маленькие помещения. Поэтому основным тоном для оформления квартиры выбрали серый », — рассказывает Анна Агапова. Во всех комнатах стены покрашены американскими красками в одинаковый светло-серый цвет, двери также светло-серые, а пол тёмно-серый наливной, под бетон. При этом квартира не перегружена мебелью, что делает её ещё просторнее.
Houzz тур: Квартира в Москве с атмосферой Нью-Йорка и Лондона
Стол Tom Faulkner; диваны Henge и Autoban21; люстра Ochre; ковёр Riviere Rugs; картины — работы московской художницы Ольги Шагиной; подушки de Le Cuona; плед Etro; краска для стен Pittsburgh Рaints; двери ral 9002 О проекте Место: Москва, Нагорный бульвар Размер: четырёхкомнатная квартира, 132 кв.м Кто здесь живёт: владелица креативного агентства с дочерью Дизайнеры проекта: Анна Агапова и Олег Клодт, Oleg Klodt Architecture & Design Фото: Сергей Ананьев ——————————————— В ВАШЕМ ГОРОДЕ… ► Через Houzz можно нанять дизайнера или архитектора в любом городе и стране — начать поиск специалиста ———————————————
Houzz тур: Квартира в Москве с атмосферой Нью-Йорка и Лондона
Заказчица согласилась на смелые решения: сделать во всех помещениях бетонные наливные полы, отказаться от портьер и тем самым добавить в интерьер элементы индустриального лофта. На окна решили установить деревянные жалюзи. В светлое время дня они контрастируют с пробивающимся из окон светом и добавляют графики. « Кроме того, с помощью больших окон в тёмном контрастном обрамлении и, отказавшись от портьер, м ы хотели передать в квартире ощущение Нью-Йорка », — рассказывает Анна Агапова. Тут дизайнеры учли, что жители Нью-Йорка как раз предпочитают окна в тёмных рамах без штор.
Houzz тур: Квартира в Москве с атмосферой Нью-Йорка и Лондона
Все помещения объединили общим нейтральным фоном и добавили яркие акценты: красные, синие, оранжевые, жёлтые. Чёрный цвет также играет роль акцентного, создаёт контрасты и добавляет графики. Графичность интерьеру придают обрамление окон, рамы картин, декор, радиаторы отопления, ножки столиков, светильники.
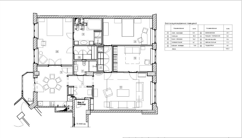
Планировка квартиры Поскольку дом новый, планировку делали с нуля. Пространство организовали так, что справа и слева от холла расположены общие помещения, каждое из которых ведёт в приватное. Из прихожей мы попадаем в холл. Из него налево — в кухню-столовую и далее в спальню заказчицы с гардеробной и ванной комнатой. Справа от холла находится гостиная, из которой можно попасть в кабинет, а через коридор-гардеробную — в детскую. Второй санузел расположен напротив холла.
Houzz тур: Квартира в Москве с атмосферой Нью-Йорка и Лондона
ГОСТИНАЯ В большой гостиной в духе 1960-х ощущаются бельгийские мотивы. «Бельгийский стиль — лёгкий и современный. Также в гостиной есть диван бельгийского бренда. А ещё в Бельгии на окна не вешают портьеры», — объясняет Анна Агапова. Выбранные дизайнерами акценты выразительно смотрятся на светло-сером фоне. Сотканные вручную в Непале ковры британского бренда Riviere Rugs, текстиль и комфортная мягкая мебель компенсируют индустриальную холодность наливных полов.
Houzz тур: Квартира в Москве с атмосферой Нью-Йорка и Лондона
Фрагмент гостиной: консоль Mitchell Gold & Bob Williams; лампа Le Deun С линиями на стене рифмуются тонкие очертания ножек стола и светильника в виде круга. « Прорисовки на стене — четверти от филёнок, которыми мы задавали определённый ритм. На фоне стены очень красиво смотрится тонкий графичный светильник из металла. Мы не хотели утяжелять пространство, поэтому выбрали « невесомую » консоль на тонких ножках », — уточняет Анна Агапова.
Houzz тур: Квартира в Москве с атмосферой Нью-Йорка и Лондона
КУХНЯ И СТОЛОВАЯ Заказчица мало готовит и не нуждалась в слишком функциональной кухне . Стену, где обычно располагаются навесные шкафы, оформили ф актурными металлическими панелями. «Чтобы не утяжелять пространство, мы не стали делать в зоне кухни навесные шкафы. Без них помещение выглядит лёгким и современным. Металлические панели хорошо сочетаются с наливным полом и графичными окнами с деревянными жалюзи » , — объясняет Анна Агапова. А акцентная металлическая стена дополняет атмосферу лофта.
Houzz тур: Квартира в Москве с атмосферой Нью-Йорка и Лондона
Металлические панели De Castelli; кухня Eggersmann; плита Kuppersbusch; стол Restoration Hardware; стулья Magis design; ваза Anna Torfs; люстра Restoration Hardware Подстолье обеденного стола выполнено из смещённых колец фанеры. Столешница круглой формы продолжает тему чёрной графики и акцентов.
Houzz тур: Квартира в Москве с атмосферой Нью-Йорка и Лондона
Краска для стен Pittsburg Paints; ковёр Toulemonde Bochart; светильник Lucie Koldova; письменный стол Mitchell Gold; настольная лампа Gubi; стул Brabbu; диван Flexform; подушки de Le Cuona; плед Etro; столик Julian Chichester; статуэтка Gardeco КАБИНЕТ Кабинет выполнен в стиле нью-йоркского лофта. Здесь преобладают серые оттенки: от светло-серого на стенах до тёмного графитового в деталях. «Индустриальное настроение» в комнате создают наливной пол под бетон, потолочный светильник и приглушённый терракотовый цвет ковра, напоминающий о старых кирпичах.
Houzz тур: Квартира в Москве с атмосферой Нью-Йорка и Лондона
Кровать The Sofa & Chair Company; спинка кровати и зеркальные панели сделаны на заказ по проекту Oleg Klodt; прикроватные столики Mitchell Gold; лампы на столиках Turner португальского бренда Delightfull; подушки de Le Cuona; плед Etro; люстра Vaughan; ковёр Riviere Rugs СПАЛЬНЯ Наливной пол смягчили ковром ручной работы. Стену за кроватью выделили с помощью огромного мягкого изголовья и панелей из состаренных зеркал. « Состаренные зеркала — один из наших любимых приёмов в интерьере, они выглядят более естественно, нежели чистые. Очень высокое изголовье соответствует “неизвестному” масштабу “ расширенного” зеркалами пространства — сама комната небольшая » , — делится Анна Агапова.
Houzz тур: Квартира в Москве с атмосферой Нью-Йорка и Лондона
Размещение в небольшом пространстве спальни таких крупных элементов, как изголовье, зеркальные панели и люстра — это игра масштабами, визуально увеличивающая пространство. К тому же масштабность мышления присуща нью-йоркским квартирам, когда вся стена становится изголовьем, а пол покрывает большой ковёр во всю комнату.
Houzz тур: Квартира в Москве с атмосферой Нью-Йорка и Лондона
Напольная лампа Eichholtz; кресло Brabbu; плед Etro В нейтральную палитру спальни добавили жизнерадостный акцент в виде ярко-жёлтого кресла.
Houzz тур: Квартира в Москве с атмосферой Нью-Йорка и Лондона
Комод Julian Chichester; ваза Asiatides Над тёмно-серым комодом на светло-серой стене отлично смотрится литография Анри Матисса из серии «Голубая обнажённая». В работе художник использовал лишь два цвета, чтобы изобразить покой, чистоту, размеренность и гармонию. То, к чему стремился Матисс, важно и для этого пространства.
Houzz тур: Квартира в Москве с атмосферой Нью-Йорка и Лондона
Консоль Mis en Demeure; ваза Anna Torfs « В своих проектах мы зачастую используем консоли. Маленький и элегантный предмет мебели идеально вписался в пространство спальни между двумя окнами » , — рассказывает Анна Агапова. К онсоль, декор на ней, обрамление окон и рамка картины на стене создают контрасты и добавляют графики.
Houzz тур: Квартира в Москве с атмосферой Нью-Йорка и Лондона
КОМНАТА ДЕВОЧКИ Интерьер детской создавался с учётом интересов дочери заказчицы. Девочка увлечена английской культурой и любит Лондон. «Лондонская» детская — единственное помещение, где присутствует британская стилистика. Детская насыщена английскими мотивами и выполнена в цветах британского флага. Кроме того, в комнате девочки архитекторы передали атмосферу Лондона, используя яркие акценты в виде традиционных символов столицы Великобритании.
Houzz тур: Квартира в Москве с атмосферой Нью-Йорка и Лондона
Необычный светильник над кроватью выполнен в виде схемы лондонского метро. Его изготовила на заказ голландская дизайнерская студия Ontwerpduo . Для полноты картины на стене написали названия станций .
Houzz тур: Квартира в Москве с атмосферой Нью-Йорка и Лондона
Пол бетонный наливной; на стенах краска Pittsburg Paints и фотообои; люстра Moooi; прикроватные столики Eichholtz; светильник у кровати Ontwerpduo; подушки de Le Cuona; плед Etro; книжный шкаф Autoban; кресло Andrew Martin; лампа Norlys; письменный стол и дверь сделаны по проекту Oleg Klodt; стул emmegiseating Книжный шкаф рифмуется со светильником на стене. Тему города поддерживают потолочный светильник, выполненный в виде дерева из тонких металлических прутьев, и уличный фонарь, расположившийся рядом с письменным столом у окна и играющий роль настольной лампы и торшера.
Houzz тур: Квартира в Москве с атмосферой Нью-Йорка и Лондона
Одна из стен в детской превратилась в лондонский центр , когда её оклеили фотообоями с видом на Вестминстерское аббатство. Такое изображение создаёт перспективу и тем самым визуально расширяет границы и меняет пропорции помещения. Д верь в комнату замаскировали под заднюю часть кузова лондонского даблдекера — известного во всём мире двухэтажного красного автобуса, ставшего одним из символов города.
Houzz тур: Квартира в Москве с атмосферой Нью-Йорка и Лондона
Зеркало Gubi; люстра Arteriors; бра Bert Frank ВАННАЯ КОМНАТА Стены ванной покрасили в бежевый цвет. Специально для этой комнаты авторы проекта разработали тумбу с фасадами цвета дерева и настольной раковиной. Зеркало и бра приобрели у бельгийских брендов.
Пол бетонный наливной; стены MDF Panels; люстра Troy Lightning; зеркало SOANE Britain; банкетка Bolier ПРИХОЖАЯ Чёрная входная дверь в современной классическом стиле и чёрная стена из МДФ-панелей добавляют пространству прихожей глубины. Здесь нет ярких цветовых акцентов, а центром притяжения стал сферический светильник от американских дизайнеров света Troy Lighting. Индустриальный шик — так можно охарактеризовать стиль, в котором выполнен светильник. Он вызывает ассоциации с Нью-Йорком уже при входе в квартиру. ——————————————— ХОТИТЕ ЗАКАЗАТЬ ДИЗАЙНЕРАМ СВОЙ ПРОЕКТ… ► Напишите сообщение в один клик ——————————————— У ВАС ЕСТЬ ДЛЯ НАС ПРОЕКТ… Загрузите съёмку в свой профиль на Houzz, отправьте ссылку с кратким описанием на editorial@flatica.ru Для справки: Какие объекты мы публикуем

Комментарии 10

Мне очень многое понравилось: дизайнерам удалось создать множество интересных, оригинально офрмленных фрагментов. Очень эффекктные светильники подобраны для этого интерьера. Эффект графики и современного стиля замечательно переданы. Работа на очень высоком уровне: фотопанно в детской, которое заканчивается красной дверью, трубчатые светильники (снова в детской) - просто гениально! Но стиля Нью-Йорка здесь нет совсем. Нельзя считать, что наливной пол +серые стены+ обилие дизайнерских решений создают атмосферу именно Нью-Йорка, по-моему авторам проекта удалось создать собственное уникальное пространство в лаконичном неперегруженном, но с дизайнерскими элементами стилем. Из минусов: это планировка: совершенно неудачный центр квартиры из санузлов, при таких прекрасных исходных данных: квадратная квартира с 6 окнами на две стороны, и вход в главную спальню через кухню!! *это просто позор (совсем не по нью-йоркски). Нет даже хозяйственных помещений:постирочной, кладовки. Зачем такая огромгая кухня-столовая, в которой хозяйка не готовит? Детская комната далеко (и это неплохпо, но при таком бюджете, деткой можно было бы и собственный санузел сделать, а не общий гостевой). И плед Etro (прекрасная вещь), но почему его сфотографировали практически на каждом кресле или диване??
Стильно и с хорошим вкусом, как и все проекты Олега.
Интересная квартира! Планировка вызывает вопросы

Оставьте комментарий

Читать похожие статьи