logo

Houzz тур: Квартира в Москве для семьи с тремя детьми

Стилистика 1970-х в сочетании с иконами дизайна

Houzz Россия
Houzz Россия

8 окт. 2020

Обновлено 20 янв. 2021

Диван и пуф Julep, Tacchini; т оршер Coupe, Oluce Для этой семьи Агнес Рудзите уже делала проект апартаментов. Поэтому у дизайнера уже было представление о том, что нравится заказчикам, а у них было полное доверие к работе команды Агнес. О проекте: Место: Москва Год: 2019 Размер: 344 кв. м Кто здесь живет: семья с тремя детьми Дизайнер проекта: Агнес Рудзите, Agnes Rudzite Interiors Фото: Михаил Лоскутов
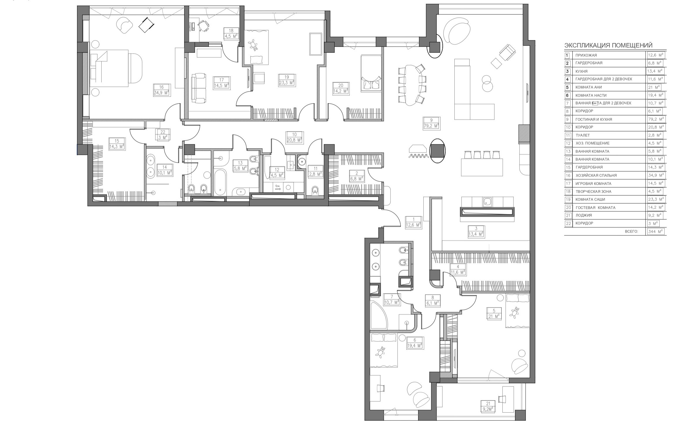
Планировка квартиры Изначально это были две квартиры в одной из высоток постройки 2000-х годов с характерным ремонтом того времени. Квартиры объединили и сделали перепланировку. ————————————— В ВАШЕМ ГОРОДЕ… ► Через Houzz можно нанять дизайнера или архитектора в любом городе и стране. Начать поиск специалиста —————————————
Бра Catellani & Smith; технический свет Flos После реорганизации появился коридор, который ведет в несколько спален и санузлов. Вытянутое пространство решили использовать как картинную галерею. Новая площадь позволила также обустроить продуманное хранение с вместительными гардеробными. Есть в квартире и отдельное хозяйственное помещение.
Картина Аси Феоктистовой; cветильник над столом Cosmos, Lievore Altherr Molina, Vibia; с тол En Forme Libre, дизайн Шарлотты Перриан 1959 года, стулья 905 Вико Маджистретти 1964 года Cassina
Благодаря объединению квартир появилась просторная гостиная с кухней. На первый взгляд кухня со столешницей из травертина производит впечатление парадной и маленькой.
Кухня Aster Cucine; с толешница из красного травертина Как отмечает Агнес, «за таким парадным фасадом скрывается хорошо оборудованная кухня площадью около 10 кв. м. Семья большая, и для них готовка — важная составляющая жизненного уклада. Мы не могли проигнорировать этот момент».
Буфет Bramante, Simon Collezione, Cassina, дизайн Kazuhide Takahama 1974/1975 В квартире есть некоторые особенности — несущие колонны, две из которых после перепланировки оказались буквально по центру гостиной. «Мы приняли решение обшить их дубовыми панелями радиальной формы», — рассказывает Агнес. Так мы смогли не только декоративно обыграть конструктивные элементы, но и сгладить ненужные углы.
К слову, применение панелей из дубового шпона можно встретить по всей квартире. Такая «щедрая» отделка поверхностей панелями невольно отсылает нас к любимым дизайнером 1970-м: «Для меня это время — идейное продолжение модернизма, только с какой-то большей чувственностью и возможностью поэкспериментировать».
Консоль Treku; б анкетка AYTM При этом по словам Агнес,в такой обстановке дерево хорошо сочетается с более «нарядными» материалами, что делает интерьер в целом интереснее и характернее. Так, например, кроме текстуры дуба в отделке появился травертин. Его использовали и на стенах, и на других колоннах, которые есть в квартире, и на полу. Еще одним важным материалом в этом проекте стала латунь.
Диван Elysee, Ligne Roset; к ровать Тwills; п рикроватные тумбы Porro; столик Chariot, GamFratesi, Casamania «На самом деле, вид из окна подсказал, в каком направлении двигаться при выборе основной цветовой гаммы, на которую, к тому же, хорошо ложится цвет натурального дуба» — рассказывает дизайнер . Чтобы интегрировать внешнюю среду во внутреннюю, решили применить оттенки бежево-розового и разбеленной терракоты.
Смесители Zucchetti; т умба изготовлена на заказ В наполнении интерьера много канонических предметов мебели, которые были созданы в разные периоды ХХ века. По словам дизайнера, ей нравится использовать в обстановке вещи, которые прошли испытание временем.
Возможно, по этой причине возник и эскиз перегородки, как дань дизайну знаменитой ширмы Эйлин Грей.
Кресло Utrecht, диз. Геррит Ритвельд,1935 Помимо знаковой мебели в интерьере много предметов и элементов столярных изделий, изготовленных на заказ. Они были сделаны в Латвии, затем их привезли в Москву и смонтировали на месте.
Кресло Pacha, Gubi; к омод Porro; с толик Lato, &tradition; к артина Адель Сильдметс, Аркадий Снегирев «Велогонщики», 1977 «В общей сложности на реализацию проекта у нас ушло около 5 месяцев, —отмечает Агнес. – Это очень короткий срок, учитывая, что мы находились в Риге, а квартира — в Москве. Мы так все четко распланировали, что при этом не было никаких сложностей и заминок!». _____________________________ ОБ АВТОРЕ ПРОЕКТА… Перейдите на страницу Agnes Rudzite Interiors , чтобы изучить другие работы из портфолио дизайнера У ВАС ЕСТЬ ДЛЯ НАС ПРОЕКТ… Загрузите съёмку в свой профиль на Houzz, отправьте ссылку с кратким описанием на editorial@flatica.ru

Комментарии 10

Для меня дерево сильный акцент в интерьере, здесь его слишком много. У меня ассоциации с кабинетом крупного чиновника из советской эпохи. Но если предложение дизайнера устроило заказчика, то ему там жить, а не мне. Главное, чтобы и через 10 лет его все устраивало
344 м!! 😲😲 они там не теряются??
А мне спальня не понравилась.. Как-то не уютно, несмотря на мягкие панели и яркий коралловый диванчик. Слишком высокие эти панели... Еще и со слишком нейтральным цветом дерева на шкафах до потолка, причем этот цвет везде и ничем не разбавлен. Громоздко получилось. Бежевых тонов слишком много, однообразно, не хватает свежести, воздуха. Ощущение, что в квартире не просто тепло, а душно. Столик Chariot с колесами ужасен - просто инвалидная коляска... Паркет здесь - один в один как в старых советских квартирах был - это тоже как-то ухудшило ассоциации. Но зато понравился изумительный бежево-розовый цвет стены на последнем фото - это бомба! И мягкая мебель, стулья - шикарно, обеденный стол - просто чума! Да и вообще, есть интересные акценты в декоре и мебели. Я очень люблю бежевые тона в интерьере, но их не должно быть слишком много, т.к. в избытке они начинают давить.

Оставьте комментарий

Читать похожие статьи