logo

Houzz тур: Квартира в лососевых тонах для студентки

С гамаком, листами латуни и радиусным потолком

Евгения Назарова
Евгения Назарова

18 июня 2021

Обновлено 13 сент. 2021

Постоянный автор Houzz, интерьерный журналист

Макс Жуков и Виктор Штефан «семейные» дизайнеры заказчиков: сначала основатели бюро ToTaste.studio создавали проекты для старшего поколения, а затем получили в работу квартиру их дочери-студентки. «Девушка выросла буквально на наших глазах, и нам очень хотелось создать для неё яркий, запоминающийся интерьер. Отсюда и необычная геометрия с радиусным потолком в гостиной, и выбор цветовой гаммы от лососевых до сине-зелёных оттенков», рассказывают дизайнеры.
Houzz тур: Квартира в лососевых тонах для студенткиВиктор Штефан
О проекте Место: Санкт-Петербург Размер: 78 кв. м Кто здесь живёт: студентка Дизайнеры проекта: Макс Жуков, Виктор Штефан, бюро ToTaste.studio Фото: Сергей Красюк ———————– СПРОСИТЕ У ДИЗАЙНЕРОВ НАПРЯМУЮ ► Есть уточняющие вопросы? Хотите заказать свой проект дизайнеру этой квартиры? Свяжитесь с авторами проекта в один клик ———————–
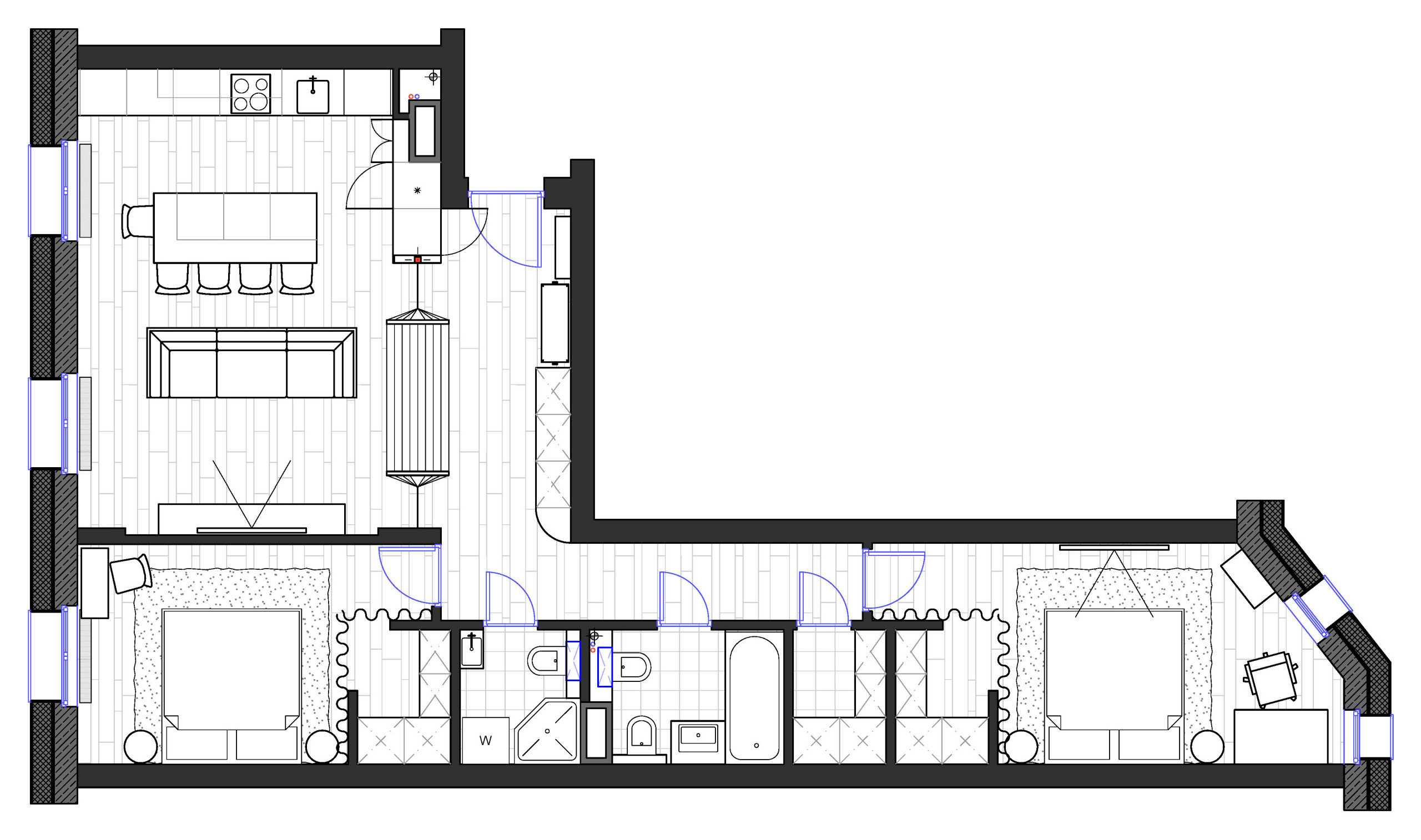
Планировка проекта Планировку застройщика немного изменили: кухню объединили с гостиной и присоединили коридор-прихожую, чтобы сразу от входа попадать в просторную общую зону с двумя окнами в пол. С двух сторон от длинного коридора разместили спальни для хозяйки и родителей, которые иногда приезжают в гости. Между ними — технические помещения и санузлы.
Houzz тур: Квартира в лососевых тонах для студенткиВиктор Штефан
КУХНЯ-ГОСТИНАЯ Идея радиусного потолка в гостиной родилась из желания стереть границы между поверхностями: теперь пространство кажется более высоким. Двусторонний шкаф, который выходит фасадами в кухню и прихожую, сделали на заказ, учитывая скругление потолка. Внутри также скрыли вентиляционную шахту и стояк водоснабжения. Для подсветки в потолок встроили гипсовые светильники в гостиной, а зону кухни акцентировали контрастными чёрными спотами на шине.
Houzz тур: Квартира в лососевых тонах для студенткиВиктор Штефан
Кухня «Мебель Виктора Тишлера»; подвесной светильник Vibia; чёрные табуреты работы Ивана Глушкова, Palaty Store; круглые табуреты Artefacto; шторы ИКЕА; глиняные вазы Palaty Store Обеденный стол-верстак, сделанный на заказ, дополнили композицией из полубарных стульев разного дизайна.
Houzz тур: Квартира в лососевых тонах для студенткиВиктор Штефан
Гамак La Redoute; шкаф «Мебель Виктора Тишлера» Одна из самых уютных деталей гостиной — съёмный двухместный гамак. Одним концом он крепится к бетонной колонне, другим — к шкафу, в который интегрированы кухонные колонны. На самом деле внутри шкафа установлена ещё и металлическая труба, которая берёт на себя основную нагрузку.
Houzz тур: Квартира в лососевых тонах для студенткиВиктор Штефан
Диван из мастерской Kreslo; ТВ-тумба Teak House; люстра Handle Studio; красный столик работы Александра Каныгина Один из модулей бескаркасного дивана оформили ботаническим принтом. Несущие бетонные колонны оставили без отделки, а стену в зоне телевизора облицевали листами латуни.
Houzz тур: Квартира в лососевых тонах для студенткиВиктор Штефан
Шторы, подвесные стеллажи, кресло и кашпо ИКЕА; ковер Kover.ru; письменный стол The Idea СПАЛЬНЯ ХОЗЯЙКИ Комната хозяйки — неправильной формы, но крупные пятна цвета уводят внимание от нестандартной конфигурации помещения. Так, всю зону изголовья и домашнего кабинета выделили насыщенным зелёным цветом, а потолок частично оставили в бетоне и акцентировали линейными светильниками с открытой подводкой.
Houzz тур: Квартира в лососевых тонах для студенткиВиктор Штефан
Прикроватная тумба La Redoute; настольная лампа Lampe Gras; занавес гардероба ИКЕА Для изголовья в виде рельефных сот подобрали эффектную пару прикроватных тумбочек. Вместо стационарных фасадов шкафы дополнили текстилем: ткань обеспечивает естественную вентиляцию внутреннего пространства.
Houzz тур: Квартира в лососевых тонах для студенткиВиктор Штефан
Стул Unika Moblar; зеркало Zara Home; люстры и шторы ИКЕА ГОСТЕВАЯ КОМНАТА Бетонный потолок — один из любимых приёмов заказчиков, который они предложили использовать и в новом проекте. Туалетный столик сконструировали из подстолья от швейной машинки Singer.
Houzz тур: Квартира в лососевых тонах для студенткиВиктор Штефан
Тумба под раковину и зеркало Archpole; санфаянс Cielo; смесители Grohe ВАННАЯ КОМНАТА Для полов и стен в мокрых зонах выбрали плитку нейтральных оттенков. А вот потолок решили сделать акцентным — покрасили в тёплый оливковый тон, любимый и будущей хозяйкой, и родителями-заказчиками.
САНУЗЕЛ В санузле компактно разместили душевую кабину с радиусной дверцей, а рядом вписали колонну со стиральной и сушильной машинами. Чтобы место над колонной не пропадало, наверху встроили ящики для хранения: в них можно размещать бытовую химию и гостевые полотенца. ——————————————— В ВАШЕМ ГОРОДЕ… ► Через Houzz можно нанять дизайнера или архитектора в любом городе и стране. Начать поиск специалиста ——————————————— У ВАС ЕСТЬ ДЛЯ НАС ПРОЕКТ… Загрузите съёмку в свой профиль на Houzz, отправьте ссылку с кратким описанием на editorial@flatica.ru Для справки: Какие объекты мы публикуем

Комментарии 11

Alya

4 г.

"Бохо квартира" получилась. Просторная зона для тусовок и камерная спальня. Обычно, когда пишут "для студентки", подчеркивают бюджетность или временный характер жилья ; А здесь все основательно и не слишком - то дешево..можно было этого не указывать. Понравилось.
А как пользоваться ящиками под потолком? Ну закинуть что-то туда можно как в баскетбольную корзину, а достать как? Очень необычная квартира, как здорово что есть люди, которые готовы скруглить потолок, повесить гамак, оставить на потолке и колоннах бетон, готовы к смелым цветовым и стилистическим решениям.
Бгг... Так и представляешь эту студентку - с зелеными волосами, с татухами и пирсингом на всех частях тела,..

Оставьте комментарий

Читать похожие статьи