logo

Houzz тур: Квартира в Белгороде с керамогранитом на стенах

Дизайнер вела проект дистанционно — «от и до»

Евгения Назарова
Евгения Назарова

23 авг. 2018

Обновлено 21 окт. 2018

Постоянный автор Houzz, интерьерный журналист

Houzz тур: Квартира в Белгороде с керамогранитом на стенахОльга Погорелова
Этот проект дизайнер Ольга Погорелова вела дистанционно: современные средства связи позволяют общаться с заказчиками хоть по пять раз в день. А если не отступать от визуализации, результат получается почти на сто процентов идентичным проекту. Правда, особенности местного интерьерного рынка повлияли на реализацию: многие предметы пришлось привозить из столицы. В том числе хозяйка несколько раз ездила в московскую ИКЕА. О проекте Место: Белгород Размер: 62 кв.м Кто здесь живёт: семейная пара с ребёнком Автор проекта: Ольга Погорелова Фото: Лена Швоева
Владельцы подошли к поиску дизайнера очень ответственно: даже попросили у Ольги Погореловой контакты других клиентов, чтобы послушать отзывы от первого лица. А через некоторое время вернулись, уверенные в своём выборе и с техническим заданием: присоединить к кухне лоджию и оформить интерьер в духе минимализма с экоакцентами.
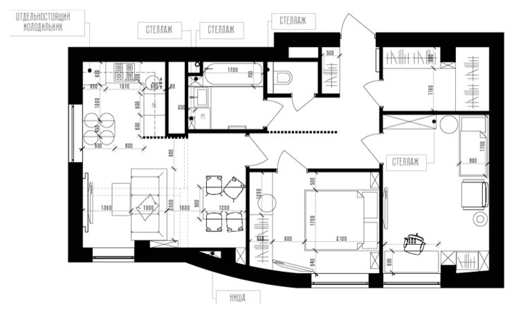
Квартира до перепланировки
Квартира после перепланировки « Я удивилась, когда услышала такие скромные пожелания по перепланировке, и на всякий случай предложила несколько более смелое решение. Которое в итоге и выбрали » , — вспоминает Ольга Погорелова. Лоджию, как и хотели владельцы, присоединили к кухне — здесь организовали гостиную. От одной из комнат отрезали гардероб с выходом в прихожую. Вторую тоже немного уменьшили, чтобы выделить место для столовой группы.
Houzz тур: Квартира в Белгороде с керамогранитом на стенахОльга Погорелова
ПРИХОЖАЯ Заказчики хотели видеть интерьер светлым, поэтому большую часть стен в прихожей и кухне-гостиной оформили в серо-бежевых тонах. Чтобы интерьер не казался бледным, добавили контраст в виде рамы для зеркала. Справа от входной двери разместили большой встроенный шкаф. Обратите внимание: Белая решётка скрывает счетчики и служит небольшой полочкой для ключей.
Houzz тур: Квартира в Белгороде с керамогранитом на стенахОльга Погорелова
На полу по всей квартире, кроме мокрой зоны кухни и санузла, уложили ламинат, имитирующий выбеленную древесину. Стену декорировали полосой из керамогранита и постером с растительным узором: этот фрагмент стал точкой притяжения внимания в прихожей.
Houzz тур: Квартира в Белгороде с керамогранитом на стенахОльга Погорелова
КУХНЯ-ГОСТИНАЯ Керамогранит под дерево использовали и в дизайне кухни-гостиной. Мебель, напротив, подобрали в светлых тонах, чтобы не перегружать пространство. Главным акцентом стала фактурная чёрная люстра над столовой группой: « Заказчице сперва казалось, что сюда подойдёт более индустриальный светильник, но я уговорила её добавить интерьеру остроты: эта люстра захватывает внимание » , — поясняет Ольга. Обеденный стол TorySun Rectangle Compact; стулья и люстра Cosmorelax
Houzz тур: Квартира в Белгороде с керамогранитом на стенахОльга Погорелова
Из-за конструктивных выступов гостиная имеет неправильную форму, но эту особенность превратили в преимущество — встроили стеллажи. Диван в гостиной раскладной и используется как спальное место для гостей. Зону телевизора выделили объемом и цветом. Радиатор, который оказался под экраном, решили не переносить: просто закрыли черными рейками, чтобы отвлечь от него внимание.
Houzz тур: Квартира в Белгороде с керамогранитом на стенахОльга Погорелова
Тему реек продолжили перегородкой на границе гостиной и кухни. « Владельцам эта идея поначалу не приглянулась, мне пришлось убеждать их, что перегородка нужна: без неё торец кухни выглядел бы не слишком эстетично » , — рассказывает дизайнер.
Houzz тур: Квартира в Белгороде с керамогранитом на стенахОльга Погорелова
Для пола кухни использовали плитку под мрамор: она хорошо сочетается с ламинатом и белыми кухонными фасадами. А вот фартук выбрали на контрасте: тёмный керамогранит имитирует сланцевые породы.
Houzz тур: Квартира в Белгороде с керамогранитом на стенахОльга Погорелова
СПАЛЬНЯ Это самая скромная по площади комната, в которой оставили минимум вещей: кровать, открытые стеллажи и столик для работы. Из соображений визуальной умеренности выбрали монохромную гамму, зато поиграли с рельефом. Стену за кроватью и в зоне кабинета декорировали гипсовыми панелями контрастных цветов. Также в поддержку темы реек. Панели Archpole; кровать и стул ИКЕА
Houzz тур: Квартира в Белгороде с керамогранитом на стенахОльга Погорелова
ДЕТСКАЯ В детской использовали такие же гипсовые панели, но в ярком исполнении. « Этой комнате не хватало естественного освещения, поэтому мы добавили к спокойной базе жёлтые акценты. К тому же девочка занимается танцами, а яркие краски стимулируют творческую активность » , — поясняет Ольга. Мебель и светильники ИКЕА
Houzz тур: Квартира в Белгороде с керамогранитом на стенахОльга Погорелова
Идея и решение: Чтобы сделать шкаф функциональнее, неглубокие полки для игрушек и аксессуаров предусмотрели даже на боковой панели. Там же хранятся все награды за участие в танцевальных конкурсах.
ВАННАЯ КОМНАТА Керамогранит под дерево и мрамор — материалы, которые проходят лейтмотивом по всему интерьеру. Их использовали и в ванной, и в туалете; зону ванны выделили деревом и графитовым цветом плитки. ОБ АВТОРЕ ПРОЕКТА… Перейдите на страницу дизайнера Ольги Погореловой , чтобы изучить другие работы из её портфолио __________________________ В ВАШЕМ ГОРОДЕ… Найдите дизайнера на Houzz в вашем городе — закажите собственный проект У ВАС ЕСТЬ ДЛЯ НАС ПРОЕКТ… Загрузите съёмку в свой профиль на Houzz, отправьте ссылку с кратким описанием на editorial@flatica.ru Для справки: Какие объекты мы публикуем

Комментарии 37

Да, странное решение по планировке в гостиной, гораздо логичнее было бы стол к окну, а не в тёмный угол... Также я не поняла, ради чего сократили ванно туалетную площадь - чтобы увеличить проходной коридор? Гардероб со входом прямо из грязной зоны тоже печалит, хотя тут, конечно, непросто придумать альтернативу... В общем, планировка не понравилась. Цветовые решения - дело вкуса, нравится хозяевам - и прекрасно
Спасибо за ответ
Лейля, все заказывали на мебельном производстве. Перегородка между кухней и гостиной металлическая (габариты помещения не позволяли увеличивать сечение стоек, а дерево достаточно нестабильно при такой высоте).

Оставьте комментарий

Читать похожие статьи