logo

Houzz тур: Квартира-студия с уютной спальней в нише

Молодая пара мечтала о двуспальной кровати, отдельной гардеробной и гостиной с диваном

Екатерина Перминова
Екатерина Перминова

5 дек. 2019

Обновлено 7 янв. 2020

Постоянный автор HouzzRu, журналист

Houzz тур: Квартира-студия с уютной спальней в нише
Небольшая студия предназначена для молодой пары. Заказчики хотели сохранить объем помещения и обозначили четкие пожелания: отдельная гардеробная, двуспальная кровать, душ, гостиная с диваном и просторная кухня. Дизайнеры предложили использовать монохромную цветовую гамму в качестве базы.

О проекте
Место: Реутов
Размер: 51,5 кв.м
Кто здесь живет: молодой человек с девушкой
Дизайнеры проекта: Мария Касаткина и Мария Зуева, Elements studio
Фото: Антон Лихтарович
Декоратор: Саша Грибова
Houzz тур: Квартира-студия с уютной спальней в нише
«Мы всегда проектируем интерьеры так, чтобы они отражали характер владельцев. Этот прием дает возможность хозяину чувствовать себя дома как часть целого, получая больший комфорт, — рассказывает Мария Касаткина. — Здесь удалось подчеркнуть присущие заказчику сдержанность, аккуратность и вдумчивость».
__________________________

В ВАШЕМ ГОРОДЕ…
Через Houzz можно нанять дизайнера или архитектора в любом городе и стране. Начать поиск специалиста
Houzz тур: Квартира-студия с уютной спальней в нише
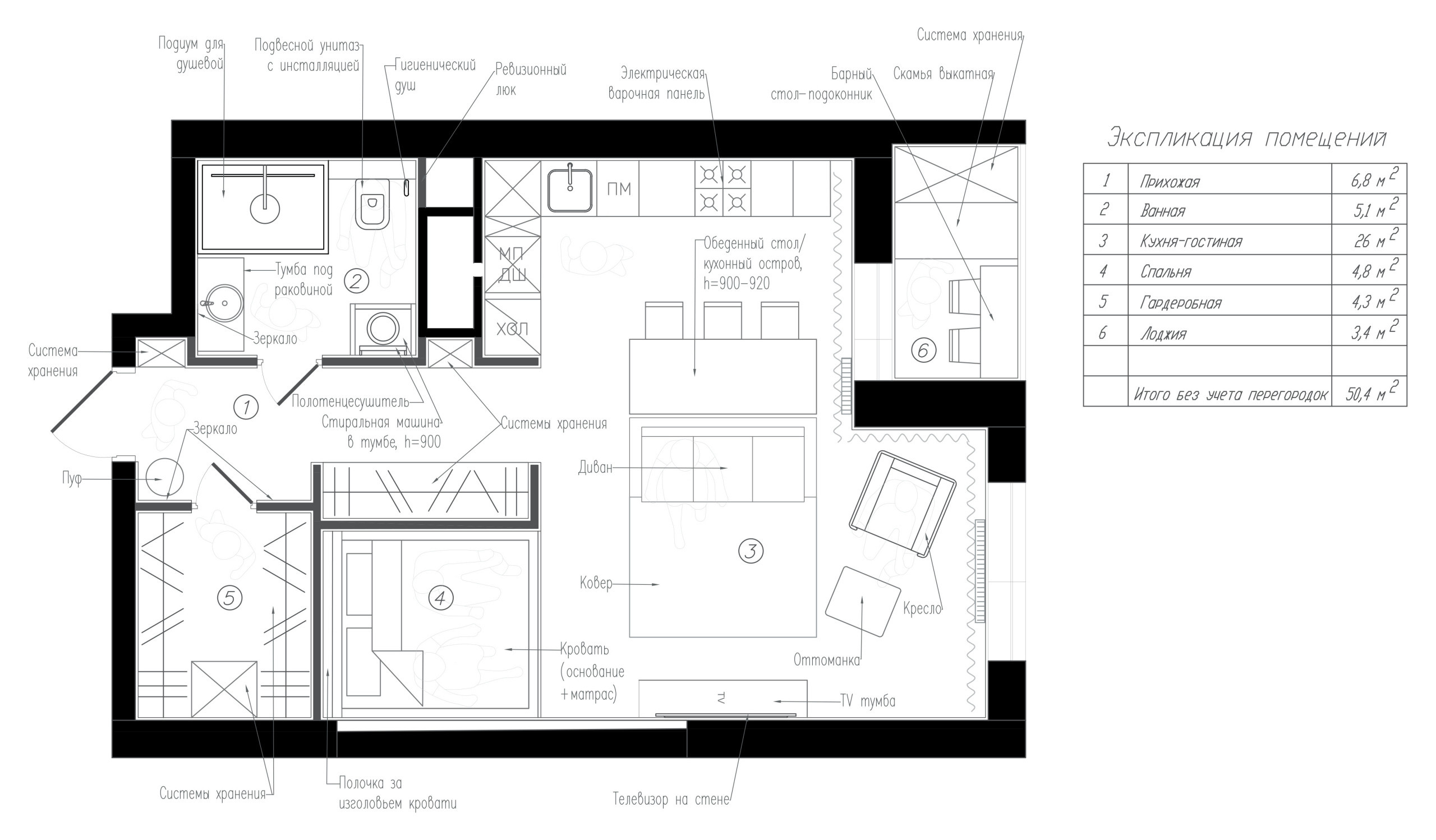
ПЛАНИРОВКА
Плюс планировки — отсутствие в студии несущих стен. Из-за небольшой ширины помещения и наличия только двух окон на одной стороне, дизайнеры решили объединить все в единое пространство.
Houzz тур: Квартира-студия с уютной спальней в нише
Зонирование позволило создать эргономичную и функционально планировку, которая отвечает запросам заказчиков. Кухню и гостиную расположили друг напротив друга, для спальни выделили нишу. Санузел увеличили за счет коридора, выдвинув стену на 30 см. А вместительную гардеробную организовали при входе в квартиру.
Houzz тур: Квартира-студия с уютной спальней в нише
Диван SK Design; кресло Interior Design; тумба под ТВ ИКЕА; ковер Dovlet House; торшер Zuiver Tripod Webbing; журнальные столики Dutchbone Arabica

КУХНЯ-ГОСТИНАЯ
Большую часть квартиры занимает кухня-гостиная. Мебель здесь расставлена так, чтобы из любой точки был хорошо виден телевизор. Это пожелание заказчика, которое удалось реализовать без компромиссов.
Houzz тур: Квартира-студия с уютной спальней в нише
Системы хранения в проекте не ограничены гардеробной. Они вынесены в коридор и лоджию и предназначены для документов, сезонной одежды, снаряжения и бытовых предметов. Чтобы не нарушать ощущение простора, все системы хранения сливаются с архитектурой квартиры.
Houzz тур: Квартира-студия с уютной спальней в нише
Так же поступили и с кухонными шкафами, которые имеют гладкие фасады и полностью встроенный в нишу корпус колонн с бытовой техникой.

Композиция по центру основного помещения, образованная из обеденного стола и дивана, объединяет и одновременно зонирует кухню и гостиную. Обеденный стол выполнен из беленного дуба, схожего по цвету с каркасом изголовья кровати, что связывает пространство в одно целое.
Houzz тур: Квартира-студия с уютной спальней в нише
Единой для квартиры стала монохромная цветовая гамма. «В квартире-студии, когда хозяин находится всегда в одном и том же помещении, важно исключить дискомфорт от однообразия. Дать возможность быстро изменить интерьер без крупных финансовых вложений, — рассказывает Мария Зуева. — В базовый монохромный образ достаточно добавить яркий текстиль, и он заиграет новыми красками, не выглядя при этом перегружено».
Houzz тур: Квартира-студия с уютной спальней в нише
Houzz тур: Квартира-студия с уютной спальней в нише
Проблема и решение: «Даже в угловом элементе кухонных колонн удалось организовать вместительные распашные шкафчики. Не каждая мастерская оказалась способна воплотить эту задумку», — поясняет Мария Зуева.
Houzz тур: Квартира-студия с уютной спальней в нише
Houzz тур: Квартира-студия с уютной спальней в нише
Обеденный стол SK Design; стулья ИКЕА; кухня: «Стильные кухни»; столешница из кориана

Для баланса холодные оттенки основных элементов интерьера разбавили теплым деревом. Паркетная доска из натурального дуба на полу тактильно и визуально приятна.

Обратите внимание: Паркетная доска примыкает к стене без плинтуса, за счет пробкового герметика.
Houzz тур: Квартира-студия с уютной спальней в нише
СПАЛЬНЯ
Двуспальную кровать встроили в широкую нишу, образованную между гостиной и гардеробной. Основание кровати погружено в выстроенный из строительных блоков «колодец», благодаря этому под матрасом образуется место для хранения, а кажется, что он лежит на подиуме.
Houzz тур: Квартира-студия с уютной спальней в нише
Houzz тур: Квартира-студия с уютной спальней в нише
Изголовье кровати изготовлено на заказ; матрас «Аскона»; основание кровати с местом для хранения, установленное внутри «колодца», «Орматек»; картина на изголовье Tiny by Tiny Stories HKLiving

Проблема и решение: «Строгие границы ниши диктовали размер изголовья кровати, выполненного на заказ по нашим эскизам. Согласно концепции, оно имеет в основе жесткий каркас, который необходимо было изготовить и установить с минимальным зазором в 11,5 мм с каждой стороны, — рассказывает Мария Касаткина. — Пришлось контролировать буквально каждый миллиметр».
Houzz тур: Квартира-студия с уютной спальней в нише
САНУЗЕЛ
Для душевой кабины возвели поддон с душевым трапом и поставили стеклянные перегородки.

Стены санузла облицевали керамогранитом в классическом сочетании благородного рисунка мрамора и дерева.
Houzz тур: Квартира-студия с уютной спальней в нише
Сантехника Grohe; смеситель Hansgrohe; унитаз Roca; раковина с тумбой Am.Pm; стеклянные двери в душевой RGW; зеркало с подсветкой: на заказ, LagunaExpo; керамогранит с фактурой дерева и мрамора Kerama Marazzi
____________________________

ОБ АВТОРАХ ПРОЕКТА…
Перейдите на страницу Elements studio, чтобы изучить другие работы из портфолио дизайнеров

У ВАС ЕСТЬ ДЛЯ НАС ПРОЕКТ…
Загрузите съёмку в свой профиль на Houzz, отправьте ссылку с кратким описанием на editorial@flatica.ru

Для справки: Какие объекты мы публикуем

Комментарии 17

Добрый вечер! Стоимость "под ключ" около 3,5 - 4 млн.р
Какова стоимость "под ключ" с работой дизайнера?
На сегодняшний день проект стильный, современный, как раз для молодой пары. Но вопрос по кровати: а удобно вставать с такой кравати, где нет бокового пространства? Как идея сделать кровать в нише мне нравится, сама задумывалась над этим, но не предлагала клиентам только поту, что меня смущало неудобство с неё вставать и её же заправлять.

Оставьте комментарий

Читать похожие статьи