
26 февр. 2021
Обновлено 4 апр. 2021
Постоянный автор Houzz, интерьерный журналист
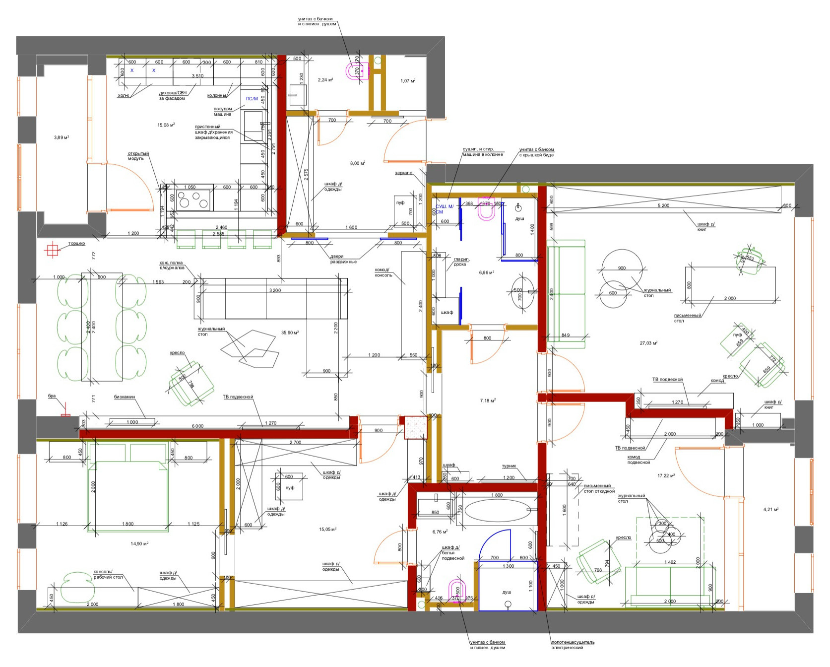
Дизайн квартиры в современном стиле, общей площадью 165 м2. Проект опубликован в журнале Salon за ноябрь 2020г. В проекте много деталей выполнено на заказ: панели из дуба в гостиной с элементами из латуни, панели из гипса и дерева в спальне с панно из латуни в виде декора, панели из мрамора в кабинете супруга и панели крашенный с латунью в кабинете супруги, один из санузлом полностью выложен из мрамора.
Дизайн квартиры в современном стиле, общей площадью 165 м2. Проект опубликован в журнале Salon за ноябрь 2020г. В проекте много деталей выполнено на заказ: панели из дуба в гостиной с элементами из латуни, панели из гипса и дерева в спальне с панно из латуни в виде декора, панели из мрамора в кабинете супруга и панели крашенный с латунью в кабинете супруги, один из санузлом полностью выложен из мрамора.
Дизайн квартиры в современном стиле, общей площадью 165 м2. Проект опубликован в журнале Salon за ноябрь 2020г. В проекте много деталей выполнено на заказ: панели из дуба в гостиной с элементами из латуни, панели из гипса и дерева в спальне с панно из латуни в виде декора, панели из мрамора в кабинете супруга и панели крашенный с латунью в кабинете супруги, один из санузлом полностью выложен из мрамора.
Дизайн квартиры в современном стиле, общей площадью 165 м2. Проект опубликован в журнале Salon за ноябрь 2020г. В проекте много деталей выполнено на заказ: панели из дуба в гостиной с элементами из латуни, панели из гипса и дерева в спальне с панно из латуни в виде декора, панели из мрамора в кабинете супруга и панели крашенный с латунью в кабинете супруги, один из санузлом полностью выложен из мрамора.
Дизайн квартиры в современном стиле, общей площадью 165 м2. Проект опубликован в журнале Salon за ноябрь 2020г. В проекте много деталей выполнено на заказ: панели из дуба в гостиной с элементами из латуни, панели из гипса и дерева в спальне с панно из латуни в виде декора, панели из мрамора в кабинете супруга и панели крашенный с латунью в кабинете супруги, один из санузлом полностью выложен из мрамора.
Дизайн квартиры в современном стиле, общей площадью 165 м2. Проект опубликован в журнале Salon за ноябрь 2020г. В проекте много деталей выполнено на заказ: панели из дуба в гостиной с элементами из латуни, панели из гипса и дерева в спальне с панно из латуни в виде декора, панели из мрамора в кабинете супруга и панели крашенный с латунью в кабинете супруги, один из санузлом полностью выложен из мрамора.
Дизайн квартиры в современном стиле, общей площадью 165 м2. Проект опубликован в журнале Salon за ноябрь 2020г. В проекте много деталей выполнено на заказ: панели из дуба в гостиной с элементами из латуни, панели из гипса и дерева в спальне с панно из латуни в виде декора, панели из мрамора в кабинете супруга и панели крашенный с латунью в кабинете супруги, один из санузлом полностью выложен из мрамора.
Дизайн квартиры в современном стиле, общей площадью 165 м2. Проект опубликован в журнале Salon за ноябрь 2020г. В проекте много деталей выполнено на заказ: панели из дуба в гостиной с элементами из латуни, панели из гипса и дерева в спальне с панно из латуни в виде декора, панели из мрамора в кабинете супруга и панели крашенный с латунью в кабинете супруги, один из санузлом полностью выложен из мрамора.
Дизайн квартиры в современном стиле, общей площадью 165 м2. Проект опубликован в журнале Salon за ноябрь 2020г. В проекте много деталей выполнено на заказ: панели из дуба в гостиной с элементами из латуни, панели из гипса и дерева в спальне с панно из латуни в виде декора, панели из мрамора в кабинете супруга и панели крашенный с латунью в кабинете супруги, один из санузлом полностью выложен из мрамора.
Дизайн квартиры в современном стиле, общей площадью 165 м2. Проект опубликован в журнале Salon за ноябрь 2020г. В проекте много деталей выполнено на заказ: панели из дуба в гостиной с элементами из латуни, панели из гипса и дерева в спальне с панно из латуни в виде декора, панели из мрамора в кабинете супруга и панели крашенный с латунью в кабинете супруги, один из санузлом полностью выложен из мрамора.
Дизайн квартиры в современном стиле, общей площадью 165 м2. Проект опубликован в журнале Salon за ноябрь 2020г. В проекте много деталей выполнено на заказ: панели из дуба в гостиной с элементами из латуни, панели из гипса и дерева в спальне с панно из латуни в виде декора, панели из мрамора в кабинете супруга и панели крашенный с латунью в кабинете супруги, один из санузлом полностью выложен из мрамора.
Дизайн квартиры в современном стиле, общей площадью 165 м2. Проект опубликован в журнале Salon за ноябрь 2020г. В проекте много деталей выполнено на заказ: панели из дуба в гостиной с элементами из латуни, панели из гипса и дерева в спальне с панно из латуни в виде декора, панели из мрамора в кабинете супруга и панели крашенный с латунью в кабинете супруги, один из санузлом полностью выложен из мрамора.
Дизайн квартиры в современном стиле, общей площадью 165 м2. Проект опубликован в журнале Salon за ноябрь 2020г. В проекте много деталей выполнено на заказ: панели из дуба в гостиной с элементами из латуни, панели из гипса и дерева в спальне с панно из латуни в виде декора, панели из мрамора в кабинете супруга и панели крашенный с латунью в кабинете супруги, один из санузлом полностью выложен из мрамора.
Дизайн квартиры в современном стиле, общей площадью 165 м2. Проект опубликован в журнале Salon за ноябрь 2020г. В проекте много деталей выполнено на заказ: панели из дуба в гостиной с элементами из латуни, панели из гипса и дерева в спальне с панно из латуни в виде декора, панели из мрамора в кабинете супруга и панели крашенный с латунью в кабинете супруги, один из санузлом полностью выложен из мрамора.
Дизайн квартиры в современном стиле, общей площадью 165 м2. Проект опубликован в журнале Salon за ноябрь 2020г. В проекте много деталей выполнено на заказ: панели из дуба в гостиной с элементами из латуни, панели из гипса и дерева в спальне с панно из латуни в виде декора, панели из мрамора в кабинете супруга и панели крашенный с латунью в кабинете супруги, один из санузлом полностью выложен из мрамора.
Дизайн квартиры в современном стиле, общей площадью 165 м2. Проект опубликован в журнале Salon за ноябрь 2020г. В проекте много деталей выполнено на заказ: панели из дуба в гостиной с элементами из латуни, панели из гипса и дерева в спальне с панно из латуни в виде декора, панели из мрамора в кабинете супруга и панели крашенный с латунью в кабинете супруги, один из санузлом полностью выложен из мрамора.
Дизайн квартиры в современном стиле, общей площадью 165 м2. Проект опубликован в журнале Salon за ноябрь 2020г. В проекте много деталей выполнено на заказ: панели из дуба в гостиной с элементами из латуни, панели из гипса и дерева в спальне с панно из латуни в виде декора, панели из мрамора в кабинете супруга и панели крашенный с латунью в кабинете супруги, один из санузлом полностью выложен из мрамора.