logo

Houzz тур: Квартира с цветными... потолками

Помимо ярко-желтого, есть розовый и почти бирюзовый

Екатерина Перминова
Екатерина Перминова

8 февр. 2019

Обновлено 25 февр. 2019

Постоянный автор HouzzRu, журналист

Houzz тур: Квартира с цветными... потолкамиТимур Грицан
О проекте
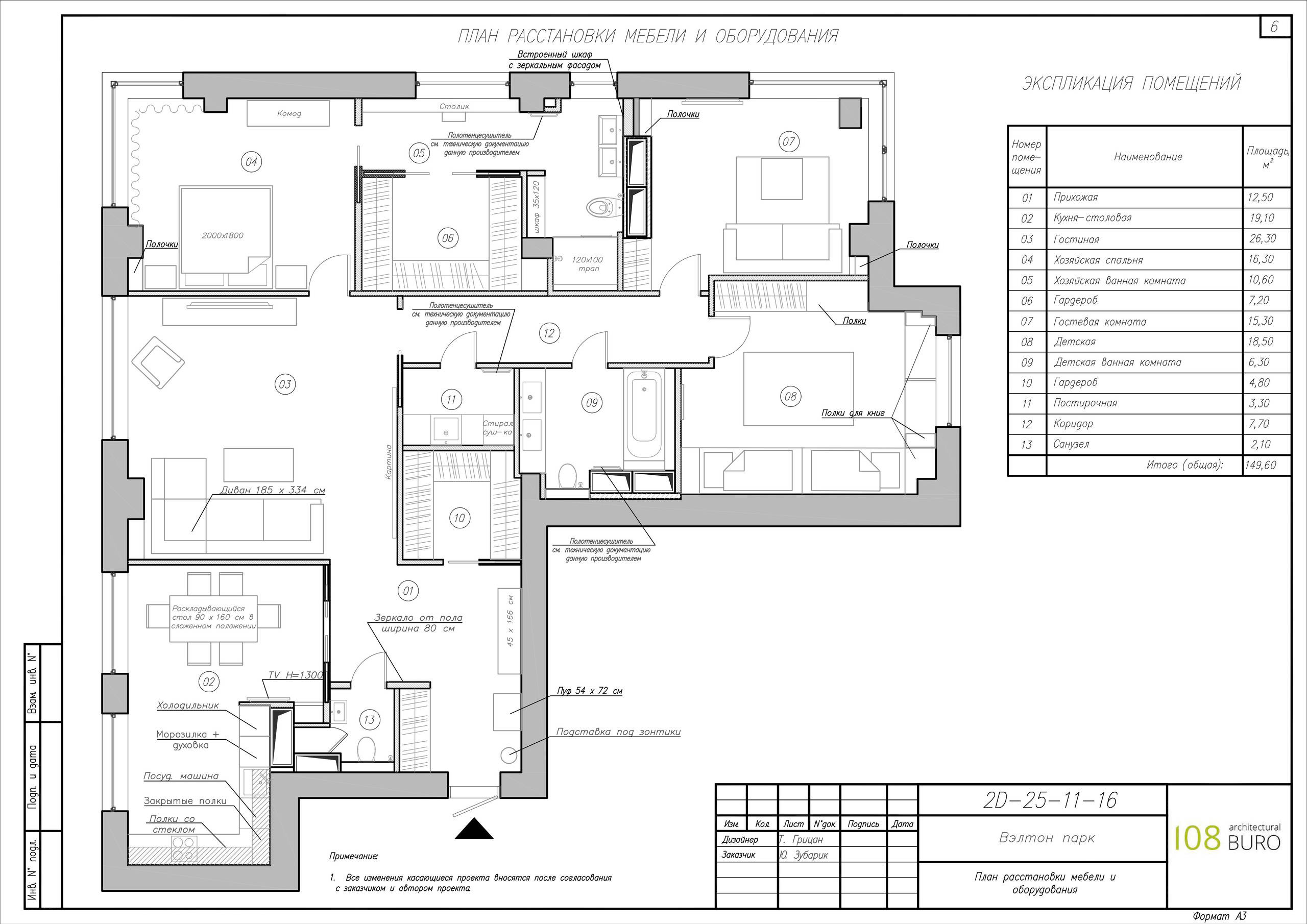
Место: Москва, ЖК «Вэлтон Парк»
Размер: 150 кв.м — 4 комнаты, 3 санузла, 2 гардероба
Кто здесь живет: семья из четырех человек, родители и два сына
Авторы проекта: Екатерина и Тимур Грицан, Buro 108
Фото: Митя Чебаненко

От прежних хозяев в квартире остались ремонт и планировка, которая не отвечала требованиям семьи с двумя детьми. Заказчики хотели создать большую зону для общения, две изолированные спальни, гостевую комнату и раздельные санузлы. Поэтому первым делом дизайнеры Тимур и Екатерина Грицан избавились от всех перегородок и подготовили поле для будущей работы.
Houzz тур: Квартира с цветными... потолкамиТимур Грицан
Диван, шезлонг, кресло Ditre Italia; люстра Galotti & Radice, столик Poliform
Продумывая планировку, дизайнеры добавили третий санузел, предназначенный для гостей, постирочную и два больших гардероба — при входе и возле родительской спальни.

150 квадратных метров солидная площадь, однако в квартире много небольших помещений. И чтобы количество дверей не резало глаз, дизайнеры использовали модели без наличников и кассетные механизмы. Такая дверь, например, изолирует кухню от гостиной. Днем она открыта и сдвинута в стену, а два пространства становятся частью общего воздушного объема.
Houzz тур: Квартира с цветными... потолкамиТимур Грицан
За малозаметной дверью рядом с телевизором скрывается хозяйская спальня. Дверь покрашена и задекорирована молдингами, переключающими внимание на себя.
Houzz тур: Квартира с цветными... потолкамиТимур Грицан
ГОСТИНАЯ
Комнаты казались меньше и сумрачнее из-за окон, выходящих на северную сторону. Белый цвет в отделке помог нивелировать это ощущение. наполнить дом воздухом и светом.
Houzz тур: Квартира с цветными... потолкамиТимур Грицан
Центр гостиной — яркая картина. Её автора, киевскую художницу Алену Кузнецову, Екатерина нашла через Instagram. Художница писала картину несколько месяцев, а затем привезла полотно в Москву, где его натянули на подрамник и повесили на стену.
Houzz тур: Квартира с цветными... потолкамиТимур Грицан
На полу гостиной, прихожей и кухни лежит швейцарский паркет Bauwerk из термообработанного дуба. Он устойчив к влаге и повреждениям. «Это многофункциональная линейка паркета — плашки двух размеров можно уложить 26 разными способами. Мы испробовали только три», — рассказывает Екатерина Грицан.
Houzz тур: Квартира с цветными... потолкамиТимур Грицан
КУХНЯ
Выбрав за основу современный стиль, заказчица внезапно решила установить неоклассическую кухню. К счастью, производители учитывают множество вариаций, и дизайнерам удалось найти модель, которая вписалась в общую концепцию интерьера.
Houzz тур: Квартира с цветными... потолкамиТимур Грицан
Кухня Pedini, Vintage; плитка на фартуке Tonalite; бытовая техника Miele, Bosch, Liebherr

Классическую и современную линии объединили бирюзовым фартуком — контрастным спокойному оттенку фасадов. Цвет согласовали с первого раза и быстро нашли фактурную плитку нужного оттенка.
Houzz тур: Квартира с цветными... потолкамиТимур Грицан
Люстра Foscarini; встроенный свет Delta Light; стулья Sedit

Еще одной просьбой заказчицы был рисунок на кирпичной кладке. Стилизованную монохромную роспись создавали командой: эскиз разработали дизайнеры, а на стену его нанесла московская художница.
Houzz тур: Квартира с цветными... потолкамиТимур Грицан
СПАЛЬНЯ
Небольшое количество естественного света в комнате компенсировали зеркалами, расположенными напротив окон, и светильниками. Потолки в спальне выкрасили в цвет акцентной стены, создав теплое по ощущениям пространство.
Houzz тур: Квартира с цветными... потолкамиТимур Грицан
Кровать, навесные тумбочки и комод Pianca; стена напротив кровати отделана 3D-панелями

На плане видно, что между спальней и хозяйской ванной находится гардероб. Вся площадь гардеробной задействована под шкафы и другие системы хранения, а зеркала расположены на дверном полотне с двух сторон.
Houzz тур: Квартира с цветными... потолкамиТимур Грицан
Обои Palm Springs by Kenneth James

ХОЗЯЙСКИЙ САНУЗЕЛ
Для главной ванной основой выбрали белый. Здесь использован не совсем обычный набор отделочных материалов, что добавляет изюминку лаконичному по цвету интерьеру: здесь есть краска, декоративная штукатурка под бетон и даже обои.

Потолок в ванной и примыкающей гардеробной сделали одного, темно-графитового цвета, зрительно объединив эти пространства.
Houzz тур: Квартира с цветными... потолкамиТимур Грицан
ДЕТСКАЯ
Оба ребенка в семье — мальчики младшего школьного возраста. Родители решили, что пока детям удобнее и веселее находиться вместе.

В просторной общей комнате оставили много места для игр, рабочий стол сделали продолжением подоконника, а кровати подняли на уровень 150 сантиметров, чтобы организовать внизу зону хранения.
Houzz тур: Квартира с цветными... потолкамиТимур Грицан
Обратите внимание: Помещение хорошо звукоизолировано. Дети могут играть и шуметь, не мешая родителям и соседям.
Houzz тур: Квартира с цветными... потолкамиТимур Грицан
Раковина Geromin; смесители Kludi; сантехника Galassia; светильники Delta Light; ванна Hafro; плитка Equipe

ДЕТСКИЙ САНУЗЕЛ

Интерьер ванной создавался с перспективой на подростковый возраст — от веселых рисунков на детскую тематику отказались сразу. Сдержанный, но не скучный дизайн предполагал интересное решение с раскладкой плитки.

«Форма ромба вносит динамику в интерьер, которую дополнительно подчеркивают контрастные желтые швы, — говорит Екатерина. — Рисунок стал интерпретацией деревьев и листьев».
Houzz тур: Квартира с цветными... потолкамиТимур Грицан
Плитка Equipe; сантехника Hatria; смеситель Kludi

ГОСТЕВОЙ САНУЗЕЛ

Этого санузла не было в изначальной планировке, его добавили по просьбе заказчиков. Для помещения выбрали теплый оттенок стен. В образовавшуюся при перепланировке нишу встроили шкаф для хранения бытовых вещей.
ОБ АВТОРАХ ПРОЕКТА…
Перейдите на личную страницу BURO 108, чтобы изучить другие работы из портфолио
________________________

В ВАШЕМ ГОРОДЕ…
Найдите дизайнера на Houzz в вашем городе — закажите собственный проект

У ВАС ЕСТЬ ДЛЯ НАС ПРОЕКТ…
Загрузите съёмку в свой профиль на Houzz, отправьте ссылку с кратким описанием на editorial@flatica.ru

Для справки: Какие объекты мы публикуем

Комментарии 31

Прикольно вышло.
Кстати, а как называется бра в ванной комнате? Для тех кто будет искать сову и настенные светильники (которые судя по всему комбинируются на сколько хочешь) ссылки прикладываю.
Всё-таки сразу видно, кто заказчик. У мужчин - либо точно знают, что хотят, либо полностью полагаются на дизайнера. Потому интерьер всегда собран, подтянут, легко прочитывается идея (нравится ли - другой вопрос). У женщины семь пятниц на неделе: хочется и остро-современнго, и розового, и розочки, и переливы красок, и вон ту кухоньку... Дизайнер молодец, обыграл все, разглядывать его находки хочется снова и снова. А цельного интерьера нет.

Оставьте комментарий

Читать похожие статьи