logo

Houzz тур: Квартира с телевизором, которого не видно

У жилья на первом этаже масса плюсов: например, выход в парк прямо из гостиной

Евгения Назарова
Евгения Назарова

9 февр. 2018

Обновлено 17 июня 2018

Постоянный автор Houzz, интерьерный журналист

Houzz тур: Квартира с телевизором, которого не видноАлексей Стрелюк
Евгений Кулибаба
О проекте
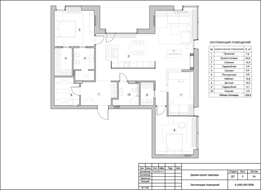
Место: Москва, ЖК «Парк Рублёво»
Размер: 134 кв.м
Кто здесь живёт: семья с дочерью; старший сын гостит в квартире на каникулах
Автор проекта: Алексей Стрелюк
Фото: Евгений Кулибаба

Владельцы познакомились с дизайнером ещё до ремонта: Алексей Стрелюк помогал принять жилплощадь от застройщика. Раннее знакомство позволило лучше понять потребности заказчиков: планировка, предложенная дизайнером, отличалась от рекомендуемых строителями чертежей. Тем более квартира находится на первом этаже, а значит, согласовать большинство изменений удалось на щадящих условиях.
Houzz тур: Квартира с телевизором, которого не видноАлексей Стрелюк
Евгений Кулибаба
Первый этаж не самый популярный вариант среди покупателей, но владельцы предпочли именно его. Во-первых, из-за благоустроенной и закрытой территории: опасаться за свою приватность владельцам не приходится. Во-вторых, из-за уютного парка, который примыкает к набережной: в хорошую погоду на лужайку можно выйти прямо из собственной гостиной.
Houzz тур: Квартира с телевизором, которого не видноАлексей Стрелюк
Евгений Кулибаба
КОРИДОР
Рядом с прихожей появился коридор: к нему примыкает задняя стенка кухни. Чтобы пространство не выглядело как длинный узкий вагон, его обыграли цементным камнем под белой водоэмульсионной краской, зеркалами и панелями из палисандра. Последний материал объединяющий для всего интерьера: палисандром обшиты многие поверхности в гостиной и на кухне.
Houzz тур: Квартира с телевизором, которого не видноАлексей Стрелюк
Евгений Кулибаба
ГОСТИНАЯ
Для гостиной выбрали светлые природные оттенки, крупные поверхности оформили едиными материалами. Например, пол во всей квартире, кроме спален и санузлов, выложили крупноформатным керамогранитом.

Главная особенность интерьера скрытый кинотеатр. Его почти невозможно разглядеть на фото: всю техническую начинку убрали в потолок. Телевизор установили на особый кронштейн экраном вверх (в противном случае на потолке был бы заметен чёрный прямоугольник). Для ресивера над биокамином спроектировали нишу её скрывает заметная панель, которая при открывании поднимается вверх, параллельно основной поверхности. Чтобы техника не перегревалась от камина, между ними выдержали необходимое расстояние и дополнительно установили вентилятор.

БОЛЬШЕ ФОТО…
И визуализаций проекта (в том числе, несколько ракурсов опускающегося с потолка телевизора) — в профиле дизайн-студии Алексея Стрелюка
Houzz тур: Квартира с телевизором, которого не видноАлексей Стрелюк
Евгений Кулибаба
Письменный стол с тумбой выполнен на заказ; стул Barcelona Design; ковер Dovlet House

КАБИНЕТ
Глава семьи хотел работать, не отрываясь от семьи, и видеть, что происходит в гостиной. Поэтому кабинет отделили от гостиной перегородкой с большой площадью остекления.
Houzz тур: Квартира с телевизором, которого не видноАлексей Стрелюк
Евгений Кулибаба
Кабинет мужское пространство: здесь не только работает хозяин, но и останавливается на каникулы старший сын. Отсюда тёмные тона и брутальные фактуры: даже стена за диваном декорирована кожей.

Свет попадает в кабинет через стеклянную перегородку и небольшое вертикальное окно. В прошлом оно было частью окна детской. Чтобы обеспечить обе комнаты естественным светом, для детской заказали стеклопакет поменьше на три створки, четвёртая же досталась кабинету.
Houzz тур: Квартира с телевизором, которого не видноАлексей Стрелюк
Евгений Кулибаба
Houzz тур: Квартира с телевизором, которого не видноАлексей Стрелюк
Евгений Кулибаба
КУХНЯ И СТОЛОВАЯ
Потолок в гостиной опустили на 30 см из-за монтажа домашнего кинотеатра; чтобы не скрадывать высоту стен, карниз для штор завели под потолок и сделали невидимым.
Houzz тур: Квартира с телевизором, которого не видноАлексей Стрелюк
Евгений Кулибаба
Стойка изготовлена на заказ по чертежам студии Алексея Стрелюка; вытяжка Elica

Основная линия кухни включает несколько колонн: в них встроили холодильник и бытовую технику, включая духовку и СВЧ, а также винный шкаф. Варочную поверхность разместили на боковой островной столешнице. Чтобы не монтировать крупную видимую вытяжку, её сделали скрытой: система выдвигается из столешницы. С обратной стороны остров дополняет стойка с высокими стульями. Её выделили панелями из палисандра.
Houzz тур: Квартира с телевизором, которого не видноАлексей Стрелюк
Евгений Кулибаба
Кровать Jarrow Wave Bed; люстра Cattelan Italia; картина Владимира Архангельского

СПАЛЬНЯ
В вопросах стиля мнения членов семьи разошлись: старшие склонялись к классическим мотивам, младшие к минимализму. В общих интерьерах дизайнер создал микс этих противоречивых запросов, а родительской спальне добавил классических штрихов. Например, стёганое изголовье кровати и фактурные стены их украшают обои ручной работы с рисунком, напоминающим мятую бумагу. Низкий подоконник превратился в мягкую скамью с прорезями для корректной работы конвектора.
Houzz тур: Квартира с телевизором, которого не видноАлексей Стрелюк
Евгений Кулибаба
ДЕТСКАЯ
Одну из стен занимает стенка-трансформер со спрятанной кроватью, которая при открывании опускается поверх дивана. Картина от этих манипуляций не страдает она закреплена в двух точках.

Все секции стенки рабочие. Не распахиваются разве что узкие вертикальные секции по бокам от кровати. Доступ к ним есть со стороны спального места, чтобы оставлять на ночь книгу или будильник.
Houzz тур: Квартира с телевизором, которого не видноАлексей Стрелюк
Евгений Кулибаба
Модульная система изготовлена на заказ в мастерской Senator Club; картина над диваном художницы Софьи Пятницкой

Ещё одна стена в детской девочки оформлена магнитно-маркерной краской. Пейзаж на ней временный, пока юная хозяйка не решит изобразить что-нибудь на свой вкус.
Houzz тур: Квартира с телевизором, которого не видноАлексей Стрелюк
Евгений Кулибаба
ВАННАЯ ХОЗЯЕВ
В санузле при хозяйской спальне по просьбе заказчиков смонтировали большой душевой отсек. Внутри установили тропический душ и скамью, на которую уложили тёплый пол.
Houzz тур: Квартира с телевизором, которого не видноАлексей Стрелюк
Евгений Кулибаба
Плитка Fap Ceramiche; тумба изготовлена в мастерской Senator Club; умывальник Villeroy & Boch; медный смеситель Migliore

ГОСТЕВОЙ САНУЗЕЛ
Гостевой санузел современное пространство с элементами лофта и медными аксессуарами под лаком. С геометричной резьбой на фасадах рифмуются абажуры металлических светильников.

ОБ АВТОРЕ ИНТЕРЬЕРА…
Перейдите в портфолио Алексея Стрелюка, чтобы изучить другие работы и связаться с автором проекта

В ВАШЕМ ГОРОДЕ…
Найдите дизайнера на Houzz — закажите собственный проект

У ВАС ЕСТЬ ДЛЯ НАС ПРОЕКТ…
Загрузите съёмку в свой профиль на Houzz, отправьте ссылку с кратким описанием на RuEditors@houzz.com

Для справки: Какие объекты мы публикуем

Комментарии 27

Понравилась стена магнитно-маркерная.это же какой полет для творчества,а если фотографировать записи и рисунки на этой доске в разное время,это ж история взросления,история смены интересов!
Да, интерьер интересный. И это не оспаривается. А главное, что интерьер нравится заказчику :) У меня недоумение вызвало только не использование дизайнером и декоратором , при недешовом проекте, сегодняшних технических возможностей стекол спрятать личную жизнь хозяев квартиры. Выход во "внутрений дворик" даже в элитной закрытой территории, где вокруг дома - это не выход в патио ! Патио открытый внутренний двор(ик) жилого помещения, С РАЗНЫХ СТОРОН ОКРУЖЕННЫЙ СТЕНАМИ ! . .
В городских условиях часто из окон видна не прекрасная даль, а окна дома напротив . А почему не использовать светорассеивающее непрозрачное стекло? Или стекла со светорассеивающей шероховатой поверхностью? И ещё вариант — электрохроматическое стекло: буквально одно нажатие кнопки пульта — и стекло теряет свою прозрачность. "Выход на лужайку", как я поняла, только в одной комнате. Неужели обитателям жилья комфортно жить , как на витрине магазина ?! Ради чего ? И зачем в высотном доме, окруженным другими многоэтажками, нужен выход в "общий двор" из своей квартиры таким образом ? У них же и так первый этаж !

Оставьте комментарий

Читать похожие статьи