logo

Houzz тур: Квартира с фарфоровым «ядром»

В этой квартире восхищают не только планировка и виды из окна

Наталия Тверитинова
Наталия Тверитинова

27 февр. 2017

Обновлено 2 сент. 2018

Постоянный автор Houzz, интерьерный и архитектурный журналист.

Хозяин квартиры обратился в бюро с просьбой доработать претензии по планировке готового проекта (чужого авторства). Но этот вариант не устроил архитекторов. Дело в том, что самая эффектная часть квартиры три остекленные до пола видовые стороны были совершенно не задействованы: санузлы закрывали виды, комнаты и темные коридоры рубили квартиру на много ячеек. Потому был разработан совершенно новый проект — под стать достоинствам дома.

О проекте:
Место: Москва, квартира на
последнем этаже новостройки рядом с м. «Маяковская»
Размер: 160 кв.м
Кто здесь живет: бывший холостяк, который в процессе реконструкции квартиры обзавелся семьей
Авторы проекта: бюро Megabudka совместно с АБ
Sretenka — архитекторы Юлия Арнаутова, Кирилл Губернаторов, Дарья Листопад, Андрей Самонаев, Артем Укропов
Фото: Борис Бочкарев

Houzz тур: Квартира с фарфоровым «ядром»Кирилл Губернаторов
Квартиру организовали как студию с единым пространством и перетеканием функциональных зон. В центре разместили своего рода ядро: в нем собрали санузлы и хозяйственные помещения. Этот объем вместил и технические вещи, которые необходимо скрыть от глаз. «Ядро с инженерной точки зрения оказалось очень удобным. Оно содержит нарезки ниш, которые мы наполнили инженерной начинкой. Так нашлось место для размещения электрики, системы кондиционирования, вентиляции с воздуховодами и парогенераторами», — рассказывает архитектор Кирилл Губернаторов.
Houzz тур: Квартира с фарфоровым «ядром»Кирилл Губернаторов
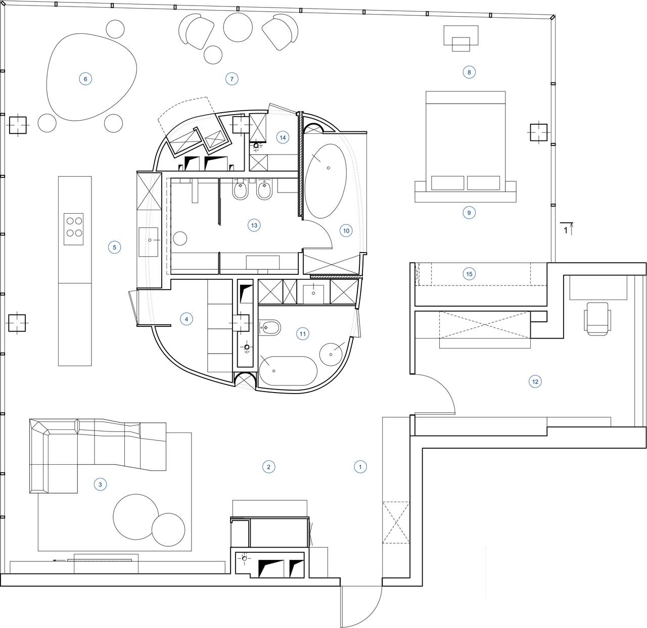
План квартиры. 1. Прихожая. 2. Холл. 3. Гостиная. 4. Кладовая при кухне. 5. Кухня-бар. 6. Столовая-кабинет. 7. Мягкая зона. 8. Спальня. 9. Гардеробная зона. 10. Ванная-ниша. 11. Гостевой санузел с постирочной. 12. Детская комната. 13. Главный санузел. 14. Подсобное помещение. 15. Гардероб Открытое пространство объединило гостиную, кухню-бар, столовую, место отдыха, рабочую зону и спальню. В центральном ядре сгруппировали хозяйский и гостевой санузел, подсобную комнату кухни, нишу для кабинета. Диван, обеденный стол, кухонный остров и кровать расположили как острова, вокруг которых разворачивается домашняя жизнь. Частью общего пространства не являются лишь детская и, конечно, все то, что спрятали внутри объема. Первоначально детская задумывалась как гардероб или кабинет.
Houzz тур: Квартира с фарфоровым «ядром»Кирилл Губернаторов
Панорамные окна впускают в квартиру свет и открывают дом городу, находящемуся снаружи. А городские пейзажи становятся арт-объектами.
Houzz тур: Квартира с фарфоровым «ядром»Кирилл Губернаторов
Пол: инженерная доска, Slide, LAGO, дизайнер Даниэле Лаго МАТЕРИАЛЫ И РЕШЕНИЯ Раскладка пола подчеркивает движение пространства вокруг центрального объема. «Мы долго выбирали, какой пол сделать, но стандартные доски не подчеркивали геометрию пространства», — вспоминает Кирилл.
Houzz тур: Квартира с фарфоровым «ядром»Кирилл Губернаторов
Торец медной ниши кухни Архитекторы внимательно отнеслись к текстурам. Центральный объем — не только важный архитектурный элемент, но и главный элемент декора. Фарфор, дерево и медь — материалы, использованные для его отделки. «Мы не побоялись использовать медь, — рассказывает Кирилл. — Меди много. Она прекрасно работает на окружающую среду, отражает город, который виден из окон. И дает очень яркие отражения: от любого светильника на меди идут красивые рефлексы, а на солнце этот эффект многократно усиливается». Медными листами обшиты хозяйская ванная комната, ниша в самом ядре и ниша, образующая портал кухни.
Houzz тур: Квартира с фарфоровым «ядром»Кирилл Губернаторов
Центральный объем облицован фарфоровыми черенками молочного цвета. Плашки шести размеров керамисты отлили вручную и покрыли полуглянцевым составом. «Сам объем мы представляли неким волшебным материалом, реагирующим на окружающую среду, — рассказывает Кирилл. — Фарфор — материал не только отражающий, но и впитывающий свет, он растворяется в окружающем пейзаже. Кроме того, фарфор хорошо дружит с медью, деревом, текстилем». СМОТРИТЕ ТАКЖЕ… Рассмотрите стыки разных материалов на полу и стенах в других фото из этого проекта
Houzz тур: Квартира с фарфоровым «ядром»Кирилл Губернаторов
За черной стеклянной дверью спрятан «пирог» из разных систем, обеспечивающий работу аудиосистемы и домашнего кинотеатра со сценарием ночного просмотра фильмов. Архитекторы экспериментировали не только с пространством, полом, материалами, но и освещением. В интерьере только две люстры: в гостиной и столовой. Остальное освещение — техническое, заполняющее пространство скрытым светом. «Мы часто не замечаем, откуда исходит свет, просто видим освещенное пространство», — объясняет Кирилл. Черные линии на потолке — линейные щелевые светильники, совмещенные с вытяжной вентиляцией.
«В концепцию проекта мы заложили “щели”, в которые встроили инженерную начинку: точечный свет и вытяжку, — продолжает Кирилл. — Для “щелей” использовали глубокий гнутый профиль черного цвета. Это световой профиль, но он подходит для установки в нем любой инженерной начинки, включая акустику. Сначала профиль разложили на полу, затем строители установили его на потолке. Это было особое удовольствие — смотреть, как это собиралось».
Houzz тур: Квартира с фарфоровым «ядром»Кирилл Губернаторов
Заказчик любит эксперименты , сложные детали, хитросплетения, поэтому архитекторы сделали не обычный потолок, а использовали детали, которые вносят в него второй смысл. Рисунок на потолке, подчиняясь ритмам пространства, идет по контуру ядра и тем самым усиливает движение, которое заканчивается тремя черными светильниками в зоне спальни. По потолку вдоль окна проходит приточная вентиляция.
Houzz тур: Квартира с фарфоровым «ядром»Кирилл Губернаторов
ПРИХОЖАЯ «Как правило, прихожая — темная зона, плохо доступное для естественного света место. А в этой квартире — это светлый и открытый холл, перетекающий в общее пространство, — рассказывает Кирилл. — Правда, у входа есть небольшой предбанник — место, где можно посмотреть в зеркало, разложить вещи». В этом небольшом пространстве перед входной дверью уложили мрамор, повторяющий размером и формой паркет. Паркет переходит на вертикальные поверхности — на стену со скрытой в ней дверью, за которой спрятали все щитки, гребенки и серверы.
Houzz тур: Квартира с фарфоровым «ядром»Кирилл Губернаторов
ГОСТИНАЯ В общем пространстве стены есть только в гостиной и прихожей. «Внутри квартиры очень мало стен, которыми мы могли пользоваться. Было четкое понимание, что нам надо отличить объем от стен, поэтому практически единственную стену мы сделали очень глубокого синего цвета, который использовали как фоновый. С глубоким темно-синим дружат все цвета и материалы», — объясняет Кирилл.
Houzz тур: Квартира с фарфоровым «ядром»Кирилл Губернаторов
Люстра Quasar Люстра состоит из проводов и раскиданных по ней маленьких светодиодов, которые светятся, как точки. «Мы развесили кристаллы, отсылающие к люстрам, на которых должно что-то висеть. Но это функциональная вещь, поэтому можно было обойтись без такой экзотики», — делится Кирилл.
Houzz тур: Квартира с фарфоровым «ядром»Кирилл Губернаторов
Диван, столики B&B Italia Большой диван, напоминая цветом и формой природный камень, работает на контрасте со светлым, визуально легким объемом. «Мы “раскидали” по квартире тяжелые объекты: диван, барную стойку и кровать. Они создают в своих зонах акцентные места. Мы хотели сделать ядро светлым, а эти объекты темными — они должны были от него отличаться», — объясняет архитектор.
Houzz тур: Квартира с фарфоровым «ядром»Кирилл Губернаторов
Кухня из массива ореха Bax КУХНЯ Компактную кухню разместили в медной нише, примыкающей к центральному объему. Фартук выполнен из черного стекла, а материал столешницы — кварцит. В остров встроены низкий холодильник и винный шкаф. К острову примыкает круглый барный стол, столешница которого выполнена из шпона дуба под несколькими слоями лака. Рядом с кухней — дверь в подсобную комнату, расположенную в центральном объеме. Это попросту кухонный склад с духовым шкафом, СВЧ-печью, посудомоечной машиной и местами для хранения.
Houzz тур: Квартира с фарфоровым «ядром»Кирилл Губернаторов
«Большой стол можно использовать не только как обеденный. За ним можно проводить рабочие встречи. Эта зона гибкая, поскольку заказчик не мог с точностью сказать, будет ли он обедать дома и станет ли проводить здесь большие совещания. Но все это ему было нужно», — рассказывает Кирилл.
Houzz тур: Квартира с фарфоровым «ядром»Кирилл Губернаторов
МЕСТО ОТДЫХА Заказчик хотел камин, но дровяная модель не вписывалась в окружение, а для биокамина не нашлось удобного безопасного места. Этот недостающий элемент каминной зоны заменили светильником с медными частями. Часть квартиры на фото выше используется как место отдыха: здесь можно любоваться панорамой города и закатом.
Houzz тур: Квартира с фарфоровым «ядром»Кирилл Губернаторов
КАБИНЕТ Рядом с зоной отдыха сделали кабинет. Для этого в центральном объеме в нише обустроили рабочее место. «Модель жизни заказчика, пользующегося ноутбуком, подразумевала, что ему не нужен большой кабинет, а ниша со столом вполне подходила», — объясняет Кирилл. Зато за дверью слева от ниши находится отсек для хранения бумаг с принтером и всем, что необходимо для работы.
Houzz тур: Квартира с фарфоровым «ядром»Кирилл Губернаторов
СПАЛЬНЯ И ВАННАЯ Хозяйская ванная расположена в центральном объеме со стороны спальни. Авторы проекта зонировали это личное пространство двумя раздвижными перегородками. Они выдвигаются из специальных пеналов — карманов, сделанных в стенах ванной комнаты. По словам архитекторов, у перегородок хорошая звукоизоляция. «Это одно из самых сложных в квартире мест, которое делали с помощью трех-четырех разных подрядчиков», — рассказывает Кирилл.
Houzz тур: Квартира с фарфоровым «ядром»Кирилл Губернаторов
В нише из меди стоит открытая в спальню и город роскошная ванна. «Мы хотели смягчить излишнюю брутальность, интерпретировать возраст и опыт заказчика и поэтому не побоялись вместе с медью внести в интерьер элементы, позволяющие спальне тяготеть к стилистике ар деко», — рассказывает архитектор . Медными листами обшиты стена, шкафы и повторяющая изгибы ванной потолочная ниша со множеством спрятанных в ней светильников. Ванная закрывается стеклянной перегородкой.
Houzz тур: Квартира с фарфоровым «ядром»Кирилл Губернаторов
За изголовьем кровати обустроили гардеробную, занимающую фактически полкомнаты. Сама гардеробная представляет собой американский вариант — очень глубокий шкаф, в который можно зайти. «С помощью “Умного дома” мы можем управлять любой частью квартиры. Менять сценарии и интерьер многократно, — объясняет Кирилл. — М ожно с планшета управлять каждым светильником и лампочкой, задавать им процент свечения, управлять шторами, теплым полом, системой кондиционирования, домашним кинотеатром, регулировать температуру».
Houzz тур: Квартира с фарфоровым «ядром»Кирилл Губернаторов
САНУЗЕЛ Потолок здесь декорирован рейками из африканской сейбы — светлого устойчивого к воде дерева. Дверцы тумбы под раковину сделаны из массива. Стены оформлены керамогранитом антрацитового цвета, напоминающим сланец. ОБ АВТОРАХ ПРОЕКТА… Перейдите на страницу бюро Megabudka , чтобы изучить другие работы из портфолио архитекторов
В ВАШЕМ ГОРОДЕ… Найдите архитектора на Houzz в вашем городе — закажите собственный проект У ВАС ЕСТЬ ДЛЯ НАС ПРОЕКТ… Загрузите съёмку в свой профиль на Houzz, отправьте ссылку с кратким описанием на editorial@flatica.ru Для справки: Какие объекты мы публикуем

Комментарии 39

керамический бамбук впечатляет
Круто! И дорого :) единственное что удивило - "дровяной камин не вписывался". Недавно видела камин, показалось дровяной, выглядит как "капля" из потолка. Крепится к потолку и висит на уровне 50-70 см от пола. В таком интерьере смотрелось бы хорошо, на мой взгляд :)
Очень хорошо, добротно, богато !!!

Оставьте комментарий

Читать похожие статьи