
4 мар. 2021
Обновлено 17 апр. 2021
Постоянный автор Houzz, интерьерный журналист
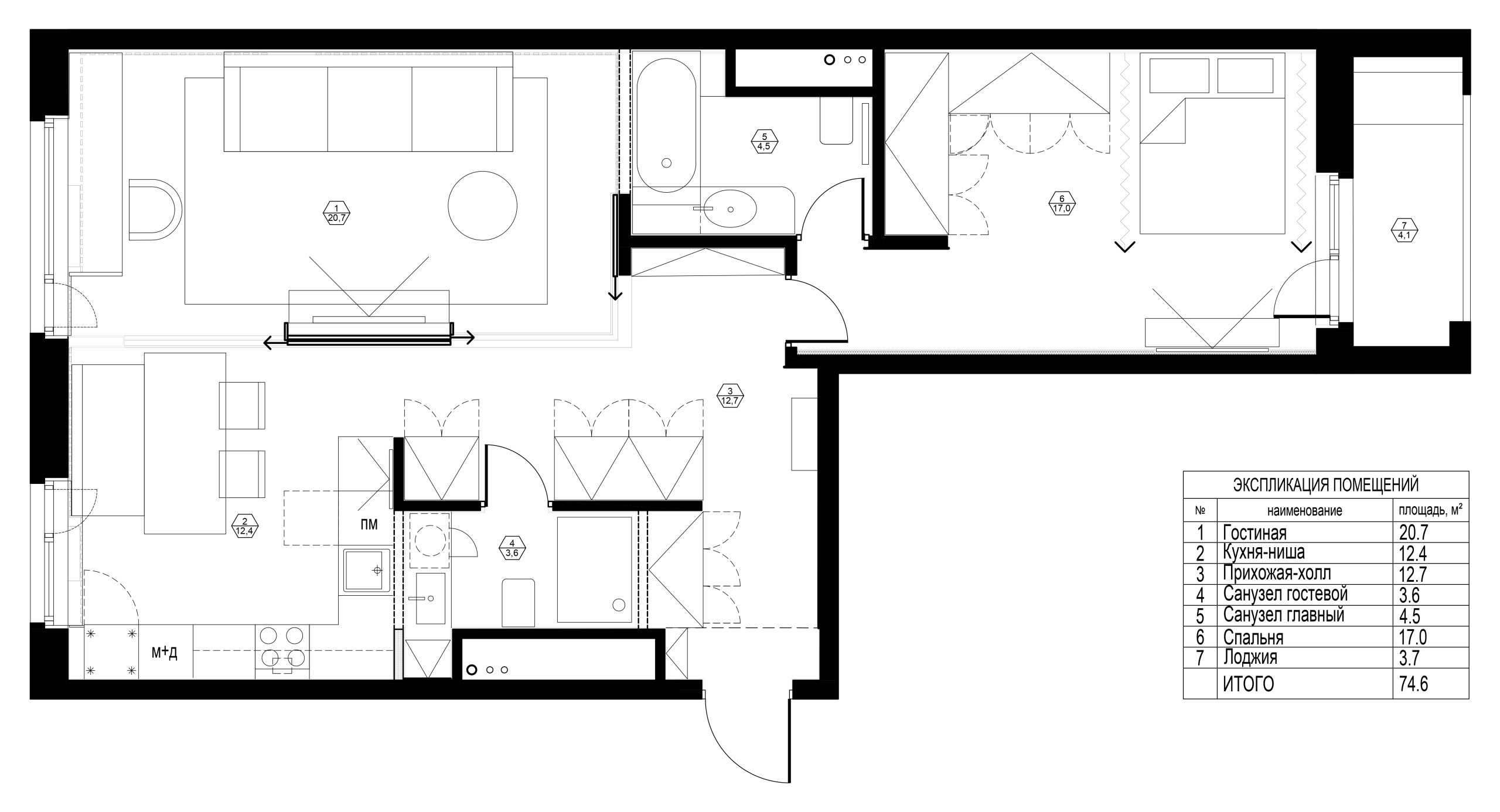
Автор Александра Журавлева . Фотограф Алёна Кустова . Квартира 75 м2 с двухсторонней ориентацией и возможностью зонирования раздвижными перегородками подобно японским перегородкам сёдзи. Интерьер, насыщенный уникальными предметами, выполненными автором проекта, вдохновленной культурой Японии. Отделка: экологичные материалы в отделке дерево, камень, натуральный текстиль, лен, хлопок. Гамма цветов сдержана. Ничего лишнего, ровно столько сколько необходимо! - основная мысль японской философии ваби-саби, которой придерживались при создании этого интерьера.
Автор Александра Журавлева . Фотограф Алёна Кустова . Квартира 75 м2 с двухсторонней ориентацией и возможностью зонирования раздвижными перегородками подобно японским перегородкам сёдзи. Интерьер, насыщенный уникальными предметами, выполненными автором проекта, вдохновленной культурой Японии. Отделка: экологичные материалы в отделке дерево, камень, натуральный текстиль, лен, хлопок. Гамма цветов сдержана. Ничего лишнего, ровно столько сколько необходимо! - основная мысль японской философии ваби-саби, которой придерживались при создании этого интерьера.
Автор Александра Журавлева . Фотограф Алёна Кустова . Квартира 75 м2 с двухсторонней ориентацией и возможностью зонирования раздвижными перегородками подобно японским перегородкам сёдзи. Интерьер, насыщенный уникальными предметами, выполненными автором проекта, вдохновленной культурой Японии. Отделка: экологичные материалы в отделке дерево, камень, натуральный текстиль, лен, хлопок. Гамма цветов сдержана. Ничего лишнего, ровно столько сколько необходимо! - основная мысль японской философии ваби-саби, которой придерживались при создании этого интерьера.
Автор Александра Журавлева . Фотограф Алёна Кустова . Квартира 75 м2 с двухсторонней ориентацией и возможностью зонирования раздвижными перегородками подобно японским перегородкам сёдзи. Интерьер, насыщенный уникальными предметами, выполненными автором проекта, вдохновленной культурой Японии. Отделка: экологичные материалы в отделке дерево, камень, натуральный текстиль, лен, хлопок. Гамма цветов сдержана. Ничего лишнего, ровно столько сколько необходимо! - основная мысль японской философии ваби-саби, которой придерживались при создании этого интерьера.
Автор Александра Журавлева . Фотограф Алёна Кустова . Квартира 75 м2 с двухсторонней ориентацией и возможностью зонирования раздвижными перегородками подобно японским перегородкам сёдзи. Интерьер, насыщенный уникальными предметами, выполненными автором проекта, вдохновленной культурой Японии. Отделка: экологичные материалы в отделке дерево, камень, натуральный текстиль, лен, хлопок. Гамма цветов сдержана. Ничего лишнего, ровно столько сколько необходимо! - основная мысль японской философии ваби-саби, которой придерживались при создании этого интерьера.
Автор Александра Журавлева . Фотограф Алёна Кустова . Квартира 75 м2 с двухсторонней ориентацией и возможностью зонирования раздвижными перегородками подобно японским перегородкам сёдзи. Интерьер, насыщенный уникальными предметами, выполненными автором проекта, вдохновленной культурой Японии. Отделка: экологичные материалы в отделке дерево, камень, натуральный текстиль, лен, хлопок. Гамма цветов сдержана. Ничего лишнего, ровно столько сколько необходимо! - основная мысль японской философии ваби-саби, которой придерживались при создании этого интерьера.
Автор Александра Журавлева . Фотограф Алёна Кустова . Квартира 75 м2 с двухсторонней ориентацией и возможностью зонирования раздвижными перегородками подобно японским перегородкам сёдзи. Интерьер, насыщенный уникальными предметами, выполненными автором проекта, вдохновленной культурой Японии. Отделка: экологичные материалы в отделке дерево, камень, натуральный текстиль, лен, хлопок. Гамма цветов сдержана. Ничего лишнего, ровно столько сколько необходимо! - основная мысль японской философии ваби-саби, которой придерживались при создании этого интерьера.
Автор Александра Журавлева . Фотограф Алёна Кустова . Квартира 75 м2 с двухсторонней ориентацией и возможностью зонирования раздвижными перегородками подобно японским перегородкам сёдзи. Интерьер, насыщенный уникальными предметами, выполненными автором проекта, вдохновленной культурой Японии. Отделка: экологичные материалы в отделке дерево, камень, натуральный текстиль, лен, хлопок. Гамма цветов сдержана. Ничего лишнего, ровно столько сколько необходимо! - основная мысль японской философии ваби-саби, которой придерживались при создании этого интерьера.
Автор Александра Журавлева . Фотограф Алёна Кустова . Квартира 75 м2 с двухсторонней ориентацией и возможностью зонирования раздвижными перегородками подобно японским перегородкам сёдзи. Интерьер, насыщенный уникальными предметами, выполненными автором проекта, вдохновленной культурой Японии. Отделка: экологичные материалы в отделке дерево, камень, натуральный текстиль, лен, хлопок. Гамма цветов сдержана. Ничего лишнего, ровно столько сколько необходимо! - основная мысль японской философии ваби-саби, которой придерживались при создании этого интерьера.
Автор Александра Журавлева . Фотограф Алёна Кустова . Квартира 75 м2 с двухсторонней ориентацией и возможностью зонирования раздвижными перегородками подобно японским перегородкам сёдзи. Интерьер, насыщенный уникальными предметами, выполненными автором проекта, вдохновленной культурой Японии. Отделка: экологичные материалы в отделке дерево, камень, натуральный текстиль, лен, хлопок. Гамма цветов сдержана. Ничего лишнего, ровно столько сколько необходимо! - основная мысль японской философии ваби-саби, которой придерживались при создании этого интерьера.
Автор Александра Журавлева . Фотограф Алёна Кустова . Квартира 75 м2 с двухсторонней ориентацией и возможностью зонирования раздвижными перегородками подобно японским перегородкам сёдзи. Интерьер, насыщенный уникальными предметами, выполненными автором проекта, вдохновленной культурой Японии. Отделка: экологичные материалы в отделке дерево, камень, натуральный текстиль, лен, хлопок. Гамма цветов сдержана. Ничего лишнего, ровно столько сколько необходимо! - основная мысль японской философии ваби-саби, которой придерживались при создании этого интерьера.
Автор Александра Журавлева . Фотограф Алёна Кустова . Квартира 75 м2 с двухсторонней ориентацией и возможностью зонирования раздвижными перегородками подобно японским перегородкам сёдзи. Интерьер, насыщенный уникальными предметами, выполненными автором проекта, вдохновленной культурой Японии. Отделка: экологичные материалы в отделке дерево, камень, натуральный текстиль, лен, хлопок. Гамма цветов сдержана. Ничего лишнего, ровно столько сколько необходимо! - основная мысль японской философии ваби-саби, которой придерживались при создании этого интерьера.
Автор Александра Журавлева . Фотограф Алёна Кустова . Квартира 75 м2 с двухсторонней ориентацией и возможностью зонирования раздвижными перегородками подобно японским перегородкам сёдзи. Интерьер, насыщенный уникальными предметами, выполненными автором проекта, вдохновленной культурой Японии. Отделка: экологичные материалы в отделке дерево, камень, натуральный текстиль, лен, хлопок. Гамма цветов сдержана. Ничего лишнего, ровно столько сколько необходимо! - основная мысль японской философии ваби-саби, которой придерживались при создании этого интерьера.
Автор Александра Журавлева . Фотограф Алёна Кустова . Квартира 75 м2 с двухсторонней ориентацией и возможностью зонирования раздвижными перегородками подобно японским перегородкам сёдзи. Интерьер, насыщенный уникальными предметами, выполненными автором проекта, вдохновленной культурой Японии. Отделка: экологичные материалы в отделке дерево, камень, натуральный текстиль, лен, хлопок. Гамма цветов сдержана. Ничего лишнего, ровно столько сколько необходимо! - основная мысль японской философии ваби-саби, которой придерживались при создании этого интерьера.
Автор Александра Журавлева . Фотограф Алёна Кустова . Квартира 75 м2 с двухсторонней ориентацией и возможностью зонирования раздвижными перегородками подобно японским перегородкам сёдзи. Интерьер, насыщенный уникальными предметами, выполненными автором проекта, вдохновленной культурой Японии. Отделка: экологичные материалы в отделке дерево, камень, натуральный текстиль, лен, хлопок. Гамма цветов сдержана. Ничего лишнего, ровно столько сколько необходимо! - основная мысль японской философии ваби-саби, которой придерживались при создании этого интерьера.
Автор Александра Журавлева . Фотограф Алёна Кустова . Квартира 75 м2 с двухсторонней ориентацией и возможностью зонирования раздвижными перегородками подобно японским перегородкам сёдзи. Интерьер, насыщенный уникальными предметами, выполненными автором проекта, вдохновленной культурой Японии. Отделка: экологичные материалы в отделке дерево, камень, натуральный текстиль, лен, хлопок. Гамма цветов сдержана. Ничего лишнего, ровно столько сколько необходимо! - основная мысль японской философии ваби-саби, которой придерживались при создании этого интерьера.
Автор Александра Журавлева . Фотограф Алёна Кустова . Квартира 75 м2 с двухсторонней ориентацией и возможностью зонирования раздвижными перегородками подобно японским перегородкам сёдзи. Интерьер, насыщенный уникальными предметами, выполненными автором проекта, вдохновленной культурой Японии. Отделка: экологичные материалы в отделке дерево, камень, натуральный текстиль, лен, хлопок. Гамма цветов сдержана. Ничего лишнего, ровно столько сколько необходимо! - основная мысль японской философии ваби-саби, которой придерживались при создании этого интерьера.
Автор Александра Журавлева . Фотограф Алёна Кустова . Квартира 75 м2 с двухсторонней ориентацией и возможностью зонирования раздвижными перегородками подобно японским перегородкам сёдзи. Интерьер, насыщенный уникальными предметами, выполненными автором проекта, вдохновленной культурой Японии. Отделка: экологичные материалы в отделке дерево, камень, натуральный текстиль, лен, хлопок. Гамма цветов сдержана. Ничего лишнего, ровно столько сколько необходимо! - основная мысль японской философии ваби-саби, которой придерживались при создании этого интерьера.
Автор Александра Журавлева . Фотограф Алёна Кустова . Квартира 75 м2 с двухсторонней ориентацией и возможностью зонирования раздвижными перегородками подобно японским перегородкам сёдзи. Интерьер, насыщенный уникальными предметами, выполненными автором проекта, вдохновленной культурой Японии. Отделка: экологичные материалы в отделке дерево, камень, натуральный текстиль, лен, хлопок. Гамма цветов сдержана. Ничего лишнего, ровно столько сколько необходимо! - основная мысль японской философии ваби-саби, которой придерживались при создании этого интерьера.