logo

Houzz тур: Квартира с чёрным зеркалом для семьи юристов

Заказчики увеличили бюджет ремонта в несколько раз — так вошли во вкус

Houzz Россия
Houzz Россия

22 дек. 2017

Обновлено 1 мар. 2018

Houzz тур: Квартира с чёрным зеркалом для семьи юристовОльга Черненко
О проекте
Место: Москва
Год: 2017
Размер: 68 кв.м
Кто здесь живет: молодая семья
Автор проекта: Ольга Черненко
Фото: Михаил Степанов

«Для заказчиков это первое собственное жилье. И впервые за мою практику мы превысили бюджет в несколько раз по желанию самих заказчиков: в процессе они поняли, что им нравится и сколько это стоит», — рассказывает дизайнер Ольга Черненко.
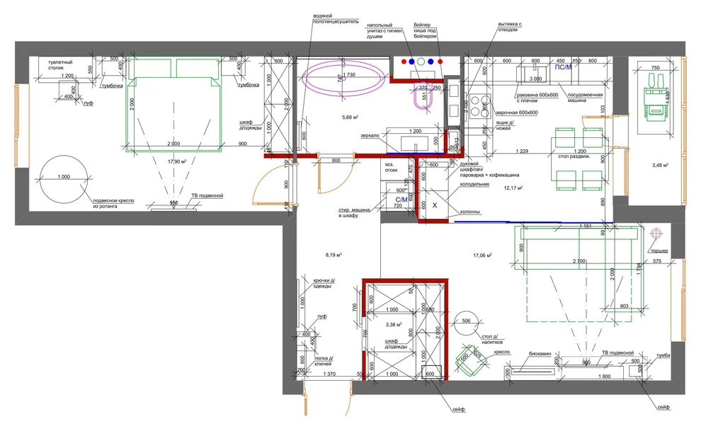
Планировка квартиры

Квартира находится в новостройке. Здесь не было несущих стен, но высота потолка составила всего 2,8 метра. Первым делом объединили ванную с санузлом и кухню с гостиной. Перегородку между прихожей и гостиной немного сдвинули, возведя на освободившихся метрах изолированную гардеробную комнату.
Houzz тур: Квартира с чёрным зеркалом для семьи юристовОльга Черненко
Мебель и свет в гостиной: люстра Raimond Lamp; торшер: Toobe, Kartell; встроенные светильники Delta light; диван: SMA; ковер Dovlet house; кресло Eichholtz; столик Porada
Houzz тур: Квартира с чёрным зеркалом для семьи юристовОльга Черненко
ГОСТИНАЯ
Желание встроить телевизор за черное матовое стекло появилось у заказчиков на этапе проектирования. Для этого возвели фальшстену с нишей для ТВ, сделали обрешетку и обшили стену панелями из замши.
«Замша смягчает интерьер, делает его домашним и уютным, вносит цветовое разнообразие, — поясняет дизайнер. — К тому же уход за стеновыми панелями проще, чем за окрашенными стенами. Этот прием мы применили и в коридоре».

Под телевизором установлен биокамин в подвесной тумбе. Внутри она обшита листовым железом — так дерево не нагревается.
Houzz тур: Квартира с чёрным зеркалом для семьи юристовОльга Черненко
Проблема и решение: Высоту потолков опустили еще на несколько сантиметров, чтобы заложить проводку под светильники. Также заказчики настаивали на приточно-вытяжной вентиляции. Это техническое решение требовало дополнительного занижения потолков, но все коммуникации удалось скрыть в ригеле между кухней и гостиной, а также в санузле, коридоре и гардеробной.

«Основные системы вентиляции и кондиционирования стоят на балконе. Их было видно с улицы, поэтому мы заменили два фрагмента остекления на глухое», — рассказывает дизайнер.
Houzz тур: Квартира с чёрным зеркалом для семьи юристовОльга Черненко
КУХНЯ
Уже на этапе реализации проекта заказчики попросили сделать перегородку из тонированного матового стекла между кухней и гостиной, чтобы оставшиеся ночевать гости не ощущали, будто спят на кухне.
Houzz тур: Квартира с чёрным зеркалом для семьи юристовОльга Черненко
Мойка и смеситель Blanco; кухонный гарнитур Stosa; стол и стулья Calligaris; духовой шкаф, СВЧ, варочная панель, встроенный холодильник Neff; вытяжка: Faber Eclipse; керамогранит: Rush Ivory; подвес Snowball
Houzz тур: Квартира с чёрным зеркалом для семьи юристовОльга Черненко
СПАЛЬНЯ
В спальне стенам добавили едва заметный оттенок лилового, подчеркнув белый цвет мебели: кровати, тумбы, системы хранения и косметического столика.
Houzz тур: Квартира с чёрным зеркалом для семьи юристовОльга Черненко
«Очень не хотелось вешать телевизор на голую стену, — вспоминает Ольга. — И я предложила заказчикам вариант со стеновой панелью. Мы выбрали панель из светлого дуба. Кроме красоты, продумали полезное действие: внизу есть небольшая полка, куда можно поставить свечи, фотографии или положить телефон. Полка не повлияла на ширину прохода, но добавила функциональности».
Houzz тур: Квартира с чёрным зеркалом для семьи юристовОльга Черненко
Кровать, тумбочки, туалетный столик и шкаф для одежды Tomasella; зеркало Kartell; кресло Zonta; подвесы у кровати Аxo light, Spillray

В светлую палитру комнаты внесли яркие акценты — их задали постер на стене и текстиль в серо-розовой гамме. Постер напечатали в Германии и доставили на объект уже в багете.
Houzz тур: Квартира с чёрным зеркалом для семьи юристовОльга Черненко
Ванна Burlington, Formoso; унитаз Villeroy & Boch, Subway; встроенный смеситель для ванны и раковины Fantini; тумба со встроенной раковиной Oasis; зеркало Villeroy & Boch; плитка Marvel Pro Statuario Select Lapp 60x60 см и Marvel Pro Noir St.Laurent 40x80 см

ВАННАЯ
Для ванной комнаты заказчица выбрала напольную ванну и дорогую сантехнику. Все коммуникации скрыли в подиуме и боковой полке. Стены облицевали плиткой под мрамор. Для одной из стен выбрали плитку черного цвета с рельефными бороздками. Чтобы немного вытянуть потолок, бороздки разместили вертикально.
Houzz тур: Квартира с чёрным зеркалом для семьи юристовОльга Черненко
В первоначальной планировке санузел был раздельным. Его объединили, чтобы добавить вместительную ванну и шкаф с несколькими ящиками и раковиной по центру.
КОРИДОР
Стиральная и сушильная машины спрятаны в коридоре, во встроенном шкафу-нише. Для согласования этого технического момента сюда провели вытяжку. В шкафу также есть отсек для хранения хозяйственных принадлежностей и бытовой химии.

ОБ АВТОРЕ ИНТЕРЬЕРА…
Перейдите на личную страницу Ольги Черненко, чтобы изучить другие работы из портфолио дизайнера или заказать ей собственный проект

КАК ЗАДАТЬ ВОПРОС ДИЗАЙНЕРУ…
Если у вас остался вопрос по маркам и конструктивным решениям, на который вы не нашли ответа в статье, спросите напрямую у автора этого проекта. Откройте нужное фото в полноэкранном режиме, найдите кнопку «задать вопрос» в правом нижнем углу и напишите свой. Дизайнер получает уведомления о каждом вопросе, добавленном к его фотографиям

У ВАС ЕСТЬ ДЛЯ НАС ПРОЕКТ…

Загрузите съёмку в свой профиль на Houzz, отправьте ссылку с кратким описанием на editorial@flatica.ru

Для справки: Какие объекты мы публикуем

Комментарии 22

med_ural Все нестандартные решения, дизайнерские фишки всегда натыкаются на консерватизм заказчика, который не хочет всего этого, а хочет уютно, стандартно и без изысков, а еще недорого. Свободу творчества дает 1 заказчик из 100. Тогда и делаю так, что цепляет! И публикация на обложке топового журнала, см. номер Salon за сентябрь 2017г с моим проектом на обложке и увидите разницу!
med_ural

7 л.

Все очень обычно и стандартно. Дорогие материалы, качественное выполнение работ, но не цепляет, нет души, изюминки!:))
Андрей, приточно-вытяжную вентиляцию делала компания, выбранная заказчиком, как мне сказали за 500 000 р.

Оставьте комментарий

Читать похожие статьи