logo

Houzz тур: Квартира с будуаром для деловой женщины

Интерьер без штампов, который, несмотря на четкость линий и строгость отделки, кажется игривым и женственным

Евгения Назарова
Евгения Назарова

10 мар. 2015

Обновлено 6 мая 2015

Постоянный автор Houzz, интерьерный журналист

Контраст лаконичной отделки и ярких аксессуаров, разделение на приватную и гостевую зону именно так, по мнению студии model_bananova, должна выглядеть квартира современной женщины, которой нужно и уединение после напряженного трудового дня, и удобное пространство для дружеских вечеринок.

Оформляя квартиру в монолитной многоэтажке, авторы проекта решительно отказались от типичных женских мотивов в интерьере здесь не встретишь ни бежевых обоев, ни драпировок с подхватами, ни принтов с бутонами. Зато дизайнеры доказали, что бетонные потолки, цементная плитка и строгая геометрия не конфликтуют с представлениями о женской квартире, где каждый сантиметр пространства дышит спокойствием.

О проекте
Место: Москва
Размер: 78,6 кв. м
Кто здесь живет: Деловая женщина, сотрудник крупной компании, театралка и любительница живописи
Дата реализации: 2014 год
Авторы: Евгения Щепенок и Александр Колганов, студия model_bananova
Фото: Елена Грусицкая

Houzz тур: Квартира с будуаром для деловой женщины
Монолитная многоэтажка, расположенная около станции метро «Октябрьское поле», на момент начала работ даже не была толком достроена. В распоряжении дизайнеров оказалась бетонная коробка с блочными стенами, которые в процессе работы над проектом снесли. Пилоны, расположенные близко друг к другу, заставили задуматься о визуальном расширении узких комнат.

Сама хозяйка мечтала об универсальном интерьере, который располагал бы и к отдыху, и к приему гостей. Кроме того, в гостях часто остается взрослый сын, поэтому гостиная должна была взять на себя еще и функции гостевой спальни.

Светильник: Centrsvet
Houzz тур: Квартира с будуаром для деловой женщины
Контраст плавных линий и острых углов, неожиданные отделочные материалы вроде бетонного потолка, актуальные фактуры и цвета стилевую принадлежность этой квартиры сложно уложить в рамки традиционной терминологии.

«Мы должны были сделать квартиру в современном стиле, но при этом не похожую на стерильный хай-тек, чтобы в ней было достаточно уютно, но без нагромождения вещей», объяснили свою концепцию дизайнеры. Доверительные отношения с хозяйкой помогли прийти к впечатляющему результату: владелицу не смутило даже то, что ремонт продлился на месяц дольше (из-за сложностей с элементами, которые выполняли на заказ).

Лампа на комоде: Toobe, Kartell; комоды: Woodi, потолочный светильник: Centrsvet
Houzz тур: Квартира с будуаром для деловой женщины
«Хозяйка квартиры полностью доверяла нам в выборе материалов, и наши взгляды тут, к счастью, совпадали. Так, вместе мы выбрали рисунок для цементной плитки в ванной, кухонный фартук и обои», рассказывают дизайнеры.

Светильник: Centrsvet; кухня: Кухонный Двор
Houzz тур: Квартира с будуаром для деловой женщины
Графичный принт на плитке в зоне кухни внес элемент разнообразия в светлую отделку в скандинавском духе. Чтобы усилить впечатление, интерьер дополнили ярко-оранжевым холодильником и медным светильником — так в декоре нашли отражение актуальные цветовые тенденции этого года.
Houzz тур: Квартира с будуаром для деловой женщины
Выбирая покрытие для пола, Евгения и Александр остановились на цементной плитке. Работа с этим материалом имеет свои особенности, но игра стоила свеч: во-первых, ее матовая поверхность выразительно смотрится именно в жилых помещениях, во-вторых, этот долговечный материал красиво стареет, а фактура плитки комфортна даже для тех, кто привык ходить по дому босиком. Чтобы перепады температуры за окном не доставляли хозяйке неудобств, под плиткой дополнительно проложили систему подогрева.

Стол: BoConcept; цементная плитка: Castelo, Carodeco, Mosaic Del Sur
Houzz тур: Квартира с будуаром для деловой женщины
Пространство квартиры поделили на две зоны: личную (спальня, ванная, веранда) и общую (прихожая, гостиная, кухня с гостевым санузлом). Общая часть оказалась более яркой и открытой, приватную же оформили в сдержанных тонах. Чтобы посетители по неосторожности не забрели туда, куда их не приглашали, между зонами «прочертили» заметную границу: перед входом в спальню появилась еще одна небольшая комната, оформленная в черных тонах, которую дизайнеры с заказчицей прозвали «будуаром». Минуя будуар, в спальню не попадешь, а он сразу дает понять, что общественное закончилось и начинается частное.

Чтобы днем освещать комнату естественным светом, в стене гостиной сделали большую
стеклянную фрамугу.
Houzz тур: Квартира с будуаром для деловой женщины
Во всех жилых комнатах и на утепленной веранде (на фото) положили дубовую паркетную доску, пропитанную маслом. «Мы выбирали доску темного цвета, она придает интерьеру более классический вид», объяснили свой выбор дизайнеры. Идеальный материал нашли у Coswick (коллекция «Кантри», цвет орех).

Столик: Woodi
Houzz тур: Квартира с будуаром для деловой женщины
Учитывая популярность стилистики лофтов, дизайнеры решили обратить бетонные плиты на потолке в достоинство интерьера, но в процессе работы столкнулись с проблемами. Изначально Евгения и Александр хотели лишь почистить их и пропитать лаком, но в уже готовом интерьере стали бросаться в глаза и диссонировать все неровности. В итоге бетон выравнивали с помощью строительных смесей.
Houzz тур: Квартира с будуаром для деловой женщины
Обратите внимание: в отделке всех комнат использованы обои с одинаковым рисунком, но разного цвета, из коллекции Indulgence от Harlequin. Этот прием не только стилистически увязал между собой помещения, разные по настроению и задачам, но и позволил зонировать квартиру.

Так, для отделки общественной зоны использовали оттенки белого, в будуаре насыщенный черный, а спальню хозяйки оклеили сине-зелеными обоями, напоминающими по цвету море. Не удивительно, ведь владелица квартиры часто путешествует и оказалась совсем не против такого «курортного» акцента в своей комнате.

Кровать: Estetica; комод и туалетный столик: Serenissima
Houzz тур: Квартира с будуаром для деловой женщины
Светлая отделкаидеальное поле для экспериментов с фактурной мебелью и ярким декором. Дизайнерские комоды с диагональным рисунком и яркие светильники добавили динамики спокойному интерьеру гостиной…

Комоды: Woodi
Houzz тур: Квартира с будуаром для деловой женщины
…а графичная плитка на одной из стен оживила общий спокойный фон в ванной комнате. Прямоугольная раковина с деревянной тумбой, дополнила строгий интерьер и внесла своего рода эко-акцент.

Раковина: Duravit
Houzz тур: Квартира с будуаром для деловой женщины
Не последнюю роль в создании характера интерьера сыграл декор. Стены украсили работы московской художницы Кати Заринской собственность хозяйки квартиры, которая очень любит живопись в духе импрессионизма и сама порой берется за кисть.
Чтобы живопись не терялась в лаконичном интерьере, для картин организовали специальную подсветку.

Диван: Estetica
Houzz тур: Квартира с будуаром для деловой женщины
В прихожей стены выкрасили краской Dulux цвета топленого молока, а нижнюю часть выложили плиткой схожего оттенка. Это лаконичное и неожиданное решение поддерживает общий нестандартный облик квартиры (и к тому же ухаживать за такими стенами ощутимо легче).
Houzz тур: Квартира с будуаром для деловой женщины
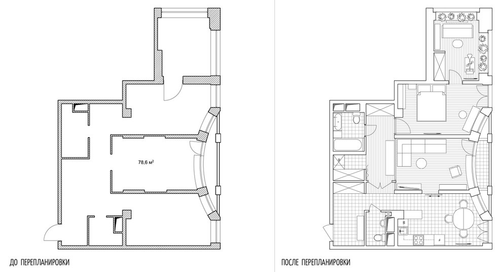
На плане квартиры видно, что почти все помещения имеют узкую форму, однако благодаря тщательно выбранной отделке и цветовой гамме в квартире не возникает ощущение тесноты.

ПРЕДЛОЖИТЕ СВОЙ ПРОЕКТ ДЛЯ ПУБЛИКАЦИИ
Загрузите фотосъемку в свой профиль на Houzz, отправьте ссылку и краткое описание проекта на editorial@flatica.ru
Мы обязательно свяжемся с вами, если примем решение о публикации.

Комментарии 2

жутко
vrotband

9 л.

Не на чем глазу зацепиться. Добросовестно искали "игривость".....увы - не нашли

Оставьте комментарий

Читать похожие статьи