logo

Houzz тур: Квартира с аквариумом и «спрятанной» кухней

Заказчики хотели сделать акцент на просторной гостиной, поэтому всю технику и рабочие поверхности замаскировали

Houzz Россия
Houzz Россия

21 апр. 2020

Обновлено 22 апр. 2020

Houzz тур: Квартира с аквариумом и «спрятанной» кухнейДарья Ельникова
Заказчики обратились к архитектору Дарье Ельниковой сразу после покупки квартиры. С функциональностью, стилем и палитрой определились на первой встрече, при заполнении технического задания.

«Вся семья увлекается большим теннисом, дочь и сын — на профессиональном уровне, — рассказывает Дарья. — Также заказчики много путешествуют, поэтому их пожелания к будущему интерьеру учитывали частые разъезды. Например, решение кухни-гостиной».
Houzz тур: Квартира с аквариумом и «спрятанной» кухнейДарья Ельникова
О проекте
Место: Москва, ЖК «Вавилова 4»
Размер: 147 кв.м
Кто здесь живет: семья из четырех человек
Архитектор проекта: Дарья Ельникова, Daria Elnikova Interiors
Фото: Антон Лихтарович

———————————————
В ВАШЕМ ГОРОДЕ…
Через Houzz можно нанять дизайнера или архитектора в любом городе и стране. Начать поиск специалиста
———————————————
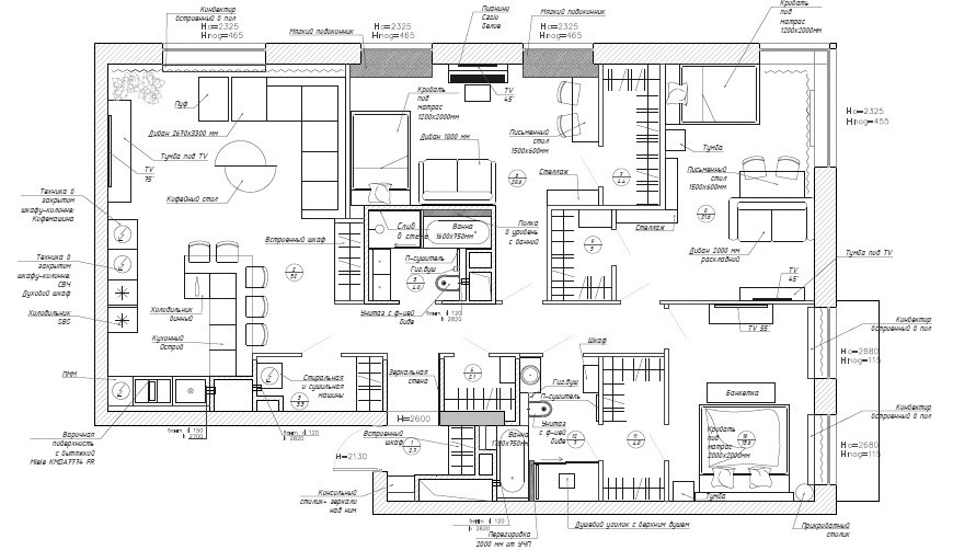
Планировка квартиры

Квартира от застройщика обладала хорошими характеристиками: достаточным количеством окон, тремя мокрыми точками, большой площадью. Под пожелания заказчика планировку изменили и адаптировали: выделили три комнаты с личными гардеробными, спроектировали большую кухню-гостиную, разместили два санузла и хозяйственную комнату.
Houzz тур: Квартира с аквариумом и «спрятанной» кухнейДарья Ельникова
КУХНЯ-ГОСТИНАЯ
Две зоны являются частью одного пространства, но по просьбе владельцев акцент сделали на гостиную с большим угловым диваном, телевизором и аквариумом. Кухню же требовалось замаскировать, поэтому всю бытовую технику, кроме варочной поверхности со встроенной в нее вытяжкой, скрыли за фасадами колонн, а остров с барной стойкой спроектировали так, что он больше напоминает обеденный стол.
Houzz тур: Квартира с аквариумом и «спрятанной» кухнейДарья Ельникова
Кухня и остров Leicht; столешница Lapitec; барные стулья Cattelan Italia; диван, пуф и кофейный столик Minotti; тумба под ТВ, шкафы в зоне аквариума, стеллажи и полки — выполнены на заказ в частной столярной мастерской; бра и светильник над островом Delta light

В гостиной установили большой аквариум, размер и наполнение которого соответствуют современной стилистике интерьера. Бра, смонтированные над диваном, образуют на стене интересный «арт-объект».
Houzz тур: Квартира с аквариумом и «спрятанной» кухнейДарья Ельникова
СПАЛЬНЯ
В комнате родителей есть выход на балкончик. К спальне примыкают проходная гардеробная и ванная.

Для отделки стен в комнате использовали декоративную штукатурку, мягкие панели и деревянную мозаику. «Красивую деревянную мозаику мы разместили на самом видном месте — за кроватью. А текстильные панели — на стене, смежной с комнатой сына. Они увеличивают звукоизоляцию, смягчают дизайн спальни и добавляют уюта», — говорит Дарья.
Houzz тур: Квартира с аквариумом и «спрятанной» кухнейДарья Ельникова
Кровать и банкетка Minotti; комод и прикроватный столик Cattelan Italia; матрас Treca; тумба MORRISON; декоративная панель из алькантары L’hanes; подвесы Handle studio

На чем сэкономили: при каждой спальне, включая детские, есть своя гардеробная комната. Чтобы оптимизировать бюджет, всю встроенную мебель для них заказали у отечественных производителей.
Houzz тур: Квартира с аквариумом и «спрятанной» кухнейДарья Ельникова
Тумба под раковину и распашной шкаф Stocco

ВАННАЯ КОМНАТА
В ванной владельцев уместились и ванна, и большая душевая. Душевой трап облицован плиткой, но в собранном подиуме скрыт люк для быстрого доступа к коммуникациям.
Houzz тур: Квартира с аквариумом и «спрятанной» кухнейДарья Ельникова
Заказчики могут попасть в ванную комнату не только через гардеробную, но и из коридора. Все двери в квартире — со скрытым коробом и покрыты краской или декоративной штукатуркой, как в санузлах. В родительской ванной это штукатурка под медь в тон стене.
Houzz тур: Квартира с аквариумом и «спрятанной» кухнейДарья Ельникова
КОМНАТА ДОЧЕРИ
Спальню для семилетней дочери постарались сделать не слишком детской и предусмотреть все, что нужно: кровать, диванчик, рабочее место и мягкий подоконник с хранением, где можно лежать с книжкой. Помимо тенниса, девочка занимается музыкой, и для занятий в комнате поставили белое пианино.
Houzz тур: Квартира с аквариумом и «спрятанной» кухнейДарья Ельникова
Диван Bo Concept; кровать под матрас L’hanes; стеновые панели и стеллаж выполнены в частной столярной мастерской; письменный стол CASE, фабрика The idea; кресла Husk; подвесы и бра Flos
Houzz тур: Квартира с аквариумом и «спрятанной» кухнейДарья Ельникова
Диван LENNOX, фабрика Ditre Italia; мебель для мультимедиа, письменный стол и стеллаж Bo Concept; кресло Husk; кровать L’hanes; тумба и подвес Bo Concept; угловой стеллаж изготовлен в частной столярной мастерской

КОМНАТА СЫНА
В комнате мальчика тоже сделали несколько зон для разных занятий: кровать для сна, диван для отдыха и рабочее место. Одну из стен украсила картина с любимым теннисистом хозяина комнаты, другую заняли стеллажи для хранения спортивных наград. Стены возле кровати оформлены деревянными панелями.
Houzz тур: Квартира с аквариумом и «спрятанной» кухнейДарья Ельникова
В потолок во всех помещениях встроена система канального кондиционирования и вентиляции — она незаметна в интерьере и обеспечивает комфортную температуру и свежий воздух.
Houzz тур: Квартира с аквариумом и «спрятанной» кухнейДарья Ельникова
ДЕТСКИЙ САНУЗЕЛ
Стилистику и цвет ванной комнаты для детей выдержали в общей концепции: стены оформили серой плиткой, разбив ее черными матовыми поверхностями и деревянными фрагментами.

Дверь оформили декоративной штукатуркой в тон основной серой плитке.
Houzz тур: Квартира с аквариумом и «спрятанной» кухнейДарья Ельникова
Тумба с двумя раковинами Stocco; освещение Delta light

Как и в главном санузле, в детском появились отдельная ванная и вместительная душевая.
__________________________

ОБ АВТОРЕ ПРОЕКТА…
Перейдите на страницу Дарьи Ельниковой, чтобы изучить другие работы из портфолио архитектора
У ВАС ЕСТЬ ДЛЯ НАС ПРОЕКТ…
Загрузите съемку в свой профиль на Houzz, отправьте ссылку с кратким описанием на editorial@flatica.ru

Для справки: Какие объекты мы публикуем

Комментарии 30

Alya

5 л.

Дизайн детских комнат и детскошо санузла носит воспитательный характер) В таких рационально-скупых, при этом суперкомфортных и явно дорого выполненных пространствах создаются 2 момента - 1.мотивация к успехам и личным достижениям, стремление к успеху для определенного качества жизни, 2) самодисциплина (при всем комфорте внешний вид комнат минималистичен, даже аскетичен в чем-то). Так что, концептуально.
Получилось Бомбически креативно. Цветовая гамма, подбранна продуманно. Только с размерами душевых кабин, высота великовата. (из за уклона конализ. трубы.)
Офис

Оставьте комментарий

Читать похожие статьи