logo

Houzz тур: Квартира по мотивам пятизвездных отелей

Район Патриарших — место, где много хороших ресторанов, поэтому на начальном этапе заказчик полностью отказался от кухни

Екатерина Перминова
Екатерина Перминова

20 февр. 2016

Обновлено 4 апр. 2016

Постоянный автор HouzzRu, журналист

Заказчик этого проекта попросил, чтобы квартира выглядела как хороший номер в дорогом отеле: с большой гостиной, удобной спальней и функциональным санузлом. Часто из поездок клиент присылал дизайнеру для вдохновения фотографии пятизвездных отелей разных стран Европы, Америки и Азии. Результатом многочисленных путешествий заказчика также стала большая коллекция современного искусства. «Приступая к проектированию, мы четко понимали, что ставим не перегородки, а фон для размещения художественных полотен, — рассказывает автор проекта Маргарита Кашина. — Идеальный цвет для экспонирования, конечно, черный, поэтому мы взяли темные насыщенные оттенки за основу, не забывая при этом, что работаем над жилым пространством».
Houzz тур: Квартира по мотивам пятизвездных отелейMargarita Kashina
О проекте . Место: Москва . Год: 2015 . Размер: 95 кв.м, высота потолков 2,9 м . Кто здесь живет: Молодая пара . Автор проекта: Маргарита Кашина, Marka Interior Factory . . Для коридора и санузлов клиент утвердил метлахскую плитку со сложным геометрическим орнаментом, тот же мотив перенесли на рисунок наборного паркета. Геометрия еще одна тема, которую Маргарита разрабатывала в процессе проектирования. «В зоне столовой мы в качестве фона выбрали два высоких комода фабрики Cattelan Italia, у них очень активный геометрический рисунок на фасаде, а темная цветовая гамма и габаритные размеры предметов идеально вписались в концепцию. Сложный орнамент очень похож на стилизованный орнаментальный мотив африканских племен, и мы решили привнести в интерьер этническую тему», — рассказывает Маргарита Кашина.
Houzz тур: Квартира по мотивам пятизвездных отелейMargarita Kashina
Помимо современного искусства, у заказчика собрана обширная коллекция антикварных предметов, привезенных из поездок по странам Африки и Азии. И перед Маргаритой стояла задача тонко привнести яркие этнические акценты в интерьер, чтобы все дизайнерские темы звучали в унисон. Так в проекте появилась люстра компании Delightfull, стилизованная под бамбуковые трубки. Под ней — стол с диким древесным слэбом (опять же этнический мотив) на жестком тяжелом геометричном основании от компании Bonaldo. Акцентами выступают темные предметы.
Houzz тур: Квартира по мотивам пятизвездных отелейMargarita Kashina
Кресла и диван на подиуме: Gamma; стулья: Cattelan Italia; люстра и весь свет в квартире: Delightfull, технический: Deltalight; столики металлические: Alivar; стол: Ronaldo; шкаф лаковый черный и шкаф с выкатными секциями: компания «Призма»

«По нашим чертежам был сделан черный лакированный стеллаж в гостиной. Жесткая ритмичная структура не утяжеляет и не загромождает пространство, а наоборот, смотрится легко за счет глянцевой отражающей поверхности. Мы намеренно отказались от ручек, подчеркнув четкий рисунок переплета», — поясняет автор проекта.

Важно было собрать современный интерьер, который отражал бы все увлечения и вкусы клиента, а также удовлетворял высоким технологическим требованиям.
Houzz тур: Квартира по мотивам пятизвездных отелейMargarita Kashina
В квартире смонтирована встроенная система кондиционирования и очистки воздуха — идеальный интерьер для заказчика начинается с идеально оснащенного пространства. По той же самой причине разработали многоуровневый сценарный свет. «На одну зону гостиной у нас предусмотрено пять разных световых сцен, управляемых с мобильного пульта», — говорит Маргарита.

Район Патриарших место, где много хороших ресторанов, поэтому заказчик полностью отказался от кухни на начальном этапе. Но со временем кухня все-таки появилась, правда, очень небольшая — она скрыта от глаз потайными дверями и включает только самое необходимое.
Houzz тур: Квартира по мотивам пятизвездных отелейMargarita Kashina
Дизайнер бережно отнеслась к истории дома, построенного в начале ХХ века: оригинальную чугунную решетку балкона отдали в реставрацию. Восстановили и старинную кирпичную кладку — в этом помогла московская компания «Мастерские братьев немцев», с которой Маргарита Кашина сотрудничает уже давно.
Houzz тур: Квартира по мотивам пятизвездных отелейMargarita Kashina
В спальне был смонтирован шкаф с выдвижными секциями глубиной 1,2 м. В закрытом положении он выглядит как декоративная стена с кожаными панелями. «Производство и монтаж этого изделия — самый сложный этап работы над проектом», — вспоминает дизайнер. — Но вместе с тем пройти все стадии от эскиза до монтажа — самая интересная часть профессии. Я рада,что мы доверились нашим российским производителям, хотя могли выбрать и немецкую компанию, и проверенную итальянскую».

Сложность была в том, что каждая подвесная (!) выезжающая секция весила больше 200 кг. Нужно было придумать конструкцию, которая мягко, бесшумно, без усилий выезжала бы в комнату почти на 1,5 метра и парила над землей. «В итоге нам это удалось. Выдвигая секцию, ты можешь подойти и справа, и слева, у тебя хороший обзор. Странно, что никто не додумался до этого раньше — это ведь так удобно. Надо будет запатентовать!», — смеется Маргарита Кашина.

Фасады шкафа снабжены металлическими черными вертикальными поручнями во всю высоту панелей. Темные вертикали создают в помещении интересный динамичный эффект.
Houzz тур: Квартира по мотивам пятизвездных отелейMargarita Kashina
Основная идея, которой придерживались при проектировании спальни — единый цвет исполнения всех комплектующих. Контрастируют между собой только материалы: бархат обивки кровати переходит в шелк коврового покрытия, выходит в матовом блеске метлахского гексагона, поднимается в текстуре кожаных панелей и становится бархатистой поверхностью стен. Акцентами выступают черные ставни и реечные экраны радиаторов.
Houzz тур: Квартира по мотивам пятизвездных отелейMargarita Kashina
От оконного текстиля решено было отказаться в самом начале проектирования. Район Патриарших прудов радует своей архитектурной цельностью, и в окна открывается замечательный вид. Темная цветовая гамма исполнения интерьера «смягчается» дневным светом, льющимся из «открытых» окон.

Также появилась возможность плотно закрыть ставни, которые образуют единые блоки с экранами радиаторов, и имитировать разное время суток, что для хозяина квартиры, много путешествующего и часто меняющего часовые пояса, оказалось очень кстати.
Houzz тур: Квартира по мотивам пятизвездных отелейMargarita Kashina
Цвет из спальни через гладко окрашеную дверь переходит в санузел. Во влажных зонах решили использовать классический белый «кабанчик». Сложная конструкция из матового стекла зонирует помещение.
Houzz тур: Квартира по мотивам пятизвездных отелейMargarita Kashina
«Прошло время, и интерьер наполняется новыми предметами искусства, новыми находками, привезенными из разных стран. Нам приятно осознавать, что эти предметы идеально, органично вписываются в созданное нами пространство, а интерьер живет своей жизнью. Это значит, что мы поняли нашего заказчика, задача выполнена», — подводит итог дизайнер.
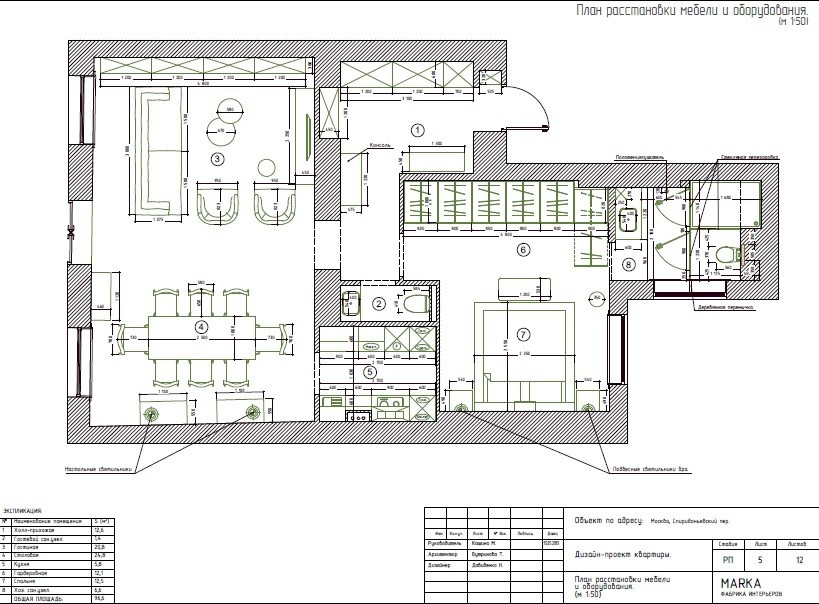
План квартиры

ПРЕДЛОЖИТЕ СВОЙ ПРОЕКТ ДЛЯ ПУБЛИКАЦИИ…
Загрузите фотосъемку в свой профиль на Houzz, отправьте ссылку и краткое описание проекта на editorial@flatica.ru. Мы обязательно свяжемся с вами, если примем решение о публикации.

Интерьерные съемки из спецпроекта «Houzz в гостях»

Комментарии 11

отлично , супер дизайн , отличное решение с функционалом , БРАВО !!!
Хороший стильный дизайн. . Кирпичи - ставни - свет. Спасибо за идею. . Ангел и фотография над ним напомнили Вильнюс. Приятно улыбнуло.
очень понравились окна и ставни! подскажите, где такие можно заказать?!!

Оставьте комментарий

Читать похожие статьи