logo

Houzz тур: Квартира, образованная из двух смежных

Здесь везде оттенки воздуха и воды, и только в детской — земли и пыли

Houzz Россия
Houzz Россия

7 дек. 2020

Обновлено 13 дек. 2020

Houzz тур: Квартира, образованная из двух смежныхЮлия Голавская
Заказчикам — много работающей и путешествующей паре — очень нравится их новая квартира. А взрослая дочь заказчиков, которая теперь уже живет отдельно своей семьей, даже пожалела, что не может здесь жить.

О проекте
Место: Москва, Октябрьское поле, новостройка бизнес класса
Год: 2019
Размер: 80 кв.м
Кто здесь живет: семейная пара с сыном подростком
Дизайнер проекта: Юлия Голавская
Фото: Сергей Ананьев
Houzz тур: Квартира, образованная из двух смежныхЮлия Голавская
На фото: прихожая, вид на душевую

«Здесь все такое уютное, мягкое, удобное, вальяжное. И одновременно — тонкое, линейчатое, где линии уходят вверх и вертикали делают все еще выше. Заказчикам все это очень подходит. А ведь самое главное, чтобы людям подходило, как я работаю», — описывает свой проект дизайнер Юлия Голавская.

—————————————
В ВАШЕМ ГОРОДЕ…
Через Houzz можно нанять дизайнера или архитектора в любом городе и стране. Начать поиск специалиста
—————————————
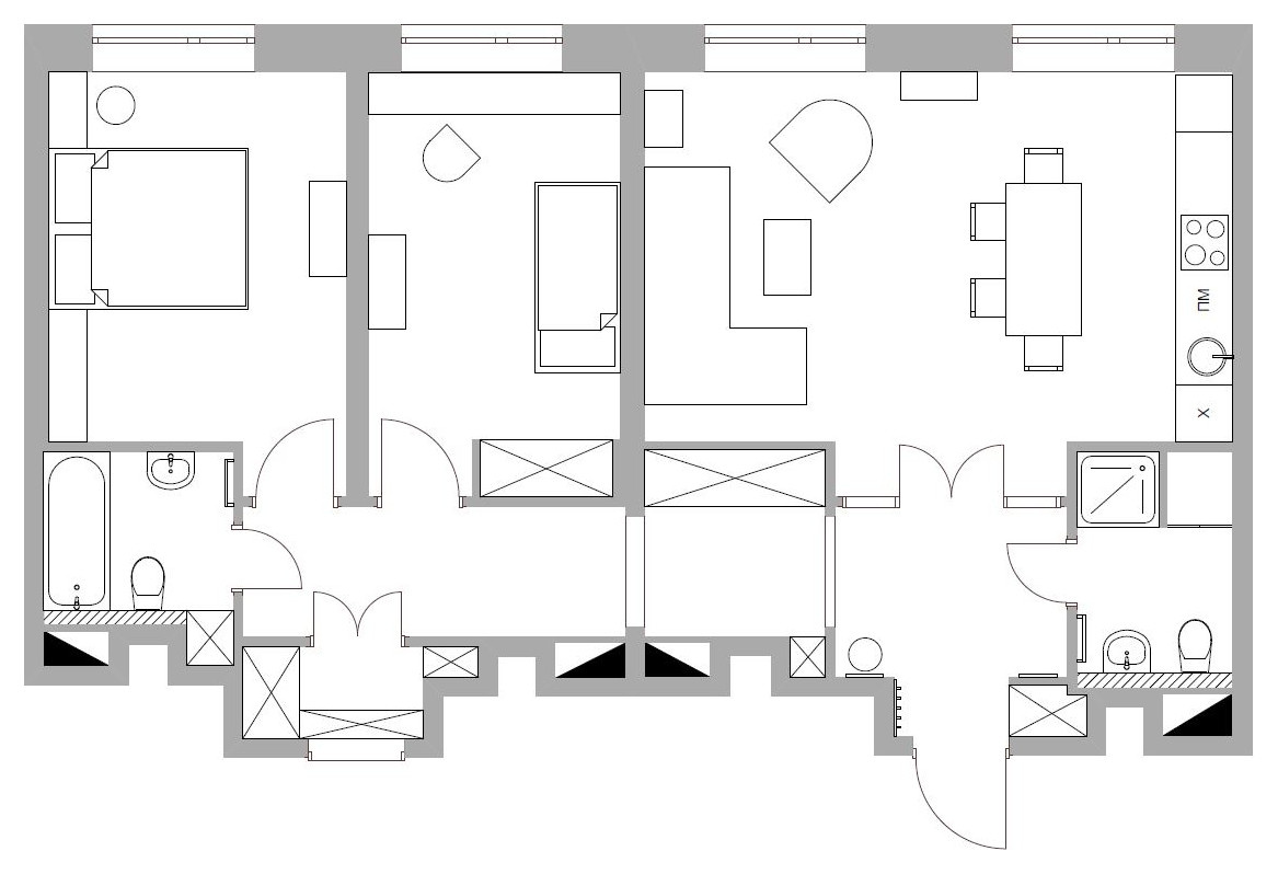
Houzz тур: Квартира, образованная из двух смежныхЮлия Голавская
План квартиры

Квартира образована из двух смежных квартир. Большой коридор связывает все помещения, начинаясь и заканчиваясь санузлами. В нем много систем хранения. Причем вещи хранятся не только в шкафах, но и гладильной комнате, которую сделали на месте прежней прихожей.
Houzz тур: Квартира, образованная из двух смежныхЮлия Голавская
Бра Aromas

ПРИХОЖАЯ И КОРИДОР
Всю столярку: двери, панели, шкафы, кухню, комплекс спальни и детской сделали по проекту дизайнера в столярной компании «Aвгуст».

По эскизам Юлии в этой же компании была изготовлена мебель для прихожей: банкетка, зеркало и вешалка для верхней одежды, представляющая собой крашеную в серый деревянную панель.
Houzz тур: Квартира, образованная из двух смежныхЮлия Голавская
Эскиз прихожей

При входе в квартиру взгляд падает на четырехстворчатые дубовые двери, ведущие в общее пространство кухни-гостиной. Эти двери задают настроение у входа, придавая входному пространству парадность.
Houzz тур: Квартира, образованная из двух смежныхЮлия Голавская
На фото: прихожая, впереди — дверь в душевую, справа — зеркало при входе в квартиру, слева — двери в кухню-гостиную, светильники винтаж, модульный паркет компания «Заря»

Две крайние створки дверей фиксированные, а две центральные открываются. За счёт полупрозрачного стекла дневной свет попадает из гостиной в прихожую, создавая ощущение более объемного, открытого и воздушного пространства.
Houzz тур: Квартира, образованная из двух смежныхЮлия Голавская
Паркет «Шереметьевская звезда»

Двери и проемы затонированы в оттенок темного меда. Во всей квартире на полу постелили паркет из толстых дубовых досок, тонированных под орех.

Двери в душевую и ванную, находящиеся в торцах длинного коридора, сделали скрытыми, чтобы не подчеркивать их небольшой размер. А чтобы уравновесить их с остальными дверями, вокруг полотен сделали асимметричную окантовку из дуба. Окантовки дверей в разных концах коридора симметричны друг другу то есть дверь смотрит в дверь.
Houzz тур: Квартира, образованная из двух смежныхЮлия Голавская
На фото: коридор, дверь в ванную в конце коридора

Для оформления стен дизайнер использовала оттенки воздуха и воды. Начинаясь в прихожей, серо-бирюзово-голубой, растворяясь, переходит в кухню-гостиную, где этот цвет присутствует уже в более светлом варианте. «У меня всегда есть собственные ассоциации, связанные с цветом. Я ощущаю цвет в этой квартире как свежую воздушную дымку», — объясняет Юлия.
Houzz тур: Квартира, образованная из двух смежныхЮлия Голавская
ГОСТИНАЯ
Напротив дверей в кухню-гостиную стоит витрина со стеклянными дверцами и зеркальной задней стенкой. Витрину спроектировала Юлия, а сделали ее в мастерской Doorspro, с которой дизайнер постоянно работает.
Houzz тур: Квартира, образованная из двух смежныхЮлия Голавская
Диван ARTСoncept, люстра Arketipo

Заказчик очень хотел в гостиной стены с деревянными панелями в стиле американской неоклассики. Но Юлии не хотелось делать подобные панели в этом доме, она предложила более строгий вариант, который заказчики с удовольствием приняли: не классику, а изящную прорисовку. Используя оттенки из одного листа колерной карты, низ панелей сделали потемнее, а верх посветлее — здесь все мягко переходит друг в друга.

У зеленого дивана низ выполнен из твида, а верх из бархата. Диван раздвигается, у него ортопедическое основание, поэтому на нем можно спать. Пальма переехала в новое жилье из прежней квартиры, где жила у заказчиков много лет.
Houzz тур: Квартира, образованная из двух смежныхЮлия Голавская
Ярко-голубая люстра всем сразу понравилась. Этот веселый и радостный акцент оказался очень кстати в спокойном по колориту пространстве.

Литографии на стене — грузинские пейзажи из старинной папки, которая хранилась в семье заказчика. Их купили родители владельца во время свадебного путешествия по Грузии. «Я их повесила с огромным удовольствием. Они вписались сюда по настроению и колористичечски и всех радуют», — отмечает дизайнер.
Houzz тур: Квартира, образованная из двух смежныхЮлия Голавская
Кресло TWILS обито тканью Romo; ковер Dovlet House; торшер Aromas; легкий столик со стеклянной столешницей сделал по рисунку дизайнера Денис Милованов в мастерской SOHA Concept; живопись Анатолий Пурлик

Ковер выбирали в финале работы над проектом: «Мне очень хотелось попробовать ковры с традиционным туркменским узором. Но когда постелили туркменские ковры, они состарили этот легкий интерьер. В итоге выбрали нейтральный безворсовый ковер, который лег как родной. Получилась нейтральная оболочка, которая не подавляет интерьер и не “кричит"», — вспоминает Юлия.
Houzz тур: Квартира, образованная из двух смежныхЮлия Голавская
Кухня по проекту дизайнера компания Aвгуст; светильники Сangini & Tucci; барные стулья Torre; круглые стеклянные панно на стене — витражи Константина Евменева

КУХНЯ
Вертикальная прорисовка покрытых шпоном фасадов кухни повторяют вертикальную раскладку деревянных панелей гостиной.

Кухню сделали максимально закрытой — учитывая, что она совмещена с гостиной, и вывели под потолок, чтобы больше всего уместилось. Кроме того, в острове со стороны кухни разместили множество ящиков для кухонных мелочей. А со стороны гостиной остров украшает ниша из мрамора.
Houzz тур: Квартира, образованная из двух смежныхЮлия Голавская
Парадный вид кухне придает фартук из зеленого мрамора и столешница из серого. Для острова использовали тот же мрамор, только вертикали и горизонтали поменяли местами, создавая таким образом игру плоскостей: столешница острова выполнена из зеленого, а ниша из серого мрамора. На подоконниках лежит камень этого же сорта, только более светлый.
Houzz тур: Квартира, образованная из двух смежныхЮлия Голавская
СПАЛЬНЯ
Для ощущения водно-воздушной дымки в спальне, Юлия использовала игру оттенков от бледно-голубого до синего. Одно из первых приобретений для этого проекта, определившее колористику всей квартиры, — панно над кроватью из полосы обоев Zoffany с цветовыми переходами от синего к бледно-голубому, которое ассоциирется с горными вершинами или морскими волнами. Стены спальни покрасили в прохладный голубой цвет, шкафы сделали чуть темнее стен, а потолочный плинтус покрасили в цвет шкафов.
Houzz тур: Квартира, образованная из двух смежныхЮлия Голавская
Юлия считает, что введение дополнительных цветов приглушило бы прозрачность и воздушность. Кроме того, потерялась бы вся графичность: «Посмотрите, сколько всего линейного, сколько графики в спальне: горизонтальные линии на римских шторах и покрывале, волнистые линии на панно, вертикали панелей шкафов. Именно эта графика и нейтральный однородный цвет создают образ интерьера. Мне хотелось, чтобы была графика на голубом», — объясняет дизайнер.
Houzz тур: Квартира, образованная из двух смежныхЮлия Голавская
Весь комплекс спальни: кровать и шкафы вокруг неё, выполнены по проекту дизайнера и сделаны в компании «Aвгуст».

Чтобы выжать максимум места для хранения, кровать вставили в нишу между шкафами. Полочка над изголовьем и откидной столик-секретер с зеркальной задней стенкой решили проблему прикроватных тумбочек. На откидном столике стоит винтажная лампа — один из первых предметов, приобретенных для этого проекта.
Houzz тур: Квартира, образованная из двух смежныхЮлия Голавская
Изголовье кровати и валик: Mark Alexander; покрывало и шторы: Villa Nova; постельное белье Zara Home; бра Aromas

В спальне, как и во всей квартире, использовали качественные натуральные ткани: хлопковый бархат, лен, шерсть. Изголовье обтянуто бархатом чернильного цвета с пушистым ворсом. Легкая римская штора поддерживают образ воздушной дымки. Шторы из ткани блэкаут защищают от света.
Houzz тур: Квартира, образованная из двух смежныхЮлия Голавская
«Все, что я предложила заказчикам, когда делала презентацию проекта, им понравилось: и зеленый мрамор, и бархат для дивана, и панели, и как отрисована кухня. Даже когда испортили обои, мы купили и доклеили точно такие же. Единственное, что не было принято, это бархат на изголовье. Я предложила бархат ржавого цвета, а заказчица попросила его поменять, что мы и сделали», — вспоминает дизайнер.
Houzz тур: Квартира, образованная из двух смежныхЮлия Голавская
Панно на стене Nobilis, потолочные светильники Cangini & Tucci, торшер Aromas, ковер Dovlet House, кресло Torre, стол и этажерка по рисункам дизайнера компания «Aвгуст»


ДЕТСКАЯ
В детской прохладные краски воды и воздуха сменяются оттенками земли и пыли. Здесь живет подросток 14-ти лет, серьезно занимающийся спортом и много путешествующий. Здесь есть всё для комфортной жизни: удобный диван и длинный во всю стену стол.

А некоторые предметы не дают комнате мальчика выглядеть скучно. Именно поэтому по соседству с маленькой настольной лампой появился сильный акцент в виде огромного торшера — пример того, как можно поиграть масштабами.
Houzz тур: Квартира, образованная из двух смежныхЮлия Голавская
Панно на стене в белую, желтую, светло-серую и графитовую полоску продолжает тему вертикалей в квартире и создает образ города с тянущимися вверх небоскребами. Этажерка выкрашена в теплый темно-серый цвет. Набалдашники на этажерке придумка Юлии. Они, как и необычная керамика с вазой на трех ногах, небольшие детали, помогающие комнате подростка быть нескучной. Забавную вазу дизайнер принесла на съемку, и она так всем понравилась, что еёоставили.

Над этажеркой висит офорт Александра Бродского-мл. и американские открытки с видами Чикаго, которые мальчик привез из поездки в США из спортивного лагеря.
Houzz тур: Квартира, образованная из двух смежныхЮлия Голавская
Мраморная мозаика и мрамор на полу «Дом камня», раковина и унитаз Cielo, тумба по эскизу дизайнера компания «Август», бра Aromas, линогравюра 1978 года с видом Красноярска

ДУШЕВАЯ ПРИ ВХОДЕ
Стены душевой выкрашены в теплый терракотовый цвет и выложены мраморной мозаикой из серых и белых элементов с разводами. На пол положили большие куски серого мрамора с цветными прожилками. Терракота стен повторяется в мраморе на полу и на винтажной открытке. Тумбу под раковину Юлия спроектировала круглую.
Houzz тур: Квартира, образованная из двух смежныхЮлия Голавская
Поскольку сушильная и стиральная машина выглядят довольно лаконично, их решили не закрывать.
Раковина Cielo; тумба по проекту дизайнера на заказ в компании «Aвгуст»; постер привели из Тулузы

ВАННАЯ КОМНАТА ВОЗЛЕ СПАЛЬНИ
На стене ванной — серая матовая мозаика. На полу — мрамор. Столешница сделана из желтого мрамора. Отделка мозаикой и мрамором, округлая форма раковины делают ванную близкой по дизайну душевой: нужно было показать, что санузлы разные, но в то же время родственные по отделке.

_______________________________

ОБ АВТОРЕ ПРОЕКТА…
Перейдите на страницу Юлии Голавской, чтобы изучить другие работы из портфолио дизайнера.

У ВАС ЕСТЬ ДЛЯ НАС ПРОЕКТ…
Загрузите съёмку в свой профиль на Houzz, отправьте ссылку с кратким описанием на editorial@flatica.ru

Для справки: Какие объекты мы публикуем

Комментарии 19

Alya

5 л.

жаль, что не послушали дизайнера, ржавчина отлично идет с такими холодными цветами. квартира смотрится легко и изящно, несмотря на обилие систем хранения. Только санузлы не впечатлили.
Понравилось. Спальня слишком "текучая". Ржавчина там была бы хороша. Колонки с откидной полкой у кровати, круглая тумба под раковиной — неудобно. Miele браво за дизайн. Остров отличный.
А мне нравится кровать в обрамлении шкафов - как в нише...Тона всего интерьера прекрасны, да.

Оставьте комментарий

Читать похожие статьи