logo

Houzz тур: Квартира на Плющихе с видом на парк

Большую комнату с панорамным окном от стены до стены разделили на две. Как?

Екатерина Перминова
Екатерина Перминова

28 авг. 2019

Обновлено 21 окт. 2019

Постоянный автор HouzzRu, журналист

Houzz тур: Квартира на Плющихе с видом на паркAriana Ahmad
О проекте
Место: Москва, ЖК «Дом на Плющихе»
Год: 2018
Размер: 150 кв.м
Кто здесь живет: семья с двумя детьми
Дизайнеры проекта: Ариана Ахмад, Татьяна Карякина
Стилист: Наталья Онуфрейчук
Фото: Сергей Ананьев

Семья купила квартиру, из окон которой открывается панорама парка. Когда смотришь в окно, урбанистический пейзаж уходит на второй план, а на первый выходит ощущение загородной жизни. Во время обсуждений проекта выяснилось, что заказчиков вдохновляют интерьеры американских домов. Этот интерес повлиял и на выбор мебели.
Houzz тур: Квартира на Плющихе с видом на паркAriana Ahmad
«Заказчики — семья с двумя детьми. Им хотелось использовать приемы классического стиля, но одновременно сделать интерьер легким и современным, — рассказывает Ариана Ахмад. — Были довольно четкие пожелания по фактурам и оттенкам: свежий зеленый, теплый медовый, дерево, мрамор. Другая важная задача — закончить ремонт к сентябрю, когда дети пойдут в школу рядом с домом».
Houzz тур: Квартира на Плющихе с видом на паркЕлена Игумнова
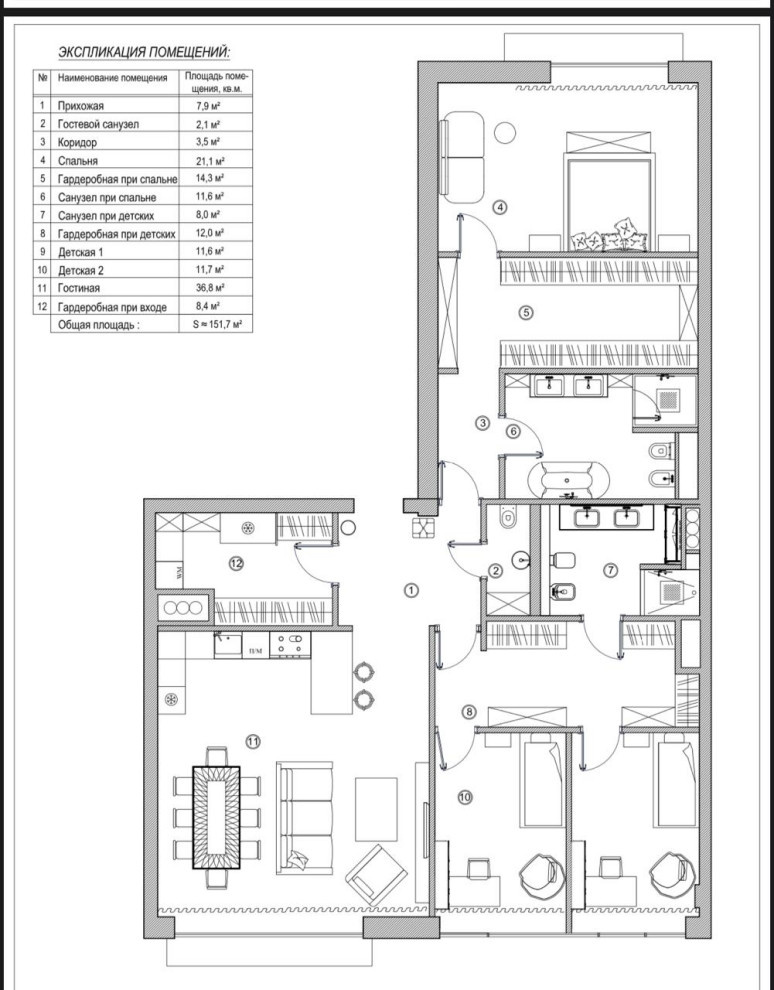
Планировка квартиры

Исходные данные: площадь квартиры — 150 квадратных метров, панорамные окна в пол и отсутствие несущих стен. Требовалось объединить кухню с гостиной и столовой, изолировать спальню с собственной гардеробной, обустроить две детские, три санузла и гардеробную при входе, совмещенную с зоной для стирки.

____________________________

В ВАШЕМ ГОРОДЕ…
Через Houzz можно нанять дизайнера или архитектора в любом городе и стране. Начать поиск специалиста
Houzz тур: Квартира на Плющихе с видом на паркAriana Ahmad
ГОСТИНАЯ-СТОЛОВАЯ
Точкой притяжения в гостиной стало панорамное окно. Здесь много света, и отсюда раскрывается вид на зеленый парк. Рядом с окном поставили мягкий диван, сразу за ним — большой обеденный стол. Именно здесь обычно собираются семья и друзья.

По просьбе заказчицы в декоре использовали много деталей из мрамора. Так, рисунок столешницы собран из нескольких его видов. Частично материал дополнительно обработали, чтобы добиться оттенков, объединяющих гостевую зону и прихожую.
Houzz тур: Квартира на Плющихе с видом на паркAriana Ahmad
Картина Георгия Тотибадзе; стулья Baker; стол со столешницей изготовлен на заказ; люстра Visual Comfort; обои Vescom; диван, кресло и столик-пуф в гостиной Ralph Lauren Home

Заказчики хотели видеть на стенах дубовые панели теплого оттенка, и на поиск именно такого варианта ушло немало времени. Дизайнеры ездили по складам, вручную отбирая сорта камня и дерева.
Houzz тур: Квартира на Плющихе с видом на паркAriana Ahmad
КУХНЯ
Кухня, стол и мебель для гардеробных изготовлены под заказ. При ограниченных сроках это большой риск, если среди подрядчиков нет проверенной мастерской. Ариана Ахмад уже много лет работает с одним исполнителем.
Houzz тур: Квартира на Плющихе с видом на паркAriana Ahmad
«Я всегда заранее планирую все проплаты и старты работ, чтобы выполнить условия соблюдения сроков перед заказчиком. Нюансы в работе со столярщиками всегда есть, нужно просто их учесть», — поясняет Ариана.
Houzz тур: Квартира на Плющихе с видом на паркAriana Ahmad
ПРИХОЖАЯ
Кроме гостевого санузла, в прихожей организованы гардеробная и зона постирочной.
Houzz тур: Квартира на Плющихе с видом на паркAriana Ahmad
Кровать Tréca Interiors Paris; изголовье сделано на заказ; лампы Ralph Lauren Home; шелковые обои Vescom; люстра Visual Comfort

СПАЛЬНЯ
В спальне интерес к американскому дизайну проявился сильнее всего. Многие предметы выбрали из наличия в Москве, но часть заказали в Америке — у Ralph Lauren Home и Baker.

Кроме кровати с высоким мягким изголовьем, в комнате установили рекамье для чтения (кушетка с характерной спинкой)
Houzz тур: Квартира на Плющихе с видом на паркAriana Ahmad
ДЕТСКИЕ
Детские спальни одинаковы по функционалу и планировке, отличаются лишь цветом: желтая для дочери и синяя для сына. Дети близки по возрасту, и таким решением хотелось исключить их споры на тему «чья комната лучше».
Houzz тур: Квартира на Плющихе с видом на паркAriana Ahmad
Кресло с банкеткой Vitra; диван: Bonaldo; стол изготовлен на заказ; обои Pierre Frey

Проблема и решение: спальни построили на площади одной просторной комнаты. Решение логичное, но проблема заключалась в панорамном остеклении единственного окна. Дизайнеры и строители потратили много времени, чтобы придумать, как сделать узлы примыкания стены к оконным проемам при разделении комнаты. В итоге строители выполнили специальное, не менее надежное примыкание новой стены к окну.
Houzz тур: Квартира на Плющихе с видом на паркAriana Ahmad
Раковины Cielo; смесители Nobili; тумба на заказ

ХОЗЯЙСКАЯ ВАННАЯ
Для облицовки главной ванной заказчица предложила использовать только оникс. Но на большой площади оникса получалось слишком много. Тогда дизайнеры решили добавила зеркала. Это увеличило объем воздуха и сделало просторный санузел зрительно еще больше.
Раковины Catalano, смесители Nobili

ДЕТСКИЙ САНУЗЕЛ
Здесь установили две раковины, опять же, во избежание детских ссор. Для облицовки стен выбрали любимый владельцами мрамор.
___________________________

ОБ АВТОРЕ ПРОЕКТА…
Перейдите на страницу Арианы Ахмад, чтобы изучить другие работы из портфолио архитектора или заказать собственный проект
________________________

У ВАС ЕСТЬ ДЛЯ НАС ПРОЕКТ…
Загрузите съёмку в свой профиль на Houzz, отправьте ссылку с кратким описанием на editorial@flatica.ru

Для справки: Какие объекты мы публикуем

Комментарии 24

очень понравился смеситель на кухне, кто выпускает?
Планировка ужасная. Детские комнаты меньше, чем туалеты. Ни поиграть, ни друзей привести. Главные жители квартиры - унитазы и одежда, им выделили места больше, чем людям. Санузлы роскошные, а детские - просто нищенские. Такая вот жизненная философия.
Планировка понравилась. Часто виду проекты с большим метражом при этом делают огромную кухню гостиную и небольшую общую спальню для детеи. Здесь же у каждого ребенка своя спальня. Гардеробные шикарные.

Оставьте комментарий

Читать похожие статьи