logo

Houzz тур: Квартира на берегу Балтики для семейного отдыха

Дизайнер Марина Кутузова сделала все, чтобы близость к природе и побережью чувствовались в интерьере квартиры

Houzz Россия
Houzz Россия

4 нояб. 2016

Обновлено 17 янв. 2017

Только увидев этот дом на чертежах застройщика, супруги поняли, что хотели бы создать здесь квартиру для семейных выходных или летнего отпуска. Решающее значение имело расположение — многоквартирный дом должен был появиться всего в нескольких метрах от берега Балтийского моря. Единственное, что не совсем устраивало семью метраж. Но в этом случае застройщик пошел навстречу покупателям и в процессе строительства объединил два соседних помещения, создав квартиру площадью 125 кв.м.
Houzz тур: Квартира на берегу Балтики для семейного отдыхаМарина Кутузова
О проекте
Место: Светлогорск, Калининградская область
Год: 2015
Размер: 125 кв.м
Кто здесь живет: Семья из трех человек
Автор проекта: Марина Кутузова, студия «Детали»
Неожиданные факты: В этой квартире на берегу Балтийского моря супруги намерены проводить только выходные и отдыхать в летнее время
История: По просьбе покупателя застройщик объединил две соседние квартиры
Фото: Сергей Ананьев

Заказчикам хотелось получить интерьер, где можно расслабиться после рабочей недели. В то же время квартира должна была легко трансформироваться из отпускной в основную, если возникнет такая необходимость. Решить эту непростую задачу пригласили дизайнера Марину Кутузову.
Houzz тур: Квартира на берегу Балтики для семейного отдыхаМарина Кутузова
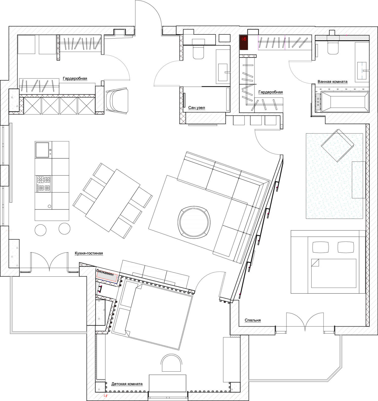
Планировка квартиры

«Заказчики хотели, чтобы отпуск здесь был максимально комфортным, не отличаясь от жизни в “большом городе”», рассказывает Марина. Поэтому в квартире расположились просторная кухня-гостиная, спальня с прекрасным видом и детская. Также автор спланировала две вместительные гардеробные.
Houzz тур: Квартира на берегу Балтики для семейного отдыхаМарина Кутузова
Впрочем, не обошлось без сложностей. Монолитные элементы каркаса дома, которые невозможно было перенести, внесли коррективы в расположение комнат. «Наиболее удобным решением считается распределение пространства на аккуратные комнаты с соотношением сторон, близким к квадрату. Но в данном случае только использование нестандартной и сложной формы позволило решить все поставленные задачи», поясняет автор проекта.
Houzz тур: Квартира на берегу Балтики для семейного отдыхаМарина Кутузова
Диагонали, заданные планировкой, выделили и предметами обстановки. Контрастные траншеи для светильников на потолке акцентируют внимание на конфигурации пространства. Ножки стола Big Table от Bonaldo и очертания светильников Delightfull COLTRANE также подчеркнули общую тему.
Houzz тур: Квартира на берегу Балтики для семейного отдыхаМарина Кутузова
Интерьер квартиры стал своего рода продолжением вида на Балтику. Марина нашла вдохновение в окружающей природе и морском побережье, которое находится в нескольких метрах от дома.

Она выстроила интерьер на натуральных оттенках и полутонах, свойственных прибалтийской природе. «Мы выбирали экологически чистые материалы и старались избежать явных проявлений стилистики “эко”, — рассказывает автор. — Хотелось, чтобы в интерьере природа ощущалась, но не кричала. В результате прохладная гамма и сочетание песочных и серых оттенков являются прямым продолжением вида из окна, впуская окружающую природу в квартиру».
Houzz тур: Квартира на берегу Балтики для семейного отдыхаМарина Кутузова
Стены: рельефные планки из массива дерева

Особое внимание Марина обращает на зону прихожей. «Входная дверь не отделена от гостиной. При этом здесь нет дополнительных элементов хранения и других атрибутов прихожей все скрыто в примыкающей гардеробной. Единственный оставшийся на виду предмет полка-ключница от Ligne Roset. Таким образом, заходя в квартиру, вы сразу попадаете в объемное эффектное пространство».
Houzz тур: Квартира на берегу Балтики для семейного отдыхаМарина Кутузова
Дизайнеру удалось составить обстановку из корпусной мебели стандартных размеров. На заказ делали разве что элементы отделки стен.

Получился микс из предметов различных фабрик, который благодаря разнообразию отделок удалось объединить общей концепцией. Нейтральную в общем гамму разбавили декоративными аксессуарами, например, яркими подушками дизайна Марселя Вандерса, а также картинами.
Houzz тур: Квартира на берегу Балтики для семейного отдыхаМарина Кутузова
В дальнем конце квартиры расположилась комната дочери заказчиков. Девочка еще учится в школе, поэтому Марина обустроила рабочее место возле окна.
Houzz тур: Квартира на берегу Балтики для семейного отдыхаМарина Кутузова
Для детской дизайнер выбрала более яркие и насыщенные краски. Тем не менее комната не выбивается из общей концепции. В частности, связующим звеном стала рельефная отделка стен. Это тот же прием, что автор использовала в зоне прихожей. Единственное, здесь ритм задает не массив дерева, а конструкция из гипсокартона.
Houzz тур: Квартира на берегу Балтики для семейного отдыхаМарина Кутузова
«При замене некоторых декоративных элементов комната со временем легко “вырастет” вместе с ее хозяйкой», уверена Марина.
Houzz тур: Квартира на берегу Балтики для семейного отдыхаМарина Кутузова
Планировка квартиры позволила четко разделить личные пространства и зоны для гостей. Так, спальня супругов вместе с гардеробной и ванной комнатой расположилась в импровизированном «крыле» с правой стороны.
Houzz тур: Квартира на берегу Балтики для семейного отдыхаМарина Кутузова
Краска: Little Greene

Здесь, как и в остальных помещениях, Марина покрасила стены краской с матовой поверхностью. Впрочем, в спальне основной эффект достигается за счет медных панелей. Они отражают солнечный свет и наполняют помещение теплом.
Houzz тур: Квартира на берегу Балтики для семейного отдыхаМарина Кутузова
«Задачи увеличить пространство не стояло. Мы стремились, скорее, к камерности и четкому разделению на зоны. Поэтому в отделке стен не побоялись использовать темные тона. В результате цвет не уменьшил пространство, а придал ему дополнительную глубину», считает Марина.
ПРЕДЛОЖИТЕ СВОЙ ПРОЕКТ ДЛЯ ПУБЛИКАЦИИ…
Загрузите фотосъемку в свой профиль на Houzz, отправьте ссылку и краткое описание проекта на editorial@flatica.ru. Мы обязательно свяжемся с вами, если примем решение о публикации.

Комментарии 24

Как в душевой делают слив в один уровень с полом во всем санузле, если там по нормам должен быть перепад в 3-5 см для естественного слива воды самотеком?
Да, неплохо. Даже при том, что темновато. Но оттенки интересные. По поводу использования экологически чистых материалов... - вряд ли гипсокартон можно назвать экологически чистым - возможное содержание фенольных соединений уже отменено? )
как-то для отдыха не очень

Оставьте комментарий

Читать похожие статьи