
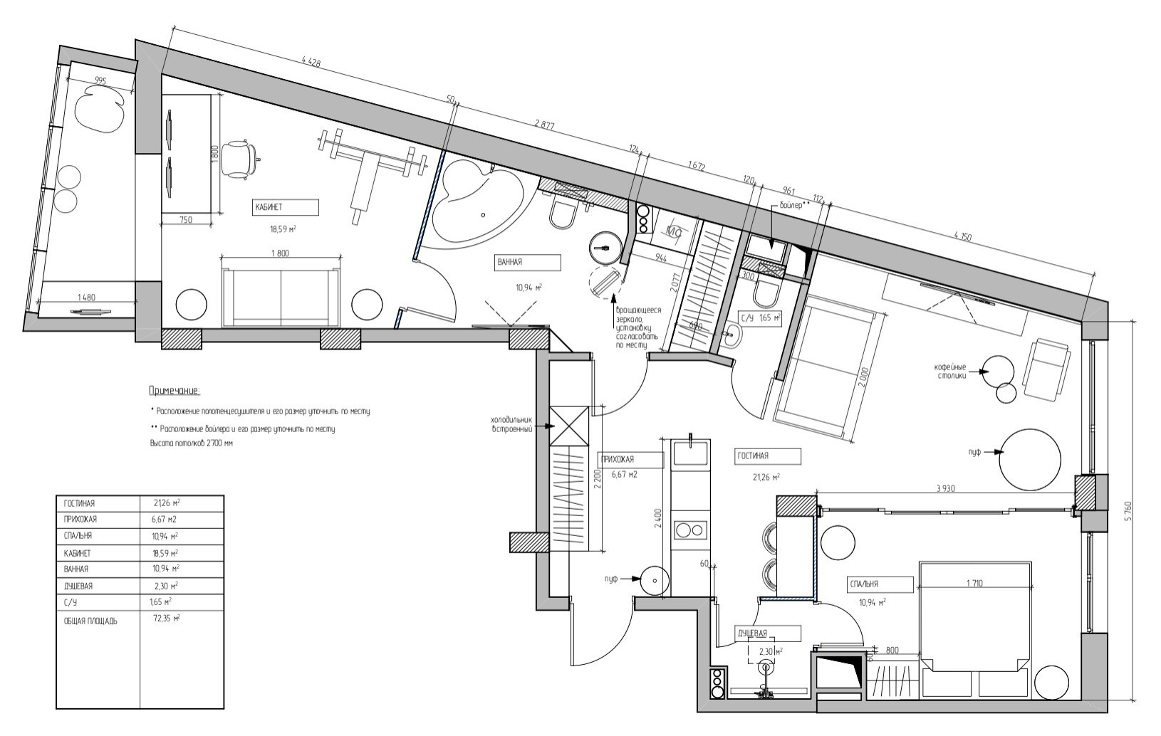
Houzz тур: Минимализм в центре Санкт-Петербурга
Houzz Россия
29
27 апр. 2020
Обновлено 3 авг. 2020
Постоянный автор Houzz, интерьерный журналист
5 л.
5 л.

Houzz тур: Минимализм в центре Санкт-Петербурга
Houzz Россия
29

Houzz тур: Квартира, где много света и деталей искусства
Houzz Россия
18

Houzz тур: Квартира с зеркальным холлом
Евгения Назарова
12

Houzz тур: Квартира с витражами в виде чешуи
Houzz Россия
14

Houzz тур: Современная классика в оттенках синего
Houzz Россия
27

Houzz тур: Мужской интерьер на 28-м этаже
Анна Бандальер
88

Houzz тур: Квартира с жирафом в Орле
Евгения Назарова
34

Houzz тур: Квартира на Тверской с видом на Пушкинскую площадь
Houzz Россия
34

Houzz тур: Квартира с цветными шкафами для коллекции фарфора
Houzz Россия
20

Houzz тур: Американская классика в Хамовниках
Евгения Назарова
23

Houzz тур: «Классика с историей» в высотке-новостройке
Евгения Назарова
43

Houzz тур: Квартира для родителей с двумя спальнями и сауной
Евгения Назарова
28

Houzz тур: Квартира в центре Москвы в духе Джона Саладино
Houzz Россия
18

Houzz тур: Современная классика с зеркалами и открытым балконом
Евгения Назарова
18

Houzz тур: Квартира, раскрашенная неоном
Анна Бандальер
18

Houzz тур: Скандинавская квартира с тремя детскими комнатами
Евгения Назарова
17

Houzz тур: Квартира на Соколе с коллекцией живописи
Евгения Назарова
16

Houzz тур: Вдохновение Манхеттена в московской квартире на 29 этаже
Houzz Россия
18
Andrey Gorodetskiy
5 л.