logo

Houzz тур: Квартира для архитектора в советской стилистике

Павел Железнов решил добавить своей квартире на Арбате исторических реалий, которых раньше здесь не было

Екатерина Перминова
Екатерина Перминова

19 мар. 2016

Обновлено 27 мая 2016

Постоянный автор HouzzRu, журналист

Архитектор Павел Железнов хотел жить в квартире только на улице Арбат. Ему хотелось поселиться рядом с домом родителей, но сама архитектура, место, вид из окна — все имело значение. В итоге он остановился на Доме работников Большого театра. Дом спроектировал Михаил Посохин, создавший Кремлевский дворец съездов и высотку на площади Восстания. Дом строился в разное время, поэтому внешне обе половины совершенно одинаковые, но отделка квартир и подъездов отличается. В одних есть колонны и лепнина, а другая половина, где Павел купил квартиру, всего этого лишена.
Houzz тур: Квартира для архитектора в советской стилистикеПавел Железнов
О проекте
Место:
Москва
Год: 2014
Размер: 62 кв.м, высота потолков — 3 м
Кто здесь живет: Архитектор создавал квартиру для себя
Автор проекта: Павел Железнов
Фото: Сергей Ананьев

«Состояние квартиры было ужасным, а исторически ценной отделки в моей половине дома не было, поэтому и сохранять что-либо не имело смысла, — говорит Павел. — Наоборот, я создал в своей квартире подходящий к архитектуре интерьер, которого раньше здесь не было. Здание советское, 1950-х годов, поэтому я выбирал ту мебель и отделку, которую теоретически могли оставить здесь прежние жильцы. Все детали из разных времен, но они могли появиться в одной квартире».
Houzz тур: Квартира для архитектора в советской стилистикеПавел Железнов
Например, диван с цветочной обивкой и восточным орнаментом в гостиной — во время войны многие были эвакуированы в страны Средней Азии, а после ее окончания вернулись оттуда с аутентичными предметами быта и декора. Или французский буфет, отреставрированный в Петербурге. К нему подобрали обеденный стол.

«Стол заказывали из Америки, — рассказывает Павел. — Оба изделия сделаны из натурального светлого дуба, но отделку буфета мы самостоятельно доводили до того же оттенка, что и столешница, а затем покрывали лаком».
Houzz тур: Квартира для архитектора в советской стилистикеПавел Железнов
Цвета в интерьере использовали легкие, натуральные. Сыграли на контрасте: темный пол, светлые стены, теплого оттенка мебель. Стены покрыты краской Teknos Biora Balance, а пол выбрали дубовый. Двери, наличники на окна и плинтусы сделаны из массива дуба по эскизам автора.
Houzz тур: Квартира для архитектора в советской стилистикеПавел Железнов
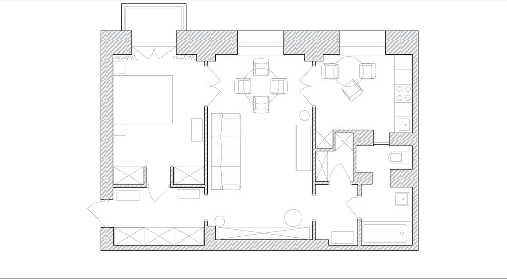
Несущими оказались только внешние стены, поэтому Павел смог сменить планировку без дополнительных временных затрат и согласований. За счет длинного коридора увеличили площадь гостиной и выделили место для хранения габаритных вещей.

Кухню и ванную оставили на своих местах, однако проходы сюда закрыли стеклянными дверями — так комнаты изолированы, но общий объем света и воздуха сохраняется. Анфиладу из комнат подчеркнули люстрами Labyrinthe Interiors.
Houzz тур: Квартира для архитектора в советской стилистикеПавел Железнов
Из гостиной можно попасть во все помещения, поэтому здесь сосредоточена основная жизнь хозяина и его друзей. Французский буфет, американский стол, восточный диван, библиотека — все это находится именно здесь.

Чтобы интерьер отражал историю дома, Павел добавил детали советского прошлого: гипсовые карнизы, высокие плинтусы, деревянный паркет и филенчатые двери шкафов, керамические выключатели и розетки.
Houzz тур: Квартира для архитектора в советской стилистикеПавел Железнов
Ванная получилась современной. Пространство небольшое, поэтому отделано единым материалом — мрамором Polarblau. Его положили и на стены, и на пол. В качестве декора выступают хромированные детали: сантехника, полотенцесушитель, ножки раковины.

Здесь также используется стеклянная перегородка, позволяющая отсечь воду, но сохранить объем. По утрам можно не включать свет: окно, выходящее на кухню, пропускает много дневного света. К тому же Павел дополнительно увеличил его в размерах.
Houzz тур: Квартира для архитектора в советской стилистикеПавел Железнов
Книги стали лучшим украшением квартиры архитектора. У него их не просто много, а очень много. Раньше, в старой квартире, они хранились как попало. Но в этой Павел заранее спланировал для них место. Книжный стеллаж поставили вдоль одной из стен гостиной.

«Визуально это очень легкая конструкция, однако спроектирована она таким образом, чтобы выдержать большой вес тяжелых книг, — говорит Павел. — Это отдельные секции, прикрепленные к стене и соединенные между собой».
Houzz тур: Квартира для архитектора в советской стилистикеПавел Железнов
Стеклянная дверь, ведущая в спальню, позволяет дневному свету проникать с двух сторон, поэтому здесь всегда светло и солнечно. Кровать Павел выбрал готовую, Family Hall, а вот прикроватные тумбы спроектировал и заказал в фирме «Ликмет».

В спальне много деталей советской тематики. Например, карта Москвы 1950-х годов, картины с изображением зданий и памятников, а также несколько графических работ с архитектурой разных годов XX века.
В результате у квартиры появилась своя собственная история, которую рассказывают предметы мебели и детали.

ПРЕДЛОЖИТЕ СВОЙ ПРОЕКТ ДЛЯ ПУБЛИКАЦИИ…
Загрузите фотосъемку в свой профиль на Houzz, отправьте ссылку и краткое описание проекта на editorial@flatica.ru. Мы обязательно свяжемся с вами, если примем решение о
публикации!




Интерьерные съемки из спецпроекта «Houzz в гостях»

Комментарии 48

Сайт знакомств просто! Ужас! Всем холостого хозяина подавай!)))
Такой стиль называется не советским, а сталинским или может даже номенклатурным. Сдержанный, но живой интерьер для закоренелого холостяка. Интересно было бы посмотреть на хозяина. Очень понравилась идея со стеклянными дверями и футуристичными стульями на фоне классики. Есть непонятные моменты: на плане есть несколько ниш в кухне и дверь в туалет, а вот фотографий нет. Также хочется видеть ракурс со встроенными шкафами. Ну и открытые стеллажи - уход за ними не прост.
olena061

9 л.

Воздушно, благородно, с большим вкусом! Двери - просто моя мечта!

Оставьте комментарий

Читать похожие статьи