logo

Houzz тур: Купола, матрешки, балетные пачки под потолком

«Дерзим по полной» — так сформулировали ТЗ дизайнерам заказчики этой квартиры

Houzz Россия
Houzz Россия

13 июня 2018

Обновлено 16 июля 2018

Молодая пара несколько лет назад перебралась в столицу, оставив в Петербурге коммуналку в центре рядом с цирком Чинизелли и выходом на Фонтанку. Навещая родной город, им хотелось останавливаться в интересном месте, куда можно пригласить друзей и родственников. Дизайнеры Макс Жуков и Виктор Штефан превратили старую квартиру в яркий лофт, где обыграли главные городские достопримечательности.
Houzz тур: Купола, матрешки, балетные пачки под потолкомВиктор Штефан
О проекте Место: Санкт-Петербург Год : 2018 Размер: 170 кв.м Кто здесь живет: заказчики превратили жилплощадь в место встречи друзей Авторы проекта: Макс Жуков и Виктор Штефан, Totaste.studio Фото: Сергей Красюк «Это не первый проект с заказчиками, поэтому они лишь дали напутствие: “дерзим по полной”, — вспоминает Макс Жуков. — Здесь была заброшенная коммуналка, в интерьерах которой можно было снимать фильмы ужасов: куча комнатушек, часть из которых проходные. После демонтажа раскрылось огромное пространство с 11 окнами и потолками 3.4 метра. С ним и начали работать».
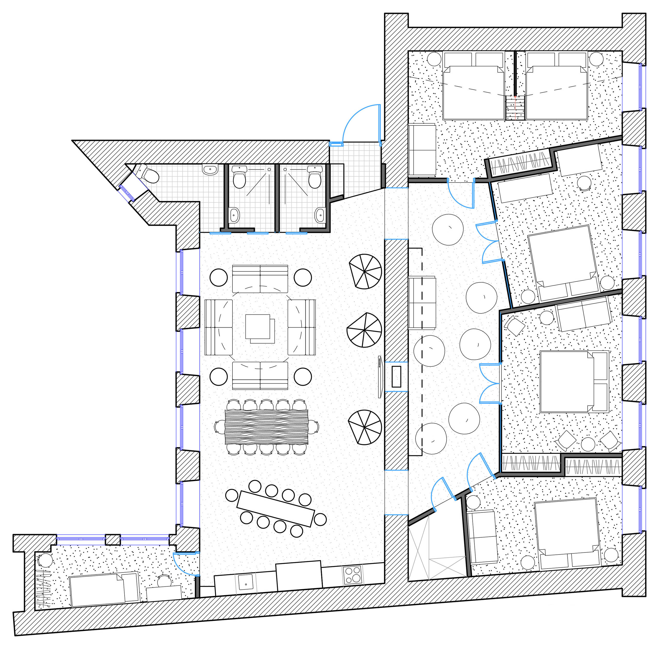
ПЛАНИРОВКА В квартире оказалась лишь одна несущая стена — посередине, она и помогла разделить общественный и «тихий» блоки. Остальные перегородки возвели там, где того требовал проект. Относительно согласований все прошло гладко, так как мокрые зоны не переносили и вписали в старые границы. Владельцам нужно было большое общее пространство и максимум спальных мест без ущерба комфорту. На выходе получились кухня-бар-гостиная и пять спален. С комфортом в этом месте могут остановиться до 16 человек. В крайнем случае еще двое разместятся на раскладном диване.
Houzz тур: Купола, матрешки, балетные пачки под потолкомВиктор Штефан
«Тему “Питер” обозначили заказчики. Чтобы с долей юмора, стиля, элементов китча и любимого нами лофта показать гостям обожаемый город с лучших сторон, — поясняет Макс. — Выбирали места исходя из факторов значимости и “обыгрываемости” интерьером, чтобы тему можно было ярко раскрыть. Так появились “Исаакий”, “Аврора”, “Вагановка”, “Цирк на Фонтанке”, “Янтарная комната” и “Петровские сады” » .
Houzz тур: Купола, матрешки, балетные пачки под потолкомВиктор Штефан
ГОСТИНАЯ Интерьер сделан по-питерски серым, но благодаря ярким акцентам и большим объемам красных диванов, пространство кажется сочным, игривым и радостным. Это — «Исаакиевская площадь» с люстрой-куполом и малыми куполами-торшерами, где хватит места для большой компании и за обеденным столом, и на мягких диванах, и в парящих креслах-матрешках.
Houzz тур: Купола, матрешки, балетные пачки под потолкомВиктор Штефан
Тематический интерьер требовал подходящих предметов мебели, света и декора. Найти такие решения в готовом виде очень сложно. Поэтому многое делали на заказ. Люстра-купол, торшеры, канаты, абажуры-пачки, диваны, кресла-матрешки, абажуры в цирке, арматурные стеллаж, кухонный сервант, барная стойка — сделаны по эскизам дизайнеров. Из готового — светильник Fedora, AxoLight дизайнера Димы Логинова, который назвал объект в честь бабушки, и спасательные круги в «Авроре» БОЛЬШЕ ФОТО… Рассмотрите светильники-матрешки и бюст Петра I в проекте Кaravan a12 в портфолио дизайнеров
Houzz тур: Купола, матрешки, балетные пачки под потолкомВиктор Штефан
КУХНЯ Интерьер не только о Санкт-Петербурге, но и о России в целом: авторам хотелось показать русский быт, сделать кухню в стиле « дачи » , где обязательно есть « бабушкин » буфет или сервант. Здесь он — ярко-синий, в поддержку всего интерьера. Остальные секции нарочито простые для контраста. Все это объединяет единая столешница из акрилового камня.
Houzz тур: Купола, матрешки, балетные пачки под потолкомВиктор Штефан
Красная будка в углу — тоже стилизация. Это красный холодильник, на котором сделана «расстекловка» из черной пленки. Для верхней части будки в рекламной компании изготовили «шапку».
Houzz тур: Купола, матрешки, балетные пачки под потолкомВиктор Штефан
САНУЗЛЫ В большом синем контейнере скрыты санузлы. «Изначально туалет был один, и это было просто место, где стоял унитаз. Зато с окном, — рассказывает Виктор Штефан. — К нему мы пристроили синий контейнер. Так удалось вписать яркий и знаковый элемент лофта и замаскировать санузлы, добавив к существующему еще два». В каждом из них появился душ. В качестве декора на контейнер поставили несколько бочек (на фото), опять же с питерской тематикой. По легенде в каждой из них — вода из рек и каналов города. Каждая подписана соответствующе.
Houzz тур: Купола, матрешки, балетные пачки под потолкомВиктор Штефан
Санузлы сделаны в разных цветах, но с использованием зеркал — небольшие пространства кажутся немного просторнее. БОЛЬШЕ ФОТО… Кадры остальных санузлов — в портфолио проекта
Houzz тур: Купола, матрешки, балетные пачки под потолкомВиктор Штефан
КОРИДОР Подвешенные в коридоре бочки работают как светильники. Они поддерживают мотив бочек на контейнере и лофтовую тематику.
Houzz тур: Купола, матрешки, балетные пачки под потолкомВиктор Штефан
Холл по совместительству стал библиотекой. В двух спальнях сделали пропускающую свет перегородку — она позволяет дневному свету проникать в эту самую библиотеку. Остальные двери, чтобы не привлекать внимания, сделали скрытыми и покрасили той же краской, что и стены.
Houzz тур: Купола, матрешки, балетные пачки под потолкомВиктор Штефан
Обратите внимание: Как и в любой коммуналке, раньше здесь стояло старое расстроенное пианино. Его пришлось разобрать. Единственное, что осталось — тяжелая чугунная рама, которую никто не хотел выносить вниз из-за отсутствия в доме лифта. Тогда дизайнеры оставили её как украшение интерьера.
Houzz тур: Купола, матрешки, балетные пачки под потолкомВиктор Штефан
СПАЛЬНЯ «АВРОРА» Эта спальня сделана « двухпалубной » . Больше всего здесь нравится детям и взрослым, в детстве мечтавшим о двухъярусной кровати. К морской тематике отсылают канаты, спасательные круги и синева под ногами.
Houzz тур: Купола, матрешки, балетные пачки под потолкомВиктор Штефан
СПАЛЬНЯ « БАЛЕТ » Под потолком здесь висят полупрозрачные балетные пачки. А еще в комнате есть настоящий балетный станок. Сразу за ним — огромное зеркало, которое делает комнату в два раза больше и просторнее.
Houzz тур: Купола, матрешки, балетные пачки под потолкомВиктор Штефан
«Станок изготовили сами, — поясняет Виктор. — Люстры-пачки сделали на заказ».
Houzz тур: Купола, матрешки, балетные пачки под потолкомВиктор Штефан
СПАЛЬНЯ «ПЕТРОВСКИЕ САДЫ » ( Петровский огород в Летнем саду) Проблема и решение: Эта комната появилась на месте бывшей крытой веранды. Здесь было очень узкое и небольшое пространство, с которым авторам проекта пришлось помучаться. «Сначала мы думали сделать в комнате кабинет, но с помощью двухуровневой кровати удалось организовать дополнительную спальню, — рассказывает Виктор. — Тема петровских садов появилась уже исходя из формата помещения — два огромных окна при таких малых габаритах явно тянули на теплицу. Так появился растительный орнамент на полу и стенах».
Houzz тур: Купола, матрешки, балетные пачки под потолкомВиктор Штефан
СПАЛЬНЯ « ЯНТАРНАЯ КОМНАТА » «Нашей задачей была сделать Янтарную комнату без янтаря, — вспоминает Макс. — Поэтому на стенах появились медные панно с написанным на разных языках словом “янтарь”. Медь отлично играет со светом, как и янтарь » .
Houzz тур: Купола, матрешки, балетные пачки под потолкомВиктор Штефан
Абажуры ламп выполнены из джинсовой ткани Для расширения кругозора в каждой комнате есть информационная табличка, дающая небольшую историческую справку о данном месте или памятнике.
Houzz тур: Купола, матрешки, балетные пачки под потолкомВиктор Штефан
СПАЛЬНЯ « ЦИРК ЧИНИЗЕЛЛИ » Здесь будто оказываешься под куполом шапито — на цирковой эффект работают полосатый потолок, бархат портьер и красная, как арена, ковровая плитка на полу. Настоящий цирк, кстати, находится по соседству. ОБ АВТОРАХ ПРОЕКТА… Перейдит е на личную страницу Макса Жукова и Виктора Штефана, Totaste.studio , чтобы изучить другие работы или заказать дизайнерам собственный проект
Зеркала и головы лошадей ИКЕА В ВАШЕМ ГОРОДЕ… Найдите дизайнера на Houzz — закажите собственный проект У ВАС ЕСТЬ ДЛЯ НАС ПРОЕКТ… Загрузите съёмку в свой профиль на Houzz, отправьте ссылку с кратким описанием на editorial@flatica.ru Для справки: Какие объекты мы публикуем

Комментарии 38

Хостел просто супер!
https://www.houzz.ru/ideabooks/112497498/list/v-gostyah-30-metrov-semeynaya-kvartira-dlya-vecherinok - вот это СЕМЕЙНАЯ квартира для вечеринок. А та, что представлена в этой статье - это хостел обыкновенный. Зачем усложнять? Питер, центр, всё нормально. Дизайн гостиной понравился, идея с холодильником-будкой - простая и клёвая, определила, каким будет холодильник в моём доме :) Единственный момент, который, на мой взгляд, не стоило бы делать в хостеле - с практической точки зрения скрытые двери не очень хороши, особенно учитывая, сколько РАЗНЫХ людей будут ими пользоваться. Вспоминая группу "Ленинград" с их нетленкой "В Питере пить", понимаешь, что долго эти двери не выдержат в первозданном варианте.
Для квартиры общая комната - сильный перегруз. А для хостела - замечательно. Планировка практичная. Спальни приятные. Санузлов много. Надо просто представить разных незнакомых людей в общей комнате, станет понятно, что в ней легко уединиться или стать незаметным. В этом случае перегруз на руку. И длииииинная кухня с окошком. Но, думаю, это интуитивное решение, хотя верное.

Оставьте комментарий

Читать похожие статьи