logo

Houzz тур: Красивая жизнь в Трувиле (Подмосковье)

Где светло-голубая неоклассика встречается с английским стилем

Houzz Россия
Houzz Россия

29 авг. 2018

Обновлено 17 сент. 2018

Houzz тур: Красивая жизнь в Трувиле (Подмосковье)Pavel Burmakin
О проекте
Место:
частный дом в КП «Трувиль», Подмосковье
Размер: 350 кв.м
Кто здесь живёт: супружеская пара с сыном
Автор проекта: Павел Бурмакин, студия SumburBuro
Фото: Сергей Моргунов
Houzz тур: Красивая жизнь в Трувиле (Подмосковье)Pavel Burmakin
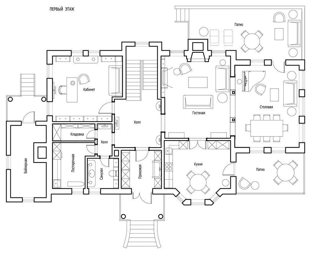
Дом построен по типовому проекту поселка, в нем четыре этажа: два основных, а также мансарда с бильярдом и цоколь с винным погребом. На первом этаже находятся гостиная, столовая, кухня и хозяйский кабинет. На втором — приватная зона с двумя спальными блоками, при каждом — свои гардеробная и санузел.
Houzz тур: Красивая жизнь в Трувиле (Подмосковье)Pavel Burmakin
Почти целиком первый и второй этаж дома выполнены в неоклассическом стиле: благородная серо-голубая гамма, светлая мебель. Контраст им задают элементы из черного металла.

Мансардный этаж с бильярдной комнатой и винный погреб в цоколе сделаны в брутальном стиле — в оформлении стен использованы кирпич ручной формовки и темное дерево.
Houzz тур: Красивая жизнь в Трувиле (Подмосковье)Елена Игумнова
Планировка первого этажа
Houzz тур: Красивая жизнь в Трувиле (Подмосковье)Pavel Burmakin
ПРИХОЖАЯ . При входе в дом элементы неоклассики совмещены с загородной тематикой: у встроенных шкафов — реечные фасады. Серо-голубой цвет обоев рефреном повторяется в отделке других помещений дома. . . В простенке между шкафами — голубая скамья, над ней — пейзаж. «Картины покупали в Италии в антикварном салоне. В доме собраны хорошая старая живопись и графика», — рассказывает дизайнер.
Houzz тур: Красивая жизнь в Трувиле (Подмосковье)Pavel Burmakin
Мебель Luciano Zonta; диваны, кресла Baker; торшер, бра и люстра Visual Comfort; журнальный стол Chelini; портал камина выполнен по чертежам архитектора

ГОСТИНАЯ
Пол всего первого этажа выложили мрамором. Акцентный элемент в гостиной — камин с отделкой из мрамора сорта Emperador Dark. Эту контрастную тему продолжает журнальный столик из темного дерева. Над ним по центру комнаты спускается люстра с черной основой и белыми плафонами. По обе стороны в комнате — встроенные светло-серые шкафы.
Houzz тур: Красивая жизнь в Трувиле (Подмосковье)Pavel Burmakin
СТОЛОВАЯ
Помещение под высокой ломаной крышей отвели под столовую. Балки не стали закрывать, а люстру подобрали такую, чтобы её можно было отрегулировать по высоте: она крепится на цепях к наклонной поверхности.

Черный каркас люстры — один из тех элементов, которые выбирали специально в противовес светлой классике помещения. Обеденные стулья одели в светлые полосатые чехлы.

Стол Mis an Demeure; стулья в чехлах L’Оrigine; люстра Vaughan; торшер Ralph Lauren Home
Houzz тур: Красивая жизнь в Трувиле (Подмосковье)Pavel Burmakin
КУХНЯ
В кухню ведут распашные остекленные двери. Напротив них в зоне эркера — круглый стол с темным подстольем. Фартук кухни выполнен из мрамора почти черного цвета, ручки шкафов — из бронзы.
Houzz тур: Красивая жизнь в Трувиле (Подмосковье)Pavel Burmakin
По обе стороны от дверей в кухню выставили шкафы-«колонны» от пола до потолка. Посередине правой секции — черная встроенная техника.

Кухня Luciano Zonta; стол и стулья L’Оrigine; люстра Bronze d’Аrt Francais; бытовая техника Smeg
Houzz тур: Красивая жизнь в Трувиле (Подмосковье)Pavel Burmakin
ГОСТЕВОЙ САНУЗЕЛ . На стенах гостевого санузла — обои с рисунком. Над умывальником — зеркало в обрамлении деревянных панелей. Боковые части выделены темным цветом. На них закреплены два светильника на длинных кронштейнах.
Houzz тур: Красивая жизнь в Трувиле (Подмосковье)Pavel Burmakin
По сторонам от унитаза с выносным бачком — шкафы-витрины с открытыми полками наверху. Окно, обои и шкафы — все эти элементы превращают санузел в уютную комнату.

На первом этаже также расположена постирочная.

Обои Wallquest, Ceylon; бра Restoration Hardware; люстра Visual Comfort; мебель выполнена на заказ по чертежам архитектора; смеситель Herbeau; унитаз Thomas Crapper с черным чугунным бачком
Houzz тур: Красивая жизнь в Трувиле (Подмосковье)Pavel Burmakin
Дубовая лестница с металлическими балясинами тоже построена на контрасте светлого и темного. Ступени — из дерева натурального цвета. Из-под каждой ступени на торец лестницы фигурным элементом выходит светлый подступенок. На каждую ступень приходится по две балясины — обычная и удлиненная за счет цоколя.
Houzz тур: Красивая жизнь в Трувиле (Подмосковье)Pavel Burmakin
На полу — разноформатный мрамор. Комод с красными и черными ящиками сделан на заказ

КАБИНЕТ
В противовес светлой неоклассике первого этажа кабинет сделан в «мужском» английском стиле — в темных цветах дубовой встроенной библиотеки. Сложную конструкцию крыши кабинета решили обыграть — добавили светлые балки, выделяющиеся на сером фоне скатов.
Houzz тур: Красивая жизнь в Трувиле (Подмосковье)Елена Игумнова
Планировка второго этажа

На втором этаже находятся спальни родителей и сына. При каждой из них — свои санузел и гардеробная.
Houzz тур: Красивая жизнь в Трувиле (Подмосковье)Pavel Burmakin
СПАЛЬНЯ РОДИТЕЛЕЙ . При хозяйской спальне — две гардеробных, через одну из них попадаешь в спальню. На стенах комнат — светло-серые полосатые обои. В женской гардеробной устроили место для макияжного столика — в нише, сформированной шкафом.
Houzz тур: Красивая жизнь в Трувиле (Подмосковье)Pavel Burmakin
ВАННАЯ КОМНАТА . В хозяйской ванной поклеили светлые обои с голубыми цветами. Под умывальником — широкая светлая тумба. Под окном, смотрящим на рощу, поставили ванну на лапах.
Houzz тур: Красивая жизнь в Трувиле (Подмосковье)Pavel Burmakin
СПАЛЬНЯ СЫНА
В комнате сына, как и в спальне родителей, на стенах — светлые полосатые обои. Стена в изголовье сделана акцентной, голубой. К ней подобраны голубые шкафы для книг и серо-голубые шторы.
Houzz тур: Красивая жизнь в Трувиле (Подмосковье)Pavel Burmakin
Смеситель Axor Montreux; тюль со шрифтами Mastro Raphael; мебель и тумба с раковиной Minaccollo

ВАННАЯ СЫНА
На стенах в ванной — плитка, повторяющая цвет шкафов и обоев спальни.
Houzz тур: Красивая жизнь в Трувиле (Подмосковье)Елена Игумнова
Планировка мансардного этажа
Houzz тур: Красивая жизнь в Трувиле (Подмосковье)Pavel Burmakin
МАНСАРДА
Для мансарды выбрали лофтовую тематику — часть стен выложили кирпичом ручной формовки. Свет проникает в помещение сквозь большие мансардные окна. Здесь же устроен домашний кинотеатр. Между балками над диваном повесили проектор, в балки встроили колонки.
Houzz тур: Красивая жизнь в Трувиле (Подмосковье)Pavel Burmakin
Рядом с дверью в гостевую спальню поставили светлый стеллаж с классическим карнизом и пилястрами — даже в брутальном помещении дизайнер решил «напомнить» о стиле первых двух этажей.
Houzz тур: Красивая жизнь в Трувиле (Подмосковье)Pavel Burmakin
Идея: Бильярдный стол с массивными ножками сделан на заказ по эскизу Павла Бурмакина. В торцах стола сделаны такие же металлические заклепки, как на межкомнатных дверях в мансарде, ведущих в еще одну гостевую комнату и санузел.
_________________________


БОЛЬШЕ ФОТО…
Дверь с имитацией заклепок и больше кадров из этого проекта — в профиле дизайнера Павла Бурмакина
_________________________
Houzz тур: Красивая жизнь в Трувиле (Подмосковье)Pavel Burmakin
ГОСТЕВАЯ СПАЛЬНЯ
Обстановка этой комнаты возвращается к спокойной классике. Но есть исключения, напоминающие о свободном лофтовом стиле мансарды: решение потолка с темными балками, брашированный и патинированный дуб рамы изголовья кровати и прикроватных тумбочек.

Изголовье заключено в нишу, отделанную обоями в клетку. Оно обтянуто тканью, напоминающую ткань чехлов стульев в столовой.

Кровать Mis en Demeure; лампы Besselink; тумбочки, стул Dialma Brown; люстра Visual Comfort
Houzz тур: Красивая жизнь в Трувиле (Подмосковье)Pavel Burmakin
САНУЗЕЛ
Под санузел в мансарде, в отличие от хозяйских ванных комнат, отведено небольшое пространство без окна. Стены выложены узкой коричневой плиткой-кабанчиком. Для создания лофтовой атмосферы сюда добавили светильники на состаренных металлических кронштейнах. Чтобы оживить интерьер красным акцентом, между ними повесили копию картины художника XV века — портрет урбинского герцога Федериго да Монтефельтро. Под ней закрепили дизайнерский унитаз черного цвета.
Houzz тур: Красивая жизнь в Трувиле (Подмосковье)Pavel Burmakin
Кронштейны светильников словно бы хранят еще следы прежней краски. Такая «небрежная» деталь привносит толику винтажной атмосферы.

Напольная плитка Topcer; бра с имитацией ржавчины Restoration Hardware; унитаз Armani
Houzz тур: Красивая жизнь в Трувиле (Подмосковье)Елена Игумнова
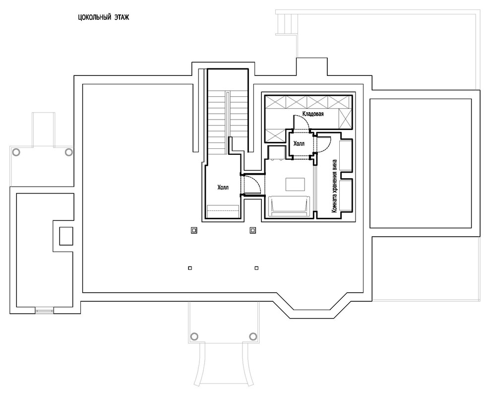
Планировка цокольного этажа
Houzz тур: Красивая жизнь в Трувиле (Подмосковье)Pavel Burmakin
Кирпич ручной формовки wienerberger; кожаные диван и кресла Restoration Hardware; шкаф Marci Group

ВИННЫЙ ПОГРЕБ В ЦОКОЛЕ
В зоне отдыха в погребе — большой кожаный диван, стоящий у брутальной кирпичной стены. В цоколе, кроме винного погреба, устроены кладовые. При входе в зону отдыха — широкий темный портал. Рядом в лестничном холле — встроенный шкаф-витрина с часами под карнизом. Две большие фарфоровые вазы купили специально для проекта. Так автору удалось соединить брутальную «мужскую» суровость английского стиля и элегантную «женскую» линию светлой классики.
ОБ АВТОРЕ ПРОЕКТА…
Перейдите на страницу Павла Бурмакина, SumburBuro, чтобы изучить другие работы из портфолио архитектора и связаться с ним
__________________________

В ВАШЕМ ГОРОДЕ…
Найдите архитектора на Houzz в вашем городе — закажите собственный проект

У ВАС ЕСТЬ ДЛЯ НАС ПРОЕКТ…
Загрузите съёмку в свой профиль на Houzz, отправьте ссылку с кратким описанием на editorial@flatica.ru

Для справки: Какие объекты мы публикуем

Комментарии 54

Alya

5 л.

урбинский герцог делла Франчески над унитазом - это жесть:) остальное дорого-богато
Отличная стилизация. Никто, я думаю, и не скрывает новодел! Не всем нравится жить со старой мебелью, впитавшей запахи и уж извините, энергетику, прежних владельцев. Этот интерьер будет достойно стареть вместе с владельцами, как уже заметили многие. Какая кухарка и капуста ? Доставка продуктов и рестораны в шаговой доступности при таком уровне жизни. А когда появятся маленькие наследники - не сомневайтесь, для них появится своя уютная зона. Браво дизайнеру!
Konsensus

6 л.

Солидно и основательно!

Оставьте комментарий

Читать похожие статьи