logo

Houzz тур: Кашпо Родриго и керамогранит в спальне для молодой семьи

Большие окна и впечатляющий вид подсказали дизайнерам студии DVEKATI стилистическое решение для квартиры в новом жилом комплексе

Евгения Назарова
Евгения Назарова

19 февр. 2016

Обновлено 6 мая 2016

Постоянный автор Houzz, интерьерный журналист

Как вписать в интерьере реплику исторического стиля? «Только после основательной современной обработки, ведь мы живем сегодняшним днем, в ином культурном контексте», уверены Екатерина Сванидзе и Екатерина Любарская, дизайнеры студии DVEKATI. Когда владельцы квартиры рассказали дизайнерам о том, что им нравится стиль ар-деко, авторы проекта решили ввести его через детали. В выборе стилистики помогло и расположение дома: из окон квартиры открывается впечатляющий вид на ВДНХ и постройки в стиле сталинского ар-деко.

Эта тема оказалась близка владельцам: после ремонта они дополнили интерьер предметами визуального искусства вроде картины с рабочим и колхозницей. Несмотря на исторические параллели, квартира с панорамными окнами выглядит стильно и актуально во многом благодаря удобной планировке и эффектному сочетанию современных материалов в отделке.
Houzz тур: Кашпо Родриго и керамогранит в спальне для молодой семьиКатя Сванидзе
О проекте Место: Москва, ЖК « Седьмое небо » Год: 2015 Размер: 147 кв.м Кто здесь живет: Молодая семейная пара с маленьким сыном Автор проекта: Екатерина Сванидзе, Екатерина Любарская, студия DVEKATI В плане застройщика эта квартира значилась как трехкомнатная, но владельцы попросили переработать расположение функциональных зон: кроме гостиной, спальни и детской, им хотелось иметь кабинет и отдельную комнату для домашнего кинотеатра. « Мы ставили перед собой задачу максимально унифицировать использованные материалы: так, пол во всех общественных зонах, включая коридор, выложен керамогранитом под мрамор » , — рассказывает Екатерина.
Houzz тур: Кашпо Родриго и керамогранит в спальне для молодой семьиКатя Сванидзе
Зону столовой, в которую владельцы попадают по коридору, протянувшемуся от входной двери, выделили шпонированным объемом в цвет паркетной доски — в него же интегрирована витрина с остеклением и фрезеровкой в духе ар-деко. Стыки между материалами закрыли хромированной раскладкой. Стулья: Mobildea; с тол: Calligaris
Houzz тур: Кашпо Родриго и керамогранит в спальне для молодой семьиКатя Сванидзе
Перед тем, как приступить к отделке, в квартире пришлось серьезно выровнять стены и потолок. Чтобы не понижать высоту, дизайнеры предложили обойтись без приточной вентиляции, а кондиционеры вывели на стены. Стены в гостиной-столовой отданы под покраску: приятного зеленого оттенка помогла добиться декоративная штукатурка. Верхняя подсветка подчеркивает объем многоуровневого потолка. Диваны: Natuzzi; журнальный столик: Family Hall; торшер: Patrizia Garganti
Houzz тур: Кашпо Родриго и керамогранит в спальне для молодой семьиКатя Сванидзе
Заметный акцент на стене за диваном — композиция из трех зеркал. Квадратная модель оформлена изразцами, которые супруги купили в Абрамцеве, — это знаковое для владельцев место, где они отмечали свадьбу.
Houzz тур: Кашпо Родриго и керамогранит в спальне для молодой семьиКатя Сванидзе
Огромное кашпо от Vandome стало почти членом семьи: владельцы ласково называют его Родриго. Огромные окна гостиной не хотелось закрывать текстилем: стеклопакеты дополнили декоративными римскими шторами на электроприводе. Хотя хозяева редко пользуются ими, предпочитая естественный свет.
Houzz тур: Кашпо Родриго и керамогранит в спальне для молодой семьиКатя Сванидзе
Гостиная, столовая и кухня составляют центральную ось квартиры. Правда, кухню владельцы попросили максимально спрятать от посторонних глаз. Ее скрывают сдвижные зеркальные перегородки, поэтому она будто растворяется в пространстве. Кухонная мебель: Berloni; с ветильники: LineaLight и SLV
Houzz тур: Кашпо Родриго и керамогранит в спальне для молодой семьиКатя Сванидзе
Помещение домашнего кинотеатра решили использовать в том числе и как библиотеку: у владельцев много книг, для которых предусмотрели высокие стеллажи. Чтобы владельцы могли получать удовольствие от кинопросмотра, напротив зоны телевизора разместили большой удобный диван, а на окна повесили блэкаут-шторы, не пропускающие солнечных лучей. Кожаный диван: Natuzzi; люстра: Barrovier and Toso; ж урнальный столик: Lobster’sDay
Houzz тур: Кашпо Родриго и керамогранит в спальне для молодой семьиКатя Сванидзе
Такие же шторы появились в спальне владельцев. Панно в изголовье кровати выполнено из керамогранита и играет в интерьере спальни главную декоративную роль. « Это смелое решение для нашей полосы: наши соотечественники пока настороженно относятся к камню, особенно в спальне. Эксперимент показал, что керамогранит может быть теплым и уютным » , — поясняет Екатерина. Кровать: Ruf Betten; подвесные светильники: Prandina; прикроватные столики: Lobster’s Day и Viccarbe
Houzz тур: Кашпо Родриго и керамогранит в спальне для молодой семьиКатя Сванидзе
Пол в спальне, в отличие от общественных зон, выложен модульным паркетом Coswick. Система хранения в основной спальне организована за счет большого встроенного шкафа. « Мы рассматривали вариант с гардеробной, но остановились на таком варианте: он оказался даже более вместительным, — отмечает Екатерина. — Этот шкаф — сложносочиненная система, некоторые ящики в нем выдвижные, другие распашные » .
Houzz тур: Кашпо Родриго и керамогранит в спальне для молодой семьиКатя Сванидзе
В зоне подоконника тоже есть встроенные системы хранения, к тому же, дизайнеры превратили его в полноценное рабочее место для хозяйки — здесь она работает по вечерам. Кресло: Sancal; к омод: Lola Glamour
Houzz тур: Кашпо Родриго и керамогранит в спальне для молодой семьиКатя Сванидзе
Акцентную стену в кабинете оформили декоративной штукатуркой. « На этапе согласования мы назвали этот цвет “свежий стейк”: брутальный мужской оттенок, которого больше нет нигде в интерьере, тонизирует обстановку » , — делится Екатерина. Мужскую линию поддерживают металлические стеллажи Manhattan от фабрики Casa Desus и стильные кресла, которые навевают ассоциации с бизнес-классом самолета. Кресла: Sambuca от Carmenes; консоль: Amon от Mobilfresno
Houzz тур: Кашпо Родриго и керамогранит в спальне для молодой семьиКатя Сванидзе
В новостройках гибкая подводка, и радиаторы можно выбрать в любой модификации — авторы проекта решили эту задачу в разных комнатах по-разному. В гостиной установили настенную трубчатую батарею, а для кабинета выбрали более низкую модель, которая не закрывает панораму. От встроенных в пол систем решили отказаться, чтобы не жертвовать высотой потолка. Стол: Collecion Alexandra; к ашпо: Vandome; т оршер: Cosmorelax; и нтерьерные подушки: Missoni
Houzz тур: Кашпо Родриго и керамогранит в спальне для молодой семьиКатя Сванидзе
Детскую комнату для мальчика дизайнеры спроектировали на вырост: некоторые элементы мебели можно будет без труда заменить через несколько лет. « Сейчас у стены стоит маленький шкаф, но мы предусмотрели возможность заказать большие встроенные системы хранения. Все бра выведены таким образом, чтобы кровать можно было заменить на большую » , — рассказывает Екатерина.
Houzz тур: Кашпо Родриго и керамогранит в спальне для молодой семьиКатя Сванидзе
Два симметрично расположенных участка стен возле окон оформили меловой краской, а зону спортивного уголка закрыли паркетной доской. Центральный объем комнаты выделили зеленой декоративной штукатуркой со световыми прорезями. В них встроена цветная подсветка, которая очень нравится маленькому хозяину комнаты. Мебель: VOX Young Users; п отолочные светильники: SLV; пуфы: «Ого-го обстановочка»
Houzz тур: Кашпо Родриго и керамогранит в спальне для молодой семьиКатя Сванидзе
В квартире два санузла, оформленных в едином стиле с использованием керамогранита и мозаичной облицовки из натурального перламутра. В хозяйском санузле поместились и душевая кабина, и ванна, над которой встроили удобные полки для хранения. П о словам авторов проекта, они предпочитают обходиться без навесных конструкций. Столешницы и встроенные ящики: на заказ по авторскому проекту DVEKATI; с анфаянс: Villeroy&Boch; с месители: HansGrohe
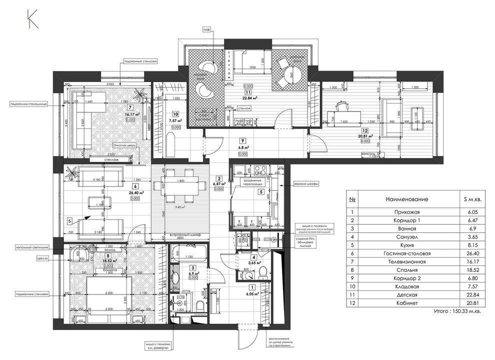
План квартиры с расстановкой мебели. ПРЕДЛОЖИТЕ СВОЙ ПРОЕКТ ДЛЯ ПУБЛИКАЦИИ… Загрузите фотосъемку в свой профиль на Houzz, отправьте ссылку и краткое описание проекта на editorial@flatica.ru. Мы обязательно свяжемся с вами, если примем решение о публикации. Интерьерные съемки из спецпроекта «Houzz в гостях»

Комментарии 3

Супер!!!
greentean

9 л.

Супер! Все понравилось, и цвета, и стилистика, и фактуры. Панно в спальне - шедевр, сначала подумала, что это обои. Родриго очаровашка))
Очень профессионально !!! Браво

Оставьте комментарий

Читать похожие статьи