logo

Houzz тур: Из однушки 44 кв.м — квартира со спальней

Сложнее всего было убедить мужа в необходимости сноса стен

Houzz Россия
Houzz Россия

24 сент. 2016

Обновлено 6 февр. 2017

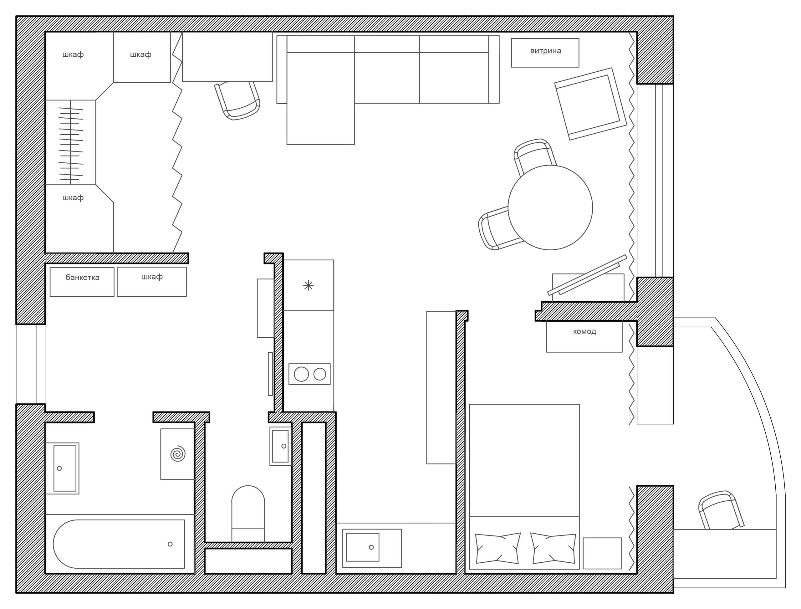
«Когда мы покупали однокомнатную квартиру площадью 44 квадратных метра, то понимали, что менять ее в обозримом будущем на что-то большее мы точно не будем. И нужно создать пространство таким, чтобы с появлением детей удобно было всем, — рассказывает дизайнер Анна Крутова о своей квартире в Москве. — Поэтому мы снесли имеющиеся стены и сделали полную перепланировку. Оставили на месте только мокрые зоны, присоединили лоджию, а часть кухни отвели под спальню».
Houzz тур: Из однушки 44 кв.м — квартира со спальнейАнна Крутова
О проекте:
Место: Москва
Площадь: 44 кв.м
Кто здесь живет: Молодая семья дизайнера
Автор проекта: Анна Крутова
Фото: Вадим Крутов
Houzz тур: Из однушки 44 кв.м — квартира со спальнейАнна Крутова
Вместе с мужем, фотографом Вадимом Крутовым, Анна долго рисовала планировку, доказывала, что убирать стены совсем не страшно, и в итоге квартира только выиграет. «Добиться понимания было не так просто, — говорит дизайнер. — Но в итоге мы получили достаточно просторную гостиную, полноценную кухню и, пусть маленькую, но отдельную спальню».
Основное пространство — это гостиная. Здесь сосредоточенно все необходимое: рабочее место, столовая группа, мягкая зона с диваном и телевизором. Чтобы стены не давили, их окрасили в белый цвет. Правда, не сразу.
Houzz тур: Из однушки 44 кв.м — квартира со спальнейАнна Крутова
«Я очень люблю и ценю цвет и считаю, что квартира должна быть наполнена яркими акцентами, — рассказывает Анна. — Изначально мы планировали серую квартиру с деталями локальных, но ярких цветов. Однако, когда строительная бригада выровняла стены серой шпаклевкой, я поняла, что серый здесь был бы большой ошибкой. Квартира стала очень маленькой. Тогда мы взяли курс на белый и не ошиблись».
Houzz тур: Из однушки 44 кв.м — квартира со спальнейАнна Крутова
Локальными цветами интерьер наполнила мебель: желтое кресло, красные шторы и зеленые подушки. Теплый дубовый паркет дополняет атмосферу уюта.
Houzz тур: Из однушки 44 кв.м — квартира со спальнейАнна Крутова
Обратите внимание: В спальне и коридоре Анна все-таки уступила своим желаниям и выбрала для стен серые обои. Эта камерность, когда небольшие помещения становятся еще меньше за счет темного цвета, по мнению хозяйки дома, создает особое настроение, атмосферу интимности.
Houzz тур: Из однушки 44 кв.м — квартира со спальнейАнна Крутова
«У нас очень маленькая спальня, за дверью сразу начинается кровать, — смеется Анна. — Но если выйти на лоджию, то можно найти еще одно рабочее место».
Houzz тур: Из однушки 44 кв.м — квартира со спальнейАнна Крутова
Проблема и решение: Часть бывшей большой кухни отдали под спальню, и на зону готовки оставалось совсем немного места. «Кухня у нас получилась не парадной, — рассказывает автор проекта. — Она находится в нише без окна. Я переживала, что там будет темно, но в гостиной большое окно, а сама квартира расположена на солнечной стороне. Поэтому, когда на улице много солнца, оно проникает даже на кухню».
Houzz тур: Из однушки 44 кв.м — квартира со спальнейАнна Крутова
Проблема и решение: Анне очень не нравится, когда рукав для вытяжки на кухне закрывают небольшим коробом — его назначение всегда остается явным. Поэтому в своей квартире она попросила рабочих сделать балку, в которой и скрыла рукав. Никто пока не догадался, что большая фальш-балка несет вполне практичную фунцию.
Houzz тур: Из однушки 44 кв.м — квартира со спальнейАнна Крутова
На чем сэкономили: Всю мебель, за редкими исключениями, покупали в ИКЕА. «Когда мы делали ремонт, мне казалось, что кроме этого магазина нашему бюджету ничего не подойдет, — говорит Анна. — Но теперь точно знаю, что на обычных мебельных рынках можно найти очень интересные предметы, если терпеливо ходить и искать. На рынке мы купили стол, люстру в спальню, светильники для гостиной и стулья».
«Я все время в поиске недорогих, но приятных глазу аксессуаров, — продолжает Анна. — Всегда захожу в Zara Home маленькая резная табуретка в спальне как раз оттуда, и в отдел для дома H&M. Я, кстати, была очень приятно удивлена, когда оказалась там впервые. Очень много модных вещей за небольшие деньги. Подушки на диван в гостиную заказали из Китая, с известного всем сайта: в Москве не нашлось зеленых павлинов, а китайцы сделали».

ПРЕДЛОЖИТЕ СВОЙ ПРОЕКТ ДЛЯ ПУБЛИКАЦИИ…
Загрузите фотосъемку в свой профиль на Houzz, отправьте ссылку и краткое описание проекта на editorial@flatica.ru. Мы обязательно свяжемся с вами, если примем решение о публикации!

Комментарии 44

В целом неплохо. Но на мой взгляд захламлено. Слишком много мебели, какое-то ужасное нагромождение. Из-за этого создается немного мрачная атмосфера. Люстры неплохо подобраны по стилю, порадовало также наличие зелени.
Странно читать некоторые комментарии... Кухня без света... у меня кухня-гостиная 40 кв.м с окнами на северо-восток - там даже в солнечные дни с обеда темновато. Подсветка под верхними шкафами горит всегда - и вот оно счастье ))) А менять с гардеробом, так там подвод воды и вент.шахта. Как это все тянуть в другой угол? А холодильник должен быть ближе всего к обеденному столу, а не задвинутым подальше к мойке. Как и микроволновка. Попробуйте горячую тарелку с супом нести из-за угла ;)) Открытые полки в кухне - зло. Как ни расставляй все - смотрится бардаком. А телевизор так висит тоже с практической целью - прямо с такой диагональю не поместится. Люди сделали дизайн для жизни, а не для картинки. Молодцы!
Подскажите пожалуйста на каких мебельных рынках искали мебель? Онлайн или оффлайн?

Оставьте комментарий

Читать похожие статьи