logo

Houzz тур: Интерьер вне времени в Сокольниках

Заказчики купили чистовые материалы раньше, чем нашли дизайнера — проект попросили делать с тем, что есть

Евгения Назарова
Евгения Назарова

7 июля 2021

Обновлено 4 авг. 2021

Постоянный автор Houzz, интерьерный журналист

Владельцы квартиры обратились к Александру и Анне Белобородовым после неудачного опыта сотрудничества с другим дизайнером. Новые авторы проекта взяли на себя нестандартную задачу: интерьер не только вписали в планировку от застройщика, но и применили заранее купленные заказчиками материалы паркетную доску и плитку.
Houzz тур: Интерьер вне времени в СокольникахАлександр Белобородов
О проекте
Место: Москва, ЖК EgoDom
Размер: 145 кв. м
Кто здесь живёт: семья из трёх человек супруги с сыном-дошкольником
Дизайнеры проекта: Александр и Анна Белобородовы, Yellow Cube
Интересный факт: работа над проектом проходила удалённо. Авторы всего один раз летали в Москву, чтобы согласовать текстиль
Фото: Наталья Горбунова

————————————————
СПРОСИТЕ У ДИЗАЙНЕРОВ НАПРЯМУЮ

Есть уточняющие вопросы? Хотите заказать свой проект дизайнерам этого интерьера? Свяжитесь с авторами проекта в один клик
————————————————
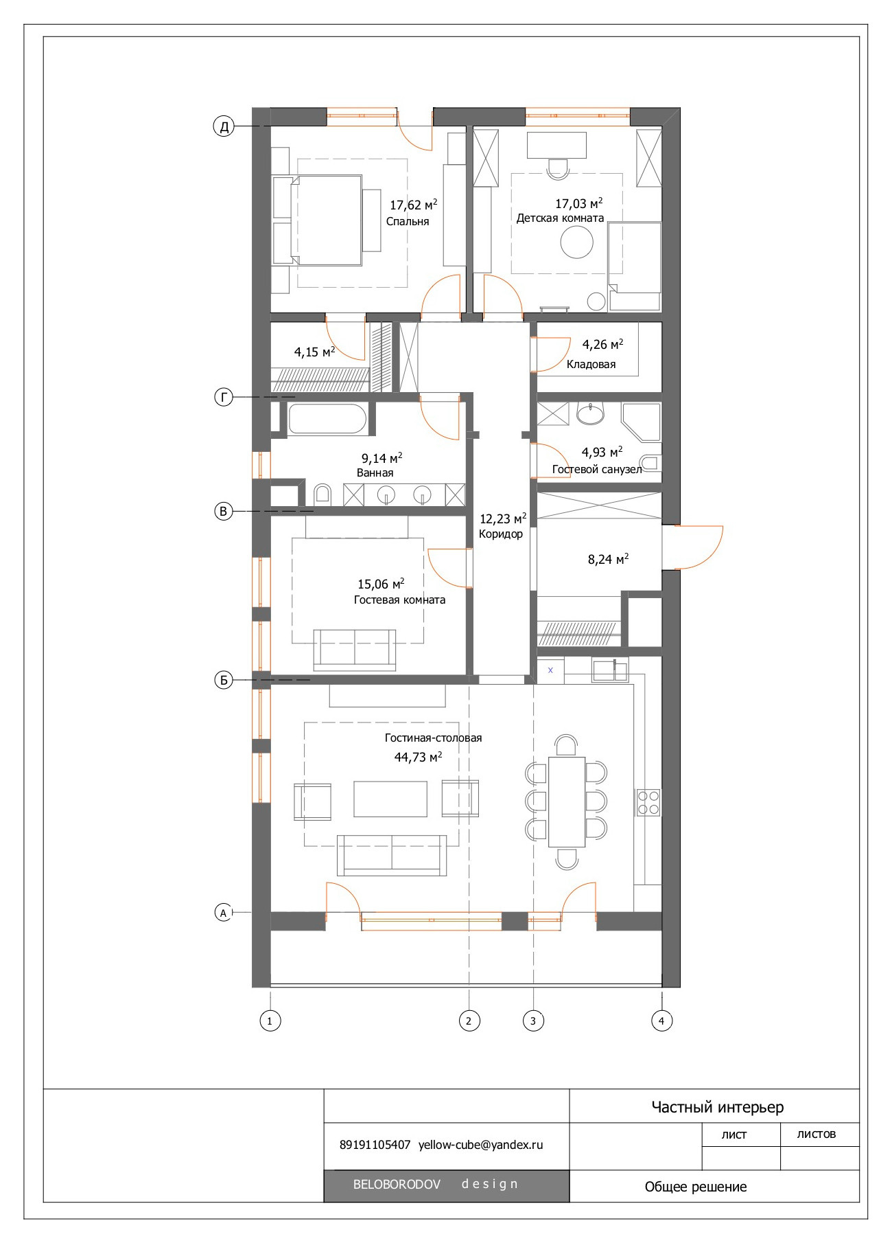
Планировка квартиры

Работу пришлось вести нестандартным способом: проекта как такового не было, а планировку заказчики попросили не менять. Владелец сам составил план электрики, а дизайнерам доверили подбор палитры, стиля и большей части чистовых материалов. Свои идеи Анна и Александр представили в виде акварельных эскизов, которые дали заказчикам представление о будущем интерьере.
Houzz тур: Интерьер вне времени в СокольникахАлександр Белобородов
ГОСТИНАЯ
Заказчики хотели получить интерьер вне времени, который не казался бы слишком дизайнерским. Финальная концепция стала результатом компромисса между супругами: хозяйке нравилась идея с тёмно-серыми стенами в гостиной, а вот хозяину это решение поначалу далось тяжело, хоть и полюбилось со временем.
Houzz тур: Интерьер вне времени в СокольникахАлександр Белобородов
Антрацитовый цвет выбрали за удачное сочетание с оттенком пола и красным кирпичом это конструктивный элемент архитектуры дома, который заказчики попросили вписать в интерьер. К тому же, благодаря высоким окнам в квартире много света: можно было позволить эксперименты с тёмными цветами.

Для окон подобрали классические наличники и доборы: белый цвет стал акцентным на фоне антрацитовых стен.
Houzz тур: Интерьер вне времени в СокольникахАлександр Белобородов
КУХНЯ
Для пола и фартука заказчики купили метлахскую плитку. Создавая интерьер кухни, Анна и Александр ориентировались на оттенки этого консервативного материала. Задача оказалась не из лёгких: кухня находится в едином помещении с гостиной, поэтому мебель важно было сочетать ещё и с антрацитовым цветом стен в жилой зоне.
Houzz тур: Интерьер вне времени в СокольникахАлександр Белобородов
Для мебели выбрали тёплый сливочный оттенок, который сочетается c отделкой пола. Тёмная столешница стала реверансом в сторону тёмно-серых стен. Латунные ручки ещё один объединяющий элемент в интерьере: они рифмуются с металлическими аксессуарами в гостиной.
Houzz тур: Интерьер вне времени в СокольникахАлександр Белобородов
СПАЛЬНЯ
В спальне сделали ставку на сливочную палитру с мягкими акцентами от бежевого изголовья до нежно-голубой банкетки. Почти всю мебель для интерьера сделали на заказ: «Проект предполагал добротную американскую мебель, но предметы известных брендов не проходили по бюджету. Тогда мы предложили компромисс изготовить мебель нужной формы в местных мастерских», рассказывает Александр Белобородов.
Houzz тур: Интерьер вне времени в СокольникахАлександр Белобородов
Идея и решение: двери дополнили декоративными накладками-фрамугами, чтобы подчеркнуть высоту потолка она составляет более трёх метров.
Houzz тур: Интерьер вне времени в СокольникахАлександр Белобородов
ДЕТСКАЯ
Основой интерьера детской также стали нейтральные тона разные оттенки серого. Квадраты нанесли на стену декоративной штукатуркой, а затем смонтировали поверх сетку из плинтуса прямоугольного сечения. Акценты добавили за счёт красных и оранжевых оттенков: они появились и на мебельных фасадах, и в дизайне ковра.
Houzz тур: Интерьер вне времени в СокольникахАлександр Белобородов
ВАННАЯ КОМНАТА
Чтобы подчеркнуть графику пространства, верхнюю часть стен выделили тёмно-серой краской: контрастный цвет помог сделать пространство более выразительным и выделить фигурный потолочный карниз.
Мебель тёплого белого оттенка заказали, чтобы поддержать купленную заранее плитку: в рисунке пола есть небольшие бежевые вкрапления.

———————————————
В ВАШЕМ ГОРОДЕ…
Через Houzz можно нанять дизайнера или архитектора в любом городе и стране. Начать поиск специалиста
———————————————
У ВАС ЕСТЬ ДЛЯ НАС ПРОЕКТ…
Загрузите съёмку в свой профиль на Houzz, отправьте ссылку с кратким описанием на editorial@flatica.ru

Для справки: Какие объекты мы публикуем

Комментарии 14

Спорное цветовое решение в детской, на мой взгляд - набор цветных предметов, которые ни с чем не перекликаются и плохо сочетаются. И согласна, что кухня по стилю плохо сочетается с гостиной, лучше бы её создали, вдохновившись тумбой под тв. А планировка шикарная, конечно - столько окон, и даже в ванной! Мечта!
Очень понравилась гостиная!) сочетание цвета и материалов. . Современные предметы интерьера очень органично вписываются в более "классические" приёмы.
Испортить любую квартиру легко, не взирая на окна. Сделать, к примеру, банальной и скучной, чего невозможно сказать про эту квартиру. Понравились смелые цветовые пассажи в сочетании с безупречным ремонтом. Незаурядно, свежо и выразительно.

Оставьте комментарий

Читать похожие статьи