logo

Houzz тур: Интерьер в оттенках... соседних панельных домов

Внутри — масса лайфхаков по планировке и организации хранения в маленьком пространстве

Евгения Назарова
Евгения Назарова

18 нояб. 2019

Обновлено 15 дек. 2019

Постоянный автор Houzz, интерьерный журналист

Houzz тур: Интерьер в оттенках... соседних панельных домовЕвгения Матвеенко
Учитывать вид из окна, выбирая колористику проекта традиционный приём многих дизайнеров. Обычно контекст задают лес или река, иногда историческая архитектура. Но в этом проекте Евгении Матвеенко вдохновение пришло откуда не ждали. Гамму интерьера подсказали… московские панельки с голубыми вставками на фасадах.
Houzz тур: Интерьер в оттенках... соседних панельных домовЕвгения Матвеенко
О проекте
Место:
Москва, ЖК «Ривер Парк»
Размер: 55 кв.м
Кто здесь живёт: молодая и очень активная девушка
Дизайнер проекта: Евгения Матвеенко, Flatsdesign
Фото: Ольга Шангина, стилист Екатерина Наумова
__________________________

В ВАШЕМ ГОРОДЕ…
Через Houzz можно нанять дизайнера или архитектора в любом городе и стране. Начать поиск специалиста
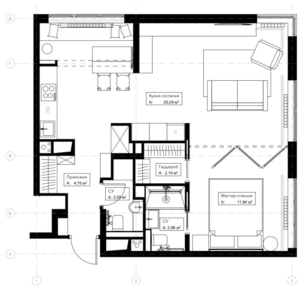
Планировка квартиры

Заказчица следила за аккаунтом Flatsdesign в инстаграме и обратилась к Евгении Матвеенко за планировкой. А позже решилась и на полный проект. Квартира сдавалась в бетоне, с единственным несущим пилоном по центру. Зонировать её было несложно благодаря большому количеству окон. Из прихожей хозяйка попадает сразу на кухню, затем в гостиную. Спальня смежная с гостиной, но зонирована перегородкой: в комнате в любой момент можно создать приватность.
ПРИХОЖАЯ
Один из ключевых принципов работы Flatsdesign решить все вопросы хранения, которые могут возникать у заказчика (даже если он пока о них не подозревает). Как раз для этого в прихожей спроектировали Г-образный шкаф. Фасады полностью отделаны зеркалами: этот приём растворяет шкаф в пространстве, а ещё даёт максимальный обзор нет необходимости в дополнительном ростовом зеркале.

В торце сделали отдельную секцию глубиной 15 см: она используется, чтобы положить ключи и перчатки. Таким образом, шкаф «работает» на три стороны. «Мы не очень любим устанавливать в прихожей консоли для мелочей: открытые поверхности в проходной зоне провоцируют бардак», рассказывает Евгения Матвеенко.
Houzz тур: Интерьер в оттенках... соседних панельных домовЕвгения Матвеенко
КУХНЯ
Для прихожей использовали геометричную плитку, но на кухню её не завели. Здесь, как и в жилых комнатах, уложили инженерную доску: «Это всё-таки достаточно прочный материал, а заказчица очень аккуратная девушка. К тому же кухня смежная с гостиной: нам не приходится дробить небольшое пространство разными напольными покрытиями», поясняет дизайнер.
Houzz тур: Интерьер в оттенках... соседних панельных домовЕвгения Матвеенко
Кухонный гарнитур «Кухонный двор»

Потолок в зоне кухни опустили, чтобы выстроить высокие подвесные шкафы без щели, в которой собиралась бы пыль. Фасады решены в двух цветах и очень лаконичны: по словам автора проекта, замысел был в том, чтобы легко читался рисунок тетрадной клетки.
Houzz тур: Интерьер в оттенках... соседних панельных домовЕвгения Матвеенко
Светильники Maytoni

Ещё одна кухонная линия частично смотрит в гостиную: в колоннах разместили холодильник, винный шкаф и другую бытовую технику. Вместо большого обеденного стола поставили компактную барную стойку, под которую обычно задвигают небольшой стол. Этот стол можно перенести в зону окна и устроиться на скамье для полноценного ужина. Столешница стойки повторяет материал рабочей поверхности кварцевый агломерат.
Houzz тур: Интерьер в оттенках... соседних панельных домовЕвгения Матвеенко
Проблема и решение: подоконник решили превратить в место для сидения, но расположенному под ним радиатору требовалась циркуляция воздуха. Тогда матрас сделали разборным: валик, расположенный ближе к оконной раме, вынимается на время отопительного сезона и к радиаторам начинает поступать воздух. Дополнительные решётки есть и в нижней части экрана.
Houzz тур: Интерьер в оттенках... соседних панельных домовЕвгения Матвеенко
ГОСТИНАЯ
Гостиную и спальню разделяет остеклённая перегородка на металлическом каркасе. Механизм открывания книжка: перегородку можно полностью сложить и убрать к стене. Для создания приватной обстановки в потолок спальни встроены рулонные шторы, которые управляются с пульта. Такое расположение функциональных зон выбрали в том числе для того, чтобы не вешать два телевизора: тот, что расположен в гостиной, прекрасно просматривается с кровати.
Houzz тур: Интерьер в оттенках... соседних панельных домовЕвгения Матвеенко
Диван сделан на заказ по эскизам дизайнера

Яркий диван плюс живые растения маленькие «тропики» в серой Москве очень порадовали заказчицу. «Мы выбрали обивку бутылочного цвета, а за ней подтянулись остальные элементы. Ассоциативный ряд был примерно таким: бутылка с запиской, море, пляж, поэтому спальне досталась песочная гамма, будто бы мы оказались на песчаном островке», отмечает Евгения.
Houzz тур: Интерьер в оттенках... соседних панельных домовЕвгения Матвеенко
Матрас King Koil; тумбы Dantone Home; подвесные светильники Tom Dixon

СПАЛЬНЯ
Изголовье выделили панелями со шпоном дуба, тонированным в светлый оттенок такой же шпон использован на межкомнатных дверях. Кровать делали на заказ из-за очень тяжёлого ортопедического матраса: пришлось дополнительно рассчитывать прочность основания.
Houzz тур: Интерьер в оттенках... соседних панельных домовЕвгения Матвеенко
Керамогранит Kerama Marazzi; сантехника Villeroy & Boch; раковина BelBagno

ГЛАВНЫЙ САНУЗЕЛ
Компактный, но очень функциональный санузел распланировали до сантиметра. В нишу встроили
зеркальный шкаф для косметики, в душевой спроектировали глубокие ниши — это позволило не вешать открытые полки, на которых всегда хорошо заметен беспорядок.
Керамогранит Atlas Concorde

ГОСТЕВОЙ САНУЗЕЛ
Гостевой санузел решили делать в стиле ресторана или отеля отсюда и тёмная гамма, и подвесная раковина, врезанная в деревянную столешницу. В этом санузле удалось разместить небольшую зону прачечной со стиральной и сушильной машинами.

ОБ АВТОРАХ ПРОЕКТА…
Перейдите на страницу студии Flatsdesign, чтобы изучить другие работы в портфолио или заказать собственный проект
__________________________________

У ВАС ЕСТЬ ДЛЯ НАС ПРОЕКТ…
Загрузите съёмку в свой профиль на Houzz, отправьте ссылку с кратким описанием на editorial@flatica.ru

Для справки: Какие объекты мы публикуем

Комментарии 22

В панелях высота потолка 2,4-2,5. Обязательно было по всей гостиной ронять потолок? Это чтоб шторы спрятать или чтоб споты вставить? Но в целом на фотографиях все очень не плохо выглядит, я думаю заказчик доволен.
Лавочка на кухне простите просто бомба! )) очень уютно!!! интересно, подскажите по конструкции, дсп без каркаса? И идея с цветом от панелей действительно читается хорошо! Очень хотелось бы увидеть план ДО
Три окна это Простор для деятельности дизайнера. Все очень удачно. Сомневаюсь, что диван дает свободный проход в спальню, но это мелочи... . Очень приятная цветовая гамма. Планировка отличная.

Оставьте комментарий

Читать похожие статьи