logo

Houzz тур: Интерьер в «номенклатурном» стиле в доме Наркомфина

Два этажа, три комнаты и много исторических параллелей с эпохой постройки дома

Евгения Назарова
Евгения Назарова

8 дек. 2020

Обновлено 30 дек. 2020

Постоянный автор Houzz, интерьерный журналист

Квартира находится в необычном доме памятнике конструктивизма, где в этом году завершилась масштабная реконструкция. Здание, построенное в 19281930 годах по проекту архитекторов Моисея Гинзбурга, Игнатия Милиниса и инженера Сергея Прохорова для работников Народного комиссариата, было экспериментальным: изначально в квартирах-ячейках не планировались даже кухни.
За прошедшие десятилетия дом серьёзно обветшал, однако процесс восстановления стал образцово-показательным для всей архитектурной общественности: под руководством главного архитектора проекта Алексея Гинзбурга, внука Моисея Гинзбурга, здание отремонтировали по историческим технологиям и с применением аутентичных материалов. Александр Малинин и Анастасия Шевелева, дизайнеры студии INT2architecture, создали интерьер одной из квартир в доме Наркомфина, который соответствует духу этого легендарного места.
О проекте Место: Москва, дом Наркомфина Размер: 80 кв.м Кто здесь живёт: апартаменты оформили для сдачи в аренду Архитекторы проекта: Александр Малинин и Анастасия Шевелева, INT2architecture ————————————— В ВАШЕМ ГОРОДЕ… ► Через Houzz можно нанять дизайнера или архитектора в любом городе и стране. Начать поиск специалиста —————————————
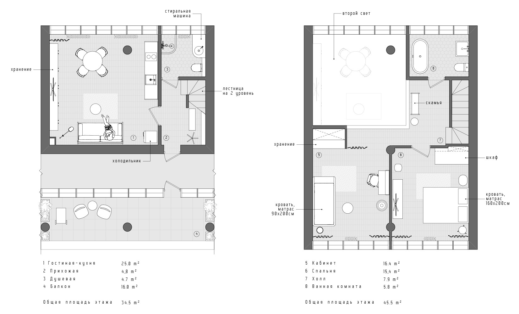
Планировка квартиры Эта квартира — бывшая ячейка типа K: по замыслу создателей такие большие по площади пространства предназначались для советской элиты. В квартире три комнаты и два этажа: на первом уровне расположены двусветная гостиная с компактной кухней и столовой зоной, санузел с душевой и прихожая. На втором — основная изолированная спальня, кабинет и ванная комната. С нижнего уровня можно выйти на собственную террасу площадью 16 кв.м с видом на небольшой садик.
Так выглядит ячейка типа К в объёме
Обеденный стол изготовлен на заказ по эскизам авторов проекта; стулья винтажные ; картины Сергея Архипова и Ольги Архиповой; светильник House Doctor КУХНЯ-ГОСТИНАЯ Площадь кухни-гостиной составляет 25 кв.м, а высота потолков — целых пять метров. Двусветное пространство — одна из визитных карточек дома Наркомфина. Благодаря огромным окнам комнаты всегда залиты светом: эту особенность интерьера подчёркивает светлая отделка.
Авторы проекта описывают стиль получившегося интерьера, как микс скандинавского с « номенклатурным » : с одной стороны, здесь присутствует много лаконичных мотивов северного дизайна; с другой — читается стремление не нарушить концепцию организации жилого пространства и его архитектуру.
В гостиной: тумба ИКЕА; диван Divan.ru; кофейный столик Zara Home; светильники и ковёр La Redoute « Апартаменты не претендуют на серьёзную стилизацию под исторический интерьер. Это вольный парафраз близких и знакомых всем образов сдержанного советского стиля. На первом этаже мы покрасили часть стены тёмной краской, как часто делали в госучреждениях. На фоне этого тёмного цоколя хорошо смотрится мебель неярких оттенков » , — рассказывает Анастасия Шевелева.
На фото: лестница на второй уровень с покрытием из ксилолита — искусственного камня из древесных опилок. Её сохранили при реставрации здания
На фото: коридор второго этажа. Скамья и декор Zara Home; картина Сергея Архипова и Ольги Архиповой
Кровать и ковёр La Redoute; светильник House Doctor СПАЛЬНЯ Второй этаж квартиры, где размещена спальня, довольно низкий: высота потолков составляет всего 2,3 метра. Однако благодаря невысокой мебели это ощущение удалось сгладить.
Кушетка, рабочий стол, ковёр и светильник La Redoute В отличие от изолированной спальни, кабинет является продолжением холла второго этажа — так была задумана историческая планировка. Но для комфорта человека, работающего в комнате, кабинет отделили от общей зоны шторой, чтобы при необходимости в комнате можно было « закрыться » .
САНУЗЕЛ В мокрой зоне также применили привычные для советских интерьеров оттенки и материалы, в частности, белую квадратную плитку. _______________________________ ОБ АВТОРАХ ПРОЕКТА… Перейдите на страницу студии INT2architecture , чтобы изучить другие работы из портфолио дизайнеров У ВАС ЕСТЬ ДЛЯ НАС ПРОЕКТ… Загрузите съёмку в свой профиль на Houzz, отправьте ссылку с кратким описанием на editorial@flatica.ru Для справки: Какие объекты мы публикуем

Комментарии 12

rame420

5 л.

Классно получилось! Лестница смотрится супер-модно, даже не верится, что в таком виде ее и "внедрили" в жизнь почти 100 лет назад... . Весь интерьер совпадает с идеей самого дома, и при этом очень стильно!
Квартира,на мой взгляд, отличная. И мудрить в такой квартире что-либо с внутренним убранством-лишнее.
Холодильник в углу гостиной действительно ужасно смотрится. Может это параллель к советской действительности, когда от безысходности микроскопических кухонь, холодильник стоял в коридоре или даже, как и здесь, в "зале", как раньше называли". Только в этом проекте немного другая концепция оформления, может было бы тогда сделать его встроенным в шкаф под кухонный гарнитур.

Оставьте комментарий

Читать похожие статьи