logo

Houzz тур: Интерьер с кухней в любимом цвете заказчицы

И круглой колонной посередине коридора

Екатерина Перминова
Екатерина Перминова

10 авг. 2021

Обновлено 6 сент. 2021

Постоянный автор HouzzRu, журналист

Houzz тур: Интерьер с кухней в любимом цвете заказчицы
Заказчики представляли интерьер своей квартиры современным, в спокойной цветовой гамме, но с яркими оттенками в акцентах. Так любимый цвет заказчицы раскрасил пространство кухни в сложно-голубой.

О проекте
Место: Санкт-Петербург
Размер: 180 кв.м
Кто здесь живет: семья с тремя детьми
Дизайнеры проекта: дизайн студия «Нечаев и Сенчугов»
Фото: Андрей Семёнов
Houzz тур: Интерьер с кухней в любимом цвете заказчицы
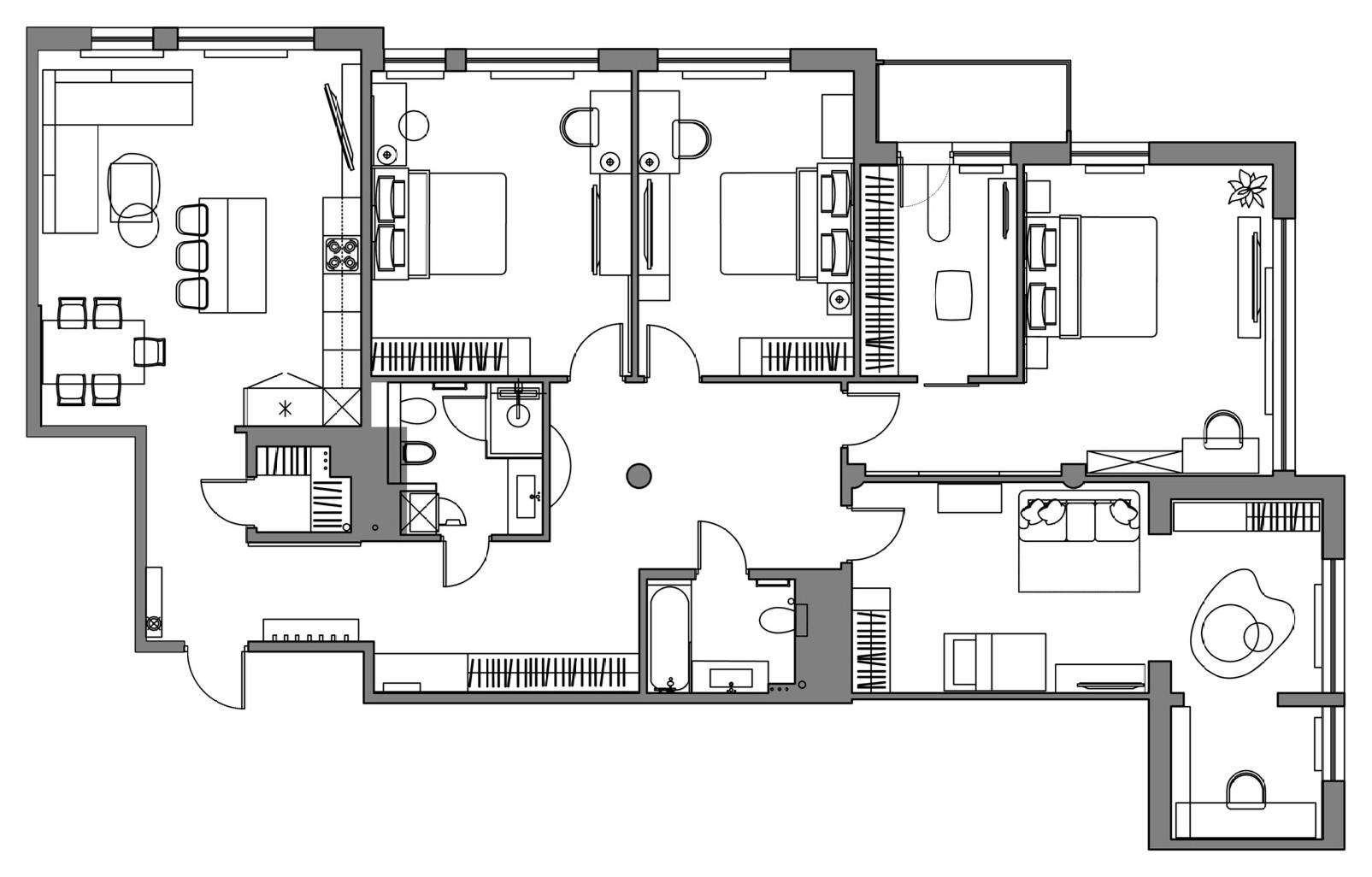
ПЛАНИРОВКА
Планировка от застройщика оказалась логичной и комфортной и не потребовала изменений: из коридора веером расходятся кухня-гостиная, спальня родителей, три детские и два санузла. Но без конструктивных особенностей не обошлось — по центру расположена несущая круглая колонна.

ЗАПИСАТЬСЯ НА ВИДЕОКОНСУЛЬТАЦИЮ
———————–
Выберите удобное время, чтобы обсудить свой будущий проект — созвониться через Houzz с дизайнерами этого интерьера
———————–
Houzz тур: Интерьер с кухней в любимом цвете заказчицы
Колонну облицевали деревянными рейками, что создало интересный визуальный эффект. Стену по периметру входной двери декорировали керамогранитом, имитирующим рейки. Такое решение в проходной зоне более практично — покрытию не страшны капли воды и грязи.
Houzz тур: Интерьер с кухней в любимом цвете заказчицы
Керамогранит Porcelanosa

Остальное пространство коридора занимают вместительные шкафы, скрытые за фасадами из массива дуба с черной фрезеровкой без ручек. Для гостей такая система хранения выглядит как стеновые панели под дерево.

На чем сэкономили: вместо декоративной штукатурки использовали ее первый слой — подложку. Получилось легкое шелковое покрытие, которое не боится воды, смотрится выигрышно и экономит бюджет.
Houzz тур: Интерьер с кухней в любимом цвете заказчицы
КУХНЯ
Стыковка кухонных шкафов с потолком всегда сложный технический момент, а использовать самые верхние полки заказчики не планировали, поэтому кухню заказали стандартной высоты. Но во время реализации стало ясно, что выигрышней будет смотреться вариант, подпирающий потолок. Тогда пространство закрыли декоративной накладкой того же сложного голубого цвета.
Houzz тур: Интерьер с кухней в любимом цвете заказчицы
Кухня Petropolitano

Фасады выполнили из МДФ и покрыли матовой эмалью, поскольку на ней не остается следов. Столешницу рабочей зоны, острова и стеновую панель изготовили из гранита с вкраплениями уникального минерала лабрадорита — он оттеняет цвет шкафов.

Обратите внимание: морозильная камера расположена отдельно от холодильника и встроена в остров со стороны кухни. Со стороны гостиной в остров встроен винный холодильник на 20 бутылок.
Houzz тур: Интерьер с кухней в любимом цвете заказчицы
Диван Natuzzi

ГОСТИНАЯ
Гостиную разделили на обеденную часть и зону для просмотра ТВ. Диван выбирали по двум характеристикам: приятный материал отделки и повышенный комфорт. Нажатием одной кнопки изножье приподнимается и образует подставку для ног. Стену за диваном оформили гипсовой 3D-панелью.
Houzz тур: Интерьер с кухней в любимом цвете заказчицы
Свет Led monster

«Потолки подвели к перекрытию, чтобы сохранить исходную высоту пространства и встроили в них магнитный шинопровод. При необходимости можно варьировать количество светильников», — рассказывают дизайнеры.
Houzz тур: Интерьер с кухней в любимом цвете заказчицы
Керамогранит Porcelanosa

Керамогранит на полу имитирует терраццо: здесь использовали плиты размером 80 на 80 см и подобрали затирающий материал в тон. В результате пол выглядит как единая каменная плита.
Houzz тур: Интерьер с кухней в любимом цвете заказчицы
Зону столовой выделили панелями со шпоном ореха. Их пустили под углом 45 градусов друг к другу — получился динамичный рисунок, с которым хорошо сочетаются черные бра и каменная столешница.

Проблема и решение: стол из настоящего камня, наклеенного для прочности на стекло, заказали на итальянской фабрике. Но итальянцы ошиблись с цветом и вместо оттенка натурального камня изготовили белоснежную столешницу. В ожидании замены заказчики используют доставленную модель.
Houzz тур: Интерьер с кухней в любимом цвете заказчицы
ВАННАЯ КОМНАТА
В ванной комнате появилась душевая кабина с функциями гидромассажа и хаммама — это готовое изделие, для которого не требуется выстраивать подиум.

Столешница под мойкой выполнена из массива дуба и покрыта маслом, предотвращающим воздействие влаги.
Houzz тур: Интерьер с кухней в любимом цвете заказчицы
Плитка Porcelanosa; декор HomeConcept; полотенцесушитель Zehnder Yucca

Стена над инсталляцией облицована плиткой, имитирующей срезы деревянных брусков. На полу и остальных стенах — плитка под мрамор той же фабрики.
Houzz тур: Интерьер с кухней в любимом цвете заказчицы
Краска Little Greene; кровать Natuzzi; панно Artpole

КОМНАТА СТАРШЕЙ ДОЧЕРИ
Спальню дочери-подростка выделяет 3D-панно из гипсового полимера, которое раскрасили в яркие цвета уже после закрепления на стене.

«Долго не получалось собрать панели, — вспоминают дизайнеры. — Их пришлось подрезать по месту, они трескались. Но в итоге мы их победили».
Houzz тур: Интерьер с кухней в любимом цвете заказчицы
Мягкие панели AE masters

Стену с телевизором декорировали мягкими панелями, которые гасят эхо и создают дополнительный уют.
Houzz тур: Интерьер с кухней в любимом цвете заказчицы
Houzz тур: Интерьер с кухней в любимом цвете заказчицы
Корпусная мебель выполнена на заказ; кровать Natuzzi

КОМНАТА СЫНА
По другую стороны стены находится комната мальчика-подростка. Акцентную стену за изголовьем кровати здесь оформили панно, изображающим карту мира, но стилизованным под нарезку из газет.

В кровать итальянского производства встроены точечные светильники с направленным светом, комфортным для чтения.
Houzz тур: Интерьер с кухней в любимом цвете заказчицы
Кровать Natuzzi; панно Artpole

ГЛАВНАЯ СПАЛЬНЯ
Изголовье кровати в спальне родителей собрано из мягких наборных панелей и, как и в комнате детей, дополнено панно. 3D-панель из гипсового полимера расположили вертикально, чтобы зрительно приподнять потолок.
Houzz тур: Интерьер с кухней в любимом цвете заказчицы
Рядом с окном установили стол, который благодаря встроенному ящику для хранения косметики
одновременно можно использовать и как рабочий, и как туалетный.

———————————————
В ВАШЕМ ГОРОДЕ…
Через Houzz можно нанять дизайнера или архитектора в любом городе и стране. Начать поиск специалиста
———————————————

У ВАС ЕСТЬ ДЛЯ НАС ПРОЕКТ…
Загрузите съёмку в свой профиль на Houzz, отправьте ссылку с кратким описанием на editorial@flatica.ru

Для справки: Какие объекты мы публикуем

Комментарии 5

Отличный интерьер!
Ужас ужасный.. Гипсовые панели словно сошли со стены сельского дворца культуры советских времен. Мешанина всего. Тут плитка такая, тут этакая, под мрамор, под дерево, под терраццо и везде панно всякие разные. И кухня "сложного-голубого цвета"... А собственно дизайна как раз и нет.
azallea

4 г.

При такой площади и такая куцая кухня гостинная?! Семья вместе никогда не собирается? И неужели детям нужны большие 2-х спальные кровати и телевизоры? Прийдут, например, к мальчику подростку друзья и все будут толктись на этой богатой итальянской кровати? Ерунда какая-то.. Цветовое решение тоже не понравилось.. Яркие акцентные двери при остальных пастельных тонах.. Плитка под дерево и рядом керамогранит - не пляшут совсем. В общем, доверились люди "профессионалам"...

Оставьте комментарий

Читать похожие статьи