
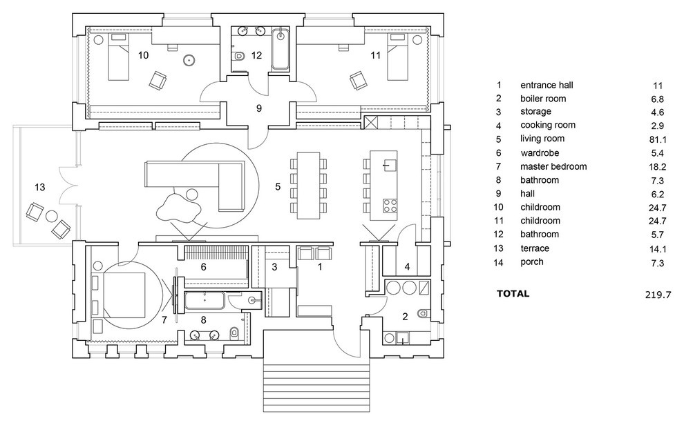
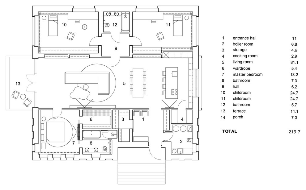
Архитектура: «Пасхальный» дом в Домодедово
Евгения Назарова
25
7 мар. 2018
Обновлено 22 апр. 2018
Постоянный автор Houzz, интерьерный журналист
7 л.

Архитектура: «Пасхальный» дом в Домодедово
Евгения Назарова
25

Houzz тур: Дом, который продали во время ремонта
Houzz Россия
19

Houzz тур: Загородный дом со стеклянным камином
Евгения Назарова
9

Houzz тур: Интерьер в эстетике буржуазного пригорода
Houzz Россия
6

Houzz тур: Очень чёрный дом – изнутри и снаружи
Евгения Назарова
44

Houzz тур: Загородный дом для семьи врачей
Евгения Назарова
12

Houzz США: Дом в лесах, к северу от Нью-Йорка
Houzz Россия
7

Houzz тур: Чёрный-чёрный дом под Троицком
Евгения Назарова
12

До и после: Ремонт дома в Сарове — с сохранением части отделки
Евгения Назарова
19

Houzz Япония: Дом 40 метров... в длину
Houzz Россия
5

Дом-легенда: Реконструкция «Двуликого Сфинкса» Филиппа Старка
Houzz Россия
6

Houzz Индия: Большой дом в тропическом стиле
Houzz Россия
8

Houzz тур: Современный дом на Николиной Горе
Евгения Назарова
14

Houzz тур: Дом, где традиции объединили с высокими технологиями
Houzz Россия
23

Houzz тур: Дом с напольным бордюром из старых чугунных плит
Houzz Россия
20

Houzz тур: Дача на Волге, увеличенная в два раза
Евгения Назарова
27

Houzz тур: Дом под Петербургом с потайной лестницей
Houzz Россия
11

Houzz тур: Загородный дом с березовой рощей и камином
Houzz Россия
17
Carlos Slim
7 л.