logo

Houzz тур: Дом с панорамными окнами и бетонным потолком

Первые два года его отапливали только камином (и ничего)

Екатерина Перминова
Екатерина Перминова

26 нояб. 2017

Обновлено 11 мар. 2018

Постоянный автор HouzzRu, журналист

Дизайнера Олесю Сыпченко заказчики пригласили, еще выбирая типовой проект дома. Главной сложностью был узкий участок земли: по нормам от постройки до соседского участка должно оставаться не менее шести метров.
Houzz тур: Дом с панорамными окнами и бетонным потолком
Типовой проект изменили под образ жизни и желания семьи. Сначала доработали фасад дома: он был оштукатурен и покрашен в белый цвет, что не очень практично в наших погодных условиях. Дизайнер предложила отделать дом профлистом из металла — его изготовили и покрасили под заказ. Появилась на фасаде и отделка деревом.

О проекте
Место: Подмосковье
Размер: 180 кв.м; высота потолков — 2,75 м на первом этаже и 2,6 м — на втором
Кто здесь живет: семья из четырех человек
Автор проекта: Олеся Сыпченко, дизайнерский дом GivettoCasa
Фото: Ольга Шангина
Houzz тур: Дом с панорамными окнами и бетонным потолком
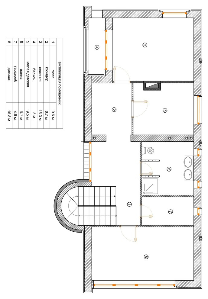
Планировка первого этажа

В планировку тоже внесли коррективы: добавили помещение для стиральной и сушильной машин, урезав площадь гостевой комнаты. Вместо барной стойки в кухне-столовой выделили холодную комнату для продуктов и бытовых принадлежностей. Кухню и гостиную объединили в одно помещение, в центре которого расположился двусторонний камин.
Houzz тур: Дом с панорамными окнами и бетонным потолком
Дом предназначен для жизни семьи из четырех человек. Их основные пожелания — простота и минимализм во всем: начиная от архитектуры дома, заканчивая интерьером.
Houzz тур: Дом с панорамными окнами и бетонным потолком
КУХНЯ-ГОСТИНАЯ
Камин играет особую роль: его выбирали не столько по дизайну, сколько по техническим возможностям. В первые два года после строительства не было возможности подключить дом к центральному газопроводу он полностью отапливался камином. Камин связан с системой отопления и может нагревать воду в бойлере, радиаторы, и теплые полы всего дома.
Houzz тур: Дом с панорамными окнами и бетонным потолком
Барная стойка со встроенным камином стала любимым местом гостей и хозяев. На возведении стойки настояла заказчица. Подобную конструкцию она увидела во время путешествий и просто влюбилась. За стойкой высотой 140 см удобно сидеть и общаться, к тому же она закрывает бытовую часть кухни во время готовки.
Houzz тур: Дом с панорамными окнами и бетонным потолком
Бетонный потолок на первом этаже, по словам дизайнера, оказался самой интересной частью работы. «Предсказать, каким в итоге окажется потолок, сложно. Это зависит от многих факторов: качества фанеры для опалубки, погодных условий при заливке бетона, качества самого бетона и многого другого, — поясняет Олеся. — Риск получить не то, что хотелось, был велик».
Houzz тур: Дом с панорамными окнами и бетонным потолком
Заливка плиты перекрытия происходила зимой, фанера опалубки, по всей видимости, очень сильно примерзла к бетону. И эффект получился неожиданным: вместо обычного бетона — рельефный потолок с четкой фактурой дерева. Чтобы смягчить брутальность потолка, в гостиной смонтировали лаконичный гипсовый карниз.
Houzz тур: Дом с панорамными окнами и бетонным потолком
Заказчик попросил реализовать еще одну идею — сделать кирпичную несущую стену в центре дома, которая просматривается на первом и на втором этажах. Под неё пришлось строить еще несколько стен из кирпича, хотя все внутренние перегородки выполнялись из газобетонных блоков. «Очень сложно было объяснить строителям, что кирпичи не нужно выкладывать под расшивку, нужен эффект состаренного материала», — вспоминает Олеся.

Фрагмент такой стены просматривается на кухне — в зоне кухонного фартука его закрыли закаленным стеклом.
Houzz тур: Дом с панорамными окнами и бетонным потолком
ГОСТЕВАЯ СПАЛЬНЯ
Если с выбором цвета и мебели сложностей не возникло, над решением технических задач пришлось поломать голову. Требовалось проложить электрику первого этажа по полу второго. В результате светильники выводились сквозь плиту перекрытия — под каждый светильник в ней сделали отверстие.
Houzz тур: Дом с панорамными окнами и бетонным потолком
Для первого этажа выбрали один тип керамогранита, под ним проложили теплые полы они же стали источником отопления этого этажа. В кухне-гостиной напольные конвекторы расположили вдоль панорамных окон. В покраске стен использовали минимум цвета — по два оттенка на этаж.
Houzz тур: Дом с панорамными окнами и бетонным потолком
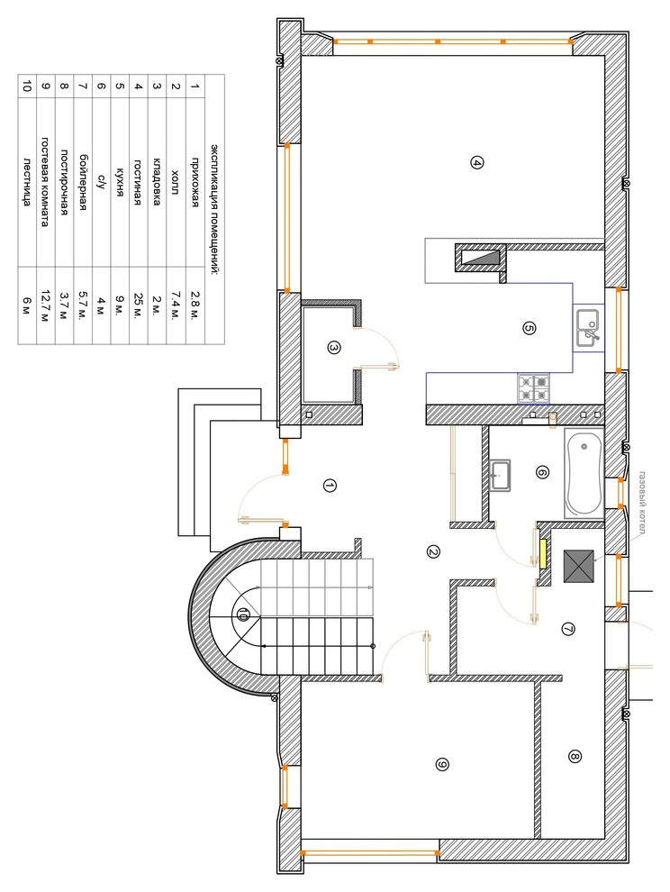
Планировка второго этажа
Houzz тур: Дом с панорамными окнами и бетонным потолком
СПАЛЬНЯ
Многие предметы интерьера заказчик в буквальном смысле делал своими руками. Это и встроенная деревянная столешница в ванной первого этажа, и металлическое ограждение лестницы на втором, и прикроватные тумбочки с изголовьем кровати в главной спальне (на фото).
Houzz тур: Дом с панорамными окнами и бетонным потолком
КОМНАТА СЫНА
Houzz тур: Дом с панорамными окнами и бетонным потолком
КОМНАТА ДОЧЕРИ
Кирпичная стена в этой комнате осталась от бывшего кабинета хозяина. Спустя два года после реализации интерьера у семьи возникла потребность во второй детской. Под неё адаптировали единственную свободную комнату.


Зеленые стены фрагментарно перекрасили в розовый, металлическую мебель заменили деревянной и более удобной для жизни малыша. А вот стену из темного кирпича оставили. «Заказчики спокойно относятся к кирпичам в детской, и не считают, что комнату ребенка нужно обивать поролоном. Тем более кирпич присутствует в интерьере всего дома, — рассказывает Олеся. — Часто слышу от других заказчиков: безопасно ли это для детей? И всегда хочется напомнить, что многие из нас выросли в обычных квартирах с такими же кирпичными стенами под слоем обоев».
Houzz тур: Дом с панорамными окнами и бетонным потолком
ГОСТЕВОЙ САНУЗЕЛ
Потолок санузла на первом этаже дома сделали из деревянных реек. За ними установили лампы дневного света рейки дают красивые длинные тени на стены. Деревянная столешница встроена на высоте 90 см (из-за высокого роста заказчика).

Чтобы спрятать инсталляцию унитаза в стену, часть кирпичей пришлось распилить вдоль и уложить, как плитку.
Houzz тур: Дом с панорамными окнами и бетонным потолком
ВАННАЯ
Это пространство больше похоже на зону спа: деревянный пол, цветы и фитобочки, которые регулярно используются. «Мы хотели построить отдельную сауну, но отдали эту площадь под гардероб, а бочки разместили в ванной. От них идет сильный пар, поэтому в комнате предусмотрена хорошая вентиляция и влагозащитные розетки», — пояснят дизайнер.
Houzz тур: Дом с панорамными окнами и бетонным потолком
Санузел с бочками напоминает хозяевам отдых на Мальдивах, где в ванной были пальмы, панорамные окна, галька и пол, отделанный натуральным деревом. Здесь для отделки использовали уличную террасную доску из лиственницы. Она лежит на лагах без жесткого крепления это позволяет ей свободно дышать и меняться в зависимости от влажности помещения.
Houzz тур: Дом с панорамными окнами и бетонным потолком
На фото: вид на террасу

ОБ АВТОРЕ ИНТЕРЬЕРА…
Перейдите на личную страницу Олеси Сыпченко, GivettoCasa, чтобы изучить другие работы из портфолио дизайнера или заказать ей собственный проект

КАК ЗАДАТЬ ВОПРОС ДИЗАЙНЕРУ
Если у вас остался вопрос по маркам и конструктивным решениям, на который вы не нашли ответа в статье, спросите напрямую у автора этого проекта. Откройте нужное фото в полноэкранном режиме, найдите кнопку «задать вопрос» в правом нижнем углу и напишите свой. Дизайнер получает уведомления о каждом вопросе, добавленном к его фотографиям

У ВАС ЕСТЬ ДЛЯ НАС ПРОЕКТ…
Загрузите съёмку в свой профиль на Houzz, отправьте ссылку с кратким описанием на editorial@flatica.ru.

Для справки: Какие объекты мы публикуем

Комментарии 17

Внутри дом понравился, хотя я далеко не сторонница окон-бойниц и натуры кирпича в комнатах, снаружи - нет, напоминает склад каких-нибудь материалов. Но, в конце-концов, все на любителя и наличие средств, это было мое личное мнение, то есть, я для себя так не сделаю. Заказчики сделали так - и это их право. Повторюсь, дизайн внутри дома - прелестный. Но кто сказал, что до границы соседей должно быть 6 метров? Я лично пару месяцев назад консультировалась по своему вопросу в архитектуре - 3 метра, не менее, закон, думаю, один на всей территории страны.
мне очень нравится . как бы мне хотелось такой! буду феячить себе
Великолепно! Тонкий вкус. Ничего лишнего. Удивительное стилевое единство. Супер!

Оставьте комментарий

Читать похожие статьи