logo

Houzz тур: Дом из клееного бруса в Малаховке

Вместо плитки, на кухонный фартук взяли... клинкерный кирпич

Houzz Россия
Houzz Россия

26 нояб. 2017

Обновлено 24 мар. 2018

«Моя подруга несколько лет мечтала о загородном доме, рассказывает архитектор и дизайнер Ольга Чурюмова. Однажды она поехала в горы кататься на лыжах, посмотрела на окрестные постройки и поняла, что семейный дом обязательно должен быть именно таким, деревянным!».
Houzz тур: Дом из клееного бруса в МалаховкеОльга Чурюмова
О проекте
Место: Малаховка
Год: 2017
Размер: 250 кв.м
Кто здесь живёт: семья из трех человек
Авторы проекта: Ольга Чурюмова и Раиса Согонова
Фото: Дмитрий Лившиц; стилист съемки Юлия Чеботарь

Дом находится в Малаховке старом дачном поселке рядом с сосновым лесом. Владельцы и архитектор решили, что здание должно вписаться в существующий ландшафт: во время строительства ни одно дерево на участке не пострадало.
Houzz тур: Дом из клееного бруса в МалаховкеОльга Чурюмова
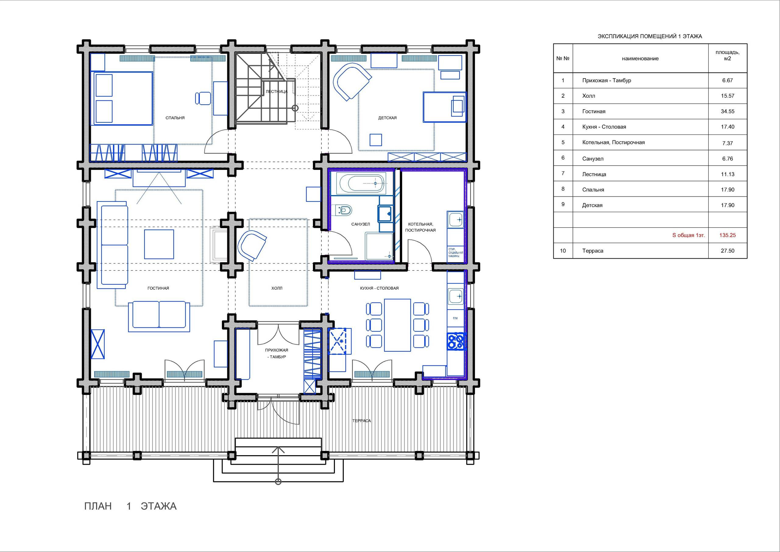
Планировка первого этажа

«Работать с хозяевами было очень легко. Во многом помогла профессия подруги она врач-рентгенолог. У человека, который каждый день имеет дело с трехмерным изображением тела на экране томографа, хорошо развито объемно-пространственное воображение. Поэтому сложностей в визуализации мыслей и идей у нее не возникало», рассказывает Ольга.
Houzz тур: Дом из клееного бруса в МалаховкеОльга Чурюмова
ВХОДНАЯ ЧАСТЬ
«Заказчики просили разместить основные комнаты на одном этаже, поэтому тут и общественные зоны холл, кухня, гостиная, и родительская спальня, и детская, и ванная. Моей задачей было сделать так, чтобы пространство развивалось постепенно от публичного к более частному», рассказывает архитектор.

Из прихожей сквозь стеклянные двери виден просторный холл, высокие открытые проемы ведут в гостиную. В глубине стоит конструкция из вертикальных деревянных стоек, задача которой сместить акцент с лестницы, ведущей в мансарду.
Houzz тур: Дом из клееного бруса в МалаховкеОльга Чурюмова
ГОСТИНАЯ
Заказчикам хотелось, чтобы в комнатах чувствовался простор и воздух. Поэтому для дома из бруса выбрали отделку интерьеров маслом с белой тонировкой. Это покрытие проявляет структуру дерева и придает ему дополнительный мягкий блеск.


Высокие окна в пол освещают комнаты на первом этаже. Летом их открывают, и гостиная с обширной террасой становятся единым пространством, полным света и воздуха.
Houzz тур: Дом из клееного бруса в МалаховкеОльга Чурюмова
Диваны белорусской фабрики Furman, MERLIN, ALEXANDER; ковер New Rug Ethnic; картины Анны Бирштейн; шелкография на каминной полке Антона Ольшванга; бра SLV; потолочный свет Loft Concept; текстиль и декорирование окон по дизайну Раисы Согоновой
Houzz тур: Дом из клееного бруса в МалаховкеОльга Чурюмова
КУХНЯ
На просторной кухне шкафчики темно-серого цвета с белой столешницей выстроились в один ряд. На противоположной стене расположились холодильник side-by-side и высокий шкаф с антресолью, Этого количества шкафов достаточно для хозяев, чтобы разместить посуду и бытовую технику.

Свободную стену за рабочей поверхностью до потолка выложили клинкерным кирпичом. «Нужно было защитить деревянный брус от рабочих процессов в кухонной зоне. Вместо стандартного фартука из плитки, мы решили использовать клинкер. Нам с хозяевами так понравилось сочетание грубой поверхности кирпича и гладкого теплого дерева, что клинкером облицевали и стенки камина в гостиной. С кирпичной стеной перекликается покрытие пола традиционная темно-охристая плитка в кухне».
Houzz тур: Дом из клееного бруса в МалаховкеОльга Чурюмова
Кухня Greta; консоль, металлические стулья, освещение, обеденный стол со срезом ствола карагача от Loft Designе; плитка Topсer; текстиль и декорирование окон по дизайну Раисы Согоновой
Houzz тур: Дом из клееного бруса в МалаховкеОльга Чурюмова
СПАЛЬНЯ
Основные краски интерьеров — белый и серый, с добавлением акцентов голубого и синего на первом этаже и светло-зеленого — на втором.

Цвет вводили аккуратно: в мебели, деталях, аксессуарах. «Важную роль здесь сыграл текстиль, — рассказывает Ольга, — мы примеряли разные ковры, и удивлялись, насколько тот или иной ковер может объединить и даже собрать композицию в пространстве».
Houzz тур: Дом из клееного бруса в МалаховкеОльга Чурюмова
Хозяева дома еще очень молоды и не успели собрать свою коллекцию искусства. «Для съемки мы попросили картины у наших знакомых художников. То, что вы видите на стенах это, скорее, проект, предположение как могло бы быть. Личные собрания складываются год за годом, при этом на стене рядом может висеть рисунок, принесенный ребенком из детского сада, акварелька, написанная еще бабушкой, и голландский натюрморт, купленный главой семьи за его несомненную инвестиционную ценность. Но по-настоящему важно то, что каждая из этих вещей что-то значит лично для вас».
Houzz тур: Дом из клееного бруса в МалаховкеОльга Чурюмова
Весь текстиль и декорирование окон по дизайну Раисы Согоновой; мебель BoConcept; освещение Loft Designе; картина Анны Бирштейн; фото Жанлу Сьефф (афиша Фотобиеннале 1998); фото моделей Йоши Ямомото
Houzz тур: Дом из клееного бруса в МалаховкеОльга Чурюмова
ДЕТСКАЯ
Самая многофункциональная комната в доме
детская на первом этаже. Здесь можно играть, читать, рисовать, заниматься спортом, кататься на машинке и, в конце концов, спать. Детская кроватка-домик создает отдельное уютное пространство, настоящее «гнездо» в просторах комнаты, которые еще предстоит осваивать. В комнате очень свободно: самые необходимые для трехлетнего малыша вещи хранятся в высоком комоде, все остальные на втором этаже в гардеробной.
Houzz тур: Дом из клееного бруса в МалаховкеОльга Чурюмова
Для удобства взрослых в комнате стоит мягкое кресло, в котором можно сидеть рядом с ребенком и читать вслух. Мальчик быстро растет его потребности меняются год за годом. Уже сейчас родители задумываются, как изменится комната, когда сын пойдет в школу: в интерьере появятся книжные полки, письменный стол, диван или кровать вместо маленькой кроватки.

Детская кровать: DOODYWOODYDOM; картина «Рыбы» Надежды Григоренко; ковер New Rug Lake Blue; освещение SLV; кресло, комод, стеллажи ИКЕА; текстиль и декорирование окон по дизайну Раисы Согоновой
Houzz тур: Дом из клееного бруса в МалаховкеОльга Чурюмова
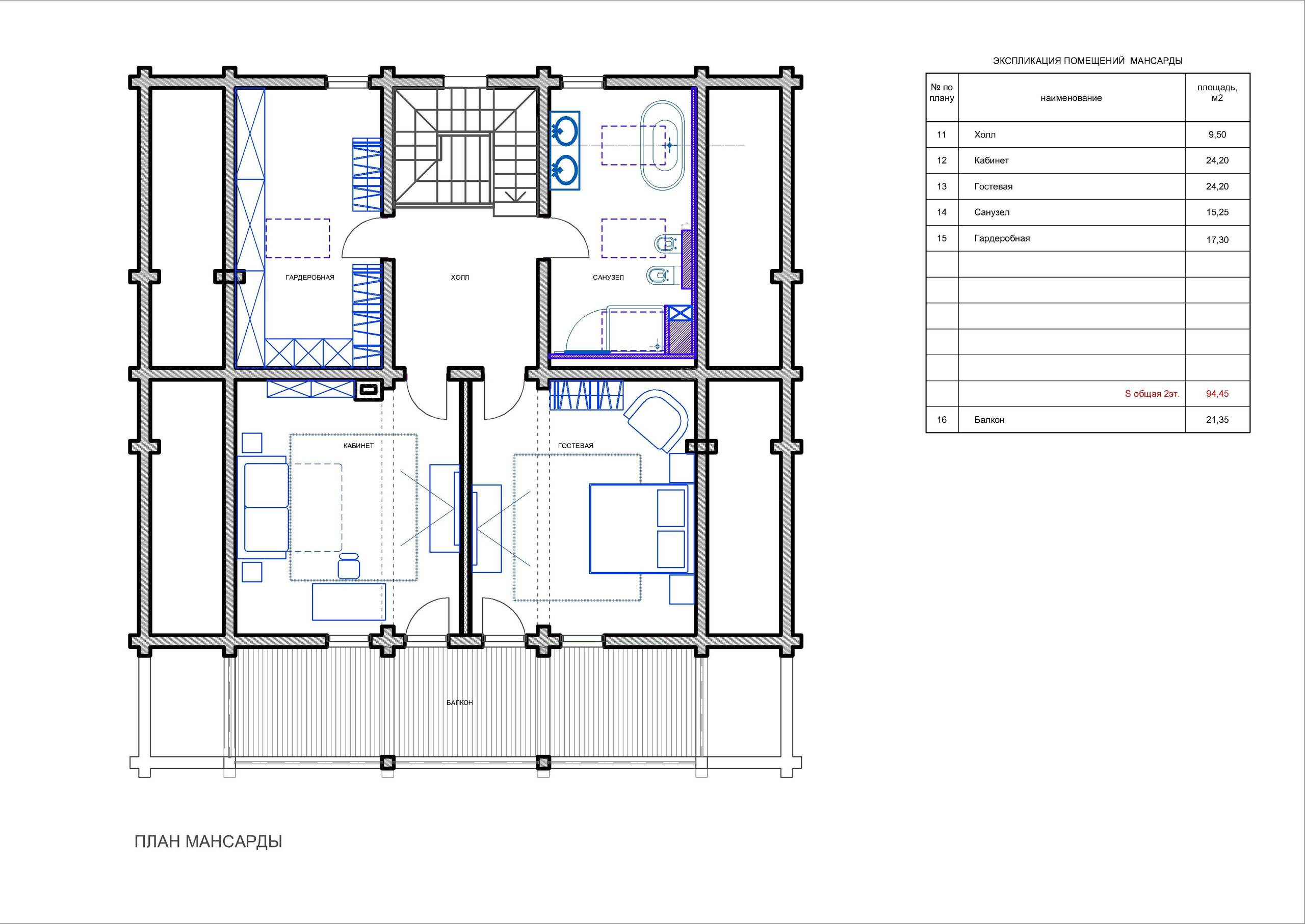
План второго этажа

На втором этаже расположены ванная, гардеробная и кабинет хозяина, а в соседней, пока пустующей комнате, стоит пара тренажеров — глава семьи держит себя в форме.
Houzz тур: Дом из клееного бруса в МалаховкеОльга Чурюмова
КАБИНЕТ
«Мы решили, что не стоит напрямую копировать горное шале, и постарались создать его интерпретацию. Например, шале обычно увенчивает покатая кровля со скатами, края которой сильно выступают за стены. И на втором этаже хорошо виден скос потолка это часть архитектуры дома, которую хотелось подчеркнуть.

Еще одна характерная особенность шале просторные террасы. Здесь кровля заканчивается сильно выступающими козырьками, под которыми расположены терраса и балкон второго этажа».
Houzz тур: Дом из клееного бруса в МалаховкеОльга Чурюмова
Сохранив основные принципы стиля шале, дизайнеры разнообразили проект, внеся в него дополнительные фактуры и цвет. Бело-серые интерьеры дополняют акценты голубого и синего цветов на первом этаже и светло-зеленого на втором.

Ковер New Rug Wave Olive; стол и диван ИКЕА; освещение Loft Designе
Houzz тур: Дом из клееного бруса в МалаховкеОльга Чурюмова
В ванной: сантехника Villeroy&Boch, Laufen, VitrA; ванна Kolpasan; мебель под раковины сделана по индивидуальному заказу; текстиль и декорирование окон по дизайну Раисы Согоновой
ОБ АВТОРАХ ИНТЕРЬЕРА…
Перейдите на личную страницу Ольги Чурюмовой и Раисы Согоновой, чтобы изучить другие работы из портфолио архитекторов или заказать им собственный проект

КАК ЗАДАТЬ ВОПРОС АРХИТЕКТОРУ
Если у вас остался вопрос по маркам и конструктивным решениям, на который вы не нашли ответа в статье, спросите напрямую у авторов этого проекта. Откройте нужное фото в полноэкранном режиме, найдите кнопку «задать вопрос» в правом нижнем углу и напишите свой. Архитектор получает
уведомления о каждом вопросе, добавленном к его фотографиям

У ВАС ЕСТЬ ДЛЯ НАС ПРОЕКТ…
Загрузите съёмку в свой профиль на Houzz, отправьте ссылку с кратким описанием на editorial@flatica.ru.

Для справки: Какие объекты мы публикуем

Комментарии 22

Задница на стене- это, конечно концептуально ;-) Но неужели для такого симпатичного дома не нашлось более подходящего рисунка?
Уютно,светло,много воздуха!очень понравился дом! .
Irina, в интернет магазине mimiloona посмотрите А вообще в поисковике можно набрать: детские столы /стулья eames Это мини-реплика взрослых.

Оставьте комментарий

Читать похожие статьи